Trong những năm gần đây, mẫu biệt thự 1 tầng 3 phòng ngủ trở thành xu hướng thiết kế được nhiều gia đình lựa chọn. Kiểu nhà này không chỉ mang lại không gian sống tiện nghi, khoa học mà còn tối ưu chi phí xây dựng. Với đa dạng phong cách từ hiện đại, tân cổ điển đến sân vườn, mẫu biệt thự 1 tầng phù hợp với hầu hết nhu cầu của các gia đình Việt.
Để sở hữu một căn biệt thự ưng ý, việc lựa chọn đơn vị thiết kế và thi công uy tín là vô cùng quan trọng. Thiết Kế Nhà 365 với nhiều năm kinh nghiệm, đội ngũ kiến trúc sư sáng tạo và quy trình chuyên nghiệp sẽ giúp bạn có một bản vẽ biệt thự 1 tầng 3 phòng ngủ đẹp và hiện thực hóa ngôi nhà mơ ước.
- 1. Vì sao biệt thự 1 tầng 3 phòng ngủ lại được ưa chuộng?
-
2. Tổng hợp 11+ mẫu biệt thự 1 tầng 3 phòng ngủ đẹp
- 2.1 Mẫu biệt thự 1 tầng 3 phòng ngủ mái Thái
- 2.2 Mẫu biệt thự 1 tầng 3 phòng ngủ mái Nhật
- 2.3 Mẫu biệt thự 1 tầng 3 phòng ngủ kiểu Pháp
- 2.4 Mẫu biệt thự 1 tầng 3 phòng ngủ mái bằng
- 2.5 Mẫu biệt thự 1 tầng 3 phòng ngủ chữ L
- 2.6 Mẫu biệt thự vườn 1 tầng 3 phòng ngủ
- 2.7 Mẫu biệt thự 1 tầng 3 phòng ngủ tân cổ điển
- 2.8 Mẫu biệt thự 1 tầng 3 phòng ngủ phong cách châu Âu
- 2.9 Mẫu biệt thự 1 tầng 3 phòng ngủ có phòng thờ
- 2.10 Mẫu biệt thự 1 tầng 3 phòng ngủ kiểu chữ U
- 3. Lưu ý khi thiết kế & xây dựng biệt thự 1 tầng 3 phòng ngủ
- 4. Báo giá thiết kế và thi công biệt thự 1 tầng 3 phòng ngủ
- 5. Thiết Kế Nhà 365 – đơn vị uy tín thiết kế và thi công biệt thự 1 tầng 3 phòng ngủ
- 6. Câu hỏi thường gặp (FAQ)
1. Vì sao biệt thự 1 tầng 3 phòng ngủ lại được ưa chuộng?
Phù hợp gia đình nhiều thế hệ: Với 3 phòng ngủ, gia đình có 3–5 thành viên hoặc nhiều thế hệ cùng chung sống đều có không gian riêng tư thoải mái. Thiết kế này đảm bảo sự cân bằng giữa sinh hoạt chung và sự riêng tư cho từng người.
Công năng khoa học, thuận tiện: Tất cả các không gian chức năng đều bố trí trên cùng một mặt sàn, giúp việc di chuyển dễ dàng hơn so với nhà nhiều tầng. Điều này đặc biệt thuận lợi cho gia đình có người lớn tuổi hoặc trẻ nhỏ.

Đa dạng phong cách kiến trúc: Từ mái Thái, mái Nhật, hiện đại đến tân cổ điển, biệt thự 1 tầng 3 phòng ngủ mang lại nhiều lựa chọn theo gu thẩm mỹ và ngân sách. Gia chủ dễ dàng chọn phong cách phù hợp để thể hiện cá tính riêng.
Chi phí xây dựng hợp lý: So với biệt thự 2–3 tầng, mẫu nhà 1 tầng 3 phòng ngủ tiết kiệm chi phí xây dựng hơn nhưng vẫn giữ được sự sang trọng. Đây là giải pháp cân bằng giữa thẩm mỹ, công năng và tài chính.
2. Tổng hợp 11+ mẫu biệt thự 1 tầng 3 phòng ngủ đẹp
2.1 Mẫu biệt thự 1 tầng 3 phòng ngủ mái Thái

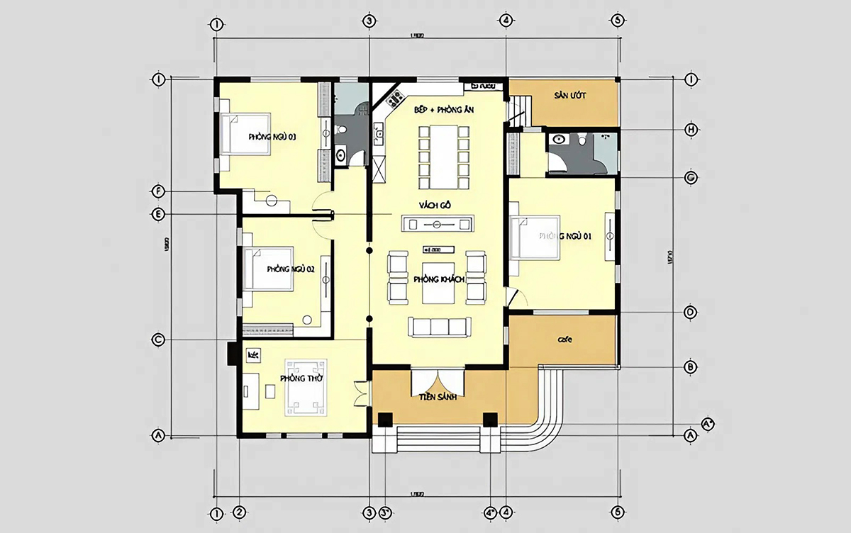
Mẫu biệt thự mái Thái được ưa chuộng nhờ khả năng chống nóng, thoát nước nhanh và bền vững theo thời gian. Kiểu mái dốc cao tạo nên sự thanh thoát, đồng thời giúp ngôi nhà trở nên nổi bật và sang trọng hơn. Bên trong, không gian được bố trí khoa học, thuận tiện cho sinh hoạt của gia đình 3–5 người. Đây là mẫu thiết kế phổ biến nhất tại Việt Nam vì vừa đẹp vừa phù hợp khí hậu.

Bản vẽ biệt thự 1 tầng 3 phòng ngủ mái Thái gồm phòng khách, phòng thờ, 3 phòng ngủ, bếp ăn, tắm, WC và giặt rửa. Thiết kế hài hòa giữa công năng và thẩm mỹ, đáp ứng nhu cầu gia đình 4–6 người, đồng thời mang đến sự tiện nghi, thoáng mát và bền đẹp lâu dài.
Ưu điểm:
Công năng khoa học, đáp ứng đầy đủ nhu cầu.
Mái Thái đẹp, chống nóng và chống ẩm hiệu quả.
Không gian 1 tầng tiện lợi cho mọi lứa tuổi.
Có phòng thờ riêng, giữ truyền thống.
Nhược điểm:
Cần đất rộng để phát huy hết công năng.
Mái Thái chi phí cao, thi công phức tạp.
Khó mở rộng khi gia đình đông người.
Lời khuyên:
Gia chủ nên chọn mẫu này nếu có quỹ đất thoáng và tài chính ổn định. Kết hợp sân vườn để tăng giá trị thẩm mỹ và nên tham khảo đơn vị thiết kế uy tín để tối ưu công năng, phong thủy và chi phí xây dựng.
2.2 Mẫu biệt thự 1 tầng 3 phòng ngủ mái Nhật

So với mái Thái, mái Nhật có độ dốc nhẹ hơn, mang lại nét tinh giản và cân đối. Kiểu mái này thường kết hợp với sân vườn rộng, tạo sự hài hòa giữa kiến trúc và thiên nhiên. Biệt thự mái Nhật mang sẽ theo hướng các mẫu biệt thự hiện đại, nhẹ nhàng nhưng vẫn giữ được sự bề thế. Đặc biệt, mẫu nhà này thích hợp cho những ai yêu thích sự tối giản và thanh lịch.

Bản vẽ biệt thự 1 tầng 3 phòng ngủ mái Nhật được thiết kế tiện nghi gồm phòng khách, phòng thờ, 3 phòng ngủ, bếp, tắm và 4 WC. Kiến trúc mái Nhật thấp thoải, hiện đại, mang nét sang trọng tinh tế, đồng thời tạo sự thoáng đãng, phù hợp khí hậu Việt Nam và nhu cầu gia đình đông thành viên.
Ưu điểm:
Mái Nhật thanh thoát, hiện đại, chống nóng và thoát nước nhanh.
Bố trí 4 WC tiện lợi, giảm áp lực sinh hoạt giờ cao điểm.
Không gian 1 tầng thuận tiện cho trẻ nhỏ và người cao tuổi.
Công năng đầy đủ, cân đối giữa sinh hoạt chung và riêng.
Nhược điểm:
Chi phí xây dựng cao hơn mái bằng, nhất là phần mái Nhật.
Yêu cầu diện tích đất tương đối rộng để bố trí hợp lý.
Nếu không thiết kế kỹ, nhiều WC có thể gây tốn diện tích.
Lời khuyên:
Gia chủ nên chọn mẫu này khi muốn không gian sang trọng, tiện nghi và thuận lợi cho sinh hoạt đông người. Nên tối ưu vị trí WC để tiết kiệm diện tích, đồng thời kết hợp sân vườn hoặc tiểu cảnh để tôn lên vẻ đẹp thanh thoát của mái Nhật.
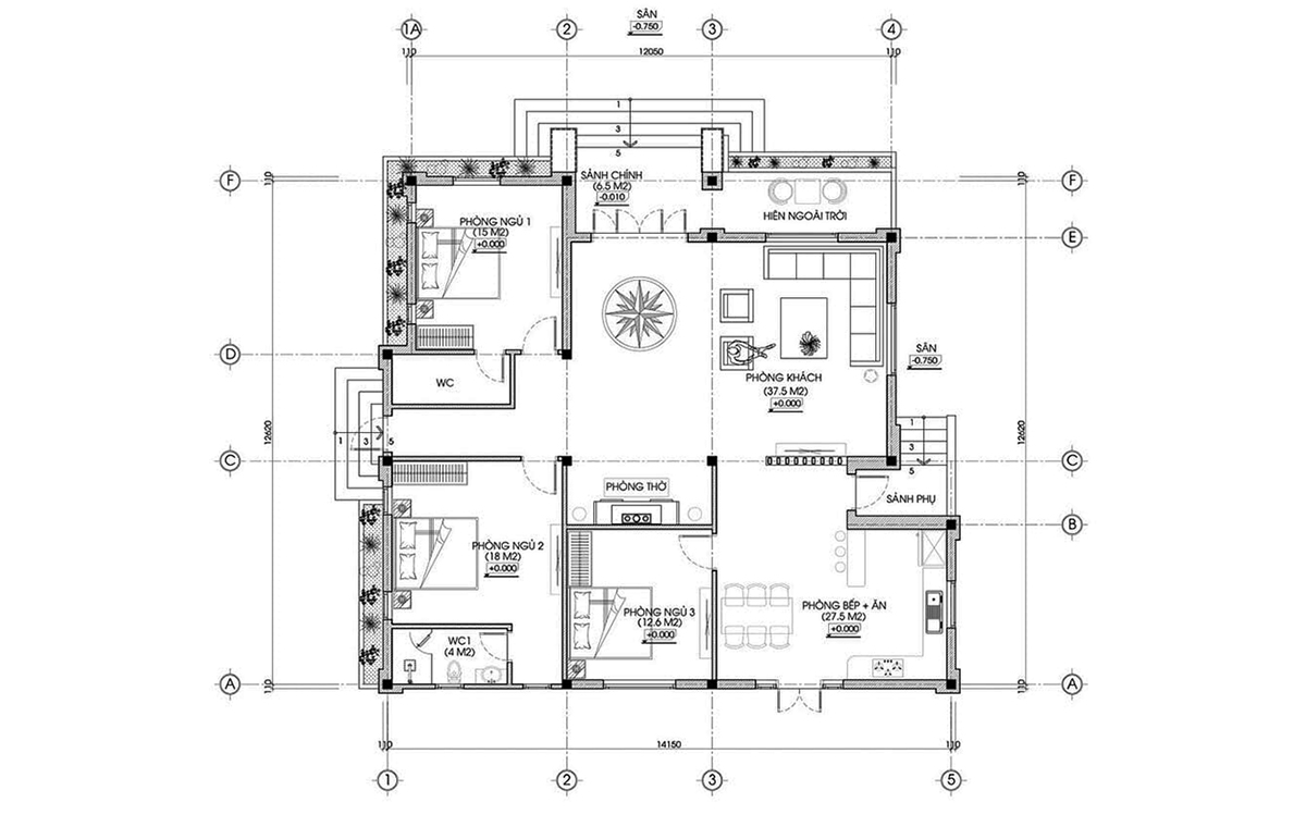
2.3 Mẫu biệt thự 1 tầng 3 phòng ngủ kiểu Pháp

Biệt thự kiểu Pháp nổi bật với những chi tiết phào chỉ tinh tế, hệ cột trụ vững chãi và bố cục cân đối. Đây là phong cách thể hiện sự sang trọng, cầu kỳ, thích hợp cho gia chủ yêu thích vẻ đẹp cổ điển. Không gian bên trong thường được thiết kế rộng rãi, gắn liền với sự tiện nghi. Lựa chọn biệt thự kiểu Pháp giúp khẳng định đẳng cấp và gu thẩm mỹ tinh tế.

Bản vẽ biệt thự 1 tầng 3 phòng ngủ kiểu Pháp sở hữu kiến trúc tinh tế với hiên trước, sảnh chính và sảnh phụ, kết hợp phòng khách, phòng thờ, 3 phòng ngủ, bếp, tắm và 2 WC. Thiết kế mang đậm vẻ sang trọng, hài hòa giữa công năng hiện đại và nét cổ điển thanh lịch.
Ưu điểm:
Kiến trúc Pháp sang trọng, tạo điểm nhấn bề thế.
Có hiên và 2 sảnh giúp ngôi nhà thông thoáng, giao thông thuận tiện.
Công năng khoa học, đủ cho gia đình 4–6 người.
Không gian 1 tầng phù hợp nhiều lứa tuổi.
Nhược điểm:
Chi phí xây dựng và hoàn thiện cao do nhiều chi tiết trang trí.
Yêu cầu tay nghề thợ thi công tinh xảo, dễ phát sinh chi phí.
Diện tích đất cần đủ rộng để giữ tỷ lệ cân đối.
Lời khuyên:
Gia chủ nên chọn mẫu này nếu muốn thể hiện đẳng cấp, đồng thời yêu thích phong cách cổ điển pha hiện đại. Nên tính toán kỹ chi phí, chọn đơn vị thiết kế – thi công uy tín để đảm bảo thẩm mỹ, công năng và độ bền vững của biệt thự kiểu Pháp.
2.4 Mẫu biệt thự 1 tầng 3 phòng ngủ mái bằng

Phong cách mái bằng mang hơi hướng hiện đại, tối giản và mạnh mẽ. Với thiết kế vuông vức, gọn gàng, ngôi nhà tạo cảm giác trẻ trung và năng động. Gia chủ có thể tận dụng phần mái để làm sân thượng, sân phơi hoặc khu vườn xanh mát. Đây là giải pháp tối ưu chi phí, phù hợp với các gia đình trẻ tại thành phố.

Bản vẽ biệt thự 1 tầng 3 phòng ngủ mái bằng được bố trí hợp lý gồm phòng khách, 3 phòng ngủ, bếp, 1 phòng tắm giặt và 2 WC. Thiết kế mang phong cách hiện đại, tối giản, chú trọng công năng, tạo không gian gọn gàng, tiện nghi và phù hợp nhiều gia đình Việt.
Ưu điểm:
Kiến trúc vuông vức, hiện đại, dễ thi công và tiết kiệm chi phí.
Mái bằng chắc chắn, có thể tận dụng làm sân thượng, phơi đồ hoặc trồng cây xanh.
Công năng khoa học, đầy đủ cho gia đình 4–6 người.
Phòng tắm kết hợp giặt gọn gàng, tiết kiệm diện tích.
Nhược điểm:
Chống nóng và thoát nước kém hơn mái dốc.
Nếu chống thấm không kỹ, dễ gây thấm dột.
Hình khối đơn giản, đôi khi thiếu điểm nhấn thẩm mỹ.
Lời khuyên:
Gia chủ nên chọn mẫu này khi muốn không gian hiện đại, tiết kiệm chi phí và có nhu cầu sử dụng mái bằng linh hoạt. Nên đầu tư vật liệu chống nóng, chống thấm chất lượng, đồng thời kết hợp tiểu cảnh sân vườn hoặc ban công xanh để tăng tính thoáng mát và thẩm mỹ.
2.5 Mẫu biệt thự 1 tầng 3 phòng ngủ chữ L

Thiết kế chữ L tạo nên sự linh hoạt trong bố trí công năng, đồng thời mở ra khoảng sân thoáng đãng cho gia đình. Ưu điểm của kiểu nhà này là tận dụng tối đa ánh sáng tự nhiên và hướng gió. Khu vực sân có thể làm nơi để xe, tiểu cảnh hoặc sân chơi cho trẻ nhỏ. Đây là lựa chọn hợp lý cho những khu đất vuông hoặc có chiều ngang rộng.

Bản vẽ biệt thự 1 tầng 3 phòng ngủ chữ L gồm phòng khách, phòng thờ, 3 phòng ngủ, bếp và 2 WC. Thiết kế chữ L tạo không gian thoáng, dễ phân chia công năng, phù hợp gia đình 4–6 người. Kiểu dáng linh hoạt, thuận tiện bố trí sân vườn, gara hoặc khu vui chơi ngoài trời.
Ưu điểm:
Kiến trúc chữ L độc đáo, hiện đại và dễ tạo điểm nhấn.
Công năng phân tách rõ ràng giữa các khu vực sinh hoạt.
Tận dụng góc chữ L để làm sân, vườn hoặc gara ô tô.
Không gian thoáng đãng, phù hợp nhiều lứa tuổi.
Nhược điểm:
Bố trí phòng thờ cần cân nhắc tránh phạm phong thủy ở góc chữ L.
Hình khối dễ tạo cảm giác khuyết góc, cần xử lý bằng cảnh quan.
Tốn diện tích đất hơn so với nhà vuông vắn.
Lời khuyên:
Gia chủ nên chọn mẫu này nếu có quỹ đất rộng, thích thiết kế mở và muốn kết hợp sân vườn hoặc gara. Cần chú trọng phong thủy trong cách đặt phòng thờ và bố trí cảnh quan để hóa giải thế khuyết góc, đồng thời tăng tính cân đối, hài hòa cho ngôi nhà.
2.6 Mẫu biệt thự vườn 1 tầng 3 phòng ngủ

Điểm nhấn của mẫu biệt thự vườn là không gian mở, gần gũi với thiên nhiên. Sân vườn rộng rãi kết hợp tiểu cảnh, hồ cá hoặc chòi nghỉ tạo cảm giác thư giãn. Bên trong, các phòng được bố trí hợp lý để tận dụng ánh sáng và gió tự nhiên. Đây là lựa chọn lý tưởng cho những ai yêu thích phong cách sống xanh, an yên.

Bản vẽ biệt thự vườn 1 tầng 3 phòng ngủ gồm sảnh chính, phòng khách, phòng thờ, 3 phòng ngủ, bếp và 2 WC. Thiết kế chú trọng sự gắn kết với thiên nhiên, không gian rộng mở, thoáng mát, thích hợp cho gia đình yêu thích lối sống xanh, yên bình và gần gũi sân vườn.
Ưu điểm:
Không gian thoáng đãng, gắn kết với thiên nhiên.
Công năng đầy đủ, phù hợp gia đình 4–6 người.
Phòng khách kết hợp tối ưu diện tích, vẫn tạo sự ấm cúng.
Có sân vườn giúp thư giãn, tăng tính thẩm mỹ và phong thủy.
Nhược điểm:
Cần diện tích đất rộng để phát huy hết ưu thế.
Khó phù hợp tại khu vực đô thị đông đúc, đất hẹp.
Chi phí cảnh quan, chăm sóc sân vườn tốn kém và mất công bảo dưỡng.
Lời khuyên:
Gia chủ nên chọn mẫu này nếu sở hữu đất vườn rộng, muốn không gian sống chan hòa cùng thiên nhiên. Nên đầu tư thiết kế cảnh quan hợp lý, chọn cây xanh dễ chăm sóc và sắp xếp phòng thờ ở vị trí trang nghiêm để giữ sự cân đối giữa thẩm mỹ và phong thủy.
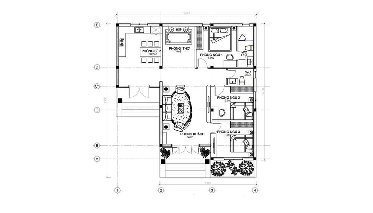
2.7 Mẫu biệt thự 1 tầng 3 phòng ngủ tân cổ điển

Biệt thự tân cổ điển kết hợp nét đẹp tinh tế của cổ điển với sự gọn gàng, hiện đại. Các chi tiết phào chỉ mềm mại, màu sắc nhã nhặn tạo nên vẻ đẹp thanh lịch. Không gian nội thất thường rộng thoáng, sang trọng nhưng không quá cầu kỳ. Đây là phong cách được nhiều gia đình yêu thích bởi tính thẩm mỹ và sự bền vững theo thời gian.

Bản vẽ biệt thự 1 tầng 3 phòng ngủ tân cổ điển gồm phòng khách, phòng thờ, 3 phòng ngủ, bếp và 1 WC. Thiết kế kết hợp nét đẹp cổ điển sang trọng với sự tinh giản hiện đại, mang đến không gian tiện nghi, thẩm mỹ cao, phù hợp gia chủ ưa chuộng phong cách quý phái nhưng vẫn thực tế.
Ưu điểm:
Kiến trúc tân cổ điển sang trọng, bền vững theo thời gian.
Công năng đầy đủ, gọn gàng cho gia đình 4–5 người.
Không gian 1 tầng tiện lợi, dễ di chuyển cho mọi lứa tuổi.
Giúp nâng tầm giá trị và thể hiện gu thẩm mỹ gia chủ.
Nhược điểm:
Chi phí xây dựng, hoàn thiện cao do nhiều chi tiết phào chỉ.
Một WC có thể gây bất tiện khi gia đình đông người.
Yêu cầu thợ thi công có tay nghề, dễ phát sinh chi phí nếu làm sai.
Lời khuyên:
Gia chủ nên chọn mẫu này nếu muốn không gian sống sang trọng, tinh tế và thể hiện đẳng cấp. Tuy nhiên, nên cân nhắc mở rộng thêm WC để tiện sinh hoạt và lựa chọn đơn vị thiết kế – thi công uy tín nhằm đảm bảo chuẩn phong cách tân cổ điển.
2.8 Mẫu biệt thự 1 tầng 3 phòng ngủ phong cách châu Âu

Mẫu biệt thự châu Âu 1 tầng mang đến sự tinh tế với hình khối mạnh mẽ và gam màu sáng. Cửa kính lớn giúp ngôi nhà luôn tràn ngập ánh sáng tự nhiên. Nội thất chú trọng sự sang trọng, tiện nghi và tối ưu không gian. Đây là phong cách phù hợp cho gia đình muốn sở hữu không gian sống chuẩn quốc tế.

Bản vẽ biệt thự 1 tầng 3 phòng ngủ Châu Âu gồm phòng khách, phòng thờ, 3 phòng ngủ, bếp và 1 WC. Thiết kế mang phong cách châu Âu hiện đại pha cổ điển, chú trọng sự tinh tế trong hình khối, đối xứng và ánh sáng, tạo nên không gian sang trọng, tiện nghi và bền vững theo thời gian.
Ưu điểm:
Kiến trúc châu Âu sang trọng, tinh tế, giàu tính thẩm mỹ.
Công năng đầy đủ, gọn gàng cho gia đình 4–5 người.
Không gian 1 tầng thuận tiện sinh hoạt cho mọi lứa tuổi.
Tăng giá trị và khẳng định đẳng cấp gia chủ.
Nhược điểm:
Chi phí xây dựng, trang trí cao do yêu cầu vật liệu và chi tiết cầu kỳ.
Một WC dễ gây bất tiện khi gia đình đông người hoặc có khách.
Đòi hỏi tay nghề thi công cao để đạt chuẩn kiến trúc châu Âu.
Lời khuyên:
Gia chủ nên chọn mẫu này nếu muốn một không gian sống sang trọng, tinh tế và mang tính biểu tượng. Tuy nhiên, nên cân nhắc bổ sung thêm WC để thuận tiện hơn, đồng thời lựa chọn vật liệu chất lượng và đơn vị thiết kế uy tín để giữ chuẩn phong cách châu Âu.
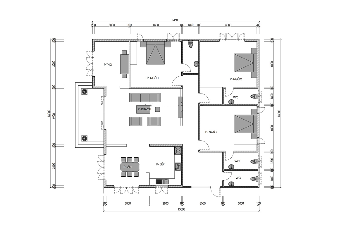
2.9 Mẫu biệt thự 1 tầng 3 phòng ngủ có phòng thờ

Không gian phòng thờ được bố trí riêng biệt, trang nghiêm nhưng vẫn hài hòa với tổng thể. Đây là bản vẽ biệt thự 1 tầng 3 phòng ngủ được nhiều gia đình Việt lựa chọn để đảm bảo yếu tố tâm linh và phong thủy. Cách sắp xếp khoa học giúp vừa giữ được sự tôn nghiêm, vừa thuận tiện cho sinh hoạt. Biệt thự kiểu này đặc biệt phổ biến tại vùng nông thôn và ngoại ô.

Bản vẽ biệt thự 1 tầng 3 phòng ngủ có phòng thờ gồm phòng khách, phòng thờ, 3 phòng ngủ, bếp và 1 WC. Thiết kế cân bằng giữa công năng hiện đại và không gian truyền thống, mang đến sự tiện nghi cho sinh hoạt gia đình, đồng thời giữ gìn nét đẹp tâm linh, phù hợp văn hóa Việt.
Ưu điểm:
Có phòng thờ riêng, đảm bảo sự trang nghiêm, thuận tiện cho việc thờ cúng.
Công năng gọn gàng, đáp ứng nhu cầu cơ bản của gia đình 4–5 người.
Không gian 1 tầng tiện lợi cho người già và trẻ nhỏ.
Thiết kế hài hòa giữa sinh hoạt và yếu tố phong thủy.
Nhược điểm:
Chỉ có 1 WC, dễ gây bất tiện khi gia đình đông người hoặc có khách.
Diện tích phòng thờ cần bố trí hợp lý để không ảnh hưởng đến công năng khác.
Khó mở rộng thêm không gian nếu quỹ đất hạn chế.
Lời khuyên:
Gia chủ nên chọn mẫu này nếu coi trọng yếu tố tâm linh và muốn giữ truyền thống trong không gian sống. Nên cân nhắc mở thêm WC để tăng sự tiện nghi, đồng thời tham khảo phong thủy khi đặt phòng thờ để đảm bảo sự cân đối và vượng khí cho ngôi nhà.
2.10 Mẫu biệt thự 1 tầng 3 phòng ngủ kiểu chữ U
Thiết kế chữ U tạo khoảng sân trung tâm rộng thoáng, phù hợp làm sân vườn hoặc chỗ vui chơi. Không gian trong nhà được bố trí đối xứng, tạo sự cân bằng và sang trọng. Kiểu nhà này mang lại sự gắn kết giữa thiên nhiên và con người. Đây là lựa chọn phù hợp với lô đất rộng, vuông vức.


Bản vẽ biệt thự 1 tầng 3 phòng ngủ kiểu chữ U gồm phòng khách kết hợp phòng thờ, thêm một phòng thờ riêng, 3 phòng ngủ, bếp và 2 WC. Thiết kế chữ U tạo khoảng sân trung tâm thông thoáng, giúp lấy sáng – gió tự nhiên, đồng thời mang lại không gian sống mở, gần gũi thiên nhiên.
Ưu điểm:
Kiểu chữ U độc đáo, tạo khoảng sân giữa thoáng mát, lý tưởng làm tiểu cảnh.
Phân chia công năng rõ ràng, tăng tính riêng tư cho các phòng.
Có hai không gian thờ, đảm bảo sự trang nghiêm và linh hoạt bố trí.
Phù hợp gia đình yêu thích không gian mở, hài hòa thiên nhiên.
Nhược điểm:
Cần diện tích đất rộng để đảm bảo cân đối hình khối chữ U.
Chỉ có 1 WC, dễ gây bất tiện khi gia đình đông người.
Thiết kế phức tạp, chi phí xây dựng cao hơn nhà vuông truyền thống.
Lời khuyên:
Gia chủ nên chọn mẫu chữ U nếu có quỹ đất lớn, muốn tận dụng sân giữa làm vườn hoặc nơi sinh hoạt ngoài trời. Nên cân nhắc bổ sung thêm WC để thuận tiện sinh hoạt và chú trọng phong thủy khi đặt phòng thờ, đảm bảo sự cân đối và trang nghiêm.
3. Lưu ý khi thiết kế & xây dựng biệt thự 1 tầng 3 phòng ngủ
3.1 Chọn đơn vị thiết kế, thi công uy tín
Đơn vị thiết kế và thi công uy tín sẽ đảm bảo ngôi nhà của bạn được thực hiện đúng theo bản vẽ, an toàn và đạt thẩm mỹ cao. Họ có kinh nghiệm xử lý các tình huống phát sinh, giúp tiết kiệm thời gian và chi phí. Đặc biệt, một đội ngũ chuyên nghiệp còn đưa ra nhiều ý tưởng sáng tạo, tối ưu không gian sống cho gia đình.

3.2 Chuẩn bị đầy đủ giấy tờ pháp lý
Trước khi khởi công, gia chủ cần hoàn tất các thủ tục pháp lý như giấy phép xây dựng, hồ sơ thiết kế, chứng nhận quyền sử dụng đất. Việc chuẩn bị kỹ càng sẽ giúp quá trình xây dựng diễn ra thuận lợi, tránh bị gián đoạn. Đây cũng là cơ sở quan trọng để bảo vệ quyền lợi của gia chủ trước các tranh chấp sau này.
3.3 Giám sát quá trình thi công chặt chẽ
Dù đã chọn đơn vị uy tín, gia chủ vẫn cần theo dõi sát sao tiến độ và chất lượng công trình. Việc giám sát thường xuyên giúp phát hiện sớm sai sót, tránh lãng phí vật tư hoặc chậm tiến độ. Điều này cũng đảm bảo ngôi nhà hoàn thiện đúng ý tưởng ban đầu và an toàn khi đưa vào sử dụng.
4. Báo giá thiết kế và thi công biệt thự 1 tầng 3 phòng ngủ
Chi phí xây dựng mẫu biệt thự 1 tầng 3 phòng ngủ phụ thuộc vào phong cách thiết kế, giá thiết kế biệt thự và quy mô diện tích kèm theo đó là vật liệu hoàn thiện mà gia chủ lựa chọn. Hiện tại, đơn giá thi công trọn gói thường dao động trong các mức sau:
- Gói tiêu chuẩn: từ 5.000.000 – 5.600.000 VNĐ/m², phù hợp với vật liệu phổ thông, đảm bảo công năng cơ bản.
- Gói tầm trung: khoảng 5.700.000 – 6.100.000 VNĐ/m², sử dụng vật liệu tốt hơn, chú trọng tính thẩm mỹ và độ bền.
- Gói cao cấp: dao động 6.200.000 – 7.100.000 VNĐ/m², hướng đến sự sang trọng, cao cấp và tối ưu chất lượng lâu dài.

Một số điều cần biết:
- Mức giá trên chỉ mang tính tham khảo, có thể thay đổi tùy khu vực, diện tích xây dựng và chủng loại vật tư.
- Chủ đầu tư được hỗ trợ miễn phí giấy phép xây dựng (với chi phí dưới 10 triệu đồng).
- Khi ký hợp đồng thi công trọn gói, khách hàng được tặng hồ sơ thiết kế hoàn chỉnh gồm kiến trúc, kết cấu, điện nước và nội ngoại thất.
- Đơn giá thi công không bao gồm nội thất gỗ liền tường.
- Để có con số chính xác nhất, kiến trúc sư sẽ dựa trên bản vẽ thiết kế chi tiết để lập dự toán. Trên thực tế, chi phí có thể dao động tăng hoặc giảm khoảng 10–20% so với báo giá trung bình.
5. Thiết Kế Nhà 365 – đơn vị uy tín thiết kế và thi công biệt thự 1 tầng 3 phòng ngủ
Việc tìm kiếm một đơn vị thiết kế và thi công uy tín chính là chìa khóa giúp gia đình sở hữu căn biệt thự 1 tầng 3 phòng ngủ hoàn hảo cả về công năng lẫn thẩm mỹ. Trong số các công ty hiện nay, Thiết Kế Nhà 365 được biết đến là thương hiệu hàng đầu trong lĩnh vực thiết kế – xây dựng, đã đồng hành cùng hàng nghìn công trình lớn nhỏ trên toàn quốc.

Với đội ngũ kiến trúc sư giàu kinh nghiệm, sáng tạo và luôn cập nhật xu hướng mới, Thiết Kế Nhà 365 mang đến những giải pháp thiết kế biệt thự tối ưu, phù hợp với nhu cầu thực tế và ngân sách của từng khách hàng. Không chỉ dừng lại ở việc lên ý tưởng, đơn vị còn trực tiếp triển khai thi công, đảm bảo tính đồng bộ từ bản vẽ đến thực tế.
Một trong những điểm mạnh của Thiết Kế Nhà 365 là quy trình làm việc chuyên nghiệp, minh bạch và rõ ràng. Tất cả chi phí, vật liệu, tiến độ đều được công khai ngay từ đầu, giúp khách hàng chủ động và yên tâm tuyệt đối. Ngoài ra, công trình sau khi hoàn thiện còn được bảo hành dài hạn, khẳng định sự cam kết về chất lượng.
Lựa chọn Thiết Kế Nhà 365, bạn không chỉ nhận được một mẫu biệt thự 1 tầng 3 phòng ngủ đúng như mong muốn mà còn có trải nghiệm xây dựng thuận lợi, hạn chế tối đa rủi ro phát sinh. Đây chính là lý do ngày càng nhiều gia đình tin tưởng và đồng hành cùng Thiết Kế Nhà 365 trong hành trình xây dựng tổ ấm mơ ước.
6. Câu hỏi thường gặp (FAQ)
1. Chi phí xây biệt thự 1 tầng 3 phòng ngủ có cao không?
- Chi phí dao động từ 5.000.000 – 7.000.000 VNĐ/m², tùy phong cách và vật liệu sử dụng.
2. Khi xây biệt thự 1 tầng 3 phòng ngủ cần lưu ý phong thủy gì?
- Cần chú ý hướng nhà, vị trí phòng thờ và cách bố trí các phòng để đón tài lộc, tránh xung khắc.
3. Có thể thêm gara hoặc hồ bơi trong thiết kế không?
- Hoàn toàn được, miễn là diện tích đất đủ rộng và có bản vẽ tối ưu.
4. Thời gian hoàn thiện biệt thự 1 tầng 3 phòng ngủ mất bao lâu?
- Trung bình từ 6 – 8 tháng, tùy độ phức tạp của thiết kế và vật liệu.
5. Có nên thuê thiết kế riêng hay mua bản vẽ có sẵn?
Nếu muốn tiết kiệm chi phí, có thể mua bản vẽ sẵn, nhưng thiết kế riêng sẽ tối ưu công năng và phong thủy hơn.
Mẫu biệt thự 1 tầng 3 phòng ngủ không chỉ mang đến không gian sống tiện nghi, ấm cúng mà còn thể hiện gu thẩm mỹ tinh tế của gia chủ. Để sở hữu một ngôi nhà đẹp, bền vững và hợp phong thủy, việc lựa chọn thiết kế phù hợp và đơn vị thi công uy tín là vô cùng quan trọng. Nếu bạn đang tìm kiếm giải pháp thi công biệt thự trọn gói, chuyên nghiệp và tiết kiệm, Thiết Kế Nhà 365 sẽ là lựa chọn đáng tin cậy để biến ước mơ về tổ ấm lý tưởng thành hiện thực.









