Trong bối cảnh ngày càng nhiều gia đình sở hữu ô tô, nhu cầu tìm mẫu biệt thự 2 tầng có gara ô tô trở thành xu hướng tất yếu. Không chỉ đáp ứng công năng bảo vệ xe, gara còn góp phần tối ưu diện tích đất, tăng tính tiện nghi và nâng cao giá trị thẩm mỹ cho ngôi nhà. Với sự đa dạng về phong cách kiến trúc, gia chủ có thể dễ dàng lựa chọn mẫu thiết kế biệt thự phù hợp nhu cầu, từ hiện đại trẻ trung cho đến tân cổ điển sang trọng.

Sau đây, hãy cùng Thiết Kế Nhà 365 khám phá những mẫu biệt thự 2 tầng có gara ô tô đẹp nhất, kèm những lưu ý quan trọng trong thiết kế và thi công.
- 1. Tại sao mẫu biệt thự 2 tầng có gara ô tô được ưa chuộng?
- 2. Các mẫu biệt thự 2 tầng có gara ô tô phổ biến
- 3. Lưu ý khi thiết kế biệt thự 2 tầng có gara ô tô
- 4. Báo giá thiết kế và thi công mẫu biệt thự 2 tầng có gara ô tô
- 5. Thiết Kế Nhà 365 – Đơn vị uy tín thiết kế và thi công
- 6. Câu hỏi thường gặp
1. Tại sao mẫu biệt thự 2 tầng có gara ô tô được ưa chuộng?
So với các mẫu nhà truyền thống, biệt thự 2 tầng có gara ô tô mang lại nhiều giá trị vượt trội:
- Tiện nghi và an toàn: Gara liền nhà giúp bảo vệ xe khỏi mưa nắng, bụi bẩn và giảm rủi ro mất cắp.
- Tối ưu diện tích: Với những mảnh đất vừa và nhỏ, việc tích hợp gara trong biệt thự giúp tiết kiệm không gian đáng kể.
- Tăng thẩm mỹ: Gara được thiết kế khéo léo tạo điểm nhấn hiện đại, nâng tầm kiến trúc biệt thự.
- Gia tăng giá trị: Những căn biệt thự có gara thường có giá trị bất động sản cao hơn, dễ bán hoặc cho thuê.
Tham khảo: 8+ mẫu biệt thự 2 tầng kiểu Pháp ấn tượng kèm bản vẽ mới nhất 2025
2. Các mẫu biệt thự 2 tầng có gara ô tô phổ biến
2.1 Mẫu biệt thự 2 tầng có gara phong cách hiện đại
Mẫu biệt thự hiện đại nổi bật với thiết kế hình khối mạnh mẽ, đường nét gọn gàng và vật liệu kính tạo sự thông thoáng. Gara thường được bố trí ở tầng trệt, liền kề hoặc kết hợp trong khối nhà để thuận tiện di chuyển. Không gian sống nhờ vậy trở nên tiện nghi, phù hợp với nhịp sống năng động.

Điểm mạnh của biệt thự hiện đại có gara là tính ứng dụng cao và dễ dàng tùy biến diện tích. Chi phí xây dựng hợp lý cũng là yếu tố khiến nhiều gia đình trẻ lựa chọn. Đây là phong cách vừa đảm bảo công năng, vừa đem lại vẻ đẹp thời thượng.

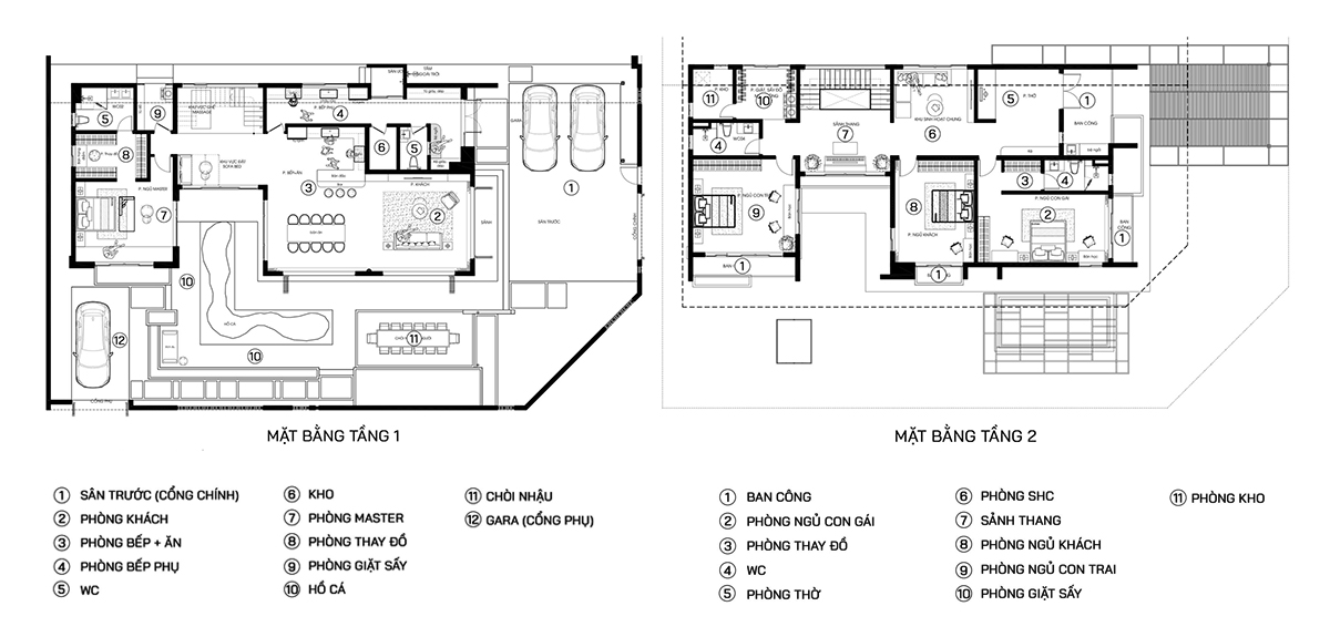
Bản vẽ biệt thự 2 tầng có gara phong cách hiện đại gồm đầy đủ công năng: Mặt bằng tầng trệt có gara, sân vườn, phòng khách, phòng bếp, phòng ăn, phòng ngủ và WC; Mặt bằng tầng 1 có ban công, phòng thờ, sinh hoạt chung, nhiều phòng ngủ, giặt phơi và WC. Thiết kế tối ưu, mang lại không gian sống tiện nghi, đẳng cấp.
Ưu điểm:
Gara tiện lợi, an toàn cho phương tiện.
Phân chia công năng hợp lý, tầng dưới cho tiếp khách – sinh hoạt, tầng trên riêng tư.
Có sân vườn và ban công thoáng mát, phù hợp lối sống hiện đại.
Đảm bảo nhiều không gian nghỉ ngơi với 4 phòng ngủ.
Nhược điểm:
Chi phí xây dựng cao hơn nhà 1 tầng.
Yêu cầu diện tích đất rộng để bố trí gara và sân vườn.
Việc vệ sinh, bảo trì định kỳ cho không gian lớn tốn nhiều công sức.
2.2 Mẫu biệt thự 2 tầng có gara mái Nhật
Biệt thự mái Nhật gây ấn tượng bởi hệ mái dốc thoải, nhẹ nhàng nhưng vẫn vững chắc. Gara thường được khéo léo bố trí dưới mái phụ, vừa đảm bảo sự tiện dụng vừa giữ được tính thẩm mỹ tổng thể. Sự tinh tế trong thiết kế này khiến công trình trở nên thanh thoát và hài hòa.

Ưu điểm lớn của biệt thự mái Nhật có gara là khả năng chống nóng, thoát nước tốt, phù hợp với khí hậu nhiệt đới. Mẫu này phổ biến ở cả thành thị lẫn nông thôn vì tính ứng dụng cao. Gia chủ vừa có một không gian sống thoải mái, vừa giữ được nét kiến trúc gần gũi.

Bản vẽ biệt thự 2 tầng có gara mái Nhật mang đến không gian sống tiện nghi và sang trọng. Mặt bằng tầng trệt gồm gara, hồ cá, phòng master, phòng thay đồ, phòng khách, bếp, WC; mặt bằng tầng 1 được bố trí có phòng thờ, phòng sinh hoạt chung, 3 phòng ngủ, phòng giặt phơi, kho và WC, đáp ứng nhu cầu sinh hoạt gia đình đông thành viên.
Ưu điểm:
Kiểu mái Nhật sang trọng, chống nóng, thoát nước tốt.
Gara rộng rãi, thuận tiện để xe.
Phân chia công năng rõ ràng, hài hòa giữa sinh hoạt chung và riêng tư.
Tích hợp phòng kho và giặt phơi tiện lợi, gọn gàng.
Nhược điểm:
Chi phí xây dựng và hoàn thiện khá cao.
Cần diện tích đất rộng để đảm bảo thẩm mỹ tổng thể.
Mái Nhật thi công phức tạp, đòi hỏi thợ tay nghề cao.
Lời khuyên: Gia chủ nên lựa chọn mẫu này nếu yêu thích kiến trúc hiện đại pha Á Đông, có ngân sách ổn định và quỹ đất rộng. Nên ưu tiên vật liệu bền chắc, tối ưu hệ thống cách nhiệt, thông gió để nâng cao tuổi thọ công trình và tạo sự thoải mái lâu dài cho cả gia đình.
2.3 Mẫu biệt thự 2 tầng có gara mái Thái
Mái Thái có độ dốc lớn, tạo hình cân đối và sang trọng, là điểm nhấn đặc trưng của kiến trúc này. Gara thường đặt ở tầng trệt, gắn với hiên hoặc phòng khách để thuận tiện cho sinh hoạt. Thiết kế kết hợp giữa tính thẩm mỹ và sự tiện nghi trong sử dụng.

Sự hài hòa giữa mái Thái và gara mang lại không gian gần gũi, phù hợp nhiều diện tích đất khác nhau. Đây là mẫu biệt thự dễ được lòng gia chủ nhờ vẻ đẹp thanh thoát. Đồng thời, mái Thái còn giúp chống nóng, chống thấm hiệu quả cho toàn bộ công trình.

Bản vẽ biệt thự 2 tầng có gara mái Thái nổi bật với vẻ đẹp sang trọng, mái dốc thanh thoát giúp chống nóng và thoát nước hiệu quả. Mặt bằng tầng trệt bố trí gara, sảnh chính, sảnh phụ, phòng khách, 1 phòng ngủ, bếp, 2 phòng WC; mặt bằng tầng 1 gồm ban công, phòng thờ, 2 phòng ngủ, 1 phòng WC đáp ứng tiện nghi cho gia đình đông thành viên.
Ưu điểm:
Kiểu mái Thái sang trọng, hợp khí hậu Việt Nam.
Gara rộng, thuận tiện để xe.
Công năng hợp lý, phân chia rõ ràng giữa sinh hoạt chung và riêng.
Ban công thoáng, tăng cường ánh sáng và gió tự nhiên.
Nhược điểm:
Chi phí thi công và vật liệu mái Thái khá cao.
Yêu cầu diện tích đất rộng để cân đối tổng thể.
Thời gian xây dựng kéo dài hơn mái bằng.
Lời khuyên: Gia chủ nên chọn mẫu này khi mong muốn một không gian sống tiện nghi, thẩm mỹ cao và có ngân sách dư giả. Nên kết hợp sân vườn, cây xanh để tạo sự thoáng mát, đồng thời chú trọng chọn vật liệu chất lượng nhằm đảm bảo độ bền đẹp lâu dài.
2.4 Mẫu biệt thự 2 tầng có gara mái bằng
Kiến trúc mái bằng đem lại cảm giác trẻ trung, hiện đại và vững chãi. Gara thường bố trí liền khối với tầng một, tận dụng được tối đa diện tích sử dụng. Thiết kế này phù hợp với những ai ưa chuộng phong cách tối giản.

Đặc biệt, mái bằng có thể biến thành sân thượng, khu vườn hoặc không gian sinh hoạt chung cho gia đình. Đây là điểm cộng lớn về công năng sử dụng. Biệt thự 2 tầng mái bằng có gara vì vậy được nhiều gia chủ trẻ lựa chọn.

Bản vẽ mẫu biệt thự 2 tầng có gara mái bằng mang đậm phong cách hiện đại, tối giản và vuông vức. Mặt bằng tầng trệt gồm gara, hồ bơi, phòng khách, bếp, 2 phòng WC; Mặt bằng tầng 1 có ban công, phòng thờ, 3 phòng ngủ, 2 phòng WC. Thiết kế chú trọng công năng khoa học, phù hợp gia đình trẻ yêu thích không gian hiện đại.
Ưu điểm:
Mái bằng hiện đại, tối giản, dễ kết hợp sân thượng.
Công năng hợp lý, phù hợp gia đình đông thành viên.
Gara rộng rãi, thuận tiện để xe.
Dễ dàng lắp đặt hệ thống năng lượng mặt trời.
Nhược điểm:
Khả năng thoát nước mái kém hơn mái dốc.
Hấp thụ nhiệt nhiều, dễ nóng vào mùa hè.
Cần bảo dưỡng thường xuyên để tránh thấm dột.
Lời khuyên: Gia chủ nên chọn mẫu này nếu ưa chuộng phong cách hiện đại, mạnh mẽ và có kế hoạch sử dụng mái bằng làm sân thượng hoặc trồng cây xanh. Nên đầu tư hệ thống chống thấm, chống nóng chất lượng để đảm bảo sự bền vững và thoải mái lâu dài cho ngôi nhà.
2.5 Mẫu biệt thự 2 tầng có gara và sân vườn
Mẫu thiết kế này chú trọng sự gắn kết với thiên nhiên, kết hợp gara với mảng xanh xung quanh. Gara thường được bố trí cạnh sân trước hoặc liền kề vườn, tạo sự thoáng mát và thuận tiện. Không gian tổng thể vì vậy vừa đẹp mắt, vừa hài hòa.

Ưu điểm lớn nhất của biệt thự có gara và sân vườn là mang lại sự thư giãn, cân bằng cho cuộc sống. Đây là lựa chọn lý tưởng cho gia đình có diện tích đất rộng. Không chỉ tiện nghi, mẫu này còn thể hiện lối sống gần gũi thiên nhiên của gia chủ.

Bản vẽ biệt thự 2 tầng có gara và sân vườn mang lại không gian sống tiện nghi, hài hòa thiên nhiên. Mặt bằng tầng trệt gồm sân trước, sân vườn, chòi nghỉ, gara, phòng khách, phòng bếp + ăn, 1 phòng ngủ, phòng kho, phòng WC, khu uống trà, sân sau; Mặt bằng tầng 1 có sân thượng, ban công, phòng master, phòng thờ, 2 phòng ngủ, phòng thay đồ, phòng WC. Sân vườn xanh mát giúp điều hòa không khí, nâng cao chất lượng cuộc sống.
Ưu điểm:
Gara tiện lợi, đáp ứng nhu cầu để xe.
Sân vườn thoáng đãng, tạo không gian nghỉ ngơi thư giãn.
Công năng hợp lý, đầy đủ tiện ích.
Ban công và sân vườn tăng cường ánh sáng, gió tự nhiên.
Nhược điểm:
Cần quỹ đất rộng mới đảm bảo thẩm mỹ.
Chi phí thiết kế, thi công và chăm sóc sân vườn khá cao.
Yêu cầu bảo dưỡng thường xuyên để duy trì cảnh quan.
Lời khuyên: Gia chủ nên lựa chọn mẫu này nếu sở hữu mảnh đất rộng và yêu thích không gian sống xanh. Nên bố trí cây cối, tiểu cảnh hợp phong thủy để vừa tăng tính thẩm mỹ vừa mang lại vượng khí, đồng thời đầu tư hệ thống chống thấm, thoát nước tốt để công trình bền vững.
2.6 Mẫu biệt thự 2 tầng có gara 2 mặt tiền
Mẫu biệt thự 2 tầng có gara sở hữu mặt tiền thường nằm ở vị trí góc phố, có lợi thế về ánh sáng và gió. Gara có thể bố trí ở một trong hai mặt tiền để tối ưu lối ra vào. Thiết kế này giúp không gian trở nên tiện nghi và nổi bật.

Sở hữu biệt thự 2 mặt tiền có gara không chỉ tiện lợi trong sinh hoạt mà còn tăng tính sang trọng cho ngôi nhà. Mẫu này thường được các gia chủ chú trọng để khẳng định phong cách và địa vị. Kiến trúc bề thế cũng góp phần nâng cao giá trị bất động sản.

Bản vẽ mẫu biệt thự 2 tầng có gara 2 mặt tiền mang phong cách sang trọng, nổi bật nhờ thiết kế mở, tận dụng tối đa ánh sáng và gió trời. Mặt bằng tầng trệt gồm gara, phòng khách, phòng bếp + ăn, 1 phòng thay đồ, phòng WC 01; Mặt bằng tầng 1 gồm phòng thờ, 2 phòng ngủ, phòng giặt phơi, 2 phòng WC.
Ưu điểm:
2 mặt tiền thoáng đãng, kiến trúc bề thế, đẳng cấp.
Gara tiện lợi, đáp ứng nhu cầu để xe.
Công năng đa dạng, có chòi nghỉ và khu uống trà thư giãn.
Phòng master, thay đồ, sân thượng tăng tính tiện nghi.
Nhược điểm:
Yêu cầu diện tích đất rộng, chi phí đầu tư cao.
Thiết kế phức tạp, thi công lâu hơn so với mẫu thường.
Cần chú trọng phong thủy khi bố trí 2 mặt tiền.
Lời khuyên: Gia chủ nên chọn mẫu này nếu sở hữu mảnh đất vị trí đẹp và mong muốn khẳng định đẳng cấp. Nên đầu tư cảnh quan sân vườn, hệ thống chiếu sáng ngoài trời và vật liệu cao cấp để tăng giá trị thẩm mỹ, đồng thời chú ý phong thủy mặt tiền để hút tài lộc, may mắn.
2.7 Mẫu biệt thự 2 tầng có gara chữ L
Thiết kế chữ L mang đến sự linh hoạt trong bố trí công năng và gara. Thông thường, gara đặt ở nhánh ngắn, tách biệt nhưng vẫn hài hòa với tổng thể công trình. Đây là cách sắp xếp thông minh, tiết kiệm diện tích.

Biệt thự chữ L có gara vừa tiện lợi, vừa tạo được không gian thoáng đãng. Mẫu này đặc biệt phù hợp với những lô đất không vuông vắn hoặc có mặt tiền hẹp. Sự linh hoạt trong thiết kế cũng giúp dễ dàng tùy chỉnh theo nhu cầu sử dụng của gia đình.

Bản vẽ biệt thự 2 tầng có gara chữ L nổi bật với bố cục linh hoạt, tạo khoảng sân thoáng và tối ưu không gian sinh hoạt. Mặt bằng tầng trệt gồm gara, sân vườn, phòng khách, phòng bếp + ăn, phòng ngủ, 1 phòng WC; Mặt bằng tầng 1 bố trí phòng master, 1 phòng ngủ, phòng thay đồ, sân gặt phơi, phòng làm việc.
Ưu điểm:
Kiểu chữ L tạo khoảng sân rộng, thuận tiện đón gió và ánh sáng.
Gara hợp lý, tách biệt khu sinh hoạt.
Công năng đa dạng, tiện nghi với phòng master, thay đồ, khu uống trà.
Sân vườn, chòi nghỉ, sân thượng tạo không gian thư giãn.
Nhược điểm:
Diện tích đất yêu cầu lớn, chi phí cao.
Thiết kế chữ L dễ tạo khoảng “khuyết góc” nếu không xử lý phong thủy.
Thi công phức tạp, đòi hỏi đội ngũ chuyên nghiệp.
Lời khuyên: Gia chủ nên chọn mẫu này khi sở hữu đất rộng, ưu tiên không gian mở và thiên nhiên. Nên xử lý phong thủy chữ L bằng tiểu cảnh hoặc cây xanh, đồng thời đầu tư cảnh quan sân vườn và nội thất để nâng cao giá trị thẩm mỹ cũng như sự tiện nghi lâu dài.
Tham khảo: Biệt thự phố 2 tầng có hai mặt tiền rộng thoáng ở Hà Tĩnh
3. Lưu ý khi thiết kế biệt thự 2 tầng có gara ô tô
Để sở hữu một mẫu biệt thự 2 tầng có gara ô tô đẹp và tiện nghi, gia chủ cần quan tâm đến nhiều yếu tố trong cả khâu thiết kế lẫn thi công. Một số lưu ý quan trọng gồm:
- Vị trí bố trí gara: Gara nên đặt ở tầng trệt hoặc tầng hầm (nếu diện tích cho phép), thuận tiện cho việc di chuyển và không ảnh hưởng đến công năng các phòng khác. Đồng thời, vị trí gara cần đảm bảo thoát khí, thoát nước tốt để tránh ẩm mốc, mùi xăng xe ảnh hưởng đến không gian sống.
- Diện tích và công năng: Gara cần có diện tích phù hợp với số lượng xe của gia đình. Ngoài chỗ đỗ xe, nhiều gia chủ còn tích hợp thêm kho chứa đồ hoặc lối thông trực tiếp vào phòng khách/bếp để thuận tiện sử dụng.
Hệ thống thông gió và ánh sáng: Đây là yếu tố thường bị bỏ qua nhưng cực kỳ quan trọng. Gara cần có cửa sổ, quạt thông gió hoặc giếng trời để hạn chế khí độc và tạo sự thông thoáng.

- Chống thấm và an toàn: Sàn gara nên lát gạch chống trơn, hệ thống thoát nước thiết kế hợp lý để tránh ngập úng. Ngoài ra, việc lắp đặt cửa cuốn hoặc cửa tự động giúp tăng độ an toàn và tiện ích cho người sử dụng.
Yếu tố phong thủy: Nhiều gia chủ chú trọng việc đặt gara hợp hướng, tránh xung đột với cửa chính hoặc phòng ngủ. Một gara hợp phong thủy không chỉ thuận tiện mà còn góp phần mang lại sự may mắn, bình an cho gia đình. - Chi phí và thiết kế đồng bộ: Gara cần hài hòa với kiến trúc tổng thể của biệt thự, tránh bị thô cứng hoặc lạc điệu. Khi thiết kế, gia chủ nên tính toán ngay từ đầu để tiết kiệm chi phí thi công và đảm bảo sự nhất quán.
Nắm vững những lưu ý trên sẽ giúp gia chủ có được một gara vừa đẹp, vừa tiện ích, đồng thời nâng cao giá trị sử dụng và thẩm mỹ cho biệt thự 2 tầng.
Tham khảo: Thiết kế biệt thự mini 2 tầng: Khám phá xu hướng & mẫu đẹp, kèm bản vẽ
4. Báo giá thiết kế và thi công mẫu biệt thự 2 tầng có gara ô tô
Chi phí thi công biệt thự phụ thuộc nhiều yếu tố: diện tích đất, phong cách kiến trúc (hiện đại, tân cổ điển, mái Thái, mái Nhật…), chất lượng vật liệu và mức đầu tư của gia chủ. Hiện nay, thị trường thường áp dụng 3 gói chi phí chính:
- Gói tiêu chuẩn: 5.000.000 – 5.600.000 VNĐ/m². Phù hợp với vật liệu phổ thông, đảm bảo công năng cơ bản, tối ưu ngân sách cho gia đình.
- Gói tầm trung: 5.700.000 – 6.100.000 VNĐ/m². Sử dụng vật liệu chất lượng tốt hơn, chú trọng tính thẩm mỹ và độ bền, phù hợp cho các gia đình muốn cân bằng giữa chi phí và chất lượng.
- Gói cao cấp: 6.200.000 – 7.100.000 VNĐ/m². Hướng đến sự sang trọng và đẳng cấp, sử dụng vật liệu cao cấp, mang lại độ bền vững và tính thẩm mỹ vượt trội.
Những yếu tố ảnh hưởng đến chi phí
- Phong cách thiết kế: Mẫu hiện đại thường tiết kiệm hơn so với phong cách tân cổ điển hoặc cổ điển. Vì thế, chi phí thiết kế biệt thự cũng sẽ ảnh hưởng lớn đền giá rất nhiều.
- Quy mô diện tích: Diện tích càng lớn thì tổng chi phí càng tăng, nhưng đơn giá/m² có thể giảm nhẹ.
- Vật liệu hoàn thiện: Lựa chọn vật liệu phổ thông hay cao cấp ảnh hưởng trực tiếp đến chi phí cuối cùng.
- Khu vực thi công: Giá nhân công và vật tư có sự chênh lệch giữa thành thị và nông thôn.
Tham khảo: 99+ thiết kế biệt thự 2 tầng mái ngói đẹp ấn tượng 2025
5. Thiết Kế Nhà 365 – Đơn vị uy tín thiết kế và thi công
Với hơn 10 năm kinh nghiệm trong lĩnh vực thiết kế và thi công biệt thự, Thiết Kế Nhà 365 tự hào mang đến cho khách hàng những công trình chất lượng, bền vững và thẩm mỹ cao.

- Đội ngũ chuyên nghiệp: Kiến trúc sư sáng tạo, am hiểu phong thủy và xu hướng mới.
- Quy trình chuẩn mực: Tư vấn – thiết kế – thi công minh bạch, rõ ràng.
- Cam kết: Đúng tiến độ, chuẩn kỹ thuật, tối ưu chi phí.
Xem thêm: 99+ Mẫu thiết kế nhà biệt thự 2 tầng mái Thái siêu đẳng cấp, nhìn không rời mắt
6. Câu hỏi thường gặp
1. Gara nên bố trí trong nhà hay tách riêng?
- Gara trong nhà tiện lợi, tiết kiệm diện tích; gara tách riêng thích hợp với lô đất rộng.
2. Chi phí xây biệt thự 2 tầng có gara trung bình bao nhiêu?
- Tùy phong cách, thường dao động từ 1,2 – 2,5 tỷ đồng.
3. Gara nên ở tầng 1 hay tầng hầm?
- Tầng 1 phổ biến và tiết kiệm chi phí hơn; tầng hầm cần đầu tư chống thấm kỹ.
4. Phong thủy gara có quan trọng không?
- Có. Gara đặt sai vị trí có thể ảnh hưởng đến sinh khí và tài lộc của gia chủ.
Kết luận
Mẫu biệt thự 2 tầng có gara vừa đáp ứng nhu cầu sinh hoạt hiện đại, vừa nâng tầm giá trị thẩm mỹ và tiện nghi cho ngôi nhà. Tùy điều kiện, gia chủ có thể lựa chọn mẫu hiện đại, tân cổ điển, mái Nhật, mái Thái, chữ L hay có sân vườn. Khi thiết kế, cần chú ý diện tích, kỹ thuật, phong thủy và đặc biệt chọn đơn vị thi công uy tín. Thiết Kế Nhà 365 tự tin đồng hành cùng bạn để kiến tạo không gian sống sang trọng, đẳng cấp và bền vững theo thời gian.









