Với ngân sách khoảng 2 tỷ đồng, nhiều gia đình băn khoăn liệu có thể xây được một căn biệt thự đẹp, tiện nghi hay không. Thực tế, nếu được thiết kế hợp lý và lựa chọn giải pháp thi công phù hợp, mức ngân sách này hoàn toàn có thể xây dựng được một biệt thự mini hiện đại với đầy đủ công năng.
Tùy theo diện tích đất, phong cách kiến trúc và vật liệu sử dụng, gia chủ có thể lựa chọn nhiều mẫu biệt thự khác nhau như biệt thự mái Thái, mái Nhật, biệt thự sân vườn hoặc biệt thự hiện đại tối giản.
Trong bài viết này, Thiết Kế Nhà 365 sẽ giới thiệu 6+ mẫu biệt thự 2 tỷ đẹp, tối ưu chi phí để bạn có thêm ý tưởng cho tổ ấm tương lai.
- 1. Vì sao mẫu biệt thự 2 tỷ lại được ưa chuộng?
- 2. Tổng hợp mẫu biệt thự 2 tỷ thiết kế đẹp, sang trọng
- 3. Kinh nghiệm tối ưu chi phí khi xây mẫu biệt thự 2 tỷ
- 4. Chi phí xây biệt thự 2 tỷ gồm những hạng mục nào?
- 5. Thiết Kế Nhà 365 – Đơn vị uy tín thiết kế và thi công biệt thự
- 5. Câu hỏi thường gặp (FAQ)
1. Vì sao mẫu biệt thự 2 tỷ lại được ưa chuộng?
Với mức đầu tư khoảng 2 tỷ, nhiều gia đình trẻ hoặc hộ gia đình có thu nhập trung bình – khá hoàn toàn có thể xây dựng được một ngôi biệt thự đẹp. Trong tầm ngân sách này, công năng vẫn được đảm bảo đầy đủ: phòng khách, bếp, 2–3 phòng ngủ, gara và sân vườn nhỏ.

Ngoài ra, gia chủ có thể lựa chọn nhiều phong cách thiết kế khác nhau như hiện đại, tân cổ điển, mái Thái hay mái Nhật. Nhờ sự tính toán khoa học trong thiết kế, biệt thự 2 tỷ vừa tiết kiệm chi phí, vừa đảm bảo thẩm mỹ và phù hợp với quy mô gia đình nhỏ.
Bạn có thể tham khảo thêm các mẫu biệt thự hiện đại đẹp để có thêm ý tưởng thiết kế phù hợp với diện tích đất và ngân sách xây dựng.
2. Tổng hợp mẫu biệt thự 2 tỷ thiết kế đẹp, sang trọng
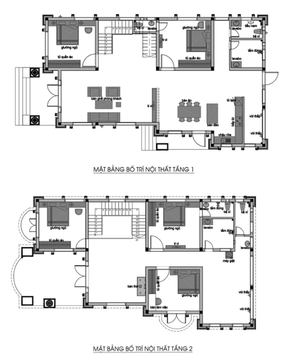
2.1. Mẫu biệt thự 2 tỷ phong cách hiện đại
Phong cách hiện đại tối giản đang trở thành xu hướng trong các mẫu biệt thự 2 tỷ bởi sự tinh gọn nhưng vẫn đầy đủ công năng. Đặc điểm nổi bật của phong cách này có thể tóm gọn như sau:
- Không gian mở, tối giản chi tiết: Hạn chế các yếu tố rườm rà, tạo cảm giác thoáng đãng và trẻ trung.
- Ưu điểm nổi bật: Dễ thi công, tiết kiệm chi phí nhưng vẫn đảm bảo tính thẩm mỹ.
- Lưu ý khi thiết kế: Tận dụng ánh sáng tự nhiên và bố trí hệ thống thông gió hợp lý để không gian luôn thoải mái.
- Phong thủy hài hòa: Sử dụng gam màu sáng kết hợp với cửa sổ bố trí hợp lý để thu hút năng lượng tích cực vào nhà.


2.2. Mẫu biệt thự 2 tỷ mái Thái
Biệt thự mái Thái là lựa chọn được nhiều gia đình yêu thích nhờ sự hài hòa giữa thẩm mỹ, công năng và phong thủy. Một số đặc điểm nổi bật có thể kể đến:
- Mái dốc cao, thanh thoát: Tạo nét sang trọng cho tổng thể kiến trúc, đồng thời giúp thoát nước mưa nhanh chóng.
- Phù hợp khí hậu nhiệt đới: Giúp giảm nóng vào mùa hè, giữ không gian trong nhà luôn mát mẻ và dễ chịu.
- Chú trọng độ bền của mái: Thi công cần đảm bảo chất lượng vật liệu và kỹ thuật để tránh thấm dột, kéo dài tuổi thọ công trình.
- Ý nghĩa phong thủy: Mái Thái tượng trưng cho sự cân đối, hài hòa và thường mang lại may mắn, tài lộc cho gia chủ.


2.3. Mẫu biệt thự 2 tỷ phong cách tân cổ điển
Mẫu biệt thự tân cổ điển mang đến sự sang trọng và tinh tế, đồng thời vẫn đảm bảo tính kinh tế nếu biết cân đối. Những điểm nổi bật cần lưu ý gồm:
- Kết hợp cổ điển và hiện đại: Tạo nên không gian sống đẳng cấp, sang trọng nhưng không lỗi thời.
- Tối ưu chi phí: Với ngân sách 2 tỷ, có thể giản lược bớt các chi tiết cầu kỳ để tiết kiệm mà vẫn giữ được nét đẹp bền vững theo thời gian.
- Chú trọng tỷ lệ kiến trúc: Thi công cần đảm bảo sự cân đối để tránh cảm giác nặng nề, giúp công trình hài hòa hơn.
- Yếu tố phong thủy: Sảnh rộng và cửa chính lớn tượng trưng cho sự đón tài lộc, mang lại may mắn và vượng khí cho gia đình.


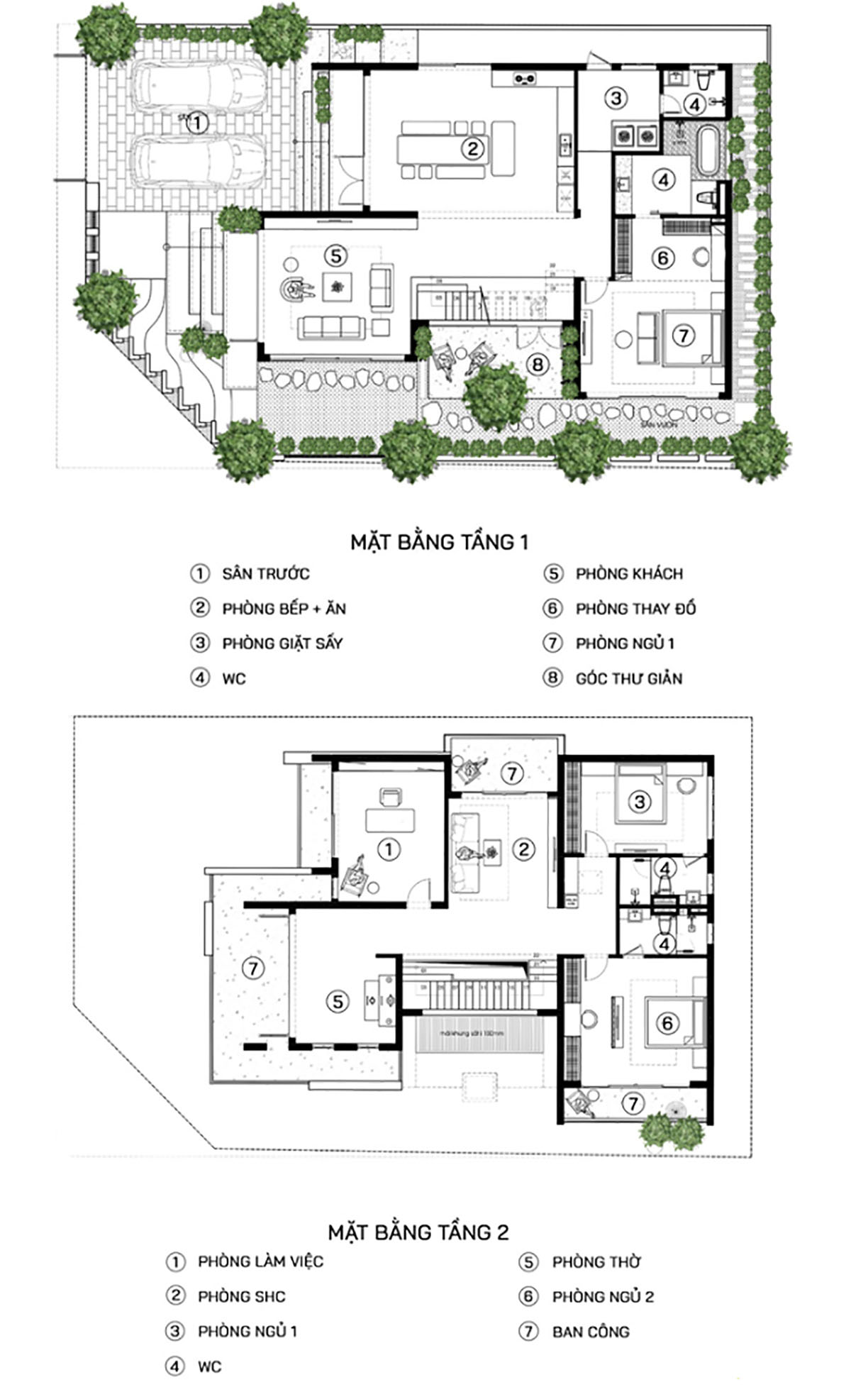
2.4. Mẫu biệt thự 2 tỷ kết hợp sân vườn
Trong thiết kế biệt thự 2 tỷ, việc bố trí sân vườn nhỏ xung quanh hoặc phía trước nhà không chỉ tăng tính thẩm mỹ mà còn mang lại nhiều lợi ích cho gia chủ. Cụ thể:
- Không gian xanh mát: Sân vườn tạo sự gần gũi với thiên nhiên, mang lại cảm giác thư giãn và thoải mái cho các thành viên.
- Điều hòa không khí: Cây xanh giúp làm mát, lọc bụi, giảm nhiệt, tạo môi trường sống trong lành.
- Lưu ý khi chọn cây: Ưu tiên loại cây cảnh, cây bóng mát có rễ nhỏ để tránh ảnh hưởng đến kết cấu móng nhà.
- Ý nghĩa phong thủy: Sân vườn phía trước tượng trưng cho sự đón sinh khí, thu hút tài lộc và mang lại thịnh vượng cho gia đình.


2.5. Mẫu biệt thự 2 tỷ mái bằng
Biệt thự 2 tầng mái bằng là lựa chọn phù hợp cho những gia đình yêu thích sự trẻ trung, hiện đại và tối giản. Một số đặc điểm đáng chú ý gồm:
- Phong cách trẻ trung, tối giản: Thiết kế vuông vức, gọn gàng, phù hợp với xu hướng kiến trúc hiện đại.
- Tiện ích sân thượng: Tận dụng không gian mái bằng để làm sân thượng, vừa tăng tiện ích vừa mở rộng không gian sinh hoạt.
- Tiết kiệm chi phí: Thi công mái bằng đơn giản hơn, giúp giảm đáng kể chi phí xây dựng.
- Lưu ý kỹ thuật: Cần xử lý chống thấm và hệ thống thoát nước mái cẩn thận để tránh hư hại lâu dài.
- Tạo mảng xanh: Sân thượng có thể trồng cây, đặt tiểu cảnh để cân bằng năng lượng, mang lại sự hài hòa và tăng tính thẩm mỹ cho ngôi nhà.


2.6. Mẫu biệt thự 2 tỷ mái Nhật
Biệt thự Mái Nhật ngày càng được ưa chuộng trong các mẫu biệt thự 2 tỷ nhờ vẻ đẹp tinh tế và công năng phù hợp với điều kiện khí hậu Việt Nam. Những điểm nổi bật gồm:
- Độ dốc nhẹ, tỏa ra bốn phía: Tạo cảm giác thanh thoát, mềm mại, mang tính thẩm mỹ cao.
- Thích hợp khí hậu nhiệt đới: Giúp chống nóng hiệu quả vào mùa hè và thoát nước nhanh trong mùa mưa.
- Vật liệu mái bền đẹp: Gia chủ nên chọn loại ngói, tôn hoặc vật liệu chất lượng để tăng tuổi thọ công trình.
- Ý nghĩa phong thủy: Mái Nhật tượng trưng cho sự yên bình, cân đối, mang lại sự hài hòa và may mắn cho gia đình.


3. Kinh nghiệm tối ưu chi phí khi xây mẫu biệt thự 2 tỷ
Để đảm bảo mẫu biệt thự 2 tỷ vừa đẹp vừa bền vững, gia chủ không chỉ quan tâm đến thiết kế mà còn cần cân nhắc nhiều yếu tố quan trọng trong quá trình thi công. Một số lưu ý nổi bật bao gồm:
- Lựa chọn vật liệu phù hợp: Ưu tiên vật liệu có độ bền cao, giá thành hợp lý để vừa tiết kiệm ngân sách vừa đảm bảo chất lượng công trình.
- Chọn đơn vị thiết kế – thi công uy tín: Giúp hạn chế rủi ro, kiểm soát tiến độ và đảm bảo chất lượng xây dựng.
- Tận dụng không gian thông minh: Thiết kế đa năng, bố trí hợp lý để tối ưu diện tích sử dụng.
- Tiết kiệm chi phí nhưng vẫn tiện nghi: Cân đối giữa thẩm mỹ và công năng để có một ngôi nhà đẹp, hiện đại và tiện lợi cho sinh hoạt.
4. Chi phí xây biệt thự 2 tỷ gồm những hạng mục nào?
Khi xây dựng biệt thự với ngân sách khoảng 2 tỷ đồng, tổng chi phí thường được chia thành nhiều hạng mục khác nhau như phần thô, hoàn thiện, nội thất và chi phí thiết kế. Việc hiểu rõ từng hạng mục sẽ giúp gia chủ kiểm soát ngân sách tốt hơn và hạn chế các khoản phát sinh trong quá trình thi công.
| Hạng mục | Tỷ lệ chi phí tham khảo |
|---|---|
| Phần thô | 50–60% |
| Hoàn thiện | 30–35% |
| Thiết kế + giấy phép | 3–5% |
| Dự phòng phát sinh | 5–10% |
5. Thiết Kế Nhà 365 – Đơn vị uy tín thiết kế và thi công biệt thự
Với kinh nghiệm nhiều năm trong lĩnh vực thiết kế thi công biệt thự, Thiết Kế Nhà 365 luôn là đối tác đáng tin cậy của hàng trăm gia đình. Những giá trị nổi bật mà chúng tôi mang đến bao gồm:
- Kinh nghiệm thực tiễn: Đồng hành cùng hàng trăm gia đình, hiện thực hóa ước mơ về ngôi nhà lý tưởng.
- Giải pháp tối ưu: Thiết kế thông minh, tiết kiệm chi phí nhưng vẫn đảm bảo thẩm mỹ và công năng.
- Dự án thành công: Hàng loạt công trình biệt thự 2 tỷ được triển khai, mang lại sự hài lòng tuyệt đối cho khách hàng.
- Uy tín & tận tâm: Luôn đặt lợi ích gia chủ lên hàng đầu, cam kết chất lượng trong từng chi tiết.
Liên hệ ngay để được tư vấn miễn phí và nhận giải pháp thiết kế – thi công biệt thự 2 tỷ phù hợp nhất cho tổ ấm của bạn.

5. Câu hỏi thường gặp (FAQ)
Xây biệt thự 2 tỷ được bao nhiêu m2?
Thông thường với ngân sách khoảng 2 tỷ đồng, gia chủ có thể xây dựng biệt thự có diện tích khoảng 120–200m² sàn tùy vật liệu và phong cách thiết kế.
Biệt thự 2 tỷ nên xây 1 tầng hay 2 tầng?
Nếu diện tích đất rộng, biệt thự 1 tầng sẽ mang lại không gian sống thoải mái và gần gũi thiên nhiên. Nếu đất nhỏ, biệt thự 2 tầng giúp tối ưu diện tích và tăng công năng sử dụng.
2 tỷ có đủ xây biệt thự sân vườn không?
Ở khu vực ngoại thành hoặc nông thôn, ngân sách 2 tỷ hoàn toàn có thể xây biệt thự sân vườn với diện tích vừa phải và cảnh quan xanh mát.
Thời gian xây biệt thự 2 tỷ khoảng bao lâu?
Thời gian xây dựng biệt thự khoảng 4–6 tháng, tùy quy mô công trình, điều kiện thi công và thời tiết.
Có nên xây biệt thự trọn gói không?
Xây nhà trọn gói giúp gia chủ tiết kiệm thời gian, kiểm soát chi phí tốt hơn và hạn chế rủi ro phát sinh trong quá trình thi công.
Với ngân sách 2 tỷ đồng, gia đình bạn hoàn toàn có thể sở hữu một ngôi biệt thự vừa đẹp, vừa tiện nghi, lại tối ưu chi phí. Tùy vào sở thích và nhu cầu, gia chủ có thể lựa chọn đa dạng phong cách từ hiện đại, tân cổ điển cho đến mái Thái hay mái Nhật. Yếu tố then chốt nằm ở việc chọn đúng đơn vị thiết kế – thi công uy tín để đảm bảo chất lượng và giá trị lâu dài cho công trình.
Nếu bạn đang tìm một giải pháp thiết kế tối ưu cho ngân sách khoảng 2 tỷ, hãy tham khảo dịch vụ thiết kế biệt thự trọn gói để được tư vấn phương án phù hợp với diện tích đất và nhu cầu sử dụng.
Thiết Kế Nhà 365 tự hào đồng hành cùng hàng trăm gia đình trong hành trình xây dựng tổ ấm, mang đến giải pháp thiết kế – thi công biệt thự 2 tỷ tối ưu nhất. Liên hệ ngay để được tư vấn miễn phí và biến ngôi nhà mơ ước của bạn thành hiện thực!









