Mẫu biệt thự 3 tầng tân cổ điển luôn được nhiều gia chủ lựa chọn nhờ vẻ đẹp sang trọng, bền vững và công năng tiện nghi. Sự kết hợp hài hòa giữa kiến trúc cổ điển châu Âu và tinh thần hiện đại mang đến không gian sống đẳng cấp, vừa thể hiện gu thẩm mỹ, vừa đáp ứng trọn vẹn nhu cầu sinh hoạt của gia đình Việt.
Trong bài viết này, Thiết Kế Nhà 365 sẽ giới thiệu đến bạn 10+ mẫu biệt thự 3 tầng tân cổ điển đẹp ấn tượng kèm bản vẽ chi tiết 2025, cùng những gợi ý hữu ích để lựa chọn phương án phù hợp nhất với diện tích đất, ngân sách và phong cách sống.

- 1. Đặc trưng kiến trúc biệt thự 3 tầng tân cổ điển
-
2. Bộ sưu tập mẫu biệt thự 3 tầng tân cổ điển đẹp 2025
- 2.1. Mẫu biệt thự tân cổ điển 3 tầng 2 mặt tiền
- 2.2. Mẫu biệt thự tân cổ điển 3 tầng mái Mansard
- 2.3. Mẫu biệt thự tân cổ điển 3 tầng mái Thái
- 2.4. Mẫu biệt thự 3 tầng tân cổ điển mái Nhật
- 2.5. Mẫu biệt thự tân cổ điển 3 tầng mái bằng
- 2.6. Mẫu biệt thự tân cổ điển 3 tầng mặt tiền 8m
- 2.7. Mẫu biệt thự tân cổ điển kiểu Pháp 3 tầng
- 2.8. Mẫu biệt thự 3 tầng tân cổ điển 4 phòng ngủ
- 2.9. Biệt thự 3 tầng 5 phòng ngủ kiến trúc Tân cổ điển
- 2.10. Mẫu biệt thự 3 tầng tân cổ điển có 7 phòng ngủ
- 3. Xu hướng mới cho biệt thự 3 tầng tân cổ điển
1. Đặc trưng kiến trúc biệt thự 3 tầng tân cổ điển
Đăng đối & tỉ lệ vàng:
- Điểm nhấn quan trọng của biệt thự tân cổ điển chính là bố cục mặt tiền cân xứng, phào chỉ và mảng khối được sắp đặt theo tỉ lệ vàng. Sự cân bằng này mang đến vẻ đẹp hài hòa, sang trọng và trường tồn với thời gian.
Hệ cột – mái – ban công:
- Các mẫu biệt thự 3 tầng thường sử dụng cột Corinth hoặc Ionic thanh thoát, kết hợp mái Mansard bề thế hoặc mái Nhật nhẹ nhàng. Ban công lan can con tiện, nhôm đúc nghệ thuật là chi tiết đặc trưng, vừa tạo sự tinh xảo, vừa giúp không gian thoáng đãng.
Vật liệu & màu sắc:
- Gam màu chủ đạo thường là trắng, kem hoặc ghi sáng, kết hợp đá tự nhiên ốp sảnh, cửa gỗ cao cấp và hệ kính Low-E hiện đại. Sự phối hợp này không chỉ tôn lên nét sang trọng mà còn nâng cao độ bền công trình.
Phong cách triển khai:
- Biệt thự 3 tầng tân cổ điển có thể biến tấu linh hoạt: từ biệt thự cổ điển cầu kỳ, tân cổ điển tinh giản đến hiện đại pha tân cổ. Nhờ vậy, gia chủ dễ dàng lựa chọn phong cách phù hợp gu thẩm mỹ và tài chính.

Nguyên tắc công năng 3 tầng phổ biến:
- Tầng 1: không gian tiếp khách, bếp – phòng ăn liên thông sân vườn.
- Tầng 2: phòng ngủ chính và phòng ngủ phụ, có sinh hoạt chung.
- Tầng 3: phòng thờ trang trọng, kết hợp không gian tiện ích như gym, thư viện, phòng làm việc hoặc sân chơi.
Bản vẽ mặt bằng công năng biệt thự 3 tầng tân cổ điển tham khảo:



Tham khảo: Thiết kế biệt thự 3 tầng kiểu Pháp cổ điển 8x14m cho chị Ánh ở Vĩnh Long
2. Bộ sưu tập mẫu biệt thự 3 tầng tân cổ điển đẹp 2025
2.1. Mẫu biệt thự tân cổ điển 3 tầng 2 mặt tiền
Mẫu biệt thự tân cổ điển 3 tầng 2 mặt tiền nổi bật với kiến trúc sang trọng, đường nét tinh xảo và bố cục khoa học. Công trình kết hợp hài hòa giữa nét hoài cổ và phong cách hiện đại, mang đến không gian sống đẳng cấp, tiện nghi và tạo ấn tượng mạnh từ mọi góc nhìn.

Biệt thự 2 mặt tiền nổi bật với vẻ đẹp sang trọng và hài hòa, tận dụng lợi thế lô góc để bố trí sảnh chính – phụ, ban công và sân chơi thoáng mát. Các chi tiết phào chỉ tinh xảo kết hợp mái Nhật dịu dàng, vật liệu gỗ, đá granite, nhôm kính tạo nên sự đẳng cấp nhưng vẫn gần gũi, ấm áp.


Ưu điểm
- Kiến trúc đẳng cấp: Kết hợp mái Nhật thanh thoát với phào chỉ, cột trụ và hoa văn tân cổ điển.
- Hai mặt tiền bề thế: Tăng tính thẩm mỹ, thu hút ánh nhìn, đồng thời tối ưu thông gió và ánh sáng.
- Công năng khoa học: 3 tầng, 5 phòng ngủ rộng rãi, bố trí hài hòa với nhu cầu sinh hoạt gia đình.
- Vật liệu cao cấp: Gỗ, kính, đá granite… kết hợp tinh tế, đảm bảo độ bền và giá trị thẩm mỹ.
- Không gian tiện nghi: Sảnh lớn, phòng ăn sang trọng, sân vườn rộng cho sinh hoạt ngoài trời.
Nhược điểm
- Chi phí đầu tư cao do thiết kế cầu kỳ, sử dụng nhiều vật liệu cao cấp.
- Đòi hỏi diện tích đất lớn để phát huy hết ưu thế 2 mặt tiền.
- Thi công phức tạp, cần đội ngũ giàu kinh nghiệm.
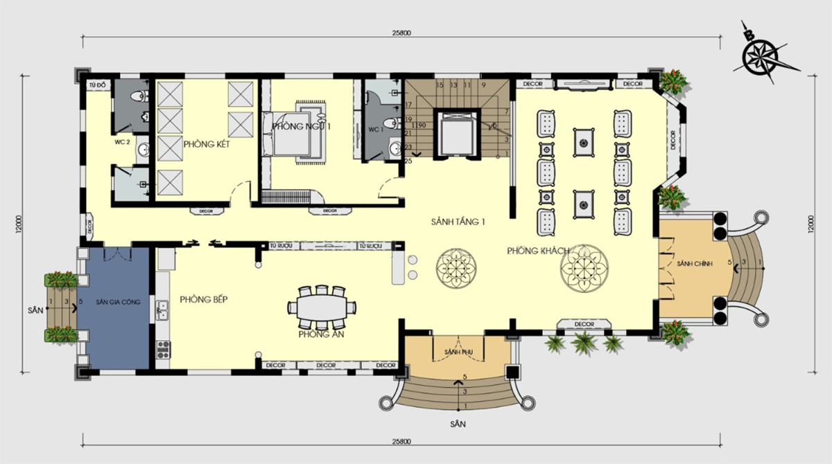
Mặt bằng công năng:
- Tầng 1: Sảnh chính + sảnh phụ + 1 phòng khách + 1 khu vực bếp & phòng ăn + 1 phòng ngủ + 1 phòng kỹ thuật + 1 phòng kho + WC
- Tầng 2: 1 Không gian SHC + 3 phòng ngủ + WC + ban công
- Tầng 3: 1 Phòng thờ + 1 phòng ngủ + 1 phòng GYM + WC + ban công & sân chơi

Lời khuyên
Với biệt thự tân cổ điển 3 tầng 2 mặt tiền, gia chủ nên ưu tiên chọn đơn vị thiết kế – thi công chuyên nghiệp để đảm bảo tính cân bằng và chuẩn mực trong từng chi tiết. Đồng thời, kết hợp hợp lý giữa nội – ngoại thất, sử dụng vật liệu bền vững và bố trí sân vườn xanh mát để tăng giá trị thẩm mỹ, phong thủy và sự tiện nghi lâu dài.
2.2. Mẫu biệt thự tân cổ điển 3 tầng mái Mansard
Mẫu biệt thự tân cổ điển 3 tầng mái Mansard là sự kết hợp tinh tế giữa kiến trúc cổ điển sang trọng và nét hiện đại phóng khoáng. Với hệ mái Mansard cao ráo, bề thế, căn biệt thự không chỉ mang lại vẻ đẹp quý phái mà còn tối ưu công năng sử dụng.

Mẫu biệt thự tân cổ điển này gây ấn tượng mạnh nhờ kiến trúc mái đặc trưng – cao ráo, bề thế, vừa mang tính thẩm mỹ vừa giúp thoát nước tốt. Ngoại thất sử dụng phào chỉ tinh tế, hệ cửa kính cường lực lớn kết hợp các khối vòm mềm mại, ban công thoáng, mang lại sự hài hòa giữa cổ điển và hiện đại.


Ưu điểm
- Kiến trúc bề thế, sang trọng, tôn vinh gu thẩm mỹ và đẳng cấp gia chủ.
- Hệ mái Mansard tối ưu không gian, có thể tận dụng làm tầng áp mái với nhiều công năng.
- Hai mặt tiền thông thoáng, đón sáng và gió tự nhiên, tốt về phong thủy.
- Công năng khoa học, phân chia phòng hợp lý, tạo sự tiện nghi và thoải mái cho gia đình.
- Vật liệu cao cấp (đá, kính, gỗ, nhôm đúc…) giúp công trình bền vững và có giá trị lâu dài.
Nhược điểm
- Chi phí xây dựng và hoàn thiện cao hơn so với các kiểu biệt thự thông thường.
- Thời gian thi công kéo dài, đòi hỏi đội ngũ kiến trúc sư và thi công có chuyên môn cao.
- Cần diện tích đất rộng để tôn lên hết vẻ đẹp bề thế, nếu khuôn viên hẹp sẽ giảm hiệu ứng thẩm mỹ.
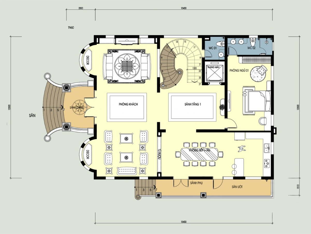
Mặt bằng công năng:
- Tầng 1: Sảnh chính + sảnh phụ + 1 phòng khách + 1 khu vực bếp & phòng ăn + 1 phòng ngủ + WC + sân ướt
- Tầng 2: 2 Phòng ngủ Master + WC + ban công
- Tầng 3: 1 Phòng ngủ Master + 3 phòng ngủ thường + WC + ban công
- Tầng áp mái: 1 Phòng thờ + 1 phòng kho + 1 phòng tập GYM + 1 phòng xông hơi + 1 sân giặt phơi (có mái che)

Lời khuyên
Khi lựa chọn mẫu biệt thự 3 tầng mái Mansard, gia chủ nên cân nhắc kỹ về tài chính, diện tích đất và nhu cầu sử dụng. Để đạt hiệu quả tối ưu, cần đầu tư đồng bộ từ kiến trúc ngoại thất đến bố trí công năng bên trong. Quan trọng nhất, hãy hợp tác với đơn vị thiết kế – thi công chuyên nghiệp để đảm bảo công trình đạt chuẩn cả về thẩm mỹ, độ bền và giá trị lâu dài.
2.3. Mẫu biệt thự tân cổ điển 3 tầng mái Thái
Biệt thự mái Thái 3 tầng ngày càng được nhiều gia đình lựa chọn nhờ sự kết hợp hài hòa giữa tính thẩm mỹ Á Đông và công năng hiện đại. Với hệ mái dốc đặc trưng, công trình không chỉ đẹp thanh thoát mà còn phù hợp khí hậu Việt Nam, giúp chống nóng, thoát nước nhanh và giữ cho ngôi nhà luôn bền đẹp theo thời gian.

Mẫu biệt thự mái Thái có bố trí công năng hợp lý: tầng trệt có cả phòng khách – phòng thờ – bếp ăn – phòng ngủ, tầng 2 tập trung nghỉ ngơi Master và phòng ngủ phụ, tầng 3 thiết lập khu giải trí, thể thao, sân phơi/giặt – đáp ứng đầy đủ nhu cầu sử dụng cho gia đình nhiều thế hệ.


Ưu điểm
- Kiến trúc thanh thoát, cân đối, mang đậm phong cách Á Đông.
- Hệ mái Thái giúp không gian mát mẻ, chống nóng, thoát nước hiệu quả.
- Công năng khoa học, bố trí 4 phòng ngủ tiện nghi, phù hợp cho gia đình nhiều thế hệ.
- Ban công và sân thượng mở tạo không gian thư giãn, gắn kết thiên nhiên.
- Dễ dàng biến tấu phối cảnh, từ tân cổ điển đến hiện đại, đáp ứng đa dạng gu thẩm mỹ.
Nhược điểm
- Chi phí đầu tư mái Thái cao hơn mái bằng thông thường.
- Đòi hỏi kỹ thuật thi công chuẩn để đảm bảo độ bền và tính thẩm mỹ.
- Với khu đất hẹp, thiết kế mái dốc có thể khiến không gian ngoại thất trông cao và hẹp hơn.
Mặt bằng công năng
- Tầng 1: Sảnh chính + sảnh phụ + 1 Phòng khách +Phòng thờ + khu vực bếp & phòng ăn + 1 phòng ngủ + WC
- Tầng 2: 1 Phòng ngủ Master + 2 Phòng ngủ thường + WC + ban công
- Tầng 3: 1 Phòng giải trí + 1 phòng GYM & Yoga + WC + sân giặt phơi + sân chơi

Lời khuyên
Biệt thự mái Thái 3 tầng tân cổ điển là lựa chọn lý tưởng nếu bạn muốn một không gian sống sang trọng, tiện nghi và hợp phong thủy. Gia chủ nên kết hợp cảnh quan sân vườn và nội thất hiện đại để tôn lên vẻ đẹp tổng thể. Đặc biệt, hãy làm việc cùng đơn vị thiết kế uy tín để đảm bảo mái Thái được thi công đúng kỹ thuật, mang lại sự bền vững và giá trị lâu dài cho ngôi nhà.
2.4. Mẫu biệt thự 3 tầng tân cổ điển mái Nhật
Biệt thự 3 tầng tân cổ điển mái Nhật này thu hút bởi cách thiết kế hài hòa giữa vẻ sang trọng và tiện nghi. Hệ mái Nhật đỏ nổi bật, kết hợp cùng cột trụ kiên cố, vòm cong mềm mại và ban công bán nguyệt mang lại sức hút thị giác mạnh.
Vật liệu như kính cường lực và sắt mỹ nghệ tạo nên sự thoáng sáng và tinh tế. Tông màu trắng-kem chủ đạo làm nổi bật mái đỏ và các chi tiết trang trí, giúp tổng thể vừa trang nhã vừa đậm nét phong cách cổ điển.



Ưu điểm
- Kiến trúc bề thế, cân đối, mang lại tính thẩm mỹ cao và khẳng định đẳng cấp.
- Mái Nhật dốc thoát nước nhanh, chống nóng tốt, bền vững với thời gian.
- Tông màu trắng kem kết hợp mái đỏ tạo sự hài hòa, hợp phong thủy.
- Công năng bố trí khoa học, đáp ứng nhu cầu sinh hoạt, nghỉ ngơi và thư giãn cho cả gia đình.
- Có thể kết hợp thêm không gian sân vườn, nhà thờ, chòi nghỉ… tạo sự gắn kết thiên nhiên và yếu tố tâm linh.
Nhược điểm
- Chi phí đầu tư và hoàn thiện cao, đòi hỏi nguồn tài chính ổn định.
- Yêu cầu diện tích đất rộng để phô diễn hết sự bề thế của kiến trúc.
- Thời gian thi công lâu hơn các mẫu biệt thự hiện đại đơn giản.
Mặt bằng công năng
- Tầng 1: Sảnh chính + sảnh phụ + 1 phòng khách + 1 khu vực bếp & phòng ăn + 1 phòng ngủ + WC + 1 phòng xông khô + 1 phòng kho + 1 phòng giặt phơi
- Tầng 2: 1 Phòng ngủ Master + 1 phòng ngủ thường + WC + ban công
- Tầng 3: 1 Phòng sách + 1 phòng ngủ Master + 1 phòng ngủ thường + WC + ban công & sân chơi

Lời khuyên
Mẫu biệt thự mái Nhật này là lựa chọn lý tưởng cho gia đình yêu thích sự sang trọng, bền vững và hợp phong thủy. Khi thi công, gia chủ nên chú trọng lựa chọn vật liệu cao cấp (ngói Nhật, kính cường lực, sơn chống thấm, gỗ tự nhiên) và phối hợp cảnh quan sân vườn để tạo tổng thể hài hòa. Đồng thời, làm việc với đơn vị thiết kế – thi công chuyên nghiệp sẽ giúp công trình vừa đẹp, vừa bền lâu theo thời gian.
2.5. Mẫu biệt thự tân cổ điển 3 tầng mái bằng
Biệt thự tân cổ điển 3 tầng mái bằng mang đến sự kết hợp hài hòa giữa vẻ đẹp tinh tế, sang trọng của kiến trúc cổ điển và phong cách sống tiện nghi, hiện đại. Khối kiến trúc vuông vắn, cân đối, kết hợp với phào chỉ nhẹ nhàng, hệ cột trụ vững chắc và ban công mềm mại tạo nên một công trình vừa bề thế vừa thanh lịch.


Mặt tiền sử dụng gam màu trắng chủ đạo, nổi bật trên đó là lan can sắt mỹ thuật sơn tĩnh điện và hệ cửa khung nhôm – kính cao cấp, giúp tối ưu ánh sáng tự nhiên.
Điểm nhấn của mẫu thiết kế biệt thự này là phần sảnh vòm kết hợp đèn chùm tinh xảo, tăng thêm sự lộng lẫy cho tổng thể. So với mái Thái hay mái Mansard, hệ mái bằng mang lại sự gọn gàng, hiện đại, đồng thời phù hợp xu hướng kiến trúc đương đại. Tuy nhiên, để đảm bảo độ bền lâu, gia chủ cần chú trọng chống thấm và thoát nước đúng kỹ thuật.

Ưu điểm
- Kiến trúc bề thế, thanh lịch, thể hiện gu thẩm mỹ tinh tế.
- Công năng bố trí khoa học, đáp ứng nhu cầu sinh hoạt đa dạng.
- Mái bằng hiện đại, dễ kết hợp không gian sân thượng, tiểu cảnh hoặc khu vui chơi.
- Vật liệu cao cấp giúp công trình bền vững và giảm chi phí bảo trì.
Nhược điểm
- Chi phí xây dựng cao hơn so với nhà phố hoặc biệt thự hiện đại đơn giản.
- Mái bằng cần thi công đúng kỹ thuật để tránh tình trạng thấm dột.
- Yêu cầu diện tích đất rộng để tôn lên hết sự bề thế của thiết kế.
Mặt bằng công năng
- Tầng 1: Gara để xe, bếp – phòng ăn, phòng ngủ nhỏ, kho và WC.
- Tầng 2: Phòng khách sang trọng, 1 phòng ngủ master có WC riêng, ban công rộng rãi.
- Tầng 3: Phòng sinh hoạt chung (SHC), 2 phòng ngủ thoáng sáng, mỗi phòng đều có WC riêng.
- Tầng tum: Phòng thờ trang nghiêm, phòng tiền tế, phòng giặt phơi, kho chứa và ban công.

Lời khuyên
Nếu yêu thích vẻ đẹp tân cổ điển nhưng muốn một không gian sống mang hơi hướng hiện đại, biệt thự 3 tầng mái bằng là lựa chọn lý tưởng. Gia chủ nên kết hợp thêm cảnh quan sân vườn, sân thượng xanh hoặc khu thư giãn ngoài trời để tối ưu trải nghiệm sống. Đồng thời, hãy hợp tác với đơn vị thiết kế – thi công uy tín để đảm bảo công trình đạt chuẩn về thẩm mỹ, công năng và độ bền lâu dài.
2.6. Mẫu biệt thự tân cổ điển 3 tầng mặt tiền 8m
Mẫu biệt thự 3 tầng tân cổ điển mặt tiền 8m là lựa chọn hoàn hảo cho gia chủ yêu thích không gian sống sang trọng, bề thế nhưng vẫn tiện nghi. Với kiến trúc tân cổ điển tinh tế, kết hợp mái Mansard đẳng cấp, công trình trở thành điểm nhấn nổi bật trong mọi khu phố.


Mặt tiền 8m kết hợp hệ trụ cột lớn, phào chỉ tinh xảo và lan can sắt uốn hoa văn nghệ thuật, tạo nên sự cân đối và sang trọng. Mái Mansard cổ điển kết hợp cửa vòm cong vừa tăng tính thẩm mỹ, vừa tận dụng không gian áp mái. Tông trắng chủ đạo kết hợp chi tiết mạ vàng/đen, mang lại vẻ đẹp quý phái, sang trọng.

Ưu điểm
- Thiết kế sang trọng, bền vững theo thời gian, dễ tạo ấn tượng với người nhìn.
- Công năng khoa học, phù hợp gia đình đông thành viên.
- Ban công rộng, nhiều cửa sổ, đón gió và ánh sáng tự nhiên tối đa.
- Mái Mansard giúp biệt thự thêm cao ráo, đồng thời tận dụng diện tích áp mái.
Nhược điểm
- Chi phí xây dựng, hoàn thiện và bảo trì cao hơn biệt thự hiện đại thông thường.
- Đòi hỏi diện tích đất tương đối rộng, nếu đất hẹp sẽ khó phát huy hết vẻ đẹp.
- Phào chỉ và chi tiết ngoại thất cầu kỳ cần thi công kỹ lưỡng, tránh lỗi thẩm mỹ.
Mặt bằng công năng
- Tầng 1: Sảnh chính + sảnh phụ, phòng khách lớn, bếp + phòng ăn, 1 phòng ngủ, phòng kỹ thuật điện, WC, sân gia công.
- Tầng 2: Sảnh sinh hoạt chung, 2 phòng ngủ, WC, ban công rộng.
- Tầng 3: 1 phòng GYM, 1 phòng thờ, 1 phòng ngủ, WC, ban công thoáng.
- Tầng áp mái: Không gian dự phòng, phòng kho, phòng giặt phơi.

Lời khuyên
Gia chủ nên lựa chọn đơn vị thiết kế – thi công chuyên nghiệp để đảm bảo chuẩn phong cách tân cổ điển, tránh tình trạng “lai tạp” mất thẩm mỹ. Cân nhắc vật liệu cao cấp, bền bỉ cho phần mái, lan can, phào chỉ để công trình bền đẹp theo thời gian.
Nếu diện tích đất nhỏ hơn, có thể tham khảo mẫu tân cổ điển kết hợp hiện đại để tiết kiệm chi phí mà vẫn giữ được vẻ sang trọng.
2.7. Mẫu biệt thự tân cổ điển kiểu Pháp 3 tầng
Biệt thự tân cổ điển kiểu Pháp 3 tầng thể hiện sự kết hợp hoàn mỹ giữa tinh hoa kiến trúc cổ điển châu Âu và công năng sống hiện đại. Biệt thự kiểu Pháp với khối kiến trúc đồ sộ, từng chi tiết phào chỉ, hệ cột Corinthian, mái Mansard bề thế… tất cả đã tái hiện vẻ đẹp uy nghi, sang trọng và khẳng định vị thế của gia chủ.

Đặc điểm nổi bật trong thiết kế
- Ngoại thất bề thế, sang trọng:
- Mặt tiền chia thành ba phân vị đứng rõ ràng, bố cục cân xứng và chuẩn mực.
- Hệ cột Corinthian cao thông tầng kết hợp mái vòm, phào chỉ tinh xảo như lâu đài Pháp.
- Mái Mansard xanh than lịch lãm, xen kẽ cửa sổ vòm và chóp nhọn vươn cao, tạo điểm nhấn quyền quý.
- Màu sắc & vật liệu:
- Gam trắng chủ đạo kết hợp mái xanh than và gỗ cửa nâu trầm sang trọng.
- Cửa kính cường lực khung nhôm cao cấp tăng ánh sáng, mở rộng tầm nhìn, cách âm – cách nhiệt tốt.
- Bậc tam cấp lát đá granite vàng sẫm cùng lan can con tiện trắng tạo cảm giác uy nghi, vững chãi.
- Không gian cảnh quan:
- Sân vườn tiểu cảnh phân bổ hợp lý, hồ bơi phía sau như resort thu nhỏ.
- Lối đi và gara rộng rãi, thuận tiện cho di chuyển và sinh hoạt.

Ưu điểm
- Vẻ đẹp trường tồn, khẳng định vị thế gia chủ.
- Công năng đầy đủ, tiện nghi, phân chia khoa học.
- Không gian sống kết hợp nghỉ dưỡng với hồ bơi, tiểu cảnh.
- Hệ mái Mansard bền vững, tăng thêm tầng áp mái tiện ích.
Nhược điểm
- Chi phí xây dựng và hoàn thiện rất cao.
- Đòi hỏi diện tích đất lớn để cân xứng tỷ lệ công trình.
- Thi công phức tạp, yêu cầu thợ tay nghề cao.
- Tốn kém chi phí bảo trì và vệ sinh ngoại thất (phào chỉ, mái vòm).
Mặt bằng công năng
- Tầng 1: Sảnh chính, sảnh phụ, phòng khách rộng – liên thông bếp + phòng ăn, 1 phòng ngủ (WC riêng), phòng đa năng, sân gia công.
- Tầng 2: Sảnh sinh hoạt chung, 3 phòng ngủ đầy đủ tiện nghi, phòng giặt phơi, ban công, sân chơi.
- Tầng 3: 1 phòng ngủ, 1 phòng giải trí, 1 phòng massage, 1 phòng thờ trang nghiêm, WC, ban công, sân chơi.

Lời khuyên
- Gia chủ nên chuẩn bị ngân sách lớn, cả cho xây dựng và duy trì sử dụng.
- Phù hợp với những khu đất rộng (tối thiểu 250 – 300m²) để đảm bảo sự cân đối.
- Khi thi công cần chọn đơn vị uy tín, am hiểu kiến trúc Pháp để giữ đúng tinh thần thiết kế.
- Nội thất nên đồng bộ phong cách tân cổ điển để nâng cao giá trị tổng thể.
- Hệ thống chống thấm, thoát nước, điều hòa không khí phải được chú trọng ngay từ đầu.
2.8. Mẫu biệt thự 3 tầng tân cổ điển 4 phòng ngủ
Mẫu biệt thự 3 tầng tân cổ điển 4 phòng ngủ mang đậm hơi thở kiến trúc Pháp cổ điển, kết hợp tinh tế cùng tiện nghi hiện đại. Công trình không chỉ là chốn an cư sang trọng mà còn khẳng định gu thẩm mỹ, đẳng cấp của gia chủ giữa không gian sống đô thị.


Điểm nổi bật
- Phong cách kiến trúc: Tân cổ điển Pháp với hình khối đăng đối, phào chỉ thanh thoát, lan can hoa sắt nghệ thuật.
- Gam màu chủ đạo: Ghi sáng thanh lịch kết hợp cùng cửa gỗ xanh rêu nổi bật, mái Mansard đậm màu tạo điểm nhấn quyền uy.
- Hình khối kiến trúc: Khối chân đế tôn cao, bậc tam cấp lát đá tự nhiên, cửa sổ vòm cong mềm mại giảm bớt sự vuông vức thô cứng.
- Chi tiết nổi bật: Hệ thống cửa nhôm kính cao cấp bố trí dày đặc trên các mặt, giúp lấy sáng và gió tự nhiên, đồng thời tạo tầm nhìn rộng.
- Không gian sân vườn: Dù hạn chế diện tích nhưng được bố trí cây xanh, tiểu cảnh khoa học, vừa tôn lên vẻ đẹp của công trình vừa mang thiên nhiên vào nhà.


Ưu điểm
- Kiến trúc tinh tế, sang trọng
- Mang đậm dấu ấn kiến trúc Pháp với hình khối đối xứng, phào chỉ mềm mại, mái Mansard sang trọng.
- Gam màu ghi sáng kết hợp với cửa xanh và mái tối màu tạo nên tổng thể hài hòa, trang nhã.
- Công năng hợp lý
- Tầng 1: Phòng khách + bếp ăn rộng, liên kết với sảnh phụ, thuận tiện cho sinh hoạt.
- Tầng 2 & 3: Mỗi tầng đều bố trí phòng ngủ master khép kín, đảm bảo sự riêng tư. Ngoài ra còn có phòng SHC và GYM giúp gắn kết gia đình, nâng cao chất lượng sống.
- Tầng áp mái: Bố trí phòng thờ, kho, giặt sấy đa năng → tận dụng tốt không gian.
- Đảm bảo sự riêng tư và tiện ích
- Các phòng ngủ master đều có WC riêng, có phòng thay đồ.
- Khu vực bếp tách biệt, không ảnh hưởng đến không gian khách.
- Phong thủy & thiên nhiên
- Nhiều cửa sổ lớn giúp đón ánh sáng, gió tự nhiên.
- Không gian sân vườn tuy không rộng nhưng vẫn được bố trí hợp lý để tạo cảnh quan xanh mát.
Nhược điểm
- Chi phí xây dựng cao: Kiến trúc tân cổ điển Pháp với nhiều chi tiết phào chỉ, cột kèo tinh xảo đòi hỏi thi công công phu, chi phí nhân công và vật liệu cao.
- Diện tích sân vườn hạn chế: Do tận dụng phần lớn diện tích cho nhà ở nên khoảng không gian sân vườn nhỏ, chưa tạo được khuôn viên thoáng rộng như biệt thự vườn.
- Bảo trì ngoại thất: Các chi tiết phào chỉ, lan can hoa sắt, cửa gỗ cần được bảo dưỡng thường xuyên để duy trì vẻ đẹp và độ bền.
- Phù hợp đất vuông vức: Công trình có khối hình đối xứng, đẹp nhất khi nằm trên mảnh đất vuông hoặc chữ nhật cân đối. Nếu đất méo, hẹp thì sẽ khó áp dụng.
Mặt bằng công năng
- Tầng 1: Sảnh chính + sảnh phụ + 1 phòng khách + 1 khu vực bếp & phòng ăn + sân ướt + WC
- Tầng 2: 1 Phòng SHC + 2 phòng ngủ Master + WC
- Tầng 3: 1 phòng tập GYM + 2 phòng ngủ Master + WC
- Tầng áp mái: 1 Phòng thờ + 1 phòng đa năng + 1 phòng giặt sấy + 1 phòng kho

Lời khuyên
Gia chủ nên dùng vật liệu hiện đại (nhôm kính, đá granite, kính cường lực) để giảm bảo trì mà vẫn sang trọng, đồng thời tận dụng ban công và sân thượng trồng cây xanh. Công năng có thể bổ sung phòng ngủ ở tầng 1 cho người già hoặc tầng áp mái cho thành viên đông.
Cần dự trù chi phí vì phong cách này tốn kém, có thể giản lược phào chỉ cầu kỳ. Về phong thủy, phòng thờ đặt tầng áp mái và nên tham khảo chuyên gia cho vị trí cửa chính, cầu thang.
2.9. Biệt thự 3 tầng 5 phòng ngủ kiến trúc Tân cổ điển
Biệt thự 3 tầng 5 phòng ngủ kiến trúc Tân cổ điển mang vẻ đẹp sang trọng, bề thế và đẳng cấp. Công trình được thiết kế cho đại gia đình nhiều thế hệ, vừa đảm bảo công năng tiện nghi, vừa khẳng định gu thẩm mỹ và vị thế của gia chủ.

Biệt thự gây ấn tượng với mặt tiền rộng, bố cục cân đối theo tỷ lệ vàng, nổi bật cùng hệ mái Mansard uy nghi. Tone trắng kết hợp mái xanh đen tạo sự thanh lịch, sang trọng. Sảnh chính đồ sộ với thức cột Ionic, mái vòm bán nguyệt và đèn chùm châu Âu mang đến vẻ kiêu sa, lộng lẫy. Toàn bộ cửa nhôm kính cao cấp bố trí khoa học giúp tận dụng ánh sáng tự nhiên và mở rộng tầm nhìn.


Ưu điểm
- Kiến trúc sang trọng, tinh tế, thể hiện đẳng cấp.
- Bố cục đối xứng, tỷ lệ hài hòa.
- Ngoại thất sử dụng vật liệu hiện đại bền đẹp, ít bảo trì.
- Công năng rộng rãi, đáp ứng nhu cầu cho gia đình đông thành viên.
Nhược điểm
- Chi phí xây dựng và hoàn thiện cao.
- Yêu cầu diện tích đất lớn (trên 300m²).
- Thời gian thi công lâu do nhiều chi tiết phào chỉ và hoàn thiện tỉ mỉ.
Mặt bằng công năng
- Tầng 1: Sảnh chính, sảnh phụ, phòng khách, bếp + phòng ăn, 1 phòng ngủ, WC, sân ướt.
- Tầng 2: 1 phòng ngủ master, 2 phòng ngủ thường, WC, ban công.
- Tầng 3: Phòng thờ, 1 phòng ngủ, 1 phòng kho, WC, phòng xông hơi, phòng giặt sấy, ban công, sân chơi.

Lời khuyên
Khi xây dựng, nên sử dụng vật liệu hiện đại (cửa nhôm kính, đá granite) để vừa đảm bảo thẩm mỹ, vừa giảm chi phí bảo trì. Có thể đơn giản hóa phào chỉ để tiết kiệm ngân sách mà vẫn giữ được tinh thần Tân cổ điển. Về phong thủy, bố trí phòng thờ ở tầng 3 là hợp lý, đồng thời nên nhờ chuyên gia tư vấn thêm về vị trí cửa chính và cầu thang.
2.10. Mẫu biệt thự 3 tầng tân cổ điển có 7 phòng ngủ
Mẫu biệt thự 3 tầng tân cổ điển 7 phòng ngủ được thiết kế cho gia đình nhiều thế hệ, đáp ứng nhu cầu sinh hoạt đông thành viên. Công trình mang vẻ đẹp sang trọng, tinh tế với gam màu trắng chủ đạo, kết hợp mái Nhật thanh thoát, cân đối và gần gũi thiên nhiên.

Biệt thự nổi bật với kiến trúc vuông vắn, cân đối, mang ý nghĩa phong thủy tốt. Hệ mái Nhật xanh than đua rộng 4 phía kết hợp cùng các sảnh và ban công tạo sự bề thế. Mặt tiền gây ấn tượng nhờ cột trụ vững chãi, cửa gỗ tự nhiên sang trọng và hệ cửa kính khung nhôm xingfa hiện đại giúp lấy sáng tối đa.


Ưu điểm
- Thiết kế 7 phòng ngủ, phù hợp cho gia đình đông thành viên, đảm bảo sự riêng tư.
- Ngoại thất hài hòa giữa tân cổ điển và hiện đại, trang nhã và tinh tế.
- Mái Nhật vừa thẩm mỹ vừa giúp chống nóng, thoát nước tốt.
- Bố cục công năng khoa học, phân tách rõ không gian sinh hoạt chung và riêng.
Nhược điểm
- Cần diện tích đất rộng (trên 200m²) để đảm bảo tỷ lệ và không gian hợp lý.
- Chi phí đầu tư khá lớn do quy mô 7 phòng ngủ và trang trí ngoại thất chi tiết.
- Yêu cầu thiết kế kỹ để tránh cảm giác đồ sộ, thô cứng.
Mặt bằng công năng
- Tầng 1: Sảnh chính + sảnh phụ + phòng khách + phòng bếp & ăn + 1 phòng ngủ khép kín + WC chung.
- Tầng 2: 1 phòng ngủ Master + 3 phòng ngủ thường + WC chung + ban công.
- Tầng 3: Phòng thờ + 2 phòng ngủ thường + WC chung + sân chơi + sân phơi.

Lời khuyên
Nên ưu tiên vật liệu hiện đại (cửa kính nhôm, mái ngói cao cấp) để bền đẹp và ít bảo trì. Với gia đình nhiều thế hệ, bố trí thêm không gian sinh hoạt chung (phòng SHC hoặc phòng giải trí) sẽ tạo sự gắn kết. Đồng thời, nên tham khảo phong thủy cho vị trí phòng thờ và cửa chính để đảm bảo vượng khí.
Xem thêm: 99+ mẫu thiết kế biệt thự cổ điển 3 tầng đẹp vượt thời gian
3. Xu hướng mới cho biệt thự 3 tầng tân cổ điển
- Tân cổ tối giản (Neo-Classic Lite): Xu hướng này tập trung vào việc tiết chế phào chỉ rườm rà, thay vào đó nhấn mạnh sự cân đối của mảng khối kiến trúc. Nhờ vậy, biệt thự vẫn giữ được nét sang trọng cổ điển nhưng mang hơi thở hiện đại, tinh gọn và thanh thoát hơn.
- Thiết kế xanh: Việc ứng dụng giếng trời, vườn đứng, mái xanh và vật liệu thân thiện với môi trường giúp không gian sống trở nên trong lành, gần gũi thiên nhiên. Đây cũng là lựa chọn phù hợp với lối sống bền vững, đáp ứng nhu cầu nghỉ dưỡng ngay tại nhà.
- Thông minh & đa năng: Biệt thự ngày nay không chỉ để ở mà còn phải thích ứng với nhiều nhu cầu mới. Các không gian được bố trí linh hoạt, hỗ trợ làm việc tại nhà, kết hợp hệ thống năng lượng mặt trời và giải pháp thiết kế nhà thông minh, mang lại sự tiện nghi, tiết kiệm và hiện đại.

Biệt thự 3 tầng tân cổ điển không chỉ là biểu tượng của sự sang trọng và đẳng cấp mà còn đang dần được làm mới bởi những xu hướng thiết kế hiện đại, tối giản, xanh và thông minh. Sự kết hợp hài hòa giữa giá trị truyền thống và giải pháp sống tiện nghi chính là chìa khóa tạo nên không gian sống lý tưởng cho gia đình.
Nếu bạn đang tìm kiếm một đơn vị uy tín để hiện thực hóa ý tưởng biệt thự mơ ước, Công ty Thiết Kế Nhà 365 chính là đối tác đáng tin cậy. Với đội ngũ kiến trúc sư giàu kinh nghiệm và tư duy sáng tạo, chúng tôi cam kết mang đến cho bạn những công trình đẹp, bền vững và khác biệt.
Liên hệ ngay với Thiết Kế Nhà 365 để được tư vấn chi tiết và nhận giải pháp thiết kế tối ưu nhất cho ngôi nhà của bạn!










