Mẫu biệt thự song lập đang trở thành xu hướng thiết kế nổi bật trong những năm gần đây nhờ sự cân đối trong kiến trúc, tối ưu diện tích và đảm bảo không gian sống riêng tư. Với hai khối nhà đối xứng, biệt thự song lập vừa mang nét hiện đại, vừa giữ được sự sang trọng và gắn kết – lý tưởng cho các gia đình trẻ hoặc đa thế hệ.
Trong bài viết này, Thiết Kế Nhà 365 sẽ giới thiệu đến bạn 7+ mẫu biệt thự song lập đẹp nhất 2025, kèm bản vẽ chi tiết và gợi ý thiết kế giúp gia chủ lựa chọn được phương án thiết kế biệt thự phù hợp về thẩm mỹ, công năng và ngân sách.

1. Biệt thự song lập là gì?
Mẫu biệt thự song lập là kiểu nhà gồm hai khối biệt thự liền kề, được thiết kế đối xứng qua một trục chung, thường chung một bức tường ở giữa. Mỗi khối nhà có lối đi riêng, không gian sinh hoạt độc lập, nhưng vẫn đảm bảo sự hài hòa về kiến trúc tổng thể.
1.1. Đặc điểm nhận diện biệt thự song lập
- Kiến trúc đối xứng: Hai ngôi nhà giống nhau về hình khối, chiều cao, màu sắc và phong cách thiết kế.
- Không gian mở: Mỗi bên đều có sân vườn, ban công, cửa sổ lớn giúp đón ánh sáng tự nhiên.
- Công năng độc lập: Dù chung vách tường, mỗi căn vẫn có không gian sinh hoạt tách biệt hoàn toàn.
- Thiết kế đồng bộ: Thường áp dụng trong các khu đô thị cao cấp, đảm bảo cảnh quan đồng nhất.
1.2. Phân biệt biệt thự song lập và biệt thự đơn lập
| Tiêu chí | Biệt thự song lập | Biệt thự đơn lập | 
|---|---|---|
| Kiến trúc | Hai căn đối xứng, chung một tường giữa | Một căn độc lập, bốn mặt thoáng | 
| Không gian | Riêng tư tương đối, có vách chung | Riêng tư tuyệt đối, không chung tường | 
| Chi phí xây dựng | Thấp hơn 10–20% so với biệt thự đơn lập | Cao hơn, yêu cầu diện tích đất lớn | 
| Phù hợp với | Gia đình trẻ, khu đô thị, đất trung bình | Gia chủ có tài chính mạnh, đất rộng | 
| Phong cách phổ biến | Hiện đại, tân cổ điển, mái Nhật | Cổ điển, hiện đại, biệt thự sân vườn | 
1.3. Tại sao biệt thự song lập được ưa chuộng hiện nay?
- Tối ưu diện tích đất: Phù hợp với khu đô thị, nơi quỹ đất hạn chế.
- Chi phí hợp lý: Vẫn giữ được vẻ sang trọng mà chi phí thấp hơn biệt thự đơn lập.
- Thiết kế linh hoạt: Dễ kết hợp các phong cách hiện đại, tân cổ điển, mái Thái hoặc mái Nhật.
- Đáp ứng nhu cầu sống hiện đại: Đảm bảo riêng tư, tiện nghi và tính thẩm mỹ cao.
Nhờ sự cân bằng giữa công năng, chi phí và thẩm mỹ, biệt thự song lập trở thành lựa chọn hoàn hảo cho các gia đình mong muốn một không gian sống sang trọng nhưng vẫn gần gũi, tiện nghi.

2. Đặc điểm & Ưu – Nhược điểm biệt thự song lập
Biệt thự song lập là loại hình kiến trúc được yêu thích nhờ khả năng kết hợp hài hòa giữa thẩm mỹ, công năng và chi phí. Dưới đây là những đặc điểm nhận diện, ưu điểm nổi bật và một số hạn chế mà gia chủ nên cân nhắc trước khi thiết kế.
2.1. Đặc điểm thiết kế nổi bật
- Kiến trúc đối xứng, cân bằng: Hai khối nhà liền kề được thiết kế theo trục đối xứng, tạo tổng thể hài hòa và sang trọng. Mặt tiền thường áp dụng tỷ lệ vàng giúp công trình bề thế, thu hút.
- Không gian mở: biệt thự song lập ưu tiên sử dụng cửa kính lớn, giếng trời và ban công thoáng để tận dụng ánh sáng tự nhiên, gắn kết không gian trong – ngoài.
- Công năng độc lập: Mỗi căn có lối đi riêng, không gian sinh hoạt riêng, đảm bảo riêng tư cho từng gia đình nhưng vẫn thống nhất trong kiến trúc tổng thể.
- Vật liệu hiện đại: Sử dụng vật liệu cao cấp như đá ốp, kính Low-E, gỗ tự nhiên, nhôm Xingfa giúp tăng độ bền và tính thẩm mỹ.
- Đa dạng phong cách: Có thể thiết kế theo hướng hiện đại, tân cổ điển hoặc mái Nhật, tùy gu thẩm mỹ và ngân sách.
2.2. Ưu điểm nổi bật của biệt thự song lập
- Tối ưu diện tích: Hai căn liền kề giúp tiết kiệm không gian đất, phù hợp khu đô thị có mật độ xây dựng cao.
- Chi phí hợp lý: Giảm 10–20% chi phí xây dựng so với biệt thự đơn lập mà vẫn đảm bảo sự sang trọng và riêng tư.
- Thẩm mỹ đối xứng: Kiến trúc cân đối, bề thế, mang lại giá trị thị giác cao, phù hợp các khu nhà cao cấp.
- Dễ thi công & đồng bộ: Thi công nhanh, dễ kiểm soát tiến độ, đảm bảo sự nhất quán về kiến trúc khu vực.
2.3. Nhược điểm cần lưu ý
- Không gian chưa hoàn toàn độc lập: Hai căn chung một vách tường, cần xử lý kỹ phần cách âm và chống thấm.
- Khó cá nhân hóa: Hai căn giống nhau về mặt tiền, dễ mất đi nét độc đáo riêng nếu không có chi tiết nhấn nhá.
- Giới hạn mở rộng: Do kết cấu đối xứng, việc nâng tầng hoặc thay đổi mặt ngoài sẽ khó thực hiện.
- Phụ thuộc quy hoạch: Nếu nằm trong khu đô thị đồng bộ, việc thay đổi kiến trúc cần tuân theo quy định chung.
2.4. Bảng tổng hợp nhanh ưu – nhược điểm
| Tiêu chí | Ưu điểm | Nhược điểm | 
|---|---|---|
| Không gian | Riêng tư, tách biệt công năng hai căn | Không hoàn toàn độc lập như biệt thự đơn lập | 
| Chi phí đầu tư | Tiết kiệm 10–20% chi phí so với đơn lập | Khó thay đổi mặt ngoài hoặc mở rộng | 
| Thẩm mỹ kiến trúc | Đối xứng, hài hòa, sang trọng | Dễ trùng lặp, thiếu cá tính nếu không tùy biến | 
| Thi công & sử dụng | Thi công đồng bộ, nhanh chóng, dễ bảo trì | Cần xử lý kỹ phần tường chung để chống ồn, thấm | 
Biệt thự song lập là lựa chọn thông minh cho gia chủ muốn sở hữu không gian sống đẳng cấp, tiện nghi mà vẫn đảm bảo chi phí hợp lý. Thiết kế phù hợp, xử lý kỹ thuật chuẩn và phong cách hài hòa sẽ giúp công trình vừa đẹp vừa bền vững theo thời gian.

3. Bộ sưu tập 7+ mẫu biệt thự song lập đẹp nhất 2025
3.1. Mẫu biệt thự song lập phong cách hiện đại
Thiết kế biệt thự hiện đại là xu hướng được nhiều gia chủ yêu thích bởi sự tinh giản trong hình khối và tối ưu công năng sử dụng. Mẫu biệt thự song lập này nổi bật với các đường nét kiến trúc mạnh mẽ, dứt khoát, không cầu kỳ nhưng vẫn toát lên vẻ sang trọng và thời thượng. Toàn bộ mặt tiền được tạo điểm nhấn bằng sự kết hợp hài hòa giữa gỗ nhựa ngoài trời, lam gỗ và kính cường lực, mang đến cảm giác vừa ấm áp vừa hiện đại.
Không gian ngoại thất sử dụng gam màu trung tính chủ đạo như trắng, ghi và nâu gỗ, giúp tôn lên nét thanh thoát, tinh tế của công trình. Các mảng kính lớn không chỉ tạo sự thông thoáng mà còn giúp kết nối không gian trong – ngoài, mang thiên nhiên đến gần hơn với cuộc sống gia đình.

Ưu điểm:
- Phong cách hiện đại, hình khối vuông vắn, tối giản nhưng tinh tế.
- Mặt tiền sử dụng vật liệu cao cấp: gỗ nhựa, lam gỗ và kính cường lực.
- Không gian mở, đón sáng tự nhiên, gắn kết thiên nhiên với nội thất.
- Công năng bố trí khoa học, có bể bơi và sân vườn thư giãn tiện nghi.
Nhược điểm:
- Đòi hỏi thi công chính xác để đảm bảo các mảng khối vuông góc cân đối.
- Phong cách tối giản dễ tạo cảm giác lạnh nếu không phối hợp nội thất hợp lý.
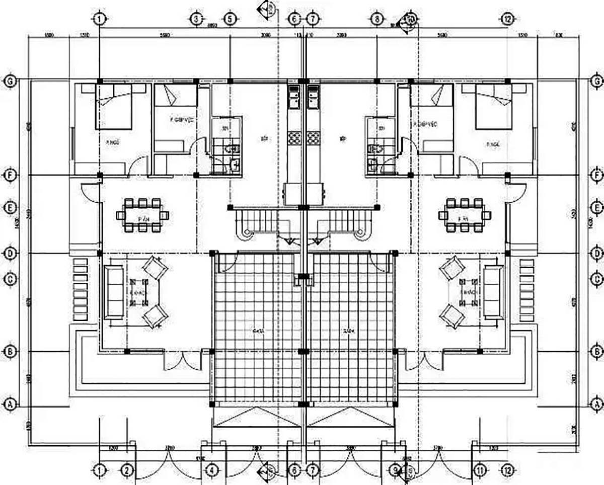
Mặt bằng công năng

Lời khuyên:
Mẫu biệt thự song lập hiện đại này đặc biệt phù hợp với gia chủ yêu thích sự trẻ trung, năng động. Để tăng tính thẩm mỹ và thoải mái, nên kết hợp thêm hệ thống chiếu sáng ngoài trời và tiểu cảnh xanh quanh hồ bơi – vừa tạo không gian thư giãn, vừa nâng tầm giá trị sống.
3.2. Mẫu biệt thự song lập phong cách tân cổ điển
Biệt thự song lập phong cách tân cổ điển là sự kết hợp hoàn hảo giữa nét sang trọng cổ điển và sự tinh giản hiện đại. Thiết kế kế thừa tinh hoa của kiến trúc châu Âu cổ điển, vẫn giữ lại các chi tiết trang trí mềm mại, duyên dáng nhưng được lược bớt sự cầu kỳ, rườm rà. Nhờ đó, công trình toát lên vẻ đẹp thanh lịch, tinh tế mà vẫn phù hợp với nhịp sống hiện đại.
Mặt tiền biệt thự được nhấn bằng các hệ cột trụ cân đối, phào chỉ nhẹ nhàng và ban công uốn cong mềm mại. Gam màu trắng kem kết hợp cùng hệ mái xám tro hoặc xanh than mang lại cảm giác sang trọng, bền vững theo thời gian. Tổng thể công trình hài hòa, nhẹ nhàng nhưng không kém phần đẳng cấp – đúng chuẩn tinh thần “tân cổ điển đương đại”.

Ưu điểm:
- Kiến trúc tân cổ điển thanh thoát, sang trọng và bền vững theo thời gian.
- Phào chỉ nhẹ, bố cục đối xứng tạo cảm giác cân bằng, dễ nhìn.
- Bố trí công năng hợp lý, tối ưu ánh sáng tự nhiên và thông gió cho toàn bộ không gian.
- Thích hợp với gia đình nhiều thế hệ, vừa tiện nghi vừa riêng tư.
Nhược điểm:
- Chi phí thi công và hoàn thiện cao hơn so với phong cách hiện đại tối giản.
- Yêu cầu kỹ thuật cao để thể hiện đúng tinh thần tân cổ điển, tránh rối mắt hoặc mất cân đối.
Mặt bằng công năng

Lời khuyên:
Mẫu biệt thự tân cổ điển phù hợp với gia chủ yêu thích sự tinh tế, nhẹ nhàng và sang trọng. Khi thiết kế, nên chọn gam màu trung tính, kết hợp vật liệu tự nhiên như đá marble, gỗ và sắt nghệ thuật để tăng tính thẩm mỹ. Ngoài ra, bố trí thêm không gian xanh hoặc sân vườn nhỏ sẽ giúp tổng thể công trình trở nên mềm mại và gần gũi hơn.
3.3. Mẫu biệt thự song lập sân vườn
Biệt thự song lập sân vườn là lựa chọn lý tưởng cho những gia chủ yêu thích không gian sống gần gũi thiên nhiên, đề cao sự thoáng đãng và tiện nghi. Điểm thu hút nhất của kiểu kiến trúc này chính là sự giao hòa giữa khối nhà và cảnh quan xung quanh – nơi mỗi góc nhỏ đều được tận dụng để mang ánh sáng và hơi thở thiên nhiên vào không gian sống.
Theo quan niệm truyền thống, “nhà cao cửa rộng” là biểu tượng cho cuộc sống sung túc, phóng khoáng. Kiểu biệt thự song lập sân vườn vì thế thường được thiết kế với cửa chính lớn, cửa sổ rộng cùng khoảng sân mở phía trước, giúp đón gió và ánh sáng tự nhiên hiệu quả. Cảnh quan sân vườn kết hợp cùng tiểu cảnh nước, lối dạo và cây xanh tạo nên bức tranh tổng thể vừa sang trọng vừa thư thái.
Được xây dựng trên khu đất rộng khoảng 200m², căn biệt thự song lập 3 tầng này được bố trí đầy đủ công năng hiện đại, đáp ứng nhu cầu sinh hoạt và nghỉ dưỡng của gia đình.

Ưu điểm:
- Không gian sống xanh, thoáng đãng, hài hòa với thiên nhiên.
- Thiết kế sân vườn và bể bơi mang lại giá trị nghỉ dưỡng cao, lý tưởng cho gia đình có trẻ nhỏ hoặc người lớn tuổi.
- Cửa sổ và cửa chính lớn giúp tận dụng tối đa ánh sáng và gió tự nhiên, giảm chi phí điện năng.
- Kiến trúc hiện đại nhưng gần gũi, tạo cảm giác thư giãn và yên bình.
Nhược điểm:
- Yêu cầu diện tích đất lớn (tối thiểu 180–200m²) để đảm bảo cảnh quan hài hòa.
- Chi phí thi công sân vườn và bể bơi cao hơn so với mẫu song lập tiêu chuẩn.
- Cần bảo trì định kỳ khu tiểu cảnh và hệ thống lọc nước hồ bơi để đảm bảo thẩm mỹ lâu dài.
Mặt bằng công năng

Lời khuyên:
Biệt thự sân vườn này đặc biệt phù hợp với những gia đình có lối sống hướng ngoại, yêu thích thiên nhiên và không gian thư giãn. Khi thiết kế, nên bố trí cảnh quan hài hòa giữa nhà – sân – hồ nước để tạo sự cân bằng âm dương, đồng thời chọn vật liệu chống thấm và sơn ngoại thất bền màu để duy trì vẻ đẹp công trình theo thời gian.
3.4. Mẫu biệt thự song lập mái bằng
Biệt thự song lập mái bằng mang phong cách kiến trúc hiện đại, thể hiện sự phóng khoáng và cá tính trong không gian sống. Khác với các mẫu biệt thự có mái dốc truyền thống, kiểu mái bằng mang lại vẻ đẹp tối giản, khỏe khoắn và phù hợp hoàn hảo với không gian đô thị. Chính vì vậy, đây là lựa chọn lý tưởng cho những gia chủ yêu thích sự tinh gọn, đẳng cấp và tiện nghi giữa lòng phố thị.
Căn biệt thự phố này nổi bật với hình khối vuông vức, mặt tiền được bố cục khoa học và sử dụng các gam màu trung tính kết hợp cùng vật liệu hiện đại. Không chỉ được điểm tô bằng các mảng tường sơn trắng, ghi và gỗ nhựa ngoài trời, công trình còn gây ấn tượng bởi hệ thống sân vườn và cây xanh bao quanh – mang lại sự tươi mát, cân bằng giữa nhịp sống năng động và thiên nhiên thư thái.

Ưu điểm:
- Thiết kế hiện đại, mái bằng khỏe khoắn, tối giản chi tiết giúp công trình bền đẹp theo thời gian.
- Mặt tiền rộng, bố cục đối xứng, tối ưu công năng cho nhà phố song lập.
- Cây xanh bố trí hợp lý giúp giảm nhiệt, tăng tính thẩm mỹ và cải thiện chất lượng không khí.
- Phù hợp với khu đô thị, mặt phố lớn hoặc khu dân cư cao cấp có diện tích mặt tiền rộng.
Nhược điểm:
- Hệ mái bằng cần xử lý chống thấm, thoát nước tốt để đảm bảo độ bền lâu dài.
- Không phù hợp với những gia chủ ưa chuộng phong cách truyền thống hoặc mái dốc.
- Thiết kế vuông khối dễ tạo cảm giác khô cứng nếu không kết hợp vật liệu và cảnh quan hợp lý.
Mặt bằng công năng

Lời khuyên:
Mẫu biệt thự song lập mái bằng là lựa chọn lý tưởng cho các gia chủ yêu thích phong cách hiện đại, đơn giản và sang trọng. Khi thi công, nên kết hợp các mảng xanh, giếng trời hoặc lam gỗ chắn nắng để tạo sự mềm mại cho kiến trúc. Ngoài ra, việc sử dụng vật liệu chống thấm, cách nhiệt tốt cho mái bằng sẽ giúp công trình luôn bền vững và mát mẻ quanh năm.
3.5. Mẫu biệt thự song lập 2 tầng
Biệt thự song lập 2 tầng là lựa chọn phổ biến của nhiều gia đình hiện nay nhờ thiết kế gọn gàng, tối ưu công năng và đảm bảo tính thẩm mỹ cao. Mẫu nhà này không chỉ mang đến không gian sống tiện nghi mà còn thể hiện phong cách sống hiện đại, sang trọng của gia chủ. Kiến trúc biệt thự 2 tầng chú trọng vào bố cục đối xứng, tỷ lệ cân bằng và sự hòa hợp giữa khối nhà – cảnh quan, giúp tổng thể công trình vừa thanh thoát vừa bề thế.
Điểm nhấn của biệt thự song lập 2 tầng nằm ở mặt tiền hiện đại, kết hợp hài hòa giữa vật liệu gỗ, đá và kính. Không gian được mở rộng tối đa nhờ cửa sổ lớn, ban công thoáng, mang đến ánh sáng tự nhiên và tầm nhìn rộng. Bên trong, các khu vực sinh hoạt được sắp xếp khoa học, thuận tiện cho các thành viên trong gia đình.

Ưu điểm:
- Thiết kế cân đối, dễ thi công, phù hợp với diện tích đất vừa và lớn.
- Công năng hợp lý, đáp ứng đầy đủ nhu cầu sinh hoạt, làm việc và nghỉ ngơi.
- Không gian mở, ánh sáng tự nhiên chan hòa, tăng năng lượng tích cực cho ngôi nhà.
- Có thể kết hợp sân vườn và gara để tạo sự tiện nghi và thẩm mỹ cao.
Nhược điểm:
- Chiều cao công trình giới hạn nên khó bố trí thêm các không gian chức năng đặc biệt như phòng gym, phòng giải trí.
- Phải tính toán kỹ khi lắp đặt hệ thống công nghệ thông minh để tối ưu tiện ích trong diện tích vừa phải.
Mặt bằng công năng

Lời khuyên:
Mẫu biệt thự 2 tầng này phù hợp với gia đình có từ 6–8 người, yêu thích phong cách sống hiện đại, tiện nghi. Khi thiết kế, nên chú trọng đến việc bố trí cửa sổ, giếng trời và khu vực sinh hoạt chung để đảm bảo lưu thông không khí và ánh sáng. Ngoài ra, sử dụng nội thất có kích thước phù hợp sẽ giúp tối ưu diện tích, tạo cảm giác rộng rãi và thoáng mát hơn cho toàn bộ ngôi nhà.
3.6. Mẫu biệt thự song lập 3 tầng
Biệt thự song lập 3 tầng là biểu tượng của không gian sống hiện đại, rộng rãi và tiện nghi. Với thiết kế ba tầng thông minh, công trình mang lại sự tách biệt giữa các khu vực sinh hoạt chung và riêng tư, giúp gia đình tận hưởng cảm giác thoải mái tuyệt đối trong từng không gian. Kiến trúc biệt thự chú trọng đến sự cân đối hình khối, đường nét thanh thoát và sự hòa hợp giữa vật liệu hiện đại và mảng xanh thiên nhiên.
Lối bố trí không gian mở giúp ngôi nhà đón gió và ánh sáng tự nhiên tối đa. Mỗi phòng ngủ đều có cửa hướng ra khu vườn nhỏ hoặc ban công, tạo cảm giác gần gũi với thiên nhiên. Đây là mẫu thiết kế lý tưởng cho những gia chủ mong muốn sở hữu một không gian sống yên bình nhưng vẫn sang trọng giữa lòng phố thị.

Ưu điểm:
- Không gian ba tầng rộng rãi, phân tách rõ ràng giữa khu sinh hoạt chung và riêng tư.
- Các phòng đều hướng ra không gian xanh, tận dụng tối đa ánh sáng và gió tự nhiên.
- Thiết kế thông minh, tạo cảm giác thông thoáng và tăng tính kết nối giữa các thành viên trong gia đình.
- Phù hợp với gia đình đông người hoặc những ai yêu thích không gian sống nhiều tầng, tiện nghi.
Nhược điểm:
- Chi phí đầu tư xây dựng và hoàn thiện cao hơn so với các mẫu 2 tầng.
- Yêu cầu thiết kế kết cấu chịu lực tốt để đảm bảo an toàn và độ bền lâu dài.
- Việc di chuyển giữa các tầng có thể bất tiện cho người lớn tuổi hoặc trẻ nhỏ nếu không bố trí thang máy.
Mặt bằng công năng

Lời khuyên:
Mẫu biệt thự 3 tầng này là lựa chọn lý tưởng cho những gia chủ có quỹ đất vừa phải nhưng muốn sở hữu không gian sống rộng và sang trọng. Khi thiết kế, nên chú trọng bố trí khu vườn phụ hoặc giếng trời để tăng ánh sáng và thông gió tự nhiên. Ngoài ra, việc kết hợp thang máy mini sẽ giúp tăng sự tiện nghi và phù hợp với gia đình nhiều thế hệ.
3.7. Mẫu biệt thự song lập 4 tầng
Biệt thự song lập 4 tầng mang đến không gian sống đẳng cấp, rộng rãi và đầy đủ tiện nghi cho các gia đình có nhiều thế hệ. Với quy mô lớn và kiến trúc bề thế, mẫu biệt thự này thể hiện rõ gu thẩm mỹ sang trọng, tinh tế và đẳng cấp của gia chủ. Các khối kiến trúc được bố trí cân đối, mặt tiền đối xứng, vừa thể hiện tính thẩm mỹ cao vừa đảm bảo công năng khoa học.
Biệt thự 4 tầng thường được thiết kế theo phong cách hiện đại hoặc tân cổ điển nhẹ, kết hợp hài hòa giữa vật liệu tự nhiên và hiện đại như đá ốp, gỗ, kính cường lực và lam chắn nắng. Nhờ đó, tổng thể công trình vừa vững chãi, sang trọng vừa gần gũi với thiên nhiên, tạo nên một không gian sống lý tưởng giữa lòng đô thị.

Ưu điểm:
- Không gian rộng rãi, đáp ứng đầy đủ nhu cầu sinh hoạt, nghỉ ngơi và làm việc của nhiều thế hệ.
- Kiến trúc 4 tầng bề thế, giúp tận dụng tối đa diện tích theo chiều cao, phù hợp với khu đất phố hoặc đô thị.
- Bố trí công năng hợp lý, mỗi tầng có chức năng riêng biệt, đảm bảo sự riêng tư và tiện nghi.
- Thiết kế mặt tiền sang trọng, tôn lên đẳng cấp và địa vị của gia chủ.
Nhược điểm:
- Chi phí xây dựng và hoàn thiện cao hơn so với biệt thự 2–3 tầng.
- Yêu cầu kết cấu móng, cột, dầm và hệ thống kỹ thuật vững chắc, đòi hỏi đơn vị thiết kế – thi công chuyên môn cao.
- Việc di chuyển giữa các tầng có thể bất tiện nếu không lắp đặt thang máy.
Mặt bằng công năng

Lời khuyên:
Mẫu biệt thự song lập 4 tầng phù hợp với gia chủ có diện tích đất rộng và mong muốn không gian sống sang trọng, bền vững. Khi thiết kế, nên chú trọng đến việc phân tách công năng rõ ràng giữa các tầng và bố trí phòng thờ theo hướng phong thủy tốt để tăng vận khí cho ngôi nhà. Ngoài ra, việc kết hợp thêm mảng xanh và giếng trời sẽ giúp không gian thông thoáng, mát mẻ và tràn đầy năng lượng tự nhiên.
4. Lưu ý cho gia chủ khi thiết kế biệt thự song lập
Để sở hữu một biệt thự song lập vừa đẹp, tiện nghi, vừa tối ưu chi phí, gia chủ cần nắm rõ một số nguyên tắc quan trọng trong giai đoạn lên ý tưởng, thiết kế và thi công.
4.1. Xác định rõ mục đích sử dụng và nhu cầu thực tế
- Xác định số lượng thành viên, thói quen sinh hoạt và nhu cầu riêng (phòng làm việc, phòng gym, không gian giải trí…).
- Lựa chọn phong cách kiến trúc phù hợp: hiện đại, tân cổ điển hoặc mái Nhật tùy gu thẩm mỹ và ngân sách.
- Ưu tiên bố cục mặt bằng khoa học, tối ưu công năng – hạn chế không gian dư thừa.
4.2. Cân đối tỷ lệ đất xây dựng và diện tích sân vườn
- Không nên xây dựng quá sát ranh đất – hãy dành khoảng trống cho lối đi, tiểu cảnh, và thông gió tự nhiên.
- Tỷ lệ lý tưởng: diện tích xây dựng chiếm 55–65% tổng lô đất, phần còn lại dành cho cảnh quan và tiện ích ngoài trời.
- Giữ khoảng cách hợp lý giữa hai khối nhà để đảm bảo riêng tư và thông thoáng.
4.3. Xử lý kỹ phần tường chung và kết cấu
- Phần tường chung giữa hai căn biệt thự cần xử lý cách âm và chống thấm đúng kỹ thuật.
- Thiết kế hệ thống điện nước độc lập, tránh dùng chung đường ống hoặc dây dẫn giữa hai căn.
- Ưu tiên sử dụng vật liệu nhẹ, bền, cách âm tốt như gạch AAC, tấm panel hoặc vật liệu GRC.
4.4. Tối ưu chi phí và lựa chọn đơn vị thiết kế uy tín
- Không nên chọn thiết kế mẫu chung chung – hãy yêu cầu bản vẽ tùy chỉnh theo thực tế khu đất và nhu cầu sử dụng.
- Chọn đơn vị thiết kế có kinh nghiệm về biệt thự song lập để đảm bảo tính kỹ thuật và thẩm mỹ đồng bộ.
- Ưu tiên gói thiết kế & thi công trọn gói để dễ kiểm soát tiến độ, chi phí và chất lượng.
4.5. Chú trọng phong thủy và hướng nhà
- Chọn hướng nhà phù hợp mệnh gia chủ, đảm bảo đón gió, tránh nắng gắt buổi chiều.
- Bố trí phòng thờ, bếp, cầu thang theo nguyên tắc phong thủy hài hòa âm dương.
- Kết hợp tiểu cảnh nước, cây xanh hoặc hòn non bộ để tăng năng lượng sinh khí cho không gian sống.

5. Xu hướng mới trong thiết kế biệt thự song lập
Trong tương lai, biệt thự song lập tiếp tục khẳng định vị thế là dòng kiến trúc được ưa chuộng nhờ khả năng thích ứng linh hoạt với xu hướng sống hiện đại. Dưới đây là 4 xu hướng thiết kế nổi bật đang và sẽ định hình phong cách biệt thự song lập trong những năm tới.
5.1. Thiết kế xanh – Không gian sống hòa hợp thiên nhiên
- Tăng diện tích cây xanh, sân vườn, tiểu cảnh nước và giếng trời giúp cân bằng không khí, tạo môi trường sống trong lành.
- Ưu tiên vật liệu thân thiện môi trường như gỗ tự nhiên, gạch không nung, sơn sinh học.
- Áp dụng xu hướng thiết kế xanh để giảm thiểu nhiệt độ và tiết kiệm năng lượng.
5.2. Thiết kế thông minh – Nhà ở ứng dụng công nghệ
- Tích hợp hệ thống nhà thông minh (Smart Home): điều khiển chiếu sáng, nhiệt độ, an ninh qua thiết bị di động.
- Tối ưu chi phí vận hành, tăng tiện nghi và an toàn cho gia đình.
- Thiết kế linh hoạt cho phép mở rộng, nâng cấp công nghệ trong tương lai.
5.3. Vật liệu bền vững – An toàn & tiết kiệm năng lượng
- Thiết kế nhà tiết kiệm năng lượng: sử dụng vật liệu chống nóng, cách âm, kính Low-E, gạch ốp cách nhiệt, sơn chống tia UV.
- Ưu tiên vật liệu tái chế và thân thiện môi trường để giảm phát thải CO₂.
- Tăng tuổi thọ công trình, giảm chi phí bảo trì trong quá trình sử dụng.
5.4. Tối ưu công năng – Không gian mở đa dụng
- Bố trí phòng đa năng (làm việc, học tập, thư giãn) phù hợp nhu cầu linh hoạt của gia đình hiện đại.
- Thiết kế liên thông nội – ngoại thất giúp không gian thoáng rộng, đón sáng và gió tự nhiên.
- Ứng dụng phong cách tối giản (minimalist) để mang lại cảm giác rộng rãi, thư thái.
Xu hướng thiết kế biệt thự song lập trong tương lai hướng tới sự cân bằng giữa thẩm mỹ – công năng – bền vững. Đây cũng chính là định hướng thiết kế mà Thiết Kế Nhà 365 đang áp dụng, nhằm mang đến cho khách hàng những công trình không chỉ đẹp mà còn thông minh, tiết kiệm và thân thiện với môi trường.

Biệt thự song lập là sự kết hợp hoàn hảo giữa tính thẩm mỹ, công năng và chi phí hợp lý – đáp ứng trọn vẹn nhu cầu sống hiện đại của các gia đình Việt. Với kiến trúc đối xứng tinh tế, không gian mở thoáng sáng và thiết kế linh hoạt, mô hình này đang trở thành xu hướng nổi bật trong tương lai.
Để công trình đạt được vẻ đẹp bền vững và chuẩn phong thủy, việc lựa chọn đơn vị thiết kế & thi công uy tín là yếu tố then chốt. Thiết Kế Nhà 365 – với kinh nghiệm nhiều năm trong lĩnh vực thiết kế nhà phố, biệt thự và nội thất cao cấp – cam kết mang đến cho bạn:
- Giải pháp thiết kế biệt thự song lập tối ưu về công năng, chi phí và phong thủy.
- Đội ngũ kiến trúc sư chuyên nghiệp, sáng tạo, tận tâm với từng chi tiết.
- Quy trình làm việc rõ ràng, bản vẽ chi tiết và tiến độ thi công chuẩn xác.
- Dịch vụ thiết kế & thi công trọn gói giúp khách hàng tiết kiệm thời gian và chi phí.
Nếu bạn đang ấp ủ ý tưởng xây dựng biệt thự song lập, hãy liên hệ ngay với Thiết Kế Nhà 365 để được tư vấn miễn phí và nhận bản vẽ thiết kế phù hợp nhất cho tổ ấm của mình.
Chúc bạn sớm sở hữu ngôi biệt thự hoàn hảo – nơi mọi khoảnh khắc đều là sự tận hưởng và hạnh phúc bên gia đình!
 
				
 










