Mẫu nhà 2 tầng mặt tiền 10m là mẫu nhà được xây dựng khá nhiều tại các vùng nông thôn cũng như khu vực ngoài thành phố. Mẫu nhà hiện đại này sẽ mang đến một không gian sống thoải mái, đáp ứng đầy đủ công năng để gia đình sinh hoạt nhờ chiều ngang dài đến 10m. Tham khảo ngay các mẫu nhà đẹp 2 tầng ngang 10m hiện đại, thông thoáng dưới đây nhé.
-
1. Tổng hợp những nhà 2 tầng mặt tiền 10m đẹp ngất ngây, vạn người mê
- 1.1 Mẫu nhà 2 tầng mặt tiền 10m mái bằng đơn giản
- Mẫu nhà mặt tiền 10m 2 tầng mái thái hiện đại
- Mẫu nhà mặt tiền 10m có mái Nhật truyền thống
- Thiết kế nhà 2 tầng mặt tiền 10m phong cách tân cổ điển
- Mẫu thiết kế nhà 2 tầng mặt tiền 10m có 3 phòng ngủ
- Mẫu thiết kế nhà 2 tầng mặt tiền 10m có 4 phòng ngủ
- Mẫu biệt thự nhà vườn 2 tầng 10m sang trọng
- Mẫu thiết kế nhà 2 tầng mặt tiền 10m kết hợp sân vườn
- Một số ưu điểm nổi bật của mẫu nhà 2 tầng mặt tiền 10m
- Thiết Kế Nhà 365 – Đơn vị thiết kế thi công nhà 2 tầng 10m uy tín, chất lượng
1. Tổng hợp những nhà 2 tầng mặt tiền 10m đẹp ngất ngây, vạn người mê
1.1 Mẫu nhà 2 tầng mặt tiền 10m mái bằng đơn giản
Mẫu nhà 2 tầng mái bằng đơn giản là một mẫu thiết kế nhà ở mang kiến trúc hiện đại được nhiều người ưa chuộng. Tông màu chính của ngôi nhà là màu trắng và màu xám hiện đại, được kết hợp với nhau một cách hài hòa.

Mặt bằng công năng của ngôi nhà được bố trí một cách khoa học, đầy đủ chức năng sử dụng với:
- Tầng 1 được bố trí 1 phòng khách, 1 phòng bếp kết hợp phòng ăn, 1 phòng ngủ master và 1 phòng ngủ thường.
- Tầng 2 của ngôi nhà được bố trí 2 phòng ngủ, 1 phòng gym và 1 phòng thờ.


Mẫu nhà mặt tiền 10m 2 tầng mái thái hiện đại
Đây là một ngôi nhà 2 tầng với mặt tiền 10m được thiết kế kiểu mái thái hiện đại. Công trình này được phối màu một cách hài hòa với tông màu trắng làm chủ đạo thêm một chút viền màu nâu ánh đồng tạo điểm nhấn.
Hệ cửa kính giúp ngôi nhà trở nên sáng sủa và thoáng đãng hơn, mang đến nguồn năng lượng tích cực từ tự nhiên. Hệ mái thái giúp ngôi nhà trở nên đẹp thanh thoát và trẻ trung nên được nhiều người vô cùng yêu thích.

Mặt bằng công năng của ngôi nhà được các kiến trúc sư nghiên cứu một cách kỹ lưỡng, các phòng chức năng được bố trí khoa học và thuận tiện cho việc sử dụng:
- Tầng 1 của ngôi nhà được bố trí 1 phòng khách liền bếp kết hợp với phòng ăn và 1 phòng ngủ.
- Tầng 2 của ngôi nhà được bố trí 3 phòng ngủ và 1 sân phơi.


Mẫu nhà mặt tiền 10m có mái Nhật truyền thống
Đây là một mẫu nhà 2 tầng mặt tiền 10m với mái Nhật truyền thống. Với phong cách hiện đại đơn giản, các họa tiết cầu kỳ được tinh giản tối đa nhưng vẫn tạo ấn tượng trong mắt người nhìn. Phần mái Nhật tạo nên sự khỏe khoắn, vững chãi và bề thế cho ngôi nhà 2 tầng.
Màu sắc chủ đạo là tông màu sơn trắng, mái nhà màu đen. Bên cạnh đó, phần cửa sổ, cửa chính và phần mái che sân thượng ở tầng 2 có sử dụng chất liệu gỗ màu cánh gián tạo điểm nhấn cho ngôi nhà và mang đến vẻ đẹp gần gũi.

Mặt bằng công năng của ngôi nhà 2 tầng mặt tiền 10m mái Nhật truyền thống này được các kiến trúc sư bố trí như sau:
- Tầng 1 được bố trí 1 phòng khách, 1 phòng bếp kết hợp phòng ăn và 1 phòng ngủ.
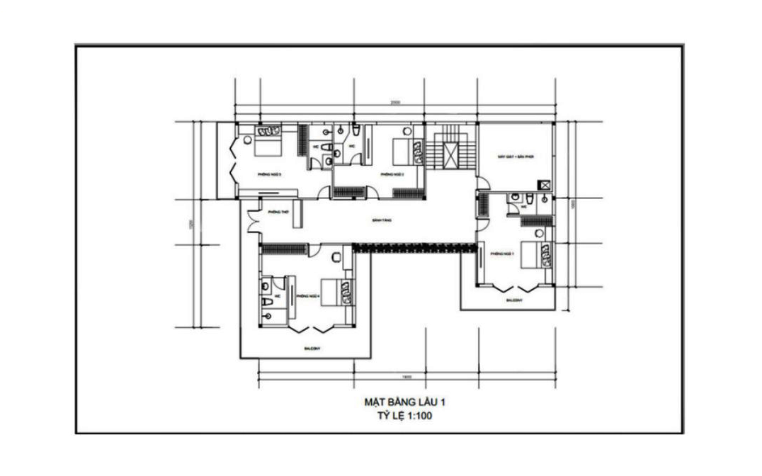
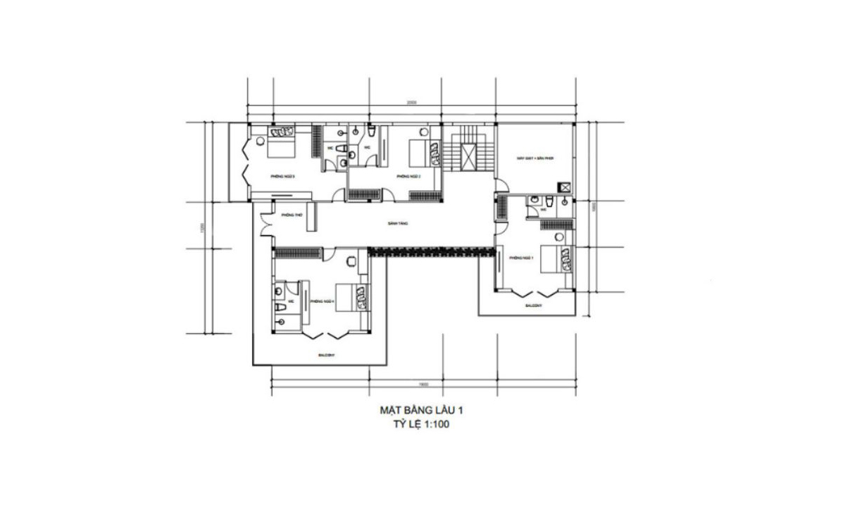
- Tầng 2 được bố trí 4 phòng ngủ và 1 phòng thờ


Thiết kế nhà 2 tầng mặt tiền 10m phong cách tân cổ điển
Phong cách tân cổ điển luôn được nhiều người yêu thích bởi vẻ đẹp sang trọng, đẳng cấp khó có mẫu thiết kế nào sánh bằng. Với phong cách kiến trúc này thì bạn có thể chọn mái Thái hoặc mái Nhật để giúp ngôi nhà 2 tầng mặt tiền 10m trở nên đẹp mắt hơn.

Mẫu thiết kế nhà 2 tầng mặt tiền 10m có 3 phòng ngủ
Đây là mẫu nhà được thiết kế dành cho gia đình có có 2-3 thế hệ. Ngôi nhà 2 tầng mặt tiền 10m có 3 phòng ngủ thường được thiết kế theo phong cách hiện đại với mái bằng. Do đó, nó phù hợp với tình hình tài chính của hầu hết gia đình người Việt. Bên cạnh đó, nó sẽ mang đến một không gian sống tiện nghi và thoải mái cho cả gia đình.

Mẫu thiết kế nhà 2 tầng mặt tiền 10m có 4 phòng ngủ
Ngôi nhà 4 phòng ngủ này sẽ thích hợp cho gia đình có 3 thế hệ sinh sống. Thường thì mẫu thiết kế này sẽ bố trí tầng 1 là không gian sinh hoạt chung như phòng khách, phòng bếp kết hợp phòng ăn và 1 phòng ngủ. Còn tầng 2 sẽ bố trí các phòng ngủ còn lại và có thể có thêm 1 phòng thờ.

Mẫu biệt thự nhà vườn 2 tầng 10m sang trọng
Đây là một không gian sống cực kỳ lý tưởng đối với những người có mảnh đất rộng rãi để xây dựng nhà ở. Sân vườn được thiết kế xanh mát vừa mang đến không gian sống mát lành vừa giúp làm tăng tính thẩm mỹ cho toàn bộ kết cấu ngôi nhà.

Mẫu thiết kế nhà 2 tầng mặt tiền 10m kết hợp sân vườn
Theo quan niệm nhà ở ngày xưa “nhà cao cửa rộng” là mong muốn có được một ngôi nhà thoáng mát và mang đến sự dễ chịu, thoải mái cho người sống trong ngôi nhà đó. Lối kiến trúc này không những thích hợp mà còn trở thành xu hướng mới hiện đại ngày nay. Họ thường thiết kế sân vườn xanh mát, hệ thống cửa chính, cửa sổ rộng rãi giúp ngôi nhà tràn ngập gió và ánh sáng từ thiên nhiên.


Tham khảo: Hoàn thiện biệt thự mái Nhật 2 tầng – Chị Diệp – Đồng Nai
Một số ưu điểm nổi bật của mẫu nhà 2 tầng mặt tiền 10m
Mang lại không gian thoải mái
Mẫu nhà mặt tiền 10m 2 tầng là một ngôi nhà có diện tích sử dụng khá lớn. Chính vì vậy, thường những mẫu nhà này sẽ mang đến một không gian sống rộng rãi và đầy đủ tiện nghi. Mẫu thiết kế này không chỉ đáp ứng được không gian sinh hoạt chung thoải mái mà còn dễ dàng bố trí đủ không gian sinh hoạt riêng tư cho các thành viên trong gia đình.

Đáp ứng đầy đủ công năng
Những mẫu nhà mặt tiền 10m 2 tầng sẽ phù hợp với các gia đình có nhiều thế hệ và có động thành viên sinh sống. Việc bố trí các khu vực chức năng như phòng ngủ dành cho ông bà, cha mẹ và con cái cũng sẽ dễ dàng và hợp lý.
Ngoài ra, bởi mẫu thiết kế nhà ở này có diện tích lớn nên ngoài các khu vực sinh hoạt chung như phòng khách, phòng bếp thì còn có thể bố trí thêm phòng sinh hoạt chung, phòng giải trí, sân thượng,…

Đa dạng phong cách thiết kế
So với những ngôi nhà phố có mặt tiền hẹp thì ngôi nhà 2 tầng có mặt tiền 10m sẽ giúp bạn dễ dàng lựa chọn phong cách kiến trúc ngoại thất từ hiện đại, đơn giản hay tân cổ điển đều được. Ngay cả khi bạn yêu thích phong cách cầu kỳ như phong cách cổ điển cũng không thành vấn đề. Ngoài ra, bạn cũng không bị hạn chế bởi các nguyên tắc nhất định như khi xây nhà có diện tích hạn hẹp.

Tham khảo: Thiết kế nhà phố 3 tầng 5x18m cho chị Hà ở Quận 8
Thiết Kế Nhà 365 – Đơn vị thiết kế thi công nhà 2 tầng 10m uy tín, chất lượng
Nếu bạn muốn xây dựng một ngôi nhà 2 tầng mặt tiền 10m chất lượng và tối ưu được giá thiết kế nhà phố thì hãy tìm một đơn vị và uy tín như Thiết Kế Nhà 365. Chúng tôi sẽ giúp bạn lên ý tưởng cũng như đưa ra phương án xây dựng tốt nhất, giảm thiểu rủi ro, rút ngắn thời gian xây dựng. Lý do mà bạn nên tin tưởng và giao trọn công trình mơ ước của mình cho chúng tôi đó là:
- Đội ngũ KTS 10 năm kinh nghiệm trực tiếp tư vấn bố trí công năng, thiết kế từ ngoại thất đến nội thất
- Đưa ra 2 đến 3 phương án thiết kế để gia chủ dễ dàng lựa chọn, tư vấn phong thủy phù hợp
- Sau khi thiết kế xong sẽ lên bản dự toán chi tiết và chính xác
- Hỗ trợ xin phép xây dựng và hoàn tất thủ tục hoàn công sau khi xây xong nhà
Trên đây là những thông tin về những mẫu nhà 2 tầng mặt tiền 10m. Hy vọng với những thông tin này thì bạn sẽ tìm được ý tưởng tuyệt vời cho tổ ấm của mình. Liên hệ ngay đến Công ty Thiết Kế Nhà 365 để được tư vấn miễn phí về mẫu thiết kế và giá thi công nhà phố mà bạn đang quan tâm nhé!










