Mẫu thiết kế nhà 3 tầng 60m2 là xu hướng được nhiều gia đình lựa chọn gần đây. Những ngôi nhà 60m2 3 tầng không chỉ đáp ứng về mặt thẩm mỹ, đầy đủ công năng mà mức chi phí xây dựng cũng tiết kiệm hơn so với các mẫu nhà 2 tầng hay 1 tầng khác. Trong bài viết này, hãy cùng Thiết Kế Nhà 365 khám phá 55+ mẫu thiết kế nhà 3 tầng 60m2 đẹp, hiện đại, giá từ 900tr.
1. Xu hướng thiết kế nhà 60m2 có 3 tầng
Mẫu nhà 3 tầng diện tích 60m2 (thường là khổ đất 4x15m, 5x12m hoặc 6x10m) sở hữu những ưu điểm vượt trội:
Tối ưu công năng: Đáp ứng đầy đủ từ 3-4 phòng ngủ, phòng thờ, sân thượng và khu vực để xe.
Chi phí hợp lý: Với ngân sách từ 900 triệu (phần thô), bạn hoàn toàn có thể sở hữu một ngôi nhà kiên cố, thẩm mỹ.
Phù hợp pháp lý: Đa số các lô đất phố 60m2 được phép xây tối đa 3 tầng 1 tum, giúp gia chủ khai thác tối đa diện tích sử dụng mà không vi phạm mật độ xây dựng.
Mẫu nhà hiện đại này là lựa chọn hoàn hảo, đảm bảo thẩm mỹ mà vẫn tối ưu công năng hiệu quả.

Tham khảo: 101+ Mẫu nhà mái bằng 3 tầng đẹp hút hồn, ấn tượng 2026
2. Gợi ý bản vẽ công năng nhà 3 tầng 60m2 khoa học nhất
Thiết kế bản vẽ công năng cho nhà 3 tầng diện tích 60m2 đòi hỏi sự cân nhắc kỹ lưỡng để đảm bảo tính logic, hợp lý, đủ công năng sinh hoạt mà vẫn tạo ra không gian thoải mái. Tầng trệt có sân trước đậu xe và trồng cây cảnh, phòng khách tiện nghi kết hợp với tiểu cảnh xanh mát, bếp ăn thoải mái, sân sau tiện lợi được bố trí cạnh nhà vệ sinh.
2.1 Mặt bằng tầng trệt: Khu vực sinh hoạt chung
Tầng trệt được thiết kế mở để tạo cảm giác rộng rãi hơn diện tích thực 60m2.
Sân trước: Chừa khoảng lùi 2-3m làm chỗ để xe và tiểu cảnh.
Phòng khách: Liên thông với bếp ăn để tối ưu diện tích.
Cầu thang & WC: Bố trí giữa nhà để thuận tiện di chuyển.
Tham khảo dự án thiết kế nhà 3 tầng diện tích 4x15m cho khách hàng ở Tây Ninh của Thiết Kế Nhà 365

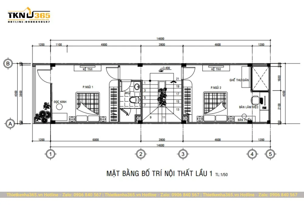
2.2 Lầu 1: Không gian nghỉ ngơi riêng tư
Lầu 1 thường được bố trí 2 phòng ngủ lớn. Mỗi phòng đều có cửa sổ hoặc ban công rộng để lấy sáng tự nhiên. Trang bị nội thất thông minh như tủ âm trần giúp căn phòng 60m2 luôn gọn gàng.
Ngoài việc bố trí mặt bằng, kiến trúc sư của chúng tôi khuyên bạn nên chú trọng vào công đoạn thiết kế nội thất nhà phố ngay từ đầu để có sự đồng bộ về màu sắc và ánh sáng cho toàn bộ không gian 3 tầng

2. 3 Lầu 2: Phòng thờ và Sân thượng đa năng
Lầu 2 của mẫu nhà 3 tầng này được thiết kế kỹ lưỡng nhằm tối ưu hóa công năng. Sân thượng là không gian lý tưởng cho việc thư giãn và tận hưởng không gian xanh. Phòng thờ được bố trí phía ngoài với hướng hợp phong thủy, đồng thời đảm bảo sự yên tĩnh cho việc tập trung và cầu nguyện. 1 phòng ngủ bổ sung được thêm vào lầu này, có thể sử dụng cho khách đến thăm hoặc như không gian làm việc tạm thời.

Tham khảo: 99+ mẫu nhà 1 trệt 2 lầu tiện nghi, thông thoáng
3. Top các mẫu thiết kế nhà 3 tầng 60m2 hiện đại, dẫn đầu xu hướng
Với sự kết hợp tinh tế giữa kiến trúc sang trọng và tính tiện ích, những mẫu thiết kế nhà 3 tầng 60m2 đang được nhiều gia đình lựa chọn. Mẫu nhà không chỉ thu hút bởi vẻ đẹp ngoại thất mà còn bởi không gian sống linh hoạt và thoải mái bên trong. Dưới đây là tổng hợp các mẫu nhà 3 tầng đẹp được khách hàng tại Thiết Kế Nhà 365 đánh giá cao nhất trong năm qua:
3.1 Mẫu nhà phố 3 tầng 60m2 phong cách hiện đại
Sử dụng các hình khối mạnh mẽ, kết hợp vật liệu kính và gỗ nhựa ngoài trời tạo nên vẻ đẹp sang trọng, không bao giờ lỗi mốt.








3.2 Thiết kế nhà ống 3 tầng 60m2 phong cách Tân cổ điển
Dành cho những gia chủ yêu thích vẻ đẹp quyền quý với các chi tiết phào chỉ nhẹ nhàng, ban công sắt mỹ nghệ.

3.3 Mẫu nhà 3 tầng 60m2 có gác lửng/tum
Giải pháp này giúp tăng diện tích sử dụng mà vẫn đảm bảo chiều cao công trình theo quy định của đô thị.

Tham khảo: 10+ Mẫu thiết kế nhà ngang 6m dài 10m đẹp ấn tượng nhất 2025
Dự toán chi phí thiết kế và xây dựng nhà 3 tầng 60m2 (Update mới nhất)
Để bạn dễ dàng hình dung, Thiết Kế Nhà 365 lập bảng dự toán sơ bộ cho mẫu nhà ống 3 tầng 60m2:
| Hạng mục thi công | Đơn giá (VNĐ/m2) | Thành tiền (Tạm tính) |
| Thiết kế kiến trúc & Nội thất | 120.000 – 180.000 | 25.000.000 |
| Xây dựng phần thô & Nhân công | 3.500.000 – 3.800.000 | ~ 680.000.000 |
| Xây nhà trọn gói (Chìa khóa trao tay) | 5.500.000 – 6.800.000 | ~ 1.1 tỷ – 1.4 tỷ |
Lời khuyên từ KTS: Chi phí thực tế sẽ phụ thuộc vào phong cách kiến trúc (Hiện đại sẽ rẻ hơn Tân cổ điển) và chủng loại vật tư hoàn thiện mà bạn lựa chọn.
Tham khảo: Giá Xây Nhà 3 Tầng Trọn Gói 2026: Cập Nhật Chi Phí Thực Tế & Cách Tính Chi Tiết
Thiết Kế Nhà 365 – đơn vị thiết kế & xây dựng nhà 3 tầng 60m2
Bạn đang ấp ủ ý tưởng xây dựng một ngôi nhà 3 tầng 60m2 cho gia đình? Thiết Kế Nhà 365 chính là đơn vị đồng hành lý tưởng giúp bạn biến ước mơ thành hiện thực.
Với đội ngũ kiến trúc sư và kỹ sư dày dặn kinh nghiệm, cùng quy trình làm việc chuyên nghiệp, Thiết Kế Nhà 365 cam kết mang đến cho bạn những giải pháp thiết kế tối ưu cho ngôi nhà 3 tầng 60m2 của bạn.
Thiết kế thông minh, bố trí khoa học giúp tận dụng tối đa diện tích, đảm bảo công năng sử dụng cho từng khu vực trong nhà. Chúng tôi luôn lắng nghe mong muốn của gia chủ để thiết kế không gian sống phù hợp với sở thích, phong cách sống và ngân sách của bạn.
Bên cạnh đó, Thiết Kế Nhà 365 còn cung cấp dịch vụ thi công nhà trọn gói giúp bạn tiết kiệm thời gian và chi phí. Đội ngũ thi công lành nghề, đảm bảo chất lượng công trình theo đúng cam kết. Hệ thống giám sát thi công chặt chẽ giúp kiểm soát tiến độ và chất lượng công trình một cách hiệu quả.

Với hơn 10 năm kinh nghiệm trong lĩnh vực thiết kế và thi công nhà ở, Thiết Kế Nhà 365 đã tạo dựng được uy tín và niềm tin với khách hàng. Chúng tôi cam kết chất lượng công trình, bảo hành dài hạn và hỗ trợ khách hàng tận tình.
Với hơn 55 mẫu thiết kế nhà 3 tầng 60m2 đẹp, hiện đại, giá từ 900tr trên, chắc chắn bạn sẽ tìm thấy sự lựa chọn phù hợp với nhu cầu và mong muốn của mình. Tận dụng những giải pháp thiết kế sáng tạo, ngôi nhà của bạn sẽ trở thành không gian sống lý tưởng, đáp ứng đầy đủ các tiêu chí về thẩm mỹ, tiện nghi và hiện đại.









