1. Tham khảo 50+ mẫu thiết kế nhà 30m2 cấp 4 diện tích nhỏ kèm bản vẽ chi tiết
1.1 Mẫu thiết kế nhà 30m2 cấp 4 Dựa trên mẫu nhà nhỏ đẹp 30m2 cấp 4 dưới đây, có thể thấy kiến trúc sư đã có tính toán tỉ mỉ, kỹ lưỡng đối với từng khu vực chức năng để tạo nên một bản thiết kế nhà hiện đại . Ngôi nhà còn được mở rộng thêm diện tích với tầng lửng. Phòng khách liên thông với phòng bếp tránh tạo cảm giác bí bách.
Dưới đây là một số mẫu thiết kế nhà 30m2 cấp 4 để bạn tham khảo:
Mẫu thiết kế nhà 30m2 cấp 4 có gác lửng (ảnh: sưu tầm) Yêu cầu báo giá mẫu trên
Mặt tiền nhà 30m2 cấp được trang trí nhiều cây xanh (ảnh: sưu tầm) Yêu cầu báo giá mẫu trên
Mẫu thiết kế nhà 30m2 cấp 4 có thiết kế phần mái độc đáo (ảnh: sưu tầm) Yêu cầu báo giá mẫu trên
1.2 Mẫu thiết kế nhà 30m2 1 tầng Mẫu nhà đẹp diện tích nhỏ 30m2 này được thiết kế khá đơn giản nhưng đầy đủ các phòng chức năng. Gồm có 1 phòng khách, 1 phòng bếp kết hợp khu vực ăn, 1 phòng ngủ và 1 toilet + phòng tắm.
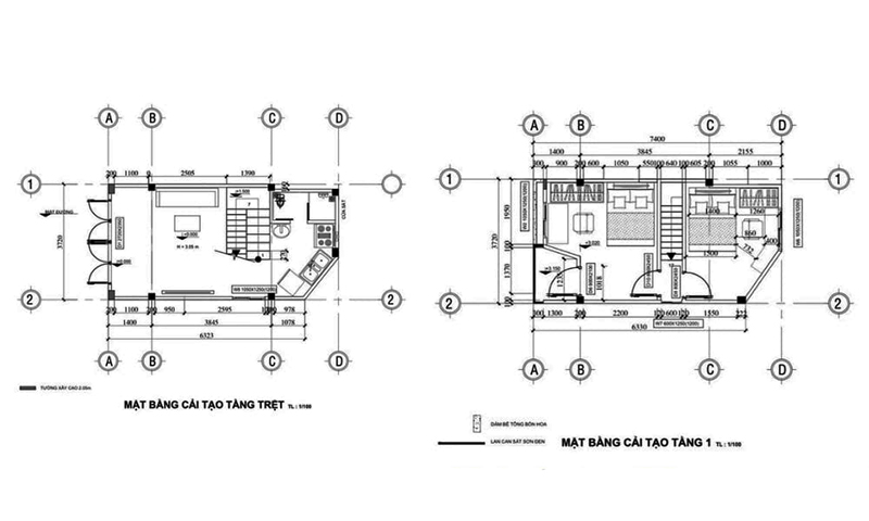
Bản vẽ thiết kế nhà đẹp 30m2 có 1 tầng (ảnh: sưu tầm) Yêu cầu báo giá mẫu trên
Sau đây hãy cùng xem một số thiết kế nhà đẹp 30m2 1 tầng hiện đại và thời thượng:
Nhà diện tích 30m2 1 tầng có gác lửng tiện lợi (ảnh: sưu tầm) Yêu cầu báo giá mẫu trên
Mẫu nhà 30m2 rộng rãi với lối đi ngoài hành lang (ảnh: sưu tầm) Yêu cầu báo giá mẫu trên
1.3 Mẫu nhà 30m2 2 tầng Ngôi nhà nhỏ xinh 30m2 trong bản vẽ dưới đây có mặt bằng công năng được thiết kế khoa học, tận dụng triệt để đến từng mét vuông. Ở tầng 1 là sân để xe, phòng khách và phòng bếp kèm toilet. Tầng 2 bao gồm 2 phòng ngủ rộng rãi.
Bản vẽ thiết kế nhà ống 30m2 2 tầng đầy đủ công năng (ảnh: sưu tầm) Yêu cầu báo giá mẫu trên
Một số mẫu nhà ống 30m2 thiết kế hai tầng thịnh hành hiện nay để bạn tham khảo:
Mẫu nhà 30m2 có 2 tầng theo phong cách hiện đại (ảnh: sưu tầm) Yêu cầu báo giá mẫu trên
Mẫu nhà 30m2 với gam màu trung tính, đơn giản mà nổi bật (ảnh: sưu tầm) Yêu cầu báo giá mẫu trên
Mẫu nhà 30m2 phù hợp cho gia đình ít người từ 3 – 4 thành viên (ảnh: sưu tầm) Yêu cầu báo giá mẫu trên
Ngôi nhà không to nhưng thiết kế ấn tượng khiến ai cũng ngước nhìn (ảnh: sưu tầm) Yêu cầu báo giá mẫu trên
1.4 Mẫu nhà 30m2 3 tầng Những mẫu nhà 30m2 đẹp xây ba tầng này có mặt tiền khá hẹp. Tuy nhiên các không gian chức năng trong nhà vẫn được bố trí khá hợp lý và tiện nghi.
Sau đây là một số thiết kế nhà đẹp 30m2 xây dựng kết cấu ba tầng để bạn tham khảo:
Mẫu nhà 30m2 có 3 tầng lầu đầy đủ tiện nghi (ảnh: sưu tầm) Yêu cầu báo giá mẫu trên
Ngoài ra, quý khách hàng cũng có thể tham khảo thêm các mẫu thiết kế nhà 3 tầng của Thiết Kế Nhà 365. Những tác phẩm kiến trúc độc đáo này kết hợp sự tinh tế và tiện ích, tạo nên không gian sống đa dạng và hiện đại.
Tham khảo: 10+ Thiết kế mẫu nhà hẹp ngang 3m đẹp thông thoáng, tiện nghi
2. Tham khảo mẫu thiết kế nhà nhỏ 30m2 đẹp, đa dạng phong cách khác Mẫu thiết kế nhà nhỏ 30m2 đẹp gam màu tươi sáng, nhiều cây xanh (ảnh: sưu tầm) Yêu cầu báo giá mẫu trên
Mẫu nhà ống diện tích 30m2 đầy đủ phòng khách, phòng ngủ, khu vực bếp (ảnh: sưu tầm) Yêu cầu báo giá mẫu trên
Tham khảo: 99+ mẫu thiết kế nhà nhỏ đẹp, đủ công năng, chi phí thấp
3. Kinh nghiệm thiết kế nhà 30m2 tối ưu diện tích Sau đây là một số tiêu chí thiết kế nhà diện tích nhỏ 30m2 mà bạn nên biết:
3.1 Chọn mẫu nhà nhỏ 30m2 đẹp hiện đại, tối giản Với căn nhà diện tích nhỏ như nhà 30m2 thì phong cách kiến trúc đơn giản, hiện đại sẽ là lựa chọn hoàn hảo nhất. Với phong cách này, bạn nên ưu tiên lựa chọn các mẫu thiết kế nhà có mặt tiền vuông vức, tối giản. Nội thất trong nhà cũng cần có càng ít chi tiết càng tốt. Chỉ nên trang bị những món đồ nội thất thiết yếu để tạo nhiều khoảng trống nhất có thể.
Nên chọn phong cách thiết kế hiện đại, tối giản khi thiết kế nhà nhỏ 30m2 (ảnh: sưu tầm) 3.2 Sử dụng nội thất thông minh cho thiết kế nhà 30m2 cấp 4 Xu hướng sử dụng nội thất thông minh đang ngày càng thịnh hành trong những năm gần đây. Đây là những món đồ được tích hợp nhiều chức năng đa dạng, có thể gấp mở linh hoạt. Từ đó giúp tiết kiệm diện tích và mang đến nét độc đáo cho ngôi nhà. Trên thị trường có vô vàn các sản phẩm nội thất đa chức năng thông minh để bạn lựa chọn như tủ âm tường, giường tầng, sofa giường,…
Sử dụng nội thất thông minh cho thiết kế nhà 30m2 cấp 4 (ảnh: sưu tầm) 3.3 Thiết kế nhà diện tích nhỏ 30m2 nên thêm tầng lửng Nếu sở hữu một mẫu nhà cấp 4 hoặc nhà ống diện tích 30m2 thấp tầng thì việc thiết kế thêm tầng lửng là khá cần thiết. Nhờ có tầng lửng mà ngôi nhà có thêm một phòng chức năng nhưng vẫn không làm thay đổi kết cấu tổng thể. Tầng lửng có thể dùng vào nhiều mục đích khác nhau như phòng làm việc, phòng ngủ, phòng khách, phòng thờ,…
Xây nhà nhỏ 30m2 nên thêm tầng lửng (ảnh: sưu tầm) 3.4 Các mẫu nhà nhỏ 30m2 nên chọn gam màu sáng Các gam màu tươi sáng có tác dụng “đánh lừa” thị giác cực kỳ tuyệt vời, tạo cảm giác căn nhà như rộng và thoáng hơn diện tích 30m2 thực tế. Hiện nay nhiều gia chủ thường sơn tường và trần cùng tone màu sáng, còn sàn nhà và một số đồ đạc nội thất sẽ sử dụng tone màu nâu sáng hoặc hơi tối để tạo sự cân bằng.
Nhà nhỏ đẹp 30m2 tone màu nội thất sáng có tầng lửng (ảnh: sưu tầm) 3.5 Nên thuê kiến trúc sư chuyên nghiệp khi xây nhà 30m2 Kiến trúc sư là những người có kinh nghiệm dày dặn, đã từng thực hiện nhiều công trình lớn nhỏ. Vì vậy nếu không có nhiều kiến thức về xây dựng và bày trí nội thất thì bạn nên thuê kiến trúc sư thay vì tự mình mày mò nhưng kết quả lại không như mong đợi.
Nên thuê kiến trúc sư chuyên nghiệp thiết kế nhà 30m2 (ảnh: sưu tầm) Xem thêm: 10+ Mẫu Thiết Kế Nhà 30m2 1 Tầng Tiện Nghi Tiết Kiệm Chi Phí
4. Chi phí thi công xây nhà nhỏ đẹp 30m2 Hiện nay chi phí thi công hoàn thiện mẫu thiết kế nhà 30m2 cấp 4 phụ thuộc vào nhiều yếu tố khác nhau. Ví dụ như phong cách thiết kế, vật liệu sử dụng, diện tích sàn xây dựng, phân khúc vật tư,… Theo khảo sát của Công ty Thiết Kế Nhà 365, chi phí xây nhà hoàn thiện sẽ dao động trong khoảng 4,5 – 5,2 triệu đồng/m2. Ví dụ nếu đang có nhu cầu xây nhà cấp 4 diện tích 30m2 3x10m, lợp mái tôn, vật tư loại tốt thì chi phí sẽ được tính như sau:
Diện tích xây dựng:Nhà 3x10m 1 tầng = 30m2 Mái tôn = 3 x 10 x 30% = 9m2 Tổng diện tích ngôi nhà = 39m2 Đơn giá thi công = 5.200.000 VNĐ (vật tư loại tốt) Như vậy tổng chi phí bạn phải bỏ ra để thi công hoàn thiện 1 ngôi nhà 30m2 cấp 4 sẽ là: 5.200.000 x 39 = 202.800.000 VNĐ. Ngoài ra nếu không thi công nhà theo mẫu có sẵn thì gia chủ có thể phải chi trả thêm tiền thiết kế nhà.
Lưu ý: Chi phí thi công hoàn thiện nhà 30m2 trên đây chỉ mang tính tham khảo. Quý khách cần được tư vấn thêm vui lòng gọi hotline 0906840567 hoặc gửi email yêu cầu báo giá cho Công ty Thiết Kế Nhà 365.
Công ty Thiết Kế Nhà 365 chuyên thiết kế nhà uy tín Ngôi nhà 30m2 không quá rộng rãi, vì vậy cần được thiết kế và thi công bởi đơn vị dày dặn kinh nghiệm để đảm bảo không gian sống tiện nghi, thông thoáng với mức chi phí hợp lý nhất. Công ty Thiết Kế Nhà 365 tự tin có thể mang đến cho khách hàng công trình vượt thời gian với những ưu điểm như sau:
Bắt kịp những xu hướng kiến trúc mới nhất, hài hòa về phong thủy, phù hợp với tâm lý và lối sống của người Việt Mang đến không gian sống thoáng đãng, thân thiện với thổ nhưỡng và thiên nhiên Kiến tạo nên những công trình bền bỉ với thời gian, hầu như không phải nâng cấp sửa chữa kể cả khi sử dụng trong thời gian dài Miễn hoàn toàn chi phí thiết kế, chi phí thi công rẻ nhất thị trường Cam kết đúng tiến độ, thi công đúng hạng mục và chất lượng cam kết trong hợp đồng Với đội ngũ kiến trúc sư và kỹ sư xây dựng dày dặn kinh nghiệm, Công ty Thiết Kế Nhà 365 sẽ đem đến cho bạn mẫu thiết kế nhà 30m2 cấp 4 nhà có tính thẩm mỹ cao, bền đẹp theo thời gian. Khách hàng vui lòng liên hệ với công ty theo thông tin bên dưới để được tư vấn, báo giá thiết kế nhà nhỏ đẹp 30m2 tận tình nhất!
Liên hệ ngay với Công Ty Thiết Kế Nhà 365 để nhận đơn giá thiết kế nhà phố trọn gói và được tư vấn miễn phí từ Kiến Trúc Sư!