Nhà cấp 4 là một mẫu nhà vô cùng quen thuộc đối với người dân Việt Nam. Đặc biệt, mẫu thiết kế này xuất hiện nhiều ở khu vực nông thôn. Bởi vì thiết kế nhà cấp 4 có chi phí xây dựng thấp, thời gian thi công nhanh chóng.
Hiện nay, kinh tế ngày càng phát triển, nhà cấp 4 lại được nhiều người lựa chọn bởi sự đơn giản và hiện đại mà nó mang lại. Tham khảo bài viết sau để hiểu rõ nhà cấp 4 là nhà gì và tổng hợp hơn 199+ mẫu nhà cấp 4 đẹp chỉ từ 400 triệu.
- 1. Nhà cấp 4 là gì?
-
2. Tổng hợp 199+ mẫu nhà cấp 4 đẹp hiện đại nhất
- Mẫu thiết kế nhà cấp 4 mái lệch
- Mẫu thiết kế nhà cấp 4 mái bằng
- Mẫu thiết kế nhà cấp 4 mái Thái
- Mẫu thiết kế nhà cấp 4 mái tôn
- Mẫu thiết kế nhà cấp 4 mái ngói
- Mẫu thiết kế nhà cấp 4 2 phòng ngủ
- Mẫu thiết kế nhà cấp 4 3 phòng ngủ
- Mẫu thiết kế nhà cấp 4 có 4 phòng ngủ
- Mẫu thiết kế nhà cấp 4 gác lửng
- Mẫu thiết kế nhà cấp 4 chữ L
- Mẫu thiết kế nhà cấp 4 nông thôn
- Mẫu thiết kế nhà cấp 4 đẹp độc lạ
- Mẫu thiết kế nhà cấp 4 kiểu Châu Âu
- Mẫu thiết kế nhà cấp 4 kiểu Pháp
- Mẫu thiết kế nhà cấp 4 kết hợp sân vườn
- Mẫu thiết kế nhà cấp 4 đơn giản
- Mẫu thiết kế nhà cấp 4 diện tích 5x12m
- Mẫu thiết kế nhà cấp 4 diện tích 5x15m
- Mẫu thiết kế nhà cấp 4 diện tích 5x20
- Mẫu thiết kế nhà cấp 4 diện tích 6x20m
- Mẫu thiết kế nhà cấp 4 giá 300 triệu
- Mẫu thiết kế nhà cấp 4 giá 400 triệu
- Mẫu thiết kế nhà cấp 4 sử dụng kính cường lực
- Mẫu thiết kế nhà cấp 4 có giàn hoa tươi
- Mẫu thiết kế nhà cấp 4 kiểu Nhật
-
3. 20+ bản vẽ mặt bằng công năng nhà cấp 4 được yêu thích nhất
- Bản vẽ chi tiết nhà cấp 4 có mái bằng gác lửng
- Bản vẽ chi tiết nhà ống cấp 4 mái Thái
- Bản vẽ chi tiết nhà cấp 4 có mái bằng
- Bản vẽ chi tiết nhà cấp 4 2 phòng ngủ
- Bản vẽ chi tiết nhà cấp 4 đẹp hình chữ L
- Bản vẽ chi tiết nhà cấp 4 đẹp giả ngói
- Bản vẽ chi tiết nhà cấp 4 mái tôn diện tích 7x15m
- Bản vẽ chi tiết nhà cấp 4 diện tích 5x20m
- Bản vẽ chi tiết nhà cấp 4 đơn giản 6x12m
- Bản vẽ chi tiết nhà cấp 4 diện tích 8x13m
- 4. Các ưu điểm nổi bật của mẫu nhà cấp 4
- 5. Quy định về chiều cao tiêu chuẩn khi xây dựng nhà cấp 4
- 6. Gợi ý cách tính chi phí xây nhà cấp 4 đơn giản, dễ hiểu
- 7. Bí quyết thiết kế thi công nhà cấp 4 giá rẻ, chất lượng
- 8. Thiết Kế Nhà 365 – Đơn vị thiết kế thi công nhà cấp 4 giá rẻ, uy tín
- 9. Quy trình thiết kế thi công nhà cấp 4 trọn gói
1. Nhà cấp 4 là gì?
Theo thông tư 06/2021/TT-BXD về tiêu chuẩn của Bộ Xây dựng, nhà cấp 4 là công trình xây dựng chỉ có một tầng, tổng diện tích sàn xây dựng dưới 1000m2, chiều cao không vượt quá 6m và nhịp kết cấu tối đa 15m.
Đây là một loại hình nhà ở phổ biến tại Việt Nam, đặc biệt là ở khu vực nông thôn và những nơi có diện tích đất hạn chế trong các thành phố.
Nhà cấp 4 có một số đặc điểm đặc trưng như sau:
- Cấu trúc đơn giản: Nhà cấp 4 có thiết kế một tầng, giúp quá trình thi công trở nên dễ dàng và không yêu cầu các kỹ thuật xây dựng phức tạp.
- Chi phí xây dựng hợp lý: Nhờ vào cấu trúc đơn giản, chi phí xây dựng nhà cấp 4 thường thấp hơn so với các loại hình nhà ở khác, phù hợp với các gia đình có ngân sách hạn chế.
- Linh hoạt trong thiết kế: Mặc dù chỉ có một tầng, nhưng nhà cấp 4 có thể được thiết kế theo nhiều phong cách khác nhau, từ truyền thống đến hiện đại, đáp ứng các nhu cầu và sở thích của chủ nhà.
- Tiết kiệm diện tích: Nhà cấp 4 thường được xây dựng trên các lô đất nhỏ, tối ưu hóa diện tích sử dụng mà vẫn đảm bảo không gian sinh hoạt thoải mái.
- Thích hợp với khí hậu nhiệt đới: Với thiết kế thông thoáng, nhà cấp 4 rất phù hợp với khí hậu nóng ẩm, giúp không gian bên trong luôn mát mẻ và dễ chịu.

Tham khảo: 20+ Mẫu nhà cấp 4 mái Thái vạn người mê, đẹp nhất 2025
2. Tổng hợp 199+ mẫu nhà cấp 4 đẹp hiện đại nhất
Từ sự đa dạng trong kiểu dáng đến tính tối ưu hóa không gian, những mẫu nhà cấp 4 đẹp thể hiện sự hòa quyện giữa phong cách hiện đại và tiện ích. Bằng việc khám phá những thiết kế này, bạn sẽ tìm thấy những ý tưởng độc đáo để tạo nên ngôi nhà đẹp cấp 4, đa năng và thỏa mãn những nhu cầu của gia đình.
Mẫu thiết kế nhà cấp 4 mái lệch
Nhà cấp 4 mái lệch là một trong những mẫu thiết kế ấn tượng, phá cách và hiện đại. Với mái lệch có độ dốc nhẹ, không chỉ tạo điểm nhấn về mặt thẩm mỹ mà còn giúp việc thoát nước mưa nhanh chóng, tránh tình trạng thấm dột.
Mẫu nhà cấp 4 mái lệch rất phù hợp với khí hậu của nhiều khu vực ở Việt Nam, đồng thời mang lại không gian sống thông thoáng, thoải mái. Thêm vào đó, với thiết kế mái lệch, không gian bên trong nhà cũng sẽ trở nên rộng rãi và dễ chịu hơn.




Mẫu thiết kế nhà cấp 4 mái bằng
Mẫu nhà cấp 4 mái bằng là lựa chọn tối ưu cho những ai yêu thích sự đơn giản và tiết kiệm chi phí. Mái bằng giúp tiết kiệm chi phí xây dựng và dễ dàng thi công, đồng thời có thể tận dụng diện tích mái để làm sân thượng hoặc khu vực sinh hoạt ngoài trời.
Với thiết kế này nhà cấp 4 mái bằng sẽ mang lại sự hiện đại và trẻ trung cho ngôi nhà, rất phù hợp với những gia đình có nhu cầu sử dụng không gian thoáng đãng và mở rộng.


Mẫu nhà cấp 4 này có mái bằng, tức là mái của ngôi nhà là phần bê tông được đổ bằng phẳng. Do đó, phần mái của ngôi nhà luôn khô thoáng và không bị ứ đọng nước. Mái bằng còn được nhiều gia đình tận dụng để làm sân phơi đồ hoặc để làm nơi trồng cây xanh vô cùng tiện nghi.


Mẫu thiết kế nhà cấp 4 mái Thái
Mái Thái luôn được biết đến với thiết kế mái dốc, kiểu dáng thanh thoát và mái ngói đẹp mắt. Mẫu nhà cấp 4 mái Thái mang đến vẻ đẹp sang trọng và lịch lãm, kết hợp với khả năng chống nắng, mưa hiệu quả.
Đặc biệt thiết kế mái Thái còn giúp không gian trong nhà trở nên mát mẻ vào mùa hè và ấm áp vào mùa đông. Đây là một lựa chọn tuyệt vời cho các gia đình muốn một ngôi nhà đẹp, bền vững và hài hòa với thiên nhiên.




Mẫu thiết kế nhà cấp 4 mái tôn
Nhà cấp 4 mái tôn nông thôn có thiết kế đơn giản mà lại tiết kiệm chi phí nhất. Do đó, đây là một mẫu nhà thường thấy ở các khu vực ngoại tỉnh và vùng nông thôn ở Việt Nam. Nhà mái tôn hiện nay cũng có rất nhiều chủng loại với các hình dáng và màu sắc khác nhau để gia chủ lựa chọn cho phù hợp với từng khu vực chức năng trong nhà.




Mẫu thiết kế nhà cấp 4 mái ngói
Mẫu nhà cấp 4 mái ngói không chỉ mang lại sự cổ kính, trang trọng mà còn giúp chống nóng hiệu quả. Với chất liệu ngói, nhà cấp 4 có khả năng chịu nhiệt tốt và dễ dàng điều chỉnh nhiệt độ bên trong nhà.
Mẫu nhà cấp 4 mái ngói được thiết kế theo phong cách truyền thống hoặc cách tân tùy vào sở thích của gia chủ, tạo ra những không gian sống ấm cúng và đầy đủ tiện nghi.



Mẫu thiết kế nhà cấp 4 2 phòng ngủ
Mẫu nhà cấp 4 hiện đại với 2 phòng ngủ sẽ phù hợp cho gia đình trẻ có tư 2 đến 4 người ở. Nó vừa đảm bảo được sự tiện nghi vừa mang đến không gian riêng tư cho từng thành viên trong gia đình. Chi phí để xây dựng mẫu nhà cấp 4 này cũng không quá đắt đỏ mà vẫn có được không gian sống lý tưởng cho cả gia đình.




Mẫu thiết kế nhà cấp 4 3 phòng ngủ
Thay vì lựa chọn những cao tầng thì bạn có thể chọn một mẫu nhà cấp 4 với 3 phòng ngủ. Mẫu nhà này phù hợp với gia đình có 2-3 thế hệ sinh sống. Đây là một mẫu nhà đơn giản, đẹp mắt mà vẫn đảm bảo được không gian sinh hoạt cho nhiều người. Nó tạo nên một không gian sống đầm ấm cho gia đình người Việt. Chi phí xây dựng mẫu nhà cấp 4 này rẻ hơn rất nhiều mẫu nhà 2 tầng mà lại tiết kiệm được công sức vệ sinh, lau chùi.




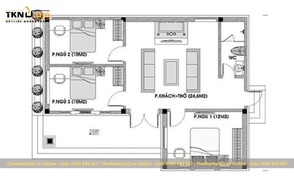
Mẫu thiết kế nhà cấp 4 có 4 phòng ngủ
Mẫu nhà cấp 4 đẹp với 4 phòng ngủ tuy không có kiến trúc hoành tráng như các công trình cao tầng, nhưng vẫn tạo ấn tượng nhờ thiết kế tinh tế, màu sắc trang nhã và hình khối cân đối. Không gian được bố trí hợp lý, tối ưu hóa tiện ích cho sinh hoạt gia đình.
Với diện tích xây dựng từ 100m2 trở lên, ngôi nhà cấp 4 này cung cấp đầy đủ các phòng chức năng cần thiết, bao gồm phòng khách, phòng bếp kết hợp phòng ăn, phòng thờ, 4 phòng ngủ, nhà vệ sinh và phòng sinh hoạt chung, đáp ứng hoàn hảo nhu cầu sử dụng của cả gia đình.



Mẫu thiết kế nhà cấp 4 gác lửng
Đây là một trong những mẫu nhà cấp 4 đẹp được đông đảo người dân lựa chọn xây dựng. Bởi vì thiết kế gác lửng sẽ giúp gia đình tận dụng được tối đa diện tích sinh hoạt của ngôi nhà mà vẫn không lảm ảnh hưởng tới chiều cao. So với ngôi nhà hai tầng thì ngôi nhà cấp 4 có gác lửng sẽ giúp bạn tiết kiệm được nhiều chi phí và mang đến vẻ đẹp hiện đại cho ngôi nhà.



Mẫu thiết kế nhà cấp 4 chữ L
Mẫu nhà cấp 4 hình chữ L là một trong những mẫu nhà có thiết kế mang đậm chất phương Đông. Mẫu nhà này có cách bố trí theo một kiến trúc hình khối chữ L độc đáo. Nhờ đóm ngôi nhà sẽ được mở rộng một cách tự nhiên. Đây cũng là một mẫu nhà không tốn quá nhiều chi phí xây dựng nhưng sẽ mang đến một không gian sống khiến bạn hài lòng.




Mẫu thiết kế nhà cấp 4 nông thôn
Hiện nay các mẫu nhà cấp 4 đẹp ở nông thôn không còn giới hạn ở thiết kế đơn giản, mà đã được cải tiến với nhiều phong cách đa dạng, đáp ứng nhu cầu và sở thích của từng chủ đầu tư. Mỗi phong cách đều mang một vẻ đẹp độc đáo riêng, tạo nên dấu ấn đặc biệt cho ngôi nhà.
Ngoài ra với diện tích xây dựng rộng rãi, kết hợp với khuôn viên sân vườn thoáng mát, cây xanh bao quanh, nhà cấp 4 ở nông thôn mang lại không gian sống trong lành và gần gũi với thiên nhiên, gợi nhớ đến một không gian nghỉ dưỡng thư giãn, lý tưởng cho những ai yêu thích sự thanh bình.




Mẫu thiết kế nhà cấp 4 đẹp độc lạ
Mẫu nhà cấp 4 này sẽ là gợi ý cho những ai thích một phong cách mới lạ. Kiến trúc của ngôi nhà này sẽ được thiết kế theo phong cách freestyle được tạo nên bởi bàn tay tài hoa của các kiến trúc sư. Nó đã mang đến một không gian sống đẹp, nổi bật, độc đáo. Bạn sẽ có một làn gió trong không gian sống của mình.




Mẫu thiết kế nhà cấp 4 kiểu Châu Âu
Đây là một mẫu nhà cấp 4 đẹp được xây dựng với những cột trụ cao, những bức tường dày vuông vắn. Tất cả đã tạo nên sự mềm mại, hiện đại theo phong cách thời thượng của phương Tây. Điểm nhấn của nhà cấp 4 phong cách châu Âu là những gam màu trung tính giúp tôn lên vẻ đẹp độc đáo, cầu kỳ cho ngôi nhà.




Mẫu thiết kế nhà cấp 4 kiểu Pháp
Với kiến trúc sang trọng và thanh thoát, nhà cấp 4 kiểu Pháp mang đến vẻ đẹp quý phái, cổ điển nhưng vẫn đầy đủ tiện nghi hiện đại. Sự bề thế và kiên cố của những ngôi nhà này được thể hiện rõ qua các chi tiết hoa văn tinh tế, phào chỉ đắp nổi và hệ thống cột trụ vững chắc với thiết kế tròn hoặc vuông, tạo nên nét mạnh mẽ, uy nghi. Không chỉ tôn lên giá trị thẩm mỹ, nhà cấp 4 phong cách Pháp còn phản ánh sự quyền quý và đẳng cấp, thể hiện rõ vị thế và sự thành đạt của gia chủ.




Mẫu thiết kế nhà cấp 4 kết hợp sân vườn
Mẫu nhà cấp 4 này vẫn là xu hướng nhận được sự quan tâm của các gia chủ từ nông thôn đến thành thị. Thay vì bạn sống trong một ngôi nhà cao tầng thì đầy đủ tiện nghi thì mẫu thiết kế nhà cấp 4 này lại được nhiều người ưa chuộng.
Nó mang đến một không gian sống gần gũi, ấm cúng, hòa hợp với thiên nhiên mà vẫn đảm bảo được sự tiện nghi. Đây là một công trình có những đặc trưng riêng và điểm nhấn riêng. Phong cách này được xem là một làn gió mới, mang đậm hơi hướng hiện đại kết hợp với thiết kế xưa cũ cho những ngôi nhà ở nông thôn.




Mẫu thiết kế nhà cấp 4 đơn giản
Nếu bạn đang tìm một mẫu thiết kế nhà cấp 4 đẹp thì bạn đừng bỏ qua mẫu nhà cấp 4 đơn giản này. Tuy có thiết kế ấn tượng nhưng nó sẽ có sự ấn tượng ở mái nhà. Đơn giản những vẫn có sự khác biệt và không hề nhàm chán. Phần mái nhà có sự dốc nhẹ để mang đến sự cân bằng, đẹp mắt cho toàn bộ ngôi nhà. Khung cửa kính sẽ mang đến độ thoáng và sang trọng cho không gian.




Mẫu thiết kế nhà cấp 4 diện tích 5x12m
Một ngôi nhà cấp 4 có diện tích 60 mét vuông đủ để cho một gia đình 4 người sinh hoạt thoải mái. Bạn có thể thiết kế ngôi nhà theo ý thích của riêng mình theo phong cách đơn giản, hiện đại trẻ trung. Ngôi nhà này được thiết kế theo hình khối hình chữ nhật với mái bằng. Kết hợp với hệ thống cửa kính để làm tôn lên sự sang trọng tinh tế và tận dụng ánh sáng cho ngôi nhà.



Mẫu thiết kế nhà cấp 4 diện tích 5x15m
Nhà cấp 4 có diện tích 5×15m mái thái cũng là một gợi ý hay dành cho những gia chủ đang cần xây nhà trên mảnh đất có diện tích hẹp. Đây là mẫu thiết kế nhà thời thượng với mái cao giúp ngôi nhà trở nên thông thoáng. Tùy theo sở thích của mình mà bạn có thể chọn những gam màu sắc khác nhau để tạo nên dấu ấn riêng của riêng mình.



Mẫu thiết kế nhà cấp 4 diện tích 5x20
Với diện tích đất 5x20 thì bạn có thể chọn mẫu thiết kế nhà cấp 4 hiện đại. Không chỉ thế, phần mặt tiền của ngôi nhà thì bạn có thể tận dụng nó để kinh doanh, buôn bán. Bên trong khu vực buôn bán là khu vực phòng khách, phòng nấu ăn. Hãy chọn mẫu thiết kế khoa học, hiện đại này để có được một không gian sống đầy đủ công năng sử dụng mà vẫn đảm bảo được tính thẩm mỹ.




Mẫu thiết kế nhà cấp 4 diện tích 6x20m
Với diện tích rộng rãi, mẫu nhà cấp 4 diện tích 6x20m là lựa chọn lý tưởng cho những gia đình đông người hoặc có nhu cầu sử dụng nhiều phòng chức năng. Thiết kế mẫu nhà này thường có không gian sống rộng mở, giúp các thành viên trong gia đình có đủ không gian sinh hoạt thoải mái. Thêm vào đó với diện tích đất này, gia chủ có thể thiết kế thêm sân vườn, gara hoặc các khu vực tiện ích khác, tạo nên một không gian sống tiện nghi và thoải mái.




Mẫu thiết kế nhà cấp 4 giá 300 triệu
Với những gia đình có ngân sách hạn chế, mẫu nhà cấp 4 giá 400 triệu là một lựa chọn tiết kiệm nhưng vẫn đảm bảo sự tiện nghi và thoải mái. Các mẫu nhà cấp 4 giá rẻ này thường có thiết kế đơn giản, tiết kiệm chi phí vật liệu nhưng vẫn mang lại không gian sống đầy đủ chức năng. Đây là giải pháp lý tưởng cho những gia đình muốn xây dựng một ngôi nhà vừa túi tiền nhưng vẫn có thể đáp ứng nhu cầu sinh hoạt cơ bản.




Mẫu thiết kế nhà cấp 4 giá 400 triệu
Cũng giống như mẫu nhà 300 triệu, nếu bạn có 400 triệu để xây nhà thì cũng nên chọn những mẫu nhà cấp 4 nhỏ nhắn, đơn giản, không có nhiều chi tiết cầu kỳ phức tạp.




Mẫu thiết kế nhà cấp 4 sử dụng kính cường lực
Theo các chuyên gia, nhà cấp 4 có sử dụng kính cường lực đã và đang trở thành xu hướng được lựa chọn nhiều hiện nay bởi nó mang tính độc lạ và sang trọng. Nhìn vẻ ngoài có vẻ đơn giản nhưng nó sẽ thể hiện rõ được tính cách của gia chủ. Hơn nữa, bạn có thể cảm thụ và ngắm nhìn cảnh vật bên ngoài ngôi nhà một cách dễ dàng.




Mẫu thiết kế nhà cấp 4 có giàn hoa tươi
Hãy tưởng tượng xem, trước ngôi nhà của bạn có một giàn hoa tươi thì bạn sẽ cảm thấy tuyệt vời thế nào. Nó không chỉ mang đến một không khí tươi đẹp, trong lành mà còn giúp chúng ta cảm thấy yêu đời hơn.




Mẫu thiết kế nhà cấp 4 kiểu Nhật
Đây là mẫu nhà rất được lòng các gia chủ hiện nay. Mẫu nhà cấp 4 kiểu Nhật rất phù hợp với lối sống của người Việt. Nó được thiết kế với không gian mở, đầy đủ ánh sáng, hài hòa với thiên nhiên. Mẫu nhà này sẽ luôn cho bạn cảm giác thoáng và rộng khi sống ở đó.




Xem thêm: Top 18 Mẫu nhà cấp 4 mái thái 3 phòng ngủ đẹp hiện đại nhất
3. 20+ bản vẽ mặt bằng công năng nhà cấp 4 được yêu thích nhất
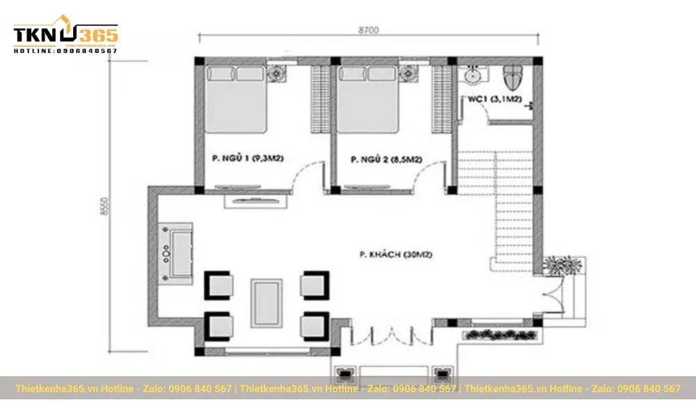
Bản vẽ chi tiết nhà cấp 4 có mái bằng gác lửng
Nhà cấp 4 có mái bằng gác lửng thường được bố trí 4 phòng ngủ. Khu vực tầng trệt sẽ được chia thành 1 phòng khách, 1 phòng bếp cùng với 3 phòng ngủ. Mẫu thiết kế này sẽ tạo được không gian sinh hoạt riêng tư cho mỗi thành viên trong gia đình. Một phòng ngủ còn lại sẽ được bố trí ở gác lửng. Hãy có sự tính toán kỹ càng để tận dụng được tối đa diện tích của ngôi nhà.

Bản vẽ chi tiết nhà ống cấp 4 mái Thái
Nhà cấp 4 mái thái được thiết kế 3 phòng ngủ để mang đến vẻ đẹp sang trọng, ấn tượng trong không gian sống. Phòng ngủ được thiết kế khép kín để mang đến sự riêng tư cho mỗi thành viên trong gia đình khi nghỉ ngơi, sinh hoạt. Với thiết kế mái thái, bạn cần biết sắp xếp không gian, thiết kế nội ngoại thất và phối màu để giúp nó trở nên thoáng đẹp hơn.

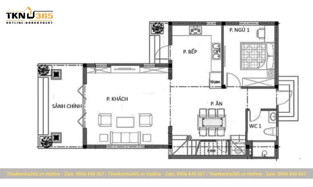
Bản vẽ chi tiết nhà cấp 4 có mái bằng
Nhắc tới nhà cấp 4 hiện đại thì bạn đừng bỏ qua nhà cấp 4 có mái bằng. Đây là mẫu nhà có sử dụng những đường nét kiến trúc đơn giản nhưng lại có hiệu quả về sự bền chắc và đảm bảo tính thẩm mỹ cho tổng thể ngôi nhà.
Không gian trong nhà sẽ có 1 phòng khách, 1 phòng nấu ăn và 2 phòng ngủ. Tùy theo diện tích đất thực tế mà bạn có thể tăng thêm một số phòng ngủ nữa. Hãy bố trí nội thất gọn gàng để tạo nên nét tinh tế cho ngôi nhà.

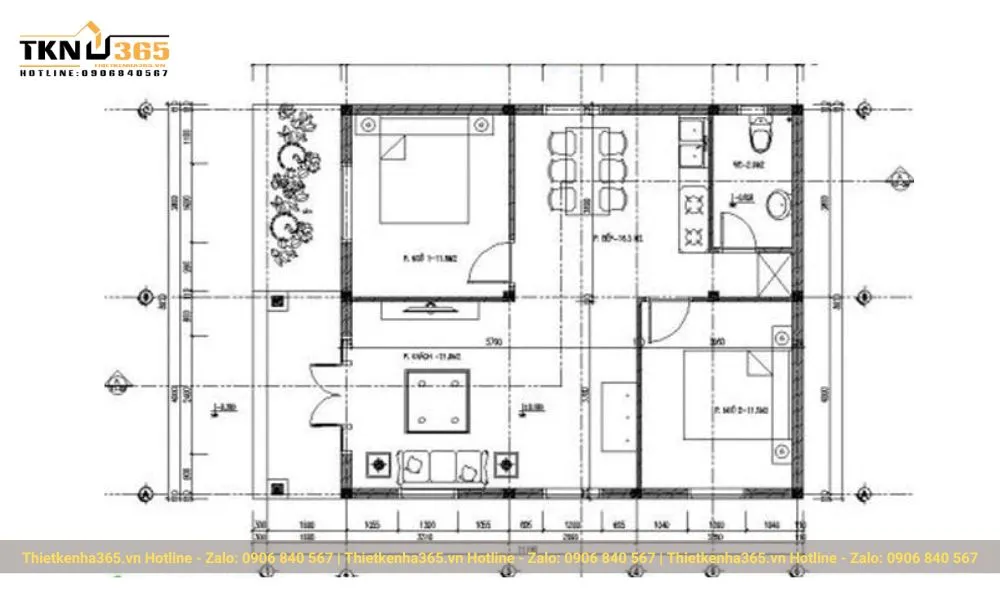
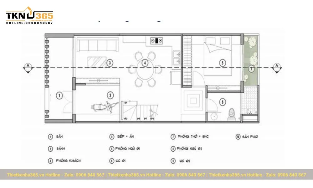
Bản vẽ chi tiết nhà cấp 4 2 phòng ngủ
Đây là mẫu nhà phù hợp với một cặp vợ chồng trẻ sinh sống. Ngôi nhà này sẽ được bố trí 2 phòng ngủ và một phòng thờ. Phòng khách sẽ được thiết kế liền bếp để tạo nên không gian thoáng rộng. Đối diện phòng khách là phòng thờ. Sau đó là 3 phòng ngủ khép kín năm ở bên cạnh phòng thờ.

Bản vẽ chi tiết nhà cấp 4 đẹp hình chữ L
Mẫu nhà cấp 4 hình chữ L là một mẫu nhà quốc dân của các hộ gia đình. Mẫu nhà này được ưa chuộng nhất ở khu vực nông thôn và có thể ứng dụng được nhiều phong cách xây dựng từ hiện đại, từ cổ điển tới tân cổ điển. Phần chân của chữ L là phần không gian nhà bếp và nhà tắm cho gia đình. Phần giữa của ngôi nhà sẽ được bố trí các phòng ngủ khép kín. Kiểu thiết kế này giúp cho nhà ăn trở nên rộng rãi hơn, sang trọng hơn.

Bản vẽ chi tiết nhà cấp 4 đẹp giả ngói
Một thiết kế nhà cấp 4 như bình thường nhưng màu gạch ngói mới lại. Mẫu nhà này sẽ trở nên hiện đại, bắt mắt hơn bao giờ hết. Hãy kết hợp với sơn tường để tạo nên hiệu ứng đẹp lạ và độc đáo. Bạn có thể thiết kế 2 phòng ngủ, 1 phòng bếp kết hợp với phòng ăn, 1 phòng khách và 1 phòng thờ.

Bản vẽ chi tiết nhà cấp 4 mái tôn diện tích 7x15m
Mẫu nhà cấp 4 với diện tích 7x15m mà một mẫu nhà phổ biến ở các vùng nông thôn. Mái tôn được dùng để giúp gia chủ tiết kiệm được nhiều chi phí mà vẫn đạt tính hiệu quả thẩm mỹ cao. Mặt tiền của ngôi nhà được trang trí họa tiết độc đáo, cầu kỳ. Mặt cắt của ngôi nhà gồm 5 phòng chính cùng với 1 phòng phụ. Phòng phụ thì bạn có thể dùng để làm nhà kho hoặc 1 nhà tắm kết hợp nhà vệ sinh.

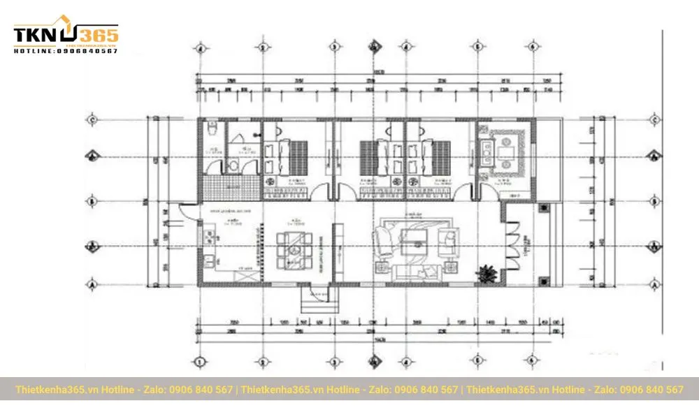
Bản vẽ chi tiết nhà cấp 4 diện tích 5x20m
Với diện tích 5x20m, mẫu nhà ống cấp 4 hiện đại là lựa chọn lý tưởng, tối ưu không gian mà vẫn đảm bảo sự tiện nghi và thẩm mỹ. Bản thiết kế mặt bằng được bố trí khoa học, hợp lý với các khu vực chức năng rõ ràng.
Tổng quan bao gồm: Sân trước, phòng khách, phòng thờ, phòng bếp và 3 phòng ngủ, cùng với phòng vệ sinh chung.
Ngoài các phòng chức năng tiện ích, gia chủ còn chú trọng đến khu vực sân vườn và tiểu cảnh, tạo nên một không gian sống thoáng đãng và gần gũi thiên nhiên.

Bản vẽ chi tiết nhà cấp 4 đơn giản 6x12m
Bạn có thể tận dụng để xây một mẫu nhà ống hoặc nhà cấp 4 mái thái thu hẹp có khoảng sân riêng trên mảnh đất 6x12m. Mặt bằng công năng bạn có thể bố trí từ 2-3 phòng ngủ, 1 phòng khách và 1 phòng bếp. Bạn nên bố trí phòng khách liền bếp để tạo không gian sinh hoạt rộng hơn và thoáng hơn.

Bản vẽ chi tiết nhà cấp 4 diện tích 8x13m
Mảnh đất có diện tích 8x13m là mảnh đất có diện tích lý tưởng để bạn có thể thiết kế nhà cấp 4 đẹp như ý muốn của riêng mình. Bạn có thể thiết kế ngôi nhà theo kiểu mái thái, mái nhật hoặc mái bằng tùy theo điều kiện tài chính và sở thích. Có thể bố trí 3 phòng ngủ, 1 phòng ăn và 1 phòng khách.

Xem thêm: 99+ Mẫu nhà cấp 4 mái bằng dẫn đầu xu hướng 2025
4. Các ưu điểm nổi bật của mẫu nhà cấp 4
Thời gian xây dựng, hoàn thiện nhanh chóng
Thời gian thiết kế và thi công nhà cấp 4 ngắn hơn nhiều so với việc xây dựng các công trình kiến trúc nhiều tầng khác. Bởi vì, yêu cầu về kiến trúc của nhà cấp 4 không quá phức tạp. Hơn nữa mẫu nhà này cũng không mất nhiều thời gian cho công đoạn đổ mái như các mẫu nhà biệt thự. Chính vì thế mà thời gian thi công và hoàn thiện ngôi nhà cấp 4 vô cùng nhanh chóng. Gia chủ có thể dọn vào ở ngay khi nó được hoàn thiện.

Kiến trúc đơn giản
Nhắc tới các mẫu nhà cấp 4 thì bạn có thể hình dung ngay một ngôi nhà có kiến trúc đơn giản, đặc trưng có từ 3 đến 4 gian phòng. Ngôi nhà được thiết kế đơn giản, không quá cầu kỳ nhưng vẫn đảm bảo được tính thẩm mỹ, ổn định và chắc chắn cần có.
Đa dạng phong cách lựa chọn
Không còn như những mẫu nhà cấp 4 ngày xưa, hiện nay nhà cấp 4 được xây dựng với nhiều phong cách kiến trúc khác nhau. Gia chủ có thể chọn phong cách kiến trúc Châu Âu đến Châu Á. Bạn có thể chọn kiểu mái hiên tây, mái thái, mái lửng hoặc mái bằng,… Tùy theo sở thích của mình mà gia chủ chọn mẫu thiết kế nhà cấp 4 cho hài hòa, thân thiện và mang đến không gian sống tuyệt vời cho bạn và gia đình.

Vật liệu xây dựng dễ tìm
Bởi vì nhà cấp bốn được xây dựng khá đơn giản, không quá cầu kỳ. Do đó, những nguyên vật liệu để xây dựng nhà cấp 4 rất dễ tìm. Tuy nhiên, cần phải đảm bảo được độ bền và độ an toàn cho ngôi nhà dưới sự khắc nghiệt mưa nắng thất thường của thời tiết. Đặc biệt đảm bảo an toàn trong mùa mưa bảo cho gia chủ. Gia chủ có thể chọn những khối vật liệu đảm bảo được những tiêu chí trên mà vẫn tiết kiệm được chi phí.
Chi phí xây dựng phù hợp
Tùy vào tình hình kinh tế của từng gia đình mà lựa chọn phong cách thiết kế cho phù hợp. Tuy nhiên, nhà cấp 4 thường có chi phí thấp, phù hợp với đa số kinh tế của gia đình người Việt. Biến động của chi phí sẽ phụ thuộc vào kiểu dáng, độ khó thi không nhưng nhà cấp 4 vẫn được xem là mẫu nhà quốc dân được nhiều người lựa chọn.
5. Quy định về chiều cao tiêu chuẩn khi xây dựng nhà cấp 4
Quy định chiều cao nhà cấp 4 đẹp có gác lửng
Đây là mẫu nhà có thiết kế rộng, do đó chiều cao của mẫu nhà sẽ được xác định dựa theo chiều cao của tầng trệt. Chiều cao của tầng trệt gác lửng sẽ khoảng 7m. Phần tầng lửng có chiều cao khoảng 2-2.5m. Chiều cao này sẽ đảm bảo được sự hài hòa trong kiến trúc và giúp việc bố trí nội thất trở nên dễ dàng và tiện lợi hơn.

Quy định chiều cao nhà cấp 4 đẹp mái Thái
Đối với mẫu nhà cấp 4 mái thái thường sẽ có chiều cao từ 3.6-4m đối với diện tích nhà ở khoảng 100m2 – 150m2. Còn nếu nhà có diện tích nhỏ hơn thì chiều cao sẽ được hạ thấp xuống từ 3-3.3m.

Quy định chiều cao nhà cấp 4 đẹp mái tôn, mái bằng
Chiều cao mẫu nhà đẹp cấp 4 mái tôn và m thì có thể dùng chiều cao trung bình từ 3.6 – 5m

Trong các công trình xây dựng, chiều cao mẫu nhà đẹp cấp 4 mái tôn và mái bằng sẽ được tính toán dựa trên chiều cao tiêu chuẩn. Bởi thiết kế nhà mái tôn hay mái bằng không quá đặc biệt. Do đó, chiều cao phần mái của hai kiểu nhà này thường giao động từ 2.4 – 2.7m. Ngoài ra, những gia đình muốn thiết kế phòng cao hơn có thể sử dụng kích thước trung bình từ 3.6-5m.
6. Gợi ý cách tính chi phí xây nhà cấp 4 đơn giản, dễ hiểu
Công thức tính dựa trên hệ số
Về phần móng
- Thi công móng đơn: Đã bao gồm trong đơn giá
- Thi công móng cọc: 30% diện tích trệt
- Thi công móng băng một phương: 50% diện tích trệt
- Thi công móng bằng 2 phương: 70% diện tích trệt
- Thi công móng bè: 100% diện tích trệt
Về phần sàn
- Diện tích xây dựng có mái che: 100% tầng 1,2,3
- Diện tích xây dựng không có mái che: 50% sân phơi, sân thượng
Phần mái
- Mái tôn: 30%
- Mái ngói vì kèo sắt: 70%
- Mái ngói đổ bê tông cốt thép: 100%
Sân trước và sân sau: 50%
Khu vực cầu thang: 100%
Tổng chi phí xây dựng = chi phí phần móng cọc + chi phí xây dựng phần thô và hoàn thiện
Công thức chi phí thi công cho phần cọc và móng
Công thức:
(đơn giá x số lượng cọc x chiều dài cọc) + phí thi công cọc + (Hệ số x diện tích sàn x đơn giá)
Các tính công thức chi phí xây thô và chuẩn bị vật liệu
Công thức tính chi phí xây thô và hoàn thiện vật liệu sẽ là:
Tổng diện tích (theo hệ số) x đơn giá
7. Bí quyết thiết kế thi công nhà cấp 4 giá rẻ, chất lượng
Tiến hành chuẩn bị
Trước khi bạn xây dựng công trình nhà ở của mình thì hãy chuẩn bị lên ý tưởng, dự toán ngân sách là tìm hiểu các thông tin cơ bản khi xây dựng. Bạn chuẩn bị càng kỹ càng thì việc thực hiện càng dễ dàng.
Cân chỉnh diện tích
Để xây dựng nhà cấp 4 một cách tiết kiệm và tối ưu thì hãy giảm bớt những diện tích không cần thiết. Bởi vì khi tăng diện tích thì chi phí tăng cao một cách không cần thiết. Hãy tính toán để có một ngôi nhà với diện tích vừa đủ, số phòng ngủ phù hợp và các không gian sinh hoạt chung đảm bảo tính thẩm mỹ và công năng sử dụng.

Chọn mẫu nhà cấp 4 đẹp dễ thi công
Thay vì lựa chọn mẫu nhà quá cầu kỳ thì hãy chọn những mẫu nhà cấp 4 đẹp có cấu trúc đơn giản và dễ thi công. Từ những hình khối kiến trúc có sẵn thì bạn có thể phân tích, đánh giá để lên kế hoạch dự toán chi phí hợp lý cho ngôi nhà.
Chọn nguyên vật liệu trong tầm giá vừa với ngân sách
Tùy thuộc vào tình hình kinh tế của bạn để chọn loại vật tư cho phù hợp. Đối với nhà cấp 4 thì không cần quá đầu tư vào các nguyên vật liệu đắt đỏ mà hãy chọn loại trung bình để đảm bảo độ bền, đẹp và chắc chắn cho ngôi nhà.

Lựa chọn các đồ nội thất phù hợp
Lựa chọn đồ nội thất phù hợp sẽ giúp bạn tối ưu được chi phí hợp lý. Hãy chọn những món đồ nội thất cơ bản nhất để tiết kiệm. Sau này, bạn hãy bổ sung thêm khi có điều kiện, Tránh sử dụng những món đồ không có quá nhiều công dụng để tránh lãng phí.
Chọn nhà thầu uy tín, chuyên nghiệp, nhiều ưu đãi
Đây là một yếu tố quan trọng trước khi bạn muốn xây dựng một công trình nhà ở cho gia đình. Chọn được nhà thầu uy tín sẽ giúp bạn vừa có được mẫu nhà hiện đại vừa tiết kiệm được chi phí. Hãy đánh giá những mẫu nhà cấp 4 mà họ đã xây dựng để xem xét, đánh giá năng lực của họ trước khi lựa chọn đơn vị nhà thầu đó để làm đối tác thi công.
8. Thiết Kế Nhà 365 – Đơn vị thiết kế thi công nhà cấp 4 giá rẻ, uy tín
Công Ty Thiết Kế Nhà 365 là một đơn vị chuyên tư vấn, thiết kế và thi công trọn gói các công trình xây dựng nhà ở, biệt thự cao cấp. Với hơn 10 năm hoạt động trong ngành, chúng tôi đã hoàn thành hơn 100 công trình lớn nhỏ khác nhau. Trong đó có hơn 95% khách hàng của chúng tôi đánh giá 5 sao, hài lòng với công trình chúng tôi bàn giao.
Khách hàng đến với chúng tôi sẽ được tư vấn miễn phí 100%. Tùy vào tình hình kinh tế, nhu cầu của khách hàng, các kiến trúc sư sẽ đưa ra mẫu thiết kế nhà cấp 4 chất lượng nhất. Các kiến trúc sư không chỉ mang đến cho bạn một bản thiết kế nhà cấp 4 đẹp. Mà họ còn mang đến cho bạn ngôi nhà có đầy đủ công năng, đảm bảo không gian riêng tư của từng thành viên trong gia đình. Loại bỏ những hạng mục không cần thiết, gây tốn kém.

Mọi công việc đảm bảo được thực hiện nhanh chóng và đúng tiến độ. Các thợ thi công sẽ thực hiện đầy đủ 100% các hạng mục đã liệt kê trong hợp đồng. Công trình bàn giao cho khách hàng sẽ giống bản vẽ thiết kế đến 99%. Đến với Công Ty Thiết Kế Nhà 365, chúng tôi sẽ luôn đồng hành hiện thực hóa tổ ấm mơ ước của bạn.
9. Quy trình thiết kế thi công nhà cấp 4 trọn gói
Quy trình thiết kế nhà cấp 4 tại Công Ty Thiết Kế Nhà 365 qua các bước như sau:
- Bước 1: Tiếp nhận thông tin cụ thể từ các yêu cầu của khách hàng.
- Bước 2: Tiến hành khảo sát thực tế toàn bộ diện tích cần xây dựng và các khu vực lân cận.
- Bước 3: Thỏa thuận các điều khoản hợp đồng với khách hàng. Sau đó rồi tiến hành ký kết hợp đồng thiết kế.
- Bước 4: Tư vấn giá thiết kế nhà cấp 4 đầy đủ chi tiết theo từng hạng mục.
- Bước 5: Lên ý tưởng thiết kế mặt bằng cho ngôi nhà.
- Bước 6: Dựng thiết kế 3D để khách hàng phân tích bản thiết kế và nắm bắt dễ dàng hơn.
- Bước 7: Cùng khách hàng thống nhất các phương án thiết kế nhà cấp 4.
- Bước 8: Lên bản vẽ hồ sơ kỹ thuật cho mẫu thiết kế nhà cấp 4 đã được chọn.
- Bước 9: Lập bảng phân tích, dự toán khối lượng và dự kiến chi phí theo từng hạng mục thi công.
- Bước 10: Bàn giao bản thiết kế hoàn chỉnh cho khách hàng.
- Bước 11: Hai bên cùng hoàn thành các thỏa thuận đã thống nhất với khách hàng trong hợp đồng.
- Bước 12: Cuối cùng là thanh lý hợp đồng.






Trên đây là những thiết kế nhà cấp 4 siêu đẹp để bạn tham khảo. Nếu bạn đang cần được tư vấn hoàn thiện thiết kế cho tổ ấm của mình. Hãy liên hệ ngay Công Ty Thiết Kế Nhà 365 để được các kiến trúc sư tư vấn miễn phí, nhiệt tình.









