Diện tích 7x15m (105m2) là kích thước lý tưởng để triển khai nhiều phương án từ nhà 1 tầng đến 2 tầng với 2 – 4 phòng ngủ, phù hợp gia đình 3 – 6 người. Trong bài viết này, mẫu thiết kế nhà 7x15m sẽ được phân tích theo mặt bằng công năng thực tế, gợi ý bố trí gara ô tô trong nhà hoặc chừa sân trước 2 – 3m, kết hợp giải pháp thông gió tự nhiên và cửa kính lớn lấy sáng.
Đồng thời, bạn sẽ có cơ sở ước tính chi phí xây dựng theo diện tích sàn và đơn giá hiện nay, giúp dễ dàng so sánh và lựa chọn phương án phù hợp trước khi làm việc với đơn vị chuyên nghiệp như Thiết Kế Nhà 365.

- 1. Đất 7x15m nên xây bao nhiêu m2 để tối ưu không gian?
- 2. Mẫu nhà 7x15m 1 tầng (cấp 4) 2 – 3 phòng ngủ kèm bản vẽ mặt bằng
- 3. Mẫu thiết kế nhà 7x15m 2 tầng 3 – 4 phòng ngủ kèm bản vẽ chi tiết
- 4. So sánh nhà 7x15m 1 tầng và 2 tầng – Nên chọn phương án nào?
- 5. Chi phí xây nhà 7x15m tính theo diện tích sàn
- 6. Những chi tiết thiết kế nhà 7x15m dễ làm tăng chi phí
- 7. Lưu ý pháp lý khi xây nhà trên đất 7x15m
- 8. FAQ – Câu hỏi thường gặp về mẫu thiết kế nhà 7x15m
1. Đất 7x15m nên xây bao nhiêu m2 để tối ưu không gian?
Trước khi chọn mẫu thiết kế nhà, việc xác định đúng diện tích xây dựng là yếu tố quan trọng giúp cân bằng giữa công năng sử dụng, độ thông thoáng và tổng chi phí đầu tư. Với lô đất 7x15m (diện tích đất 105m2), nếu xây dựng không hợp lý, ngôi nhà rất dễ rơi vào tình trạng bí khí, thiếu sáng hoặc phát sinh ngân sách không cần thiết.
Diện tích đất tiêu chuẩn là 105m2, tuy nhiên không phải lúc nào cũng nên xây kín toàn bộ. Trên thực tế, có ba mức tỷ lệ xây dựng phổ biến:
- 100% diện tích (≈105m2): Thường áp dụng với nhà phố liền kề, tận dụng tối đa diện tích đất. Tuy nhiên phương án này dễ khiến không gian thiếu khoảng thở nếu không bổ sung giếng trời giữa nhà hoặc sân sau.
- 80 – 85% diện tích (≈85 – 95m2): Phổ biến nhất, cho phép chừa sân trước 2 – 3m để đậu xe hoặc tạo lớp đệm, đồng thời vẫn đảm bảo đủ diện tích cho công năng 3 – 4 phòng ngủ.
- 70% diện tích (≈70 – 75m2): Phù hợp với hướng thiết kế nhà vườn hoặc ưu tiên không gian xanh, biệt thự mini 7x15m, nhưng sẽ hạn chế diện tích sử dụng nếu gia đình đông người.
Trong đa số trường hợp nhà phố 7x15m, tỷ lệ xây dựng 80 – 85% được xem là phương án tối ưu, vừa đảm bảo bố trí mặt bằng công năng đầy đủ, vừa tạo được độ thông thoáng tự nhiên và kiểm soát chi phí hiệu quả ngay từ giai đoạn thiết kế.
Tham khảo dự án thiết kế thi công thực tế nhà 2 tầng 7x15m cho anh Thuận ở Bình Dương do đội ngũ KTS của Thiết Kế Nhà 365 triển khai.

Xem thêm: Thiết Kế Nhà Phố 4 Tầng 5x20m: 20+ Mẫu Đẹp Kèm Mặt Bằng & Chi Phí Chi Tiết
2. Mẫu nhà 7x15m 1 tầng (cấp 4) 2 – 3 phòng ngủ kèm bản vẽ mặt bằng
Phương án nhà 1 tầng trên diện tích 7x15m phù hợp gia đình 3 – 5 người, ưu tiên sinh hoạt trên một mặt sàn, hạn chế di chuyển cầu thang và kiểm soát chi phí ở mức hợp lý. Với mặt tiền rộng 7m, việc tổ chức không gian trở nên linh hoạt hơn so với nhà ống 4 – 5m, dễ tạo cảm giác thoáng và cân đối tổng thể.
2.1 Phối cảnh nhà 7x15m 1 tầng phong cách hiện đại
Mặt tiền nhà 7m cho phép xử lý hình khối rõ ràng, cân đối giữa đặc – rỗng mà không cần quá nhiều chi tiết trang trí. Các mẫu nhà phong cách hiện đại phổ biến thường sử dụng mái bằng hoặc mái lệch để tạo điểm nhấn hiện đại, đồng thời kết hợp cửa kính lớn nhằm tăng khả năng lấy sáng tự nhiên. Phần sân trước chừa khoảng 2 – 3m đóng vai trò làm lớp đệm, vừa để xe, vừa giúp không gian bên trong thông thoáng hơn.

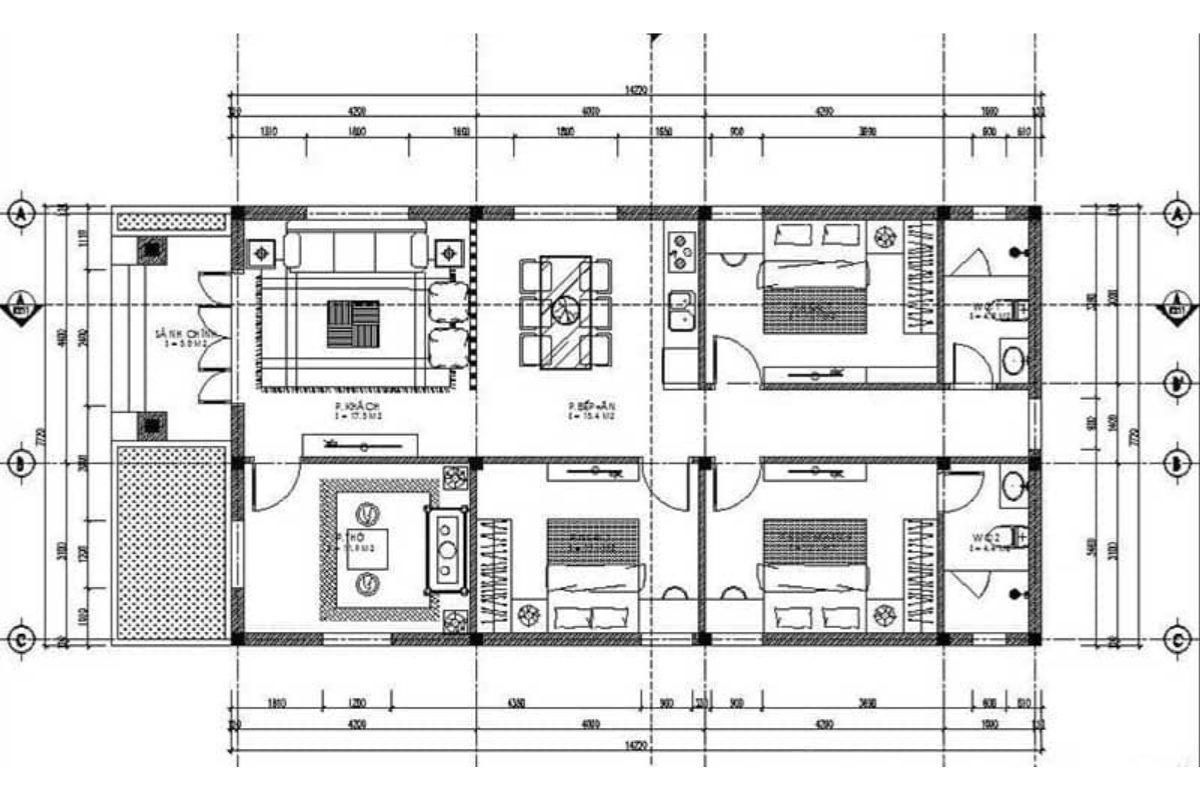
2.2 Bản vẽ mặt bằng nhà 7x15m 1 tầng 3 phòng ngủ
Với diện tích xây dựng khoảng 85 – 95m2, mặt bằng công năng nhà 7x15m thường được tổ chức theo chiều sâu lô đất, hạn chế hành lang để tối ưu diện tích sử dụng:
- Phòng khách: Khoảng 18 – 22m2, đặt gần cửa chính để thuận tiện tiếp khách
- Bếp + phòng ăn: 16 – 20m2, bố trí liên thông phía sau
- 3 phòng ngủ 1 tầng: Dao động 10 – 14m2/phòng, ưu tiên ánh sáng tự nhiên
- 2 WC: Phân bổ hợp lý để thuận tiện sinh hoạt
Cách bố trí này giúp không gian liền mạch, giảm diện tích giao thông và tăng hiệu quả sử dụng trên mỗi mét vuông.

2.3 Ưu nhược điểm nhà 7x15m 1 tầng
Ưu điểm
- Thời gian thi công nhanh, thường khoảng 4 – 5 tháng.
- Kết cấu đơn giản, ít phát sinh chi phí kỹ thuật.
- Phù hợp gia đình có người lớn tuổi hoặc trẻ nhỏ.
Nhược điểm
- Khó mở rộng thêm phòng khi nhu cầu tăng.
- Chiếm phần lớn diện tích đất, giảm không gian sân vườn nếu xây mật độ cao.
2.4 Chi phí xây nhà 7x15m 1 tầng
Với diện tích xây dựng thực tế khoảng 85 – 100m2, tổng chi phí xây nhà 1 tầng 7x15m thường dao động từ 1,2 – 1,6 tỷ, tùy theo mức hoàn thiện và vật liệu sử dụng. Trường hợp lựa chọn mái Thái hoặc mái Nhật, chi phí có thể tăng thêm khoảng 10 – 15% do phát sinh kết cấu và vật liệu mái.

Tham khảo: 25+ Mẫu Giếng Trời Đẹp Cho Nhà Ống, Nhà Phố (Hiện Đại & Dễ Ứng Dụng)
3. Mẫu thiết kế nhà 7x15m 2 tầng 3 – 4 phòng ngủ kèm bản vẽ chi tiết
Nhà 7x15m 2 tầng là phương án phổ biến khi gia đình có 4 – 6 thành viên hoặc cần phân tách rõ không gian sinh hoạt chung và riêng tư. Với lợi thế mặt tiền rộng 7m, việc bố trí 3 – 4 phòng ngủ trở nên dễ dàng hơn, đồng thời vẫn đảm bảo độ thông thoáng nếu kết hợp giếng trời và cửa kính lớn.
3.1 Phối cảnh mặt tiền nhà 7x15m 2 tầng hiện đại
Mặt tiền 7m cho phép triển khai ban công rộng chạy ngang toàn bộ chiều ngang nhà, tạo điểm nhấn rõ ràng về hình khối. Phong cách hiện đại thường ưu tiên các mảng khối vuông vức, kết hợp kính lớn để tăng ánh sáng tự nhiên và mở rộng tầm nhìn. Tỷ lệ đặc – rỗng được kiểm soát tốt giúp tổng thể ngôi nhà cân đối mà không cần quá nhiều chi tiết trang trí.

3.2 Bản vẽ mặt bằng tầng trệt nhà 7x15m
Tầng trệt thường được bố trí theo hướng tối ưu không gian sinh hoạt chung và đảm bảo thông thoáng theo chiều sâu lô đất:
- Sân trước: Chừa 2 – 3m để đậu xe hoặc làm khoảng đệm.
- Phòng khách: Đặt phía trước, kết nối trực tiếp với cửa chính.
- Bếp + ăn: Bố trí phía sau, bếp liên thông phòng ăn nhưng vẫn có độ tách vừa phải.
- 1 phòng ngủ (hoặc phòng đa năng): Phù hợp cho người lớn tuổi.
- 1 WC: Đặt cuối nhà hoặc dưới cầu thang để tiết kiệm diện tích.

3.3 Bản vẽ mặt bằng tầng lầu nhà 7x15m
Không gian tầng lầu ưu tiên khu vực nghỉ ngơi và sinh hoạt riêng tư:
- 2 – 3 phòng ngủ: Diện tích linh hoạt theo nhu cầu.
- 1 – 2 WC: Bố trí gần trục kỹ thuật để tiết kiệm chi phí.
- Ban công: Tận dụng toàn bộ mặt tiền 7m để lấy sáng và gió.
- Có thể bổ sung phòng sinh hoạt chung: Tăng kết nối giữa các thành viên.

3.4 Ưu nhược điểm nhà 7x15m 2 tầng
Ưu điểm
- Tăng số lượng phòng ngủ, đáp ứng gia đình đông người.
- Phân tách rõ không gian riêng tư và sinh hoạt chung.
- Dễ cải tạo hoặc nâng cấp công năng trong tương lai.
Nhược điểm
- Chi phí phần thô 2 tầng riêng hạng mục móng và kết cấu cao hơn so với nhà 1 tầng.
- Cần xử lý chống nóng mái và thông gió hợp lý để đảm bảo sự thoải mái khi sử dụng.

3.5 Chi phí xây nhà 7x15m 2 tầng
Với tổng diện tích sàn khoảng 150 – 180m2, chi phí xây nhà 2 tầng 7x15m thường dao động từ 1,8 – 2,4 tỷ, tùy theo mức độ hoàn thiện, chi phí hoàn thiện trọn gói và vật liệu sử dụng. Nếu lựa chọn phong cách có nhiều chi tiết như mái Thái, ốp đá mặt tiền hoặc hệ ban công kính lớn, ngân sách có thể tăng thêm khoảng 10 – 20% so với mức trung bình.

Tham khảo: Nhà Phố Mái Bằng: 50+ Mẫu Đẹp, Chi Phí Xây Dựng & Có Nên Làm Không?
4. So sánh nhà 7x15m 1 tầng và 2 tầng – Nên chọn phương án nào?
Việc lựa chọn xây nhà 1 tầng hay 2 tầng trên lô đất 7x15m phụ thuộc chủ yếu vào số lượng thành viên, nhu cầu sử dụng lâu dài và khả năng tài chính. Mỗi phương án đều có ưu điểm riêng, phù hợp với từng giai đoạn sinh hoạt của gia đình.
Tiêu chí | Nhà 1 tầng | Nhà 2 tầng |
Số phòng ngủ | 2 – 3 phòng | 3 – 4 phòng |
Mức chi phí | Thấp hơn | Cao hơn |
Khả năng mở rộng | Hạn chế | Linh hoạt |
Phù hợp | Gia đình nhỏ (3 – 4 người) | Gia đình đông (4 – 6 người) |
Về thực tế, nếu gia đình ít thành viên, ưu tiên sự tiện lợi và ngân sách dưới 1,6 tỷ, phương án nhà 1 tầng là lựa chọn hợp lý. Ngược lại, nếu cần nhiều phòng ngủ, muốn tách biệt không gian riêng tư và có định hướng sử dụng lâu dài, nhà 2 tầng sẽ tối ưu hơn cả về công năng lẫn khả năng nâng cấp trong tương lai.

Tham khảo: Top 25+ Mẫu Nhà 1 Trệt 2 Lầu 6x20m Đẹp – Bản Vẽ & Chi Phí Xây Dựng Chi Tiết
5. Chi phí xây nhà 7x15m tính theo diện tích sàn
Chi phí xây nhà 7x15m được tính chủ yếu theo diện tích sàn và đơn giá xây dựng theo m2, trong đó mức giá sẽ thay đổi tùy theo vật liệu hoàn thiện, phong cách kiến trúc và điều kiện thi công thực tế. Việc hiểu rõ cách tính này giúp gia chủ chủ động hơn trong việc dự trù ngân sách ngay từ đầu.
Hiện nay, đơn giá xây dựng phổ biến trên thị trường dao động như sau:
- Phần thô: Khoảng 3,4 – 3,9 triệu/m2.
- Trọn gói trung bình: Khoảng 5,5 – 7 triệu/m2.
Dựa trên mức đơn giá này, có thể ước tính chi phí theo từng phương án diện tích sàn:
- Nhà 1 tầng (≈95m2): Tổng chi phí khoảng 1,3 – 1,5 tỷ.
- Nhà 2 tầng (≈170m2): Tổng chi phí khoảng 2,0 – 2,3 tỷ.
Lưu ý: đây là mức chi phí tham khảo trong điều kiện thi công tiêu chuẩn. Nếu công trình sử dụng vật liệu cao cấp, thiết kế nhiều chi tiết như mái Thái, mặt tiền ốp đá hoặc thi công trong hẻm nhỏ, tổng chi phí có thể tăng thêm so với dự toán ban đầu.
Tham khảo đơn giá thi công nhà phố được cập nhật mới nhất tại Thiết Kế Nhà 365

Xem thêm: Mẫu thiết kế nhà 8x15m – Gợi ý mặt bằng & chi phí xây dựng thực tế
6. Những chi tiết thiết kế nhà 7x15m dễ làm tăng chi phí
Một số lựa chọn về kiến trúc và vật liệu có thể khiến chi phí xây nhà 7x15m tăng đáng kể nếu không được kiểm soát ngay từ giai đoạn thiết kế. Đây thường là các hạng mục mang tính thẩm mỹ cao nhưng kéo theo phát sinh về kết cấu, nhân công và vật tư.
Các yếu tố phổ biến gồm:
- Mái Thái phức tạp: Yêu cầu hệ kết cấu mái, vì kèo và lớp hoàn thiện nhiều hơn so với mái bằng.
- Mặt tiền ốp đá toàn bộ: Chi phí vật liệu và nhân công cao, đặc biệt với đá tự nhiên.
- Phào chỉ dày đặc: Tăng khối lượng thi công và đòi hỏi tay nghề hoàn thiện cao.
- Ban công kính lớn: Phát sinh chi phí kính cường lực, phụ kiện và kết cấu chịu lực.
- Nhiều tường cong, giật cấp: Làm tăng độ phức tạp khi thi công và hao hụt vật liệu.
Trong thực tế, những lựa chọn này có thể khiến tổng chi phí xây dựng tăng khoảng 5 – 20% so với phương án thiết kế cơ bản. Vì vậy, gia chủ nên cân nhắc giữa yếu tố thẩm mỹ và ngân sách, đồng thời trao đổi kỹ với đơn vị thiết kế để kiểm soát chi phí ngay từ bản vẽ ban đầu.

Tham khảo: Nhà phố 4 tầng 5x15m và hành trình biến những yêu cầu giản dị thành không gian sống ấm cúng
7. Lưu ý pháp lý khi xây nhà trên đất 7x15m
Trước khi chốt phương án thiết kế nhà 7x15m, gia chủ cần kiểm tra các quy định pháp lý tại khu vực xây dựng để tránh phải điều chỉnh hồ sơ, phát sinh chi phí hoặc kéo dài thời gian xin phép. Đây là bước quan trọng nhưng thường bị bỏ qua ở giai đoạn đầu.
Một số yếu tố cần lưu ý gồm:
- Mật độ xây dựng nhà phố: Quy định tỷ lệ diện tích được phép xây trên tổng diện tích đất, ảnh hưởng trực tiếp đến phương án chừa sân trước hoặc sân sau
- Khoảng lùi bắt buộc: Áp dụng tùy theo lộ giới đường, quyết định việc có được xây sát ranh hay không
- Chiều cao tối đa: Giới hạn số tầng và tổng chiều cao công trình theo quy hoạch khu vực
- Quy hoạch chi tiết khu dân cư: Bao gồm chỉ giới xây dựng, chức năng sử dụng đất và các yêu cầu kiến trúc đồng bộ
Việc nắm rõ các quy định này ngay từ đầu giúp phương án thiết kế bám sát thực tế, hạn chế chỉnh sửa nhiều lần và đảm bảo quá trình xin phép xây dựng diễn ra thuận lợi.

Tham khảo: 35+ Mẫu Nhà Mái Nhật Đẹp Hiện Đại 2026 (Kèm Chi Phí & Cách Chọn Phù Hợp)
8. FAQ – Câu hỏi thường gặp về mẫu thiết kế nhà 7x15m
Trước khi quyết định phương án thiết kế, nhiều gia chủ thường có những thắc mắc xoay quanh công năng, chi phí và thời gian thi công. Dưới đây là các câu hỏi phổ biến khi tìm hiểu mẫu thiết kế nhà 7x15m:
Diện tích 7x15m có làm được 4 phòng ngủ không?
Có. Phương án 4 phòng ngủ 2 tầng phù hợp với diện tích đất 7x15m, vừa đảm bảo không gian sinh hoạt chung rộng thoáng vừa đáp ứng nhu cầu sử dụng riêng tư của từng thành viên.
Có nên xây kín 105m2 không?
Không nên nếu muốn nhà thông thoáng. Nên chừa sân trước hoặc giếng trời để tăng ánh sáng và thông gió tự nhiên.
Thời gian thi công bao lâu?
Khoảng 4 – 7 tháng tùy quy mô công trình, số tầng và điều kiện thi công thực tế.
Chi phí thiết kế bao nhiêu?
Đơn giá thiết kế nhà phố 7x15m thường dao động khoảng 120.000 – 200.000 đ/m2, tùy theo mức độ chi tiết và yêu cầu hồ sơ.

Mẫu thiết kế nhà 7x15m mang lại nhiều lựa chọn linh hoạt từ nhà 1 tầng đến 2 tầng, phù hợp với cả nhu cầu ở cơ bản lẫn không gian sống lâu dài cho gia đình 3 – 6 người. Nếu ưu tiên chi phí và sự tiện lợi trong sinh hoạt, phương án 1 tầng là lựa chọn hợp lý. Ngược lại, khi cần 3 – 4 phòng ngủ và sự tách biệt không gian rõ ràng, nhà 2 tầng sẽ tối ưu hơn về công năng và khả năng mở rộng trong tương lai.
Để tránh phát sinh chi phí và đảm bảo bố trí mặt bằng phù hợp ngay từ đầu, gia chủ nên xác định rõ nhu cầu sử dụng, tỷ lệ xây dựng và ngân sách trước khi triển khai thiết kế chi tiết. Nếu bạn đang cần tham khảo phương án mẫu thiết kế nhà 7x15m phù hợp với lô đất thực tế, việc trao đổi cùng đơn vị chuyên môn như Thiết Kế Nhà 365 sẽ giúp bạn có giải pháp rõ ràng, kiểm soát chi phí tốt và triển khai thi công hiệu quả hơn.









