Mẫu nhà ống 3 tầng 4x12m là mẫu nhà thường được lựa chọn tại các khu đô thị, thành phố đông đúc. Tuy nhiên, để chọn được một mẫu nhà đẹp phù hợp với sở thích của gia chủ mà vẫn đảm bảo được công năng sử dụng và tính thẩm mỹ là điều không hề đơn giản. Nếu bạn cũng đang băn khoăn không biết lựa chọn mẫu nhà ống 3 tầng này cho phù hợp. Hãy xem ngay 39+ mẫu thiết kế nhà vừa đẹp vừa có chi phí hợp lý, phù hợp với các gia đình trẻ trong bài viết dưới đây!
-
1. Những mẫu nhà ống 3 tầng 4x12m đẹp, sang trọng
- 1.1 Mẫu nhà ống 3 tầng 4x12m hiện đại
- 1.2 Mẫu nhà ống 3 tầng 4x12m tân cổ điển
- 1.3 Mẫu nhà ống 3 tầng 4x12m có 3 phòng ngủ
- 1.4 Mẫu nhà ống 3 tầng 4x12m mái bằng
- 1.5 Mẫu nhà ống 3 tầng 4x12m mái thái
- 1.6 Mẫu nhà ống 3 tầng 4x12m đơn giản, tinh tế
- 1.7 Mẫu nhà ống 3 tầng 4x12m có gara để xe
- 1.8 Mẫu nhà ống 3 tầng 4x12m có sân thượng
- 1.9 Mẫu thiết kế nhà ống 4x12m 3 tầng nhiều cây xanh
- 2. Lựa chọn đơn vị thi công mẫu nhà ống 3 tầng 4x12m
1. Những mẫu nhà ống 3 tầng 4x12m đẹp, sang trọng
1.1 Mẫu nhà ống 3 tầng 4x12m hiện đại
Đây là một mẫu nhà 3 tầng này được kiến trúc sư thiết kế có khả năng tận dụng ánh sáng và gió tốt. Ngôi nhà phố không quá rộng rãi nhưng sẽ luôn mang đến cho gia chủ cảm giác thoáng mát rộng rãi. Phong cách hiện đại, trẻ trung phù hợp với các cặp vợ chồng trẻ sinh sống. Cửa kính giúp cho ngôi nhà tận dụng được ánh sáng tự nhiên tốt hơn.

Tầng 2 có ban công để người dùng hóng gió, thư giãn khi cần. Tầng 3 có một phần sân lớn để trồng cây, phơi đồ hoặc ngồi uống nước vào những lúc rảnh rỗi. Màu sắc chủ đạo là màu trắng và màu nâu trung tính, tạo thành một khối đẹp mắt rất đáng để tham khảo.

1.2 Mẫu nhà ống 3 tầng 4x12m tân cổ điển
Mặt tiền của ngôi nhà nhà ống 3 tầng 4x12m được thiết kế tỉ mỉ với các đường phào nổi đặc trưng của phong cách tân cổ điển. Màu trắng được chọn làm màu chủ đạo của ngôi nhà để tăng sự sang trọng, hiện đại. Cửa cổng và phần ban công được thiết kế hoa văn tỉ mỉ, uốn lượn để tạo điểm nhấn. Cửa được chọn làm bằng vật liệu kính để tận hưởng ánh sáng tự nhiên một cách tốt nhất.


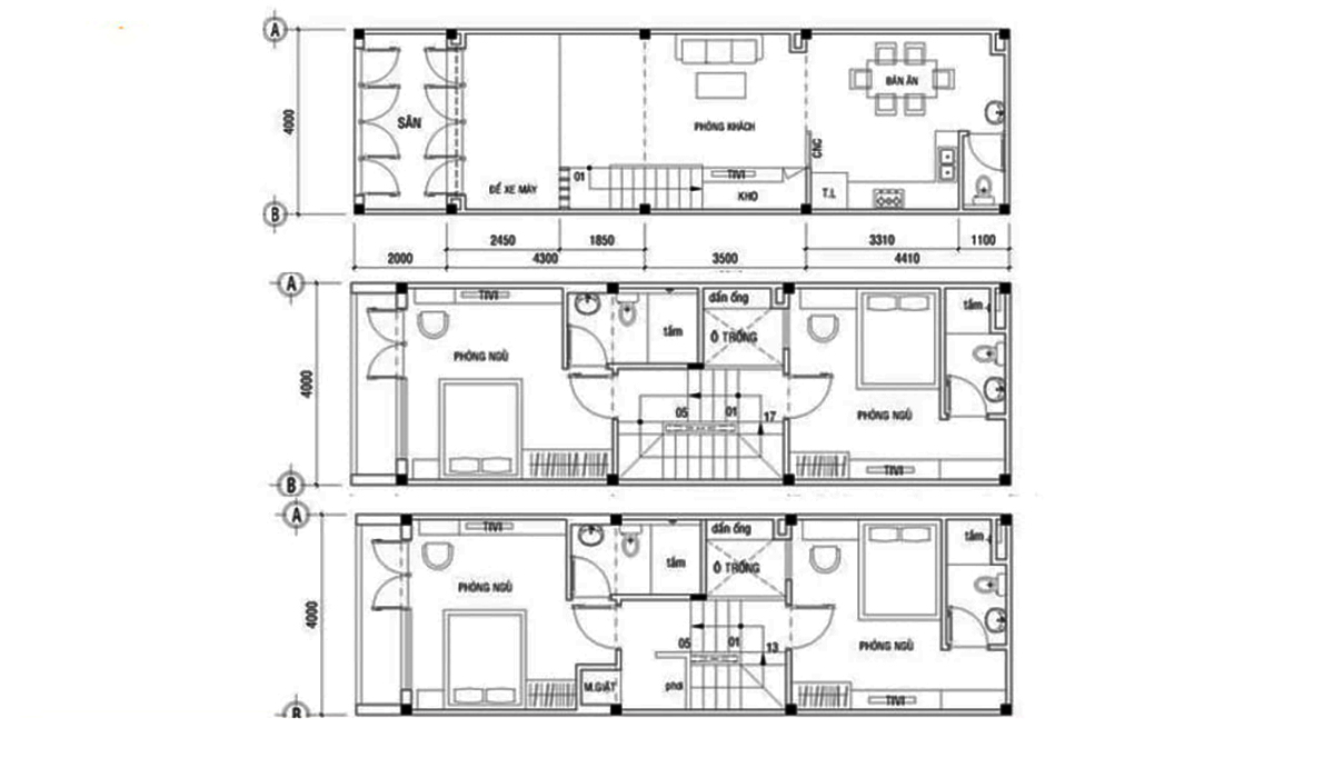
1.3 Mẫu nhà ống 3 tầng 4x12m có 3 phòng ngủ
Nếu gia đình bạn khá đông người, có khoảng 5-6 thành viên thì chắc chắn một ngôi nhà có 2 phòng ngủ là không phù hợp. Cho nên bạn cần lựa chọn một ngôi nhà 4x12m 3 tầng có 3 phòng ngủ. Điều này sẽ đảm bảo cho không gian sinh hoạt riêng tư của mỗi thành viên được đảm bảo. Hơn nữa, các không gian còn lại cũng sẽ được bố trí một cách hợp lý hơn.


1.4 Mẫu nhà ống 3 tầng 4x12m mái bằng
Phong cách thiết kế nhà ống 3 tầng 4x12m mái bằng đơn giản mang hơi hướng hiện đại. Vật liệu kính được sử dụng nhiều để giúp ngôi nhà tận hưởng ánh sáng tự nhiên tốt vào ban ngày. Hệ thống ánh sáng sẽ làm ngôi nhà của bạn nổi bật hơn vào ban đêm. Tầng 2 và tầng 3 có thêm ban công để trồng cây xanh, hóng gió trời khi cần thư giãn. Nội thất được trang bị đầy đủ sẽ giúp gia đình có cuộc sống tiện nghi hơn.


1.5 Mẫu nhà ống 3 tầng 4x12m mái thái
Với thiết kế đổ dốc, nhà ống mái thái 3 tầng 4x12m không những giúp thoát nước tốt khi trời mưa mà có khả năng tản nhiệt chống nóng ưu việt vào mùa nắng. Mặc dù diện tích đất xây dựng hẹp với kích thước 4x12m nhưng mẫu nhà mái thái này vẫn phù hợp để xây dựng.


1.6 Mẫu nhà ống 3 tầng 4x12m đơn giản, tinh tế
Mặt tiền của mẫu nhà ống 3 tầng 4x12m được thiết kế không quá phức tạp. Kiểu dáng hiện đại, sang trọng phù hợp với những người không thích quá cầu kỳ, tỉ mỉ. Thiết kế này giúp ngôi nhà tận dụng được ánh sáng tự nhiên, mang đến một không gian sống rộng mở hơn.

Phần ban công của ngôi nhà được tận dụng để trồng cây xanh. Đây là nơi gia chủ hòa mình với thiên nhiên và cùng là một góc đẹp chill chill để nhìn ra phố. Toàn bộ phối cảnh của ngôi nhà ống có kiến trúc 3 tầng nổi bật với tông màu trắng tinh khôi làm chủ đạo.

1.7 Mẫu nhà ống 3 tầng 4x12m có gara để xe
Đối với các gia đình ở thành phố có diện tích đất chật chội thì thiết kế nhà ống 3 tầng có gara là điều cần thiết. Tầng 2 của ngôi nhà có ban công được làm bằng vật liệu kính. Ở tầng 3 thiết kế có một sân thượng nhỏ để gia đình trồng cây, phơi đồ khi cần thiết.


1.8 Mẫu nhà ống 3 tầng 4x12m có sân thượng
Đây là mẫu nhà ống 3 tầng 4x12m phù hợp xu hướng cuộc sống hiện tại. Tường rào được thiết kế phần tường chia làm 4 theo hàng ngang để trồng cây xanh.
Ở tầng 2 có một ban công rộng với các lan can nhỏ tạo nên sự thanh thoát trong thiết kế. Bên cạnh ban công có một phần để trồng hoa, trồng cây tạo điểm nhấn xinh đẹp cho ngôi nhà. Tầng 3 có sân thượng rộng rãi được thiết kế thông thoáng để các loại cây xanh dễ dàng đón nắng. Mặt tiền tầng 3 có một phần họa tiết hình cây cỏ uốn lượn vô cùng bắt mắt.


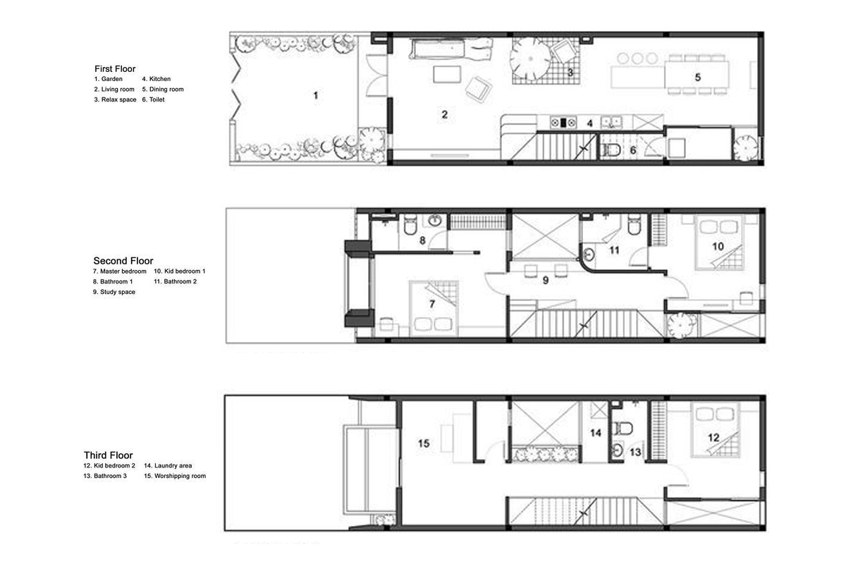
1.9 Mẫu thiết kế nhà ống 4x12m 3 tầng nhiều cây xanh
Nếu bạn là một người yêu thích thiên nhiên nhưng không có một sân vườn rộng để trồng cây, trồng hoa thì đây là một mẫu nhà đáng lựa chọn tới bạn. Mẫu nhà ống 3 tầng 4x12m này được bao phủ bởi cây xanh từ trong ra ngoài.
Ngôi nhà này còn được sử dụng vật liệu kính ở cửa và ban công để tận dụng ánh sáng thiên nhiên. Rèm cửa được sử dụng để gia đình tùy chỉnh ánh sáng cho phù hợp với nhu cầu của mình. Mặt tiền của tầng 1 được ốp đá bóng. Tầng 2 và tầng 3 được sơn màu trắng kết hợp với ốp gạch màu gỗ để tạo điểm nhấn nổi bật.


Xem thêm: 60+ Mẫu nhà ống 2 tầng mái thái mặt tiền 5m đẹp ấn tượng
2. Lựa chọn đơn vị thi công mẫu nhà ống 3 tầng 4x12m
Việc hợp tác với một đơn vị thi công uy tín sẽ giúp bạn sở hữu ngôi nhà ống 4x12m 3 tầng không chỉ tiện nghi, sang trọng mà còn đảm bảo an toàn và tiết kiệm chi phí. Khách hàng có thể liên hệ với Thiết Kế Nhà 365 để được hỗ trợ trọn gói từ khâu thiết kế bản vẽ, thi công cho đến lựa chọn nội thất. Với đội ngũ kiến trúc sư và chuyên viên giàu kinh nghiệm, Công ty Thiết Kế Nhà 365 cam kết mang đến những sản phẩm chất lượng, đáp ứng sự hài lòng của mọi khách hàng.
Bài viết trên đã chia sẻ những kinh nghiệm hữu ích cùng một số mẫu nhà ống 3 tầng 4x12m hiện đại, tiện nghi và tối ưu chi phí để bạn tham khảo. Nếu bạn đang có nhu cầu xây dựng tổ ấm cho riêng mình, hãy liên hệ ngay với Công ty Thiết Kế Nhà 365 để được tư vấn chi tiết về và kèm theo giá thi công nhà phố mới nhất.










