Thiết kế nhà 1 tầng 3 phòng ngủ đang là xu hướng nhà ở hiện nay, phù hợp với những gia đình đông thành viên và có chi phí khá mềm. Bạn cũng có thể lựa chọn nhiều phong cách khác nhau, bố trí nội ngoại thất theo ý muốn của mình. Trong bài viết này, hãy cùng Thiết Kế Nhà 365 điểm qua một số mẫu nhà 1 tầng 3 phòng ngủ hot nhất hiện nay, cũng như một số lưu ý cần biết khi thi công xây dựng.

- 1. Vì sao nên thiết kế nhà 1 tầng 3 phòng ngủ?
- 2. Ưu, nhược điểm của thiết kế nhà 1 tầng 3 phòng ngủ
- 3. Một số yêu cầu trong thiết kế nhà 1 tầng 3 phòng ngủ
-
4. Những mẫu thiết kế nhà 1 tầng 3 phòng ngủ đẹp nhất
- 4.1. Thiết kế nhà ống 1 tầng 3 phòng ngủ
- 4.2. Thiết kế nhà 1 tầng 3 phòng ngủ mái lệch
- 4.3. Thiết kế nhà 1 tầng 3 phòng ngủ mái bằng
- 4.4. Thiết kế nhà 1 tầng 3 phòng ngủ mái chữ A
- 4.5. Thiết kế nhà nông thôn mái thái 3 phòng ngủ
- 4.6. Thiết kế nhà 1 tầng mái thái chữ L
- 4.7. Thiết kế nhà 1 tầng 3 phòng ngủ phong cách tối giản
- 4.8. Thiết kế nhà 1 tầng 3 phòng ngủ phong cách hiện đại
- 4.9. Thiết kế nhà vườn 1 tầng phong cách châu Âu
- 4.10. Thiết kế nhà 1 tầng 3 phòng ngủ có gác lửng
- 4.11. Thiết kế nhà 1 tầng 3 phòng ngủ và 1 phòng thờ
- 4.12. Thiết kế nhà 1 tầng kiểu biệt thự sang trọng
- 4.13. Thiết kế nhà phố mái thái 3 phòng ngủ
- 4.14. Thiết kế nhà vườn 1 tầng kích thước 12x8m
- 4.15. Thiết kế nhà 1 tầng 3 phòng ngủ có sân đỗ ô tô
- 5. Bản vẽ công năng cho thiết kế nhà 1 tầng 3 phòng ngủ
1. Vì sao nên thiết kế nhà 1 tầng 3 phòng ngủ?
Có rất nhiều lý do tại sao thiết kế nhà 1 tầng hiện đại 3 phòng ngủ ngày càng được nhiều người ưa chuộng, có thể kể đến như:
- Thiết kế theo kiểu nhà cấp 4 đơn giản, 1 tầng nên không yêu cầu công nghệ kỹ thuật quá cao, quá trình thi công nhanh giúp gia chủ tiết kiệm chi phí.
- Thiết kế nhà 1 tầng 3 phòng ngủ đảm bảo sự thoải mái và riêng tư cho các thành viên trong gia đình, tạo cảm giác ấm cúng, gần gũi.
- Đây là mẫu nhà hiện đại gần gũi với thiên nhiên, tạo ra không gian thư giãn và yên bình cho gia chủ.
- Mẫu nhà 1 tầng 3 phòng ngủ đa dạng về kiểu dáng, nhiều thiết kế khác nhau từ tân cổ điển, cổ điển đến hiện đại. Kiến trúc mái thái, mái bằng giúp công trình trở nên sang trọng hơn.

Tham khảo: 25+ Mẫu nhà 1 tầng 3 phòng ngủ 120m2 đẹp tinh tế, chi phí thấp
2. Ưu, nhược điểm của thiết kế nhà 1 tầng 3 phòng ngủ
Trước khi lựa chọn thi công mẫu nhà 1 tầng đẹp 3 phòng ngủ, bạn cần chắc chắn xem liệu nó có phù hợp với nhu cầu và mục đích sử dụng của mình hay không. Dưới đây là những ưu nhược điểm của kiểu nhà này:
Ưu điểm:
- Thiết kế tận dụng được tối đa không gian, mang đến tổng thể kiến trúc cân bằng và đồng điệu.
- Thời gian thi công và xây dựng nhanh hơn so với nhà cao tầng, nên có thể hoàn thiện sớm để đưa vào sử dụng.
- Tiết kiệm chi phí hơn so với những mẫu nhà khác nhưng vẫn đảm bảo đầy đủ công năng sử dụng cho gia đình.
- Phù hợp với những gia đình có người già và trẻ nhỏ do không sử dụng cầu thang, hạn chế rủi ro khi di chuyển, đi lại.
Nhược điểm:
- Việc bố trí và phân chia không gian các phòng sẽ khó khăn hơn. Do đó, gia chủ cần tính toán kỹ lưỡng để phân chia phòng sao cho phù hợp, đảm bảo tính riêng tư khi sử dụng.
- Kết cấu 1 tầng nên việc tối ưu diện tích sẽ khó khăn hơn so với nhà cao tầng.

Tham khảo: Top 9+ mẫu nhà 1 tầng 4 phòng ngủ đẹp, tối ưu chi phí 2025
3. Một số yêu cầu trong thiết kế nhà 1 tầng 3 phòng ngủ
Để công trình nhà 1 tầng 3 phòng ngủ không xảy ra sai sót, dưới đây là một số yêu cầu mà bạn cần quan tâm:
3.1. Diện tích đất xây dựng
Để có được thiết kế nhà 1 tầng 3 phòng ngủ hài hòa và tiện nghi, bạn cần xem xét kỹ yếu tố diện tích đất xây dựng:
- Diện tích lý tưởng: Từ 100m² trở lên giúp bố trí đầy đủ không gian sinh hoạt cho các thành viên.
- Trường hợp đất hẹp: Kiến trúc sư sẽ tối ưu mặt bằng, lựa chọn bố cục hợp lý để vẫn đảm bảo công năng.
- Đất vườn rộng: Phù hợp để thiết kế sân trước – sân sau, tạo không gian xanh, gần gũi thiên nhiên.
- Đất có hạn chế sân vườn: Có thể kết hợp tiểu cảnh, giếng trời hoặc cây xanh trong nhà để tạo cảm giác thoáng đãng, hòa hợp tự nhiên.
Dù diện tích lớn hay nhỏ, việc tối ưu không gian và công năng là yếu tố then chốt giúp căn nhà 1 tầng 3 phòng ngủ trở nên tiện nghi và hài hòa.

3.2. Yêu cầu công năng sử dụng tối thiếu
Để đảm bảo ngôi nhà 1 tầng 3 phòng ngủ vừa đẹp vừa tiện nghi, việc bố trí công năng hợp lý là yếu tố quyết định sự thoải mái trong sinh hoạt hằng ngày. Dưới đây là những yêu cầu cơ bản cần lưu ý:
- Bố trí không gian hợp lý: Các khu vực trong nhà cần được sắp xếp khoa học, tránh chồng chéo chức năng, giúp việc di chuyển thuận tiện và an toàn.
- Đảm bảo tính tiện ích: Thiết kế phải hỗ trợ tối đa nhu cầu sinh hoạt của gia đình, tối ưu diện tích nhưng vẫn mang lại cảm giác rộng rãi, thông thoáng.
- Tối ưu kết cấu và kỹ thuật: Cần xem xét kỹ yếu tố kết cấu, hệ thống điện nước và thông gió để dễ dàng bảo trì, vận hành công trình lâu dài.
- Thiết kế linh hoạt theo nhu cầu: Mỗi gia đình có nhu cầu khác nhau, vì vậy kiến trúc sư cần trao đổi kỹ với gia chủ để đưa ra giải pháp công năng phù hợp nhất.
- Đảm bảo tính thẩm mỹ – công năng song hành: Bố trí nội thất phải vừa đảm bảo công năng, vừa hài hòa với tổng thể kiến trúc để tạo không gian sống đẹp và tiện nghi.
Một thiết kế thành công là sự cân bằng giữa công năng – thẩm mỹ – trải nghiệm sử dụng, mang đến không gian sống tiện ích và thoải mái cho mọi thành viên trong gia đình.

3.3. Vấn đề thẩm mỹ kiến trúc sẽ yêu cầu những gì?
Ngoài công năng và diện tích, yếu tố thẩm mỹ kiến trúc đóng vai trò quan trọng giúp ngôi nhà đạt được sự hài hòa và giá trị tổng thể cao. Khi thiết kế, bạn cần chú ý những điểm sau:
- Tỷ lệ và bố cục hài hòa: Hình khối, chiều cao, và các mảng tường phải cân đối để tạo cảm giác vững chãi, dễ nhìn.
- Phong cách thiết kế thống nhất: Từ kiến trúc tổng thể đến nội thất bên trong nên theo cùng một phong cách — hiện đại, tân cổ điển hay tối giản — để tránh rối mắt và mất điểm nhấn.
- Màu sắc và chất liệu phù hợp: Kết hợp màu sơn, vật liệu ốp lát, gỗ, kính… sao cho đồng bộ với phong cách kiến trúc và sở thích gia chủ.
- Ánh sáng và cảnh quan: Thiết kế tận dụng ánh sáng tự nhiên, bố trí cây xanh và sân vườn hợp lý để tăng tính thẩm mỹ và cảm giác gần gũi thiên nhiên.
- Chi tiết trang trí tinh tế: Các chi tiết nhỏ như lan can, phào chỉ, đèn trang trí… cần được chọn lọc kỹ để tôn lên vẻ đẹp riêng của từng phong cách.
Một thiết kế nhà đẹp không chỉ ở công năng hoàn hảo mà còn ở sự hài hòa trong đường nét, màu sắc và tỷ lệ kiến trúc, giúp không gian sống vừa sang trọng vừa gần gũi.

Tham khảo: 20+ Mẫu thiết kế nhà ống 1 tầng đẹp, đầy đủ tiện nghi nhất
4. Những mẫu thiết kế nhà 1 tầng 3 phòng ngủ đẹp nhất
Các mẫu thiết kế nhà đẹp 1 tầng 3 phòng ngủ hiện nay vô cùng đa dạng. Tùy theo sở thích và mục đích sử dụng mà bạn có thể lựa chọn sao cho phù hợp. Dưới đây là một số mẫu thiết kế được nhiều người ưa chuộng nhất hiện nay:
4.1. Thiết kế nhà ống 1 tầng 3 phòng ngủ
Nhà ống 1 tầng 3 phòng ngủ là lựa chọn lý tưởng cho các gia đình trẻ muốn sở hữu không gian sống hiện đại, tiện nghi mà vẫn tiết kiệm chi phí.
- Chi phí thi công hợp lý: Kiểu nhà ống 1 tầng có cấu trúc đơn giản, phù hợp với những gia đình có ngân sách vừa phải.
- Thiết kế mái lệch hiện đại: Mái lệch giúp tăng tính thẩm mỹ, tạo điểm nhấn độc đáo và giúp thoát nước hiệu quả.
- Đường nét kiến trúc khỏe khoắn: Các mảng khối vuông vức, mạnh mẽ tạo nên vẻ đẹp trẻ trung, năng động cho mặt tiền.
- Tối ưu ánh sáng tự nhiên: Hệ thống cửa kính được bố trí hợp lý, giúp căn nhà luôn sáng sủa, thông thoáng và tiết kiệm điện năng.
- Phù hợp diện tích hẹp: Dạng nhà ống dễ bố trí trên lô đất có chiều ngang hạn chế nhưng vẫn đảm bảo đủ công năng sinh hoạt cho cả gia đình.
Mẫu nhà ống 1 tầng 3 phòng ngủ là lựa chọn tối ưu giữa thẩm mỹ – công năng – chi phí, đặc biệt phù hợp với gia đình trẻ yêu thích phong cách hiện đại, tiện nghi.

4.2. Thiết kế nhà 1 tầng 3 phòng ngủ mái lệch
Nhà 1 tầng mái lệch là xu hướng nổi bật trong kiến trúc hiện đại, mang lại diện mạo độc đáo và phong cách riêng cho gia chủ.
- Phong cách hiện đại, phá cách: Thiết kế mái lệch giúp công trình trở nên ấn tượng, tạo điểm nhấn khác biệt so với các mẫu nhà truyền thống.
- Tông màu sang trọng: Gam trắng chủ đạo kết hợp với chi tiết gỗ hoặc đá trang trí tạo cảm giác trang nhã, thanh lịch và tinh tế.
- Không gian mở hài hòa: Hệ thống cửa kính lớn được bố trí trên nhiều mặt tường, giúp tận dụng ánh sáng tự nhiên và gió trời hiệu quả.
- Sân trước – sân sau rộng rãi: Thiết kế không gian ngoài trời hợp lý, tạo cảm giác gần gũi thiên nhiên và giúp gia chủ có nơi thư giãn, sinh hoạt chung.
- Phù hợp với nhiều loại đất: Kiểu mái lệch có thể áp dụng linh hoạt trên cả khu đất hẹp hoặc rộng, vẫn đảm bảo tính thẩm mỹ và công năng sử dụng.
Mẫu thiết kế nhà 1 tầng 3 phòng ngủ mái lệch mang lại sự trẻ trung, hiện đại và hòa quyện thiên nhiên – lựa chọn hoàn hảo cho những ai yêu thích sự tinh tế và phá cách trong kiến trúc.

4.3. Thiết kế nhà 1 tầng 3 phòng ngủ mái bằng
Nhà 1 tầng mái bằng là lựa chọn phổ biến nhờ thiết kế hiện đại, chi phí hợp lý và khả năng ứng dụng cao ở cả thành thị lẫn nông thôn.
- Chi phí xây dựng tiết kiệm: Kết cấu mái bằng đơn giản, dễ thi công và bảo trì, phù hợp với ngân sách của nhiều gia đình.
- Phong cách tinh gọn: Kiến trúc mang hơi hướng truyền thống kết hợp hiện đại, đường nét tối giản, tạo cảm giác thanh thoát và gọn gàng.
- Tận dụng tối đa không gian: Sân trước rộng rãi có thể dùng để trồng cây xanh, bố trí tiểu cảnh hoặc làm gara đỗ xe tiện lợi.
- Kết cấu vững chắc: Mái bằng có độ bền cao, chịu lực tốt và có thể tận dụng làm sân thượng hoặc không gian thư giãn ngoài trời.
- Phù hợp nhiều loại địa hình: Dễ áp dụng cho cả khu đất vuông vức lẫn đất hẹp ngang, vẫn đảm bảo thẩm mỹ và công năng.
Mẫu nhà 1 tầng 3 phòng ngủ mái bằng mang lại sự cân bằng giữa chi phí – độ bền – thẩm mỹ, là lựa chọn lý tưởng cho những ai yêu thích vẻ đẹp tối giản, hiện đại và tiện nghi.

4.4. Thiết kế nhà 1 tầng 3 phòng ngủ mái chữ A
Mẫu nhà 1 tầng mái chữ A mang vẻ đẹp cân đối, tinh tế và sang trọng, phù hợp với những gia chủ yêu thích phong cách kiến trúc truyền thống pha hiện đại.
- Thiết kế mái ấn tượng: Cấu trúc mái chữ A bất cân xứng tạo điểm nhấn độc đáo, giúp ngôi nhà trở nên cao ráo và thanh thoát hơn.
- Phong cách tân cổ điển nhẹ: Các chi tiết cột trụ, phào chỉ được xử lý tinh xảo, tỉ mỉ, thể hiện nét đẹp sang trọng mà vẫn gần gũi.
- Ánh sáng hài hòa: Hệ thống chiếu sáng được bố trí hợp lý, kết hợp cùng ánh sáng tự nhiên giúp không gian ấm cúng và thân thiện.
- Công năng hợp lý: Các phòng được sắp xếp khoa học, đảm bảo sự tiện nghi và riêng tư cho từng thành viên trong gia đình.
- Thẩm mỹ vượt thời gian: Dù theo xu hướng nào, kiến trúc mái chữ A vẫn giữ được vẻ đẹp bền vững, phù hợp với cả khu vực thành thị lẫn nông thôn.
Mẫu thiết kế nhà 1 tầng 3 phòng ngủ mái chữ A là sự kết hợp hoàn hảo giữa tính thẩm mỹ cổ điển và công năng hiện đại, mang đến không gian sống sang trọng, bền đẹp theo thời gian.

4.5. Thiết kế nhà nông thôn mái thái 3 phòng ngủ
Mẫu nhà 1 tầng mái Thái ở nông thôn được nhiều gia đình yêu thích nhờ không gian thoáng đãng, tiện nghi và mang đậm nét truyền thống Việt.
- Phong cách kiến trúc quen thuộc: Mái Thái dốc cao giúp thoát nước tốt, tản nhiệt hiệu quả và tạo dáng vẻ sang trọng cho tổng thể ngôi nhà.
- Không gian sân vườn rộng: Diện tích đất lớn cho phép bố trí sân trước – sân sau, trồng cây xanh, làm tiểu cảnh hoặc gara đỗ xe tiện lợi.
- Vật liệu truyền thống: Cửa ra vào và cửa sổ bằng gỗ tự nhiên mang lại cảm giác ấm cúng, gần gũi và bền bỉ theo thời gian.
- Tông màu tinh tế: Sự kết hợp giữa gam xám chủ đạo và sắc nâu gỗ tạo nên vẻ đẹp hài hòa, hiện đại mà vẫn giữ nét truyền thống.
- Công năng linh hoạt: Các phòng được bố trí hợp lý, tận dụng tối đa ánh sáng tự nhiên, tạo cảm giác thông thoáng và dễ chịu khi sinh hoạt.
Mẫu thiết kế nhà nông thôn mái Thái 3 phòng ngủ là lựa chọn lý tưởng cho những gia đình muốn sở hữu ngôi nhà bền đẹp, thoáng mát và mang hơi thở truyền thống Việt, vừa tiện nghi vừa gần gũi với thiên nhiên.

4.6. Thiết kế nhà 1 tầng mái thái chữ L
Nhà 1 tầng mái Thái chữ L là kiểu kiến trúc được ưa chuộng nhờ khả năng tận dụng tối đa không gian, tạo cảm giác thông thoáng và thuận tiện khi sử dụng.
- Thiết kế tối ưu diện tích: Dáng nhà chữ L giúp phân chia không gian khoa học, thuận tiện cho việc bố trí sân, vườn hoặc gara đỗ xe.
- Sân trước đa năng: Khoảng sân rộng có thể dùng làm gara, khu thư giãn ngoài trời hoặc không gian sinh hoạt chung cho cả gia đình.
- Phối màu hài hòa: Tường trắng kết hợp mái xanh dương mang lại cảm giác nhẹ nhàng, dễ chịu và sang trọng.
- Điểm nhấn thẩm mỹ: Các dải màu nâu nổi bật cùng chất liệu đá hoa cương ốp sân trước tạo sự tinh tế và tăng tính sang trọng cho ngôi nhà.
- Phù hợp khí hậu Việt Nam: Mái Thái dốc cao giúp thoát nước nhanh, chống nóng tốt và giữ cho ngôi nhà luôn mát mẻ, bền đẹp.
Mẫu thiết kế nhà 1 tầng mái Thái chữ L là lựa chọn hoàn hảo cho những gia chủ muốn có ngôi nhà đẹp, tiện nghi, đón gió tự nhiên và mang đậm phong cách hiện đại pha truyền thống.

4.7. Thiết kế nhà 1 tầng 3 phòng ngủ phong cách tối giản
Phong cách tối giản (Minimalism) là xu hướng được nhiều gia đình hiện đại lựa chọn, mang đến không gian sống tinh gọn, tiện nghi và đầy tính thẩm mỹ.
- Đường nét kiến trúc rõ ràng: Thiết kế mái đôi vuông vức, mạnh mẽ thể hiện sự cân đối, đơn giản nhưng sang trọng.
- Không gian mở thoáng đãng: Hệ thống cửa kính lớn bố trí hợp lý giúp tận dụng ánh sáng tự nhiên, mang lại cảm giác rộng rãi và tươi sáng.
- Màu sắc trung tính: Tông màu trắng, ghi, xám được ưu tiên sử dụng để tạo cảm giác nhẹ nhàng, tinh tế và hiện đại.
- Sân vườn xanh mát: Khoảng sân trước được tận dụng trồng cây xanh, giúp điều hòa không khí và tăng tính thư giãn cho không gian sống.
- Công năng linh hoạt: Bố trí nội thất tối giản nhưng đầy đủ tiện nghi, phù hợp với lối sống hiện đại và tiết kiệm diện tích.
Mẫu thiết kế nhà 1 tầng 3 phòng ngủ phong cách tối giản là lựa chọn lý tưởng cho những gia chủ yêu thích sự tinh tế, gọn gàng và tiện nghi, tạo nên không gian sống thoáng mát và đậm chất hiện đại.

4.8. Thiết kế nhà 1 tầng 3 phòng ngủ phong cách hiện đại
Nhà 1 tầng phong cách hiện đại mang vẻ đẹp trẻ trung, tiện nghi và phù hợp với nhịp sống ngày nay, nơi thẩm mỹ và công năng được cân bằng hoàn hảo.
- Kiến trúc mái lệch ấn tượng: Cấu trúc mái lệch tạo nên vẻ ngoài năng động, giúp ngôi nhà nổi bật và thu hút ngay từ mặt tiền.
- Không gian mở thoáng đãng: Thiết kế sân trước – sân sau hợp lý, cho phép trồng cây xanh, đặt bàn ghế thư giãn và đón gió tự nhiên.
- Công năng đầy đủ: Dù chỉ 1 tầng nhưng vẫn đáp ứng trọn vẹn nhu cầu sinh hoạt của gia đình: 3 phòng ngủ, phòng khách, bếp và khu sinh hoạt chung.
- Vật liệu hiện đại: Sử dụng đa dạng chất liệu như đá hoa cương, gạch, gỗ và kính giúp tăng tính bền vững, thẩm mỹ và dễ bảo trì.
- Ánh sáng tự nhiên dồi dào: Các ô cửa kính lớn giúp lấy sáng hiệu quả, tiết kiệm năng lượng và mang lại không gian sống gần gũi thiên nhiên.
Mẫu thiết kế nhà 1 tầng 3 phòng ngủ phong cách hiện đại mang lại không gian sống thông minh, tiện nghi và đẳng cấp, là lựa chọn hoàn hảo cho những gia đình yêu thích sự trẻ trung và tinh tế.

4.9. Thiết kế nhà vườn 1 tầng phong cách châu Âu
Nhà vườn 1 tầng phong cách Châu Âu mang vẻ đẹp tinh tế, sang trọng và đậm chất nghệ thuật – là lựa chọn lý tưởng cho những ai yêu thích không gian sống thanh lịch và đẳng cấp.
- Kiến trúc cổ điển Châu Âu: Nổi bật với hệ cột trụ cân xứng, hoa văn tinh xảo và cửa vòm mềm mại – đặc trưng của phong cách quý tộc châu Âu.
- Gam màu trắng sang trọng: Màu trắng chủ đạo kết hợp với chi tiết phào chỉ, gờ tường giúp tổng thể ngôi nhà toát lên vẻ thanh lịch và tinh tế.
- Không gian vườn rộng: Sân trước lớn được tận dụng làm vườn cây xanh, tạo cảm giác thư thái và kết nối hài hòa giữa kiến trúc – thiên nhiên.
- Tỷ lệ cân đối: Bố cục mặt tiền, chiều cao và các chi tiết trang trí được tính toán kỹ lưỡng, mang lại vẻ đẹp bền vững theo thời gian.
- Phù hợp khu đất rộng: Đặc biệt thích hợp cho khuôn viên ở nông thôn hoặc ven đô – nơi có không gian mở và cảnh quan thoáng mát.
Mẫu thiết kế nhà vườn 1 tầng phong cách Châu Âu là sự kết hợp hoàn hảo giữa kiến trúc cổ điển tinh tế và không gian xanh hiện đại, mang đến cuộc sống sang trọng và gần gũi với thiên nhiên.

4.10. Thiết kế nhà 1 tầng 3 phòng ngủ có gác lửng
Nhà 1 tầng có gác lửng là giải pháp lý tưởng cho những gia đình muốn mở rộng không gian sống mà không tốn quá nhiều chi phí xây dựng.
- Tăng thêm diện tích sử dụng: Gác lửng giúp tận dụng chiều cao công trình, mở rộng thêm không gian sinh hoạt như phòng ngủ, phòng làm việc hoặc kho chứa đồ.
- Thiết kế mái Thái tiện dụng: Mái Thái cao ráo giúp ngôi nhà thông thoáng, đồng thời đảm bảo tính thẩm mỹ và khả năng chống nóng tốt.
- Không gian ấm cúng: Các chi tiết nội thất gỗ kết hợp cùng ánh sáng tự nhiên tạo cảm giác thân thiện và gần gũi.
- Phù hợp nhà có diện tích nhỏ: Giải pháp gác lửng giúp tối ưu diện tích đất, đặc biệt hiệu quả với nhà ở thành phố hoặc lô đất hẹp.
- Tối ưu chi phí: Chi phí xây dựng thấp hơn nhiều so với việc thêm tầng, nhưng vẫn đáp ứng được nhu cầu công năng của gia đình 4–6 người.
Mẫu thiết kế nhà 1 tầng 3 phòng ngủ có gác lửng mang đến giải pháp mở rộng không gian thông minh, tiết kiệm chi phí mà vẫn giữ được tính thẩm mỹ và tiện nghi.

4.11. Thiết kế nhà 1 tầng 3 phòng ngủ và 1 phòng thờ
Nhà 1 tầng có thêm phòng thờ là lựa chọn được nhiều gia đình Việt ưu tiên, vừa đảm bảo công năng sinh hoạt, vừa thể hiện sự tôn kính tổ tiên theo phong tục truyền thống.
- Không gian thờ riêng biệt: Phòng thờ được bố trí tách biệt, đảm bảo sự trang nghiêm và riêng tư cho việc thờ cúng.
- Thiết kế hài hòa với tổng thể: Phòng thờ thường nằm ở vị trí cao hoặc hướng ra mặt tiền để đón vượng khí và ánh sáng tự nhiên.
- Công năng đầy đủ: Bên cạnh phòng thờ, ngôi nhà vẫn đảm bảo đủ 3 phòng ngủ, phòng khách, bếp ăn và khu sinh hoạt chung.
- Vật liệu hiện đại – truyền thống: Cửa kính pano kết hợp nội thất gỗ giúp dung hòa giữa nét hiện đại và truyền thống Việt.
- Không gian xanh thư giãn: Sân trước rộng rãi có thể bố trí cây cảnh, tiểu cảnh nước hoặc chỗ ngồi thư giãn cho gia chủ.
Mẫu thiết kế nhà 1 tầng 3 phòng ngủ và 1 phòng thờ là giải pháp hoàn hảo cho những gia đình muốn có không gian sống tiện nghi mà vẫn gìn giữ giá trị tâm linh truyền thống.

4.12. Thiết kế nhà 1 tầng kiểu biệt thự sang trọng
Nhà 1 tầng kiểu biệt thự mang đến không gian sống đẳng cấp, sang trọng và tiện nghi – là lựa chọn lý tưởng cho những gia chủ yêu thích kiến trúc tinh tế và phong cách sống hiện đại.
- Kiến trúc sang trọng, tinh xảo: Lấy cảm hứng từ phong cách châu Âu cổ điển với các chi tiết phào chỉ, cột trụ lớn và mái vòm mềm mại.
- Không gian mở thoáng đãng: Thiết kế sân trước và sân vườn rộng, có thể làm bãi đỗ xe hoặc khu vực thư giãn ngoài trời.
- Phối màu tinh tế: Màu trắng và be được sử dụng chủ đạo, kết hợp cùng vật liệu đá tự nhiên, gỗ và kính cao cấp để tăng sự sang trọng.
- Công năng tiện nghi: Bên trong bố trí hợp lý 3 phòng ngủ, phòng khách lớn, bếp – ăn liên thông và có thể bổ sung phòng thờ hoặc phòng làm việc.
- Tạo điểm nhấn mặt tiền: Ban công uốn cong, lan can sắt nghệ thuật và hệ cửa lớn giúp công trình trở nên bề thế, cuốn hút.
Mẫu thiết kế nhà 1 tầng kiểu biệt thự sang trọng mang đến không gian sống đẳng cấp, tiện nghi và đầy tính nghệ thuật, phù hợp với gia chủ yêu thích phong cách sang trọng, tinh tế và bền vững theo thời gian.

4.13. Thiết kế nhà phố mái thái 3 phòng ngủ
Nhà phố mái Thái là lựa chọn hoàn hảo cho gia đình sống ở đô thị, mang đến không gian hiện đại, sang trọng và phù hợp với khí hậu Việt Nam.
- Thiết kế mái Thái nổi bật: Mái dốc cao giúp thoát nước nhanh, chống nóng hiệu quả và tạo điểm nhấn tinh tế cho mặt tiền.
- Vật liệu đa dạng: Sử dụng kết hợp các chất liệu như gỗ, kính, đá hoa cương và gạch ốp để tạo cảm giác sang trọng và bền đẹp.
- Không gian mở thông thoáng: Hệ thống cửa kính lớn giúp đón ánh sáng tự nhiên, tăng tính liên kết giữa trong và ngoài nhà.
- Phối màu trang nhã: Tông trắng làm chủ đạo, kết hợp sắc nâu và ghi xám giúp công trình vừa hiện đại vừa ấm cúng.
- Công năng hợp lý: Bố trí 3 phòng ngủ, phòng khách và bếp – ăn khoa học, đảm bảo sinh hoạt tiện nghi cho gia đình từ 4–6 người.
Mẫu thiết kế nhà phố mái Thái 3 phòng ngủ là sự kết hợp giữa phong cách hiện đại và công năng tối ưu, mang lại không gian sống tiện nghi, thoáng mát và đậm chất thẩm mỹ đô thị.

4.14. Thiết kế nhà vườn 1 tầng kích thước 12x8m
Mẫu nhà vườn 1 tầng kích thước 12x8m phù hợp với gia đình sở hữu quỹ đất vừa phải nhưng vẫn muốn có không gian sống xanh, thoáng và đầy đủ tiện nghi.
- Tỷ lệ kiến trúc hợp lý: Kích thước 12x8m giúp bố trí hài hòa giữa khu vực sinh hoạt và không gian sân vườn.
- Không gian xanh thư giãn: Sân trước và sân sau đều rộng, thuận lợi trồng cây, bố trí bàn ghế hoặc khu tiểu cảnh nhỏ.
- Ánh sáng ấm áp: Hệ thống đèn vàng được lắp đặt hợp lý, kết hợp cùng ánh sáng tự nhiên tạo cảm giác gần gũi, ấm cúng.
- Thiết kế tinh giản – tiện nghi: Bố trí 3 phòng ngủ, phòng khách, bếp ăn gọn gàng, tối ưu di chuyển và sử dụng.
- Phù hợp với nhiều khu vực: Thích hợp xây dựng ở cả nông thôn và vùng ven đô, mang lại không gian sống hòa hợp thiên nhiên.
Mẫu thiết kế nhà vườn 1 tầng kích thước 12x8m là giải pháp lý tưởng cho những ai muốn sở hữu ngôi nhà nhỏ gọn, tiện nghi và chan hòa cùng thiên nhiên – vừa tiết kiệm chi phí, vừa đảm bảo thẩm mỹ.

4.15. Thiết kế nhà 1 tầng 3 phòng ngủ có sân đỗ ô tô
Nhà 1 tầng có sân đỗ ô tô là lựa chọn thông minh cho các gia đình hiện đại, vừa đảm bảo công năng tiện ích, vừa tối ưu diện tích sử dụng hiệu quả.
- Thiết kế tiện dụng: Sân trước được bố trí rộng rãi, đủ diện tích để đỗ ô tô hoặc xe máy mà vẫn giữ được lối đi thông thoáng.
- Kiến trúc hài hòa: Mặt tiền thiết kế dạng chữ U giúp tạo không gian mở, dễ dàng bố trí cửa ra vào và khu vực sinh hoạt chung.
- Chống nóng và lấy sáng tốt: Các vách ngăn bằng gỗ hoặc lam chắn nắng giữa mái và tầng giúp giảm nhiệt, đồng thời tận dụng ánh sáng tự nhiên.
- Công năng tối ưu: Bên trong gồm 3 phòng ngủ, phòng khách, bếp ăn và khu vệ sinh – đáp ứng trọn vẹn nhu cầu của gia đình 4–6 người.
- Tính thẩm mỹ cao: Vật liệu hiện đại như đá hoa cương, gỗ, kính được kết hợp tinh tế, mang lại vẻ đẹp sang trọng và bền vững.
Mẫu thiết kế nhà 1 tầng 3 phòng ngủ có sân đỗ ô tô là lựa chọn lý tưởng cho gia đình yêu thích sự tiện nghi, hiện đại và thẩm mỹ, vừa đáp ứng nhu cầu sinh hoạt, vừa thể hiện phong cách sống tinh tế.

Xem thêm: Mẫu thiết kế nhà ống 1 tầng 5x20m đẹp, đáng sở hữu
5. Bản vẽ công năng cho thiết kế nhà 1 tầng 3 phòng ngủ
Bản vẽ công năng sẽ giúp bạn hình dung rõ hơn về nội ngoại thất của căn nhà. Thiết Kế Nhà 365 đã tổng hợp một số bản vẽ công năng cho nhà 1 tầng 3 phòng ngủ để bạn tham khảo dễ dàng:
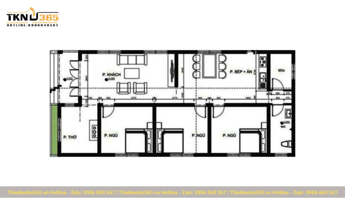
5.1. Bản vẽ nhà 1 tầng 3 phòng ngủ kiểu nhà ống
Nhà ống 1 tầng 3 phòng ngủ là lựa chọn phổ biến với những lô đất hẹp ngang, giúp tối ưu công năng và diện tích sử dụng một cách hiệu quả.
- Lối vào tiện lợi: Từ cửa chính bước vào là khu vực phòng khách, được nối liền với phòng bếp và phòng ăn, tạo cảm giác không gian mở và rộng rãi.
- Phòng thờ đặt hợp lý: Nằm bên phải khu sinh hoạt chung, đảm bảo sự yên tĩnh và trang nghiêm cần thiết.
- Bố trí 3 phòng ngủ liên tiếp: Các phòng ngủ được sắp xếp dọc theo chiều dài ngôi nhà, giúp tối ưu diện tích và tạo sự riêng tư cho từng thành viên.
- Không gian phụ trợ: Phòng kho được đặt ở cuối nhà, tiện lợi cho việc cất giữ vật dụng, đồ dùng sinh hoạt hoặc thiết bị gia đình.
- Luồng di chuyển mạch lạc: Thiết kế đảm bảo hành lang lưu thông hợp lý, không chồng chéo giữa khu sinh hoạt chung và khu riêng tư.
Bản vẽ nhà 1 tầng 3 phòng ngủ kiểu nhà ống là giải pháp tối ưu cho diện tích đất hẹp, vừa tiết kiệm không gian, vừa đảm bảo đầy đủ công năng cho cuộc sống tiện nghi.

5.2. Bản vẽ nhà 1 tầng 3 phòng ngủ phong cách hiện đại
Mẫu bản vẽ phong cách hiện đại chú trọng sự thông thoáng và tính tiện nghi, mang đến không gian sống năng động, phù hợp với lối sống gia đình trẻ.
- Không gian sinh hoạt mở: Từ sảnh chính bước vào là khu vực phòng khách – bếp – phòng ăn được thiết kế liên thông, giúp tối ưu diện tích và tạo cảm giác rộng rãi.
- Sân trước đa năng: Nếu diện tích cho phép, khu vực này có thể được bố trí gara đậu xe hoặc sân chơi cho trẻ nhỏ, vừa tiện lợi vừa an toàn.
- Phòng ngủ cho người lớn tuổi: Được đặt ở bên phải khu sinh hoạt chung, đảm bảo sự riêng tư và thuận tiện di chuyển.
- Phòng ngủ bố mẹ và con: Nằm ở vị trí cuối nhà, mang lại sự yên tĩnh và tách biệt khỏi khu vực sinh hoạt chung.
- Tối ưu ánh sáng tự nhiên: Thiết kế cửa sổ kính lớn giúp căn nhà luôn sáng sủa, thông gió tốt và tiết kiệm năng lượng.
Bản vẽ nhà 1 tầng 3 phòng ngủ phong cách hiện đại là lựa chọn hoàn hảo cho gia đình trẻ muốn có không gian sống tiện nghi, thoáng mát và tràn đầy năng lượng hiện đại.

5.3. Bản vẽ nhà 1 tầng 3 phòng ngủ có gara để ô tô
Bản vẽ nhà 1 tầng có gara ô tô là lựa chọn hoàn hảo cho gia đình hiện đại, giúp tận dụng tối đa diện tích đất và đảm bảo sự tiện nghi trong sinh hoạt hằng ngày.
- Bố trí mặt bằng khoa học: Từ cửa chính đi vào là khu vực gara đỗ xe nằm bên phải, liền kề với phòng khách để thuận tiện di chuyển.
- Không gian sinh hoạt chung hợp lý: Phòng bếp và khu vực giặt – phơi được bố trí thẳng hàng với phòng khách, giúp lưu thông không khí và ánh sáng tự nhiên tốt hơn.
- Hệ thống phòng ngủ cân đối: Ba phòng ngủ được sắp xếp liên tiếp theo chiều dọc, đảm bảo sự riêng tư và thuận tiện cho từng thành viên.
- Phòng vệ sinh tiện dụng: Được bố trí giữa phòng ngủ 1 và phòng ngủ 2, giúp tiết kiệm diện tích và tăng tính tiện nghi khi sử dụng.
- Lối đi thông thoáng: Các không gian được kết nối nhịp nhàng, đảm bảo di chuyển thuận lợi và tạo cảm giác mở, rộng rãi.
Bản vẽ nhà 1 tầng 3 phòng ngủ có gara để ô tô mang đến sự tiện lợi, khoa học và thẩm mỹ cao, là lựa chọn lý tưởng cho gia đình yêu thích phong cách sống hiện đại, tiện nghi và linh hoạt.

5.4. Bản vẽ nhà 1 tầng 3 phòng ngủ hình chữ U
Bản vẽ nhà 1 tầng hình chữ U mang đến không gian sống thông thoáng, cân đối và gần gũi với thiên nhiên. Kiểu bố trí này giúp tối ưu diện tích sử dụng, đồng thời tạo sự kết nối hài hòa giữa các khu vực trong nhà.
- Khu vực trung tâm là phòng khách và phòng bếp – ăn, được thiết kế thông nhau để tạo không gian mở, thuận tiện trong sinh hoạt.
- Hai cánh chữ U được bố trí 3 phòng ngủ, vừa đảm bảo tính riêng tư vừa giúp các thành viên có tầm nhìn ra sân vườn.
- Sân trong được tận dụng làm khu tiểu cảnh, không gian thư giãn hoặc khu vui chơi cho trẻ nhỏ.
- Ánh sáng và thông gió tự nhiên được khai thác triệt để nhờ thiết kế mở và hệ thống cửa sổ lớn.
- Các lối đi được bố trí hợp lý, tạo sự lưu thông linh hoạt giữa các phòng và khu vực ngoài trời.
Bản vẽ nhà 1 tầng 3 phòng ngủ hình chữ U mang lại sự thoáng mát, hài hòa và gần gũi thiên nhiên, là lựa chọn lý tưởng cho những gia đình yêu thích không gian sống mở và nhiều ánh sáng.

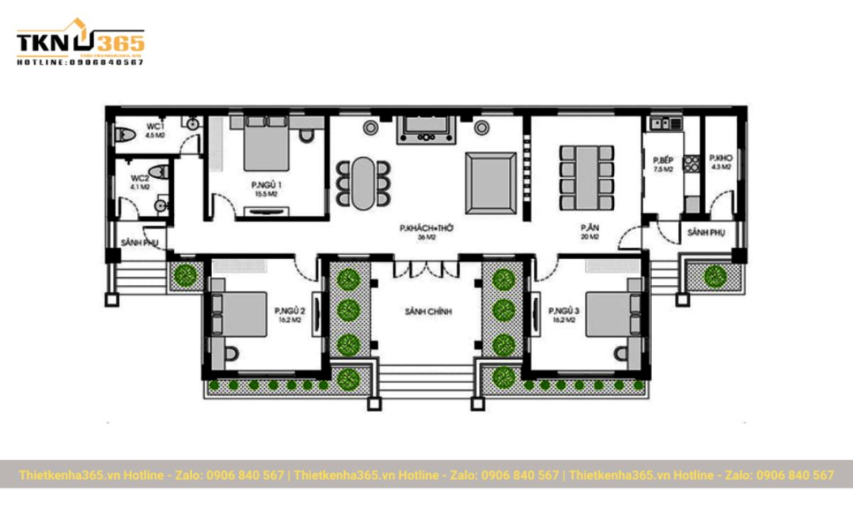
5.5. Bản vẽ nhà 1 tầng 3 phòng ngủ sang trọng
Từ sảnh chính đi vào là khu vực phòng khách và phòng thờ. Phòng ăn và phòng bếp tách riêng lắp đặt về phía bên phải, bên trái là phòng ngủ 1. Phòng ngủ 2 và 3 được đặt 2 bên sảnh chính, có trồng cây xanh thoáng mát. Phòng kho nằm ở vị trí sâu nhất về bên phải, bên cạnh sảnh phụ.

Trên đây là 25+ mẫu thiết kế nhà 1 tầng 3 phòng ngủ đẹp, hiện đại và tiện nghi nhất mà Thiết Kế Nhà 365 muốn chia sẻ đến bạn. Mỗi mẫu mang phong cách riêng, phù hợp với nhiều diện tích và nhu cầu sử dụng khác nhau.
Nếu bạn cần tư vấn thiết kế nhà ở, biệt thự hoặc nội thất, hãy liên hệ Thiết Kế Nhà 365 để được đội ngũ kiến trúc sư chuyên nghiệp hỗ trợ và lên phương án tối ưu nhất cho công trình của bạn.
Cchúc bạn sớm sở hữu ngôi nhà mơ ước – đẹp, tiện nghi và hợp phong thủy!










