Ai cũng mong muốn có một ngôi nhà đẹp để cùng gia đình mình sinh sống và an cư lạc nghiệp nhưng vấn đề kinh phí xây nhà lại khiến nhiều người đắn đo. Nhằm giúp bạn giải đáp được những băn khoăn về việc thiết kế nhà 2 tầng giá 400 triệu có khả thi không thì dưới đây là những mẫu nhà 2 tầng nông thôn 400 triệu đẹp, ấn tượng để bạn đọc tham khảo.
- Xây nhà 2 tầng 400 triệu có được không?
-
Tham khảo mẫu thiết kế nhà 2 tầng giá 400 triệu đẹp mê mẩn nhất 2023
- Mẫu nhà 2 tầng 400 triệu đẹp hiện đại
- Mẫu nhà 400 triệu 2 tầng sang trọng và cá tính
- Mẫu nhà 2 tầng nông thôn 400 triệu nhỏ xinh
- Mẫu nhà 2 tầng đẹp giá 400 triệu mái lệch độc đáo
- Mẫu nhà 2 tầng 400 triệu ở nông thôn hiện đại
- Mẫu nhà 2 tầng khoảng 400 triệu đẳng cấp
- Thiết kế nhà 2 tầng đẹp giá 400 triệu có sân vườn rộng
- Thiết kế nhà 2 tầng giá 400 triệu nông thôn mái lệch đầy thẩm mỹ
- Thiết kế nhà 2 tầng 400 triệu diện tích nhỏ
- Thiết kế nhà 2 tầng không gian mở giá 400 triệu
- Tính toán chi phí và thời gian xây nhà 2 tầng 400 triệu
- Công Ty Thiết Kế Nhà 365 – Đơn vị thiết kế và xây nhà 2 tầng giá 400 triệu uy tín, chuyên nghiệp
Xây nhà 2 tầng 400 triệu có được không?
Trong nhiều năm qua, Công ty Thiết kế Nhà 365 cũng đã triển khai nhiều dự án, vì vậy chúng tôi xác nhận rằng bạn hoàn toàn có thể xây dựng một căn nhà 2 tầng với đầy đủ tiện nghi với giá chỉ khoảng 400 triệu. Với mức đầu tư như vậy, phù hợp với các khu đất có diện tích đất xây dựng không quá rộng, hoặc phù hợp với các thiết kế nhà 2 tầng giá 400 triệu dành cho gia đình không quá nhiều thành viên.
Để làm được điều đó, dưới đây là vài gợi ý mà chúng tôi đã đúc kết được sau nhiều công trình, mời các gia chủ tham khảo:
Về diện tích xây dựng nhà 2 tầng 400 triệu
Diện tích đất xây dựng là yếu tố quan trọng nhất ảnh hưởng trực tiếp đến chi phí thiết kế thi công của công trình. Với mức đầu tư khoảng 400 triệu, khi muốn xây một ngôi nhà 2 tầng (1 trệt 1 lầu), bạn nên chọn khu đất có diện tích đất xây dựng khoảng 40m2 là đẹp nhất. Với diện tích đất xây dựng như vậy, bạn sẽ tiết kiệm được chi phí cả về nguyên vật liệu, chi phí thiết kế, thi công lẫn nội ngoại thất hay chi phí nhân công.

Về nguyên vật liệu xây dựng nhà 2 tầng 400 triệu
Thường thì cái gì tốt sẽ không đi đôi với rẻ. Tuy nhiên, nếu chịu khó tìm hiểu hoặc có những am hiểu trong lĩnh vực xây dựng, bạn hoàn toàn có thể lựa chọn những loại nguyên vật liệu phù hợp nhất cho ngôi nhà của mình.
Lời khuyên của Công ty Thiết Kế Nhà 365 cho những ai muốn xây nhà 2 tầng 400 triệu là lựa chọn những loại nguyên vật liệu không quá xa xỉ, nhưng vẫn đảm bảo chất lượng, tránh những lãng phí không cần thiết. Việc đầu tư nguyên vật liệu phù hợp sẽ đảm bảo tính bền vững lâu dài của căn nhà, đồng thời vẫn giữ được tính thẩm mỹ.

Về chi phí thiết kế thi công
Khi xây dựng một căn nhà, chi phí thiết kế và thi công là một trong những khoản chi phí quan trọng. Tuy nhiên, để tiết kiệm chi phí thì bạn có thể lựa chọn một kiến trúc sư hoặc nhà thầu có kinh nghiệm, đồng thời bạn cũng cần thận trọng khi lựa chọn giá trị dịch vụ của họ. Bạn có thể tham khảo ý kiến của những người có kinh nghiệm trong lĩnh vực xây dựng để đưa ra quyết định chính xác nhất.
Về nội thất cho mẫu nhà 400 triệu 2 tầng
Nội thất là yếu tố quan trọng của ngôi nhà, nhưng bạn cần phải cân nhắc khi đầu tư cho nó. Trước tiên, bạn nên chọn những món đồ cần thiết, đơn giản và phù hợp với nhu cầu sinh hoạt của gia đình. Hiện nay, trên thị trường có rất nhiều loại nội thất với thiết kế đẹp và chất lượng tốt, đồng thời giá cả cũng phải chăng. Vì vậy, bạn nên lựa chọn những loại nội thất phù hợp và tránh đầu tư quá nhiều vào các món đồ không cần thiết, tránh lãng phí tài chính.

Về phần thiết kế và kết cấu ngôi nhà 2 tầng 400 triệu
Tùy theo số lượng thành viên trong gia đình mà bạn có thể cân nhắc 2 phương án sau đây của Thiết Kế Nhà 365:
Gợi ý mẫu nhà 2 tầng đẹp giá 400 triệu với 2 phòng ngủ
Đối với gia đình có từ 2 đến 4 thành viên, một mẫu nhà hiện đại 2 tầng như sau sẽ phù hợp:
Tầng 1 được thiết kế với không gian để xe, tiếp đến là khu vực phòng khách liền kề với phòng bếp, tạo ra một không gian rộng rãi, thoải mái. Cầu thang được đặt ngay bên cạnh khu vực bếp, tiện lợi cho việc di chuyển lên xuống. Có 1 nhà wc ở đây để gia đình dễ dàng sử dụng.
Tầng 2 được chia thành 4 khu vực bao gồm 2 phòng ngủ, 1 nhà vệ sinh chung bên ngoài.

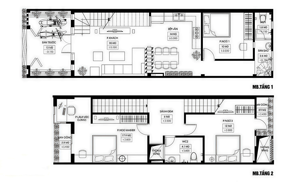
Gợi ý mẫu nhà 2 tầng đẹp giá 400 triệu với 3 phòng ngủ
Đây là mẫu nhà 2 tầng thiết kế phù hợp dành cho các gia đình có hơn 4 thành viên, có thêm ông bà lớn tuổi hoặc con nhỏ.
Tầng 1 bao gồm sân trước để xe, phòng khách liền bếp và khu vực ăn uống. Sau đó là 1 phòng ngủ nhỏ và 1 nhà wc. Có khoảng sân sau rộng rãi để gia đình giặt giũ, phơi quần áo.
Tầng 2 sẽ có 1 sảnh chung để mọi người sinh hoạt, 2 phòng ngủ, 1 wc chung, cả 2 phòng đều có thêm 1 khoảng ban công nhỏ. Riêng phòng ngủ master thì sẽ có thêm phòng làm việc nho nhỏ cho gia chủ.

Các mẫu thiết kế nhà 2 tầng 400 triệu trên đây thật sự rất tiện nghi và đẹp mắt. Tuy nhiên, khi chọn một mẫu thiết kế, chủ nhà cần phải cân nhắc đến các yếu tố khác như diện tích đất, ngân sách, vị trí, hướng nhà và phong cách kiến trúc mà mình yêu thích.
Để có được một ngôi nhà ưng ý nhất, bạn có thể tham khảo các mẫu thiết kế của Công ty Thiết Kế Nhà 365. Với đội ngũ kiến trúc sư và nhân viên giàu kinh nghiệm, chúng tôi cam kết sẽ giúp bạn tạo ra một ngôi nhà đẹp, tiện nghi và phù hợp với ngân sách của gia đình. Hãy liên hệ với chúng tôi để được tư vấn và giải đáp các thắc mắc của bạn.
Tham khảo: 60+ Mẫu nhà ống 2 tầng mái thái mặt tiền 5m đẹp ấn tượng
Tham khảo mẫu thiết kế nhà 2 tầng giá 400 triệu đẹp mê mẩn nhất 2023
Mẫu nhà 2 tầng 400 triệu đẹp hiện đại



Mẫu nhà 400 triệu 2 tầng sang trọng và cá tính

Mẫu nhà 2 tầng nông thôn 400 triệu nhỏ xinh



Mẫu nhà 2 tầng đẹp giá 400 triệu mái lệch độc đáo

Mẫu nhà 2 tầng 400 triệu ở nông thôn hiện đại

Mẫu nhà 2 tầng khoảng 400 triệu đẳng cấp



Thiết kế nhà 2 tầng đẹp giá 400 triệu có sân vườn rộng


Thiết kế nhà 2 tầng giá 400 triệu nông thôn mái lệch đầy thẩm mỹ

Thiết kế nhà 2 tầng 400 triệu diện tích nhỏ



Thiết kế nhà 2 tầng không gian mở giá 400 triệu


Tham khảo: 50+ Mẫu nhà 2 tầng chữ L 100m2 hiện đại tiện nghi nhất
Tính toán chi phí và thời gian xây nhà 2 tầng 400 triệu
Với ngân sách 400 triệu đồng, gia chủ cần có sự tính toán cẩn thận, tỉ mỉ từ khâu thiết kế cho tới khi bắt đầu thi công. Sau đây Công ty Thiết Kế Nhà 365 sẽ hướng dẫn bạn cách tính toán chi phí xây dựng nhà 2 tầng đẹp trong tầm giá 400 triệu đồng.
Ví dụ: bạn muốn xây nhà 2 tầng diện tích 4x10m gồm có 1 tầng trệt, 1 lầu và lợp mái tôn, sử dụng loại vật tư trung bình thì chi phí được tính như sau:
Tính diện tích xây dựng
- Phần móng bằng: 4 x 10 x 40% = 16m2
- Tầng trệt: 4 x 10 x 100% = 40m2
- Lầu 1: 4 x 10 x 100% = 40m2
- Phần mái tôn: 4×10 x 30% = 12m2
=> Như vậy, tổng diện tích xây dựng sàn cần thi công bằng: 108m2
Đơn giá xây thô của chúng tôi là: 3.500.000đ
=> Tổng đơn giá xây nhà thô: 108 x 3.500.000đ = 378.000.00đ
Bạn có thể tham khảo và tính toán chi tiết hơn tại trang tính online trên trang web của chúng tôi.
Về phần thời gian xây dựng nhà 2 tầng 400 triệu, sẽ tùy thuộc vào từng công trình cụ thể và có thể dao động ít hoặc nhiều. Tuy nhiên, thời gian dự kiến hoàn thành của Công ty thiết kế Nhà 365 là như sau:
- Thời gian ép cọc gia cố nền: 7 ngày.
- Thời gian hoàn thành bê tông móng và sàn nền trệt: khoảng 15 ngày.
- Thời gian thi công đổ bê tông sàn: dự kiến 14 ngày.
- Thời gian thi công đổ sàn sân thượng: dự kiến 7 ngày.
- Thời gian thi công mái che thang: khoảng 7 ngày.
Tổng thời gian dự kiến để xây dựng một ngôi nhà 2 tầng với mức giá 400 triệu là khoảng 50 ngày. Tuy nhiên, để đảm bảo chất lượng và tiến độ công trình, bạn nên liên hệ với chúng tôi để có thời gian và chi phí cụ thể hơn.
Tham khảo: 55+ Mẫu thiết kế nhà 2 tầng 100m2 đẹp, thông thoáng
Công Ty Thiết Kế Nhà 365 – Đơn vị thiết kế và xây nhà 2 tầng giá 400 triệu uy tín, chuyên nghiệp
Hiện nay, có rất nhiều đơn vị thiết kế và thi công nhà ở tại TPHCM khiến bạn hoang mang không biết đâu là địa chỉ uy tín. Nếu bạn đang phân vân chưa chọn được địa chỉ đáng tin cậy thì công ty Thiết Kế Nhà 365 sẽ là cái tên đáng để bạn lưu tâm. Công ty Thiết Kế Nhà 365 có những ưu điểm đáng để cân nhắc lựa chọn như:
- Đơn vị đã có hơn 10 năm kinh nghiệm hoạt động trong lĩnh vực xây dựng.
- Có đầy đủ các trang thiết bị hiện đại, tiên tiến nhất để thi công công trình.
- Có đội ngũ thi công giàu kiến thức, kinh nghiệm chuyên môn, đã thực hiện hơn 100+ dự án lớn nhỏ.
- Tư vấn miễn phí mẫu thiết kế nhà ở phù hợp nhất với mức kinh phí của khách hàng.
- Cam kết thi công đúng 100% các hạng mục trong hợp đồng, không phát sinh thêm phí ngoài mong muốn.
- Công trình hoàn thiện xong sẽ giống bản vẽ thiết kế đến 99%.
- Đảm bảo được yếu tố phong thủy, tính thẩm mỹ cũng như công năng của công trình.
Mong rằng qua bài viết trên bạn đã chọn được mẫu thiết kế nhà 2 tầng giá 400 triệu phù hợp nhất với nhu cầu hiện tại của mình. Hãy liên hệ ngay Thiết Kế Nhà 365 ngay khi có nhu cầu xây dựng nhà 2 tầng 400 triệu để được nhân viên của chúng tôi tư vấn và báo giá thiết kế nhà phố cụ thể, rõ ràng.
Liên hệ ngay với Công Ty Thiết Kế Nhà 365 qua Hotline 0906840567 để nhận báo giá thiết kế thi công nhà phố trọn gói và được tư vấn miễn phí từ Kiến Trúc Sư!









