Thiết kế nhà 2 tầng 50m2 đang là giải pháp được nhiều gia đình lựa chọn khi sở hữu quỹ đất nhỏ nhưng vẫn muốn không gian sống tiện nghi, thoáng và đẹp. Với diện tích 50m2, việc bố trí công năng, lấy sáng – thông gió và lựa chọn phong cách thiết kế đóng vai trò quyết định đến chất lượng sử dụng lâu dài. Trong bài viết này, chúng tôi tổng hợp các mẫu nhà 2 tầng 50m2 đẹp, bản vẽ thực tế, giải pháp tối ưu diện tích và chi phí, giúp bạn dễ dàng lựa chọn phương án phù hợp.
1. Mẫu thiết kế nhà 2 tầng 50m2 xu hướng 2026
1.1. Mẫu nhà 2 tầng 50m2 mái thái
Đây là mẫu nhà 2 tầng mái thái diện tích 50m2 mang phong cách tân cổ điển. Kiến trúc sư đã khéo léo tận dụng hệ thống cửa ra vào và cửa sổ bằng kính để tối đa hóa nguồn ánh sáng nhận được. Thiết kế đèn chùm kết hợp với kiểu cửa dáng vòm sang trọng.

Ở tầng 1 từ cửa chính bước vào là phòng khách có diện tích 26,8m2. Việc bố trí cầu thang ở giữa nhằm phân chia ngôi nhà thành hai trục công năng tách biệt. Thiết kế tầng 2 gồm 2 phòng ngủ khép kín, mỗi phòng đều có WC riêng biệt.

1.2. Mẫu nhà 2 tầng 50m2 mái bằng
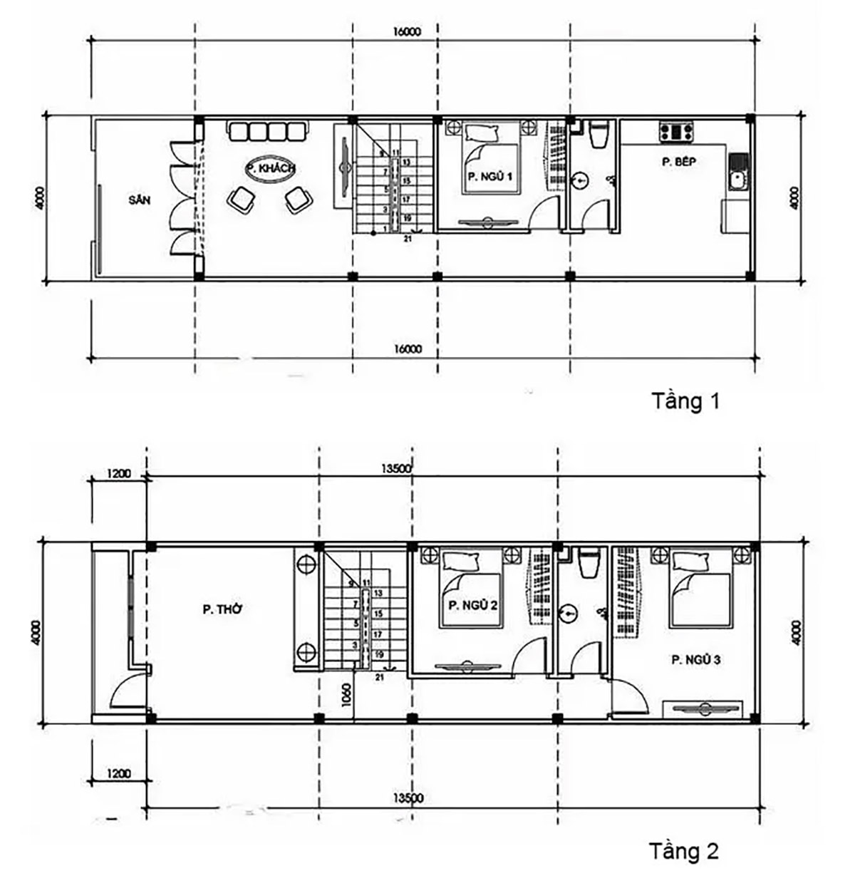
Mẫu nhà 2 tầng này mang hơi hướng hiện đại với những đường nét đơn giản nhưng tinh tế. Trước nhà có khoảng sân khá rộng đủ chỗ đỗ xe ô tô. Gia chủ lựa chọn chất liệu ban công và cửa ra vào bằng kính để tăng cường ánh sáng cho ngôi nhà.

Mặt bằng công năng của ngôi nhà được thiết kế thông minh, khoa học. Tầng 1 gồm phòng khách, bếp nấu và bàn ăn, phòng ngủ 1. Các phòng chức năng trên tầng 2 được thiết kế gồm phòng thờ, phòng ngủ con, phòng ngủ bố mẹ.

1.3. Mẫu thiết kế nhà 2 tầng 50m2 hiện đại
Mẫu nhà ống 2 tầng 50m2 này được thiết kế theo phong cách hiện đại với những đường nét khá đơn giản. Tone màu trắng tinh khôi chủ đạo làm nổi bật các điểm nhấn như cửa cổng, vách kính… Trước nhà có khoảng sân 10m2 có thể tận dụng làm nơi để xe đạp, xe máy.

Ngôi nhà có 3 phòng ngủ với 1 phòng được bố trí ở tầng 1 và 2 phòng ở tầng 2. Ngoài ra ở tầng 1 còn có các phòng chức năng khác là phòng khách và phòng bếp, mỗi phòng có diện tích khoảng 15m2 khá rộng rãi. Diện tích tầng 2 được phân bổ hợp lý cho phòng thờ (khoảng 10m2) và 2 phòng ngủ còn lại.

1.4. Mẫu thiết kế nhà 2 tầng 50m2 3 phòng ngủ
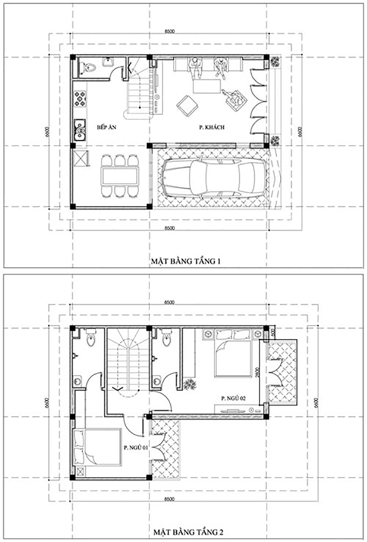
Các mẫu nhà 2 tầng 50m2 3 phòng ngủ mang phong cách hiện đại không bao giờ lỗi thời. Thiết kế bậc tam cấp dẫn vào cửa chính góp phần gia tăng sự sang trọng, bề thế. Nhà được thiết kế với mái bằng đổ bê tông giúp tiết kiệm chi phí thi công cho gia chủ.

Về mặt bằng công năng, tầng 1 của ngôi nhà được thiết kế với phòng khách, phòng bếp, phòng ngủ 1 và 1 WC nhỏ bên cạnh lối đi lên cầu thang. Tầng 2 có 2 phòng ngủ, phòng thờ và đầy đủ sân phơi, WC.

1.5. Mẫu nhà 2 tầng 50m2 chữ L độc đáo
Đây là thiết kế nhà 2 tầng 50m2 chữ L mái bằng độc đáo, hiện đại. Ngôi nhà có tone màu trắng chủ đạo kết hợp với những mảng xanh kiến trúc tạo sự thư thái, yên bình. Xung quanh nhà có đầy đủ tường rào bao quanh tạo sự riêng tư.

Tầng trệt của ngôi nhà chữ L này có khoảng sân khá rộng, có thể dùng làm sân chơi hoặc chỗ đậu xe. Thiết kế các phòng chức năng như phòng khách, bếp và phòng ăn đều có sự liên thông với nhau. Tầng 2 của mẫu nhà 50m2 2 tầng là nơi nghỉ ngơi, sinh hoạt của cả gia đình với 2 phòng ngủ và 2 nhà vệ sinh.

1.6. Mẫu nhà 2 tầng diện tích 5x10m
Mẫu thiết kế nhà 2 tầng 50m2 này có thiết kế mái lệch độc đáo. Đặc biệt ở tầng 2 của ngôi nhà kiến trúc sư đã tận dụng các khe hở để mang đến sự thoáng đãng cho không gian bên trong.

Tầng trệt của ngôi nhà được bố trí hợp lý với đầy đủ các không gian chức năng gồm phòng khách phòng bếp + khu vực ăn uống. Mặt bằng lầu 1 gồm 2 phòng ngủ với WC riêng cho từng phòng. Cửa ban công rộng mở giúp đón ánh sáng tốt.

1.7. Mẫu nhà ống 2 tầng 50m2 chi phí 500 triệu
Với chi phí thi công chỉ 500 triệu nhưng ngôi nhà ống 2 tầng này có mặt tiền được thiết kế khá kỹ lưỡng. Tầng 2 được xây đua ra so với tầng 1 để tạo khoảng không gian ban công, là nơi gia chủ bài trí cây xanh và tạo sự thoáng đãng.

Mặt bằng tầng trệt của ngôi nhà có khoảng sân phía trước khá rộng. Thiết kế phòng khách và phòng bếp có sự liên thông với nhau tránh tạo cảm giác bí bách. Ngôi nhà có 3 phòng ngủ, 1 phòng ngủ ở tầng trệt và 2 phòng ở tầng lầu.

Xem thêm: Hoàn thiện biệt thự mái Nhật 2 tầng – Chị Diệp – Đồng Nai
2. Cách tính chi phí xây dựng nhà 50m2
2.1. Các yếu tố ảnh hưởng đến chi phí xây dựng nhà
– Phong cách thiết kế: Đây là yếu tố hàng đầu quyết định tổng chi phí xây dựng. Hiện nay có 3 phong cách thiết kế nhà 2 tầng 50m2 phổ biến nhất. Đó là kiểu kiến trúc cổ điển, hiện đại và tân cổ điển.
- Lối kiến trúc hiện đại được ưa chuộng hơn cả bởi các nguyên vật liệu, đồ trang trí nội ngoại thất được bày bán rộng rãi với mức giá hợp túi tiền.
- Phong cách cổ điển có đặc trưng là nhiều hoa văn, họa tiết cầu kỳ nên chi phí và thời gian thi công hoàn thiện cũng tốn kém hơn.
- Kiến trúc tân cổ điển giúp gia chủ tiết kiệm chi phí hơn so với phong cách cổ điển. Phong cách thiết kế tân cổ điển vẫn lưu giữ được những đường nét, hoa văn uyển chuyển nhưng không quá tỉ mỉ, chi tiết mà đã được giản lược khá nhiều.

– Mái nhà: Hiện nay có 2 loại mái nhà thường gặp là mái ngói và mái tôn.
- Mái ngói đẹp mắt, sang trọng nhưng tốn nhiều thời gian và chi phí thi công.
- Mái tôn có độ bền cao, chi phí nguyên liệu và thi công khá rẻ vì vậy loại mái này được sử dụng rộng rãi nhất hiện nay.
2.2. Cách tính chi phí xây nhà 50m2
Diện tích xây dựng nhà 2 tầng 50m2: Diện tích thô = Phần móng + Diện tích tầng 1 + Diện tích tầng 2 + Phần mái
– Phần móng nhà (thường chiếm 50% tổng diện tích ngôi nhà) = 50 x 50% = 25m2
– Tầng 1 (chiếm 100% tổng diện tích) = 50m2
– Tầng 2 (chiếm 100% tổng diện tích) = 50m2
– Phần mái nhà:
- Mái bằng (chiếm 70% tổng diện tích) = 50 x 70% = 35m2
- Mái Thái (chiếm 50% tổng diện tích) = 50 x 50% = 25m2
- Mái tôn (chiếm 30% tổng diện tích) = 50 x 30% = 15m2

2.3. Chi phí hoàn thiện
Chi phí hoàn thiện nhà 2 tầng 50m2 = Diện tích thô của ngôi nhà x đơn giá thi công (tính theo m2)
Chi phí hoàn thiện của ngôi nhà còn dao động tùy theo phân khúc vật liệu xây dựng. Nếu sử dụng vật liệu tầm trung thì chi phí thi công trọn gói sẽ dao động từ 3 – 3,5 triệu đồng/m2. Nếu sử dụng vật liệu tốt thì giá thi công trọn gói là 4,5 – 6 triệu đồng/m2
Xem thêm: Thiết kế nhà phố 3 tầng 5x18m cho chị Hà ở Quận 8
3. Câu hỏi thường gặp
1. Nhà 2 tầng 50m2 có xây được không?
Có. Diện tích 50m² hoàn toàn có thể xây nhà 2 tầng nếu thiết kế hợp lý, đáp ứng tốt nhu cầu sinh hoạt cho gia đình 2–4 người.
2. Chi phí xây nhà 2 tầng 50m2 khoảng bao nhiêu?
Tổng chi phí thường dao động từ 400 triệu đến hơn 1 tỷ đồng, tùy vật liệu hoàn thiện, phong cách thiết kế và khu vực xây dựng.
3. Nhà 2 tầng 50m2 bố trí được mấy phòng ngủ?
Phổ biến nhất là 2 phòng ngủ. Trường hợp tối ưu tốt mặt bằng có thể bố trí 3 phòng ngủ nhỏ.
4. Bố trí mặt bằng nhà 2 tầng 50m2 như thế nào cho hợp lý?
Tầng 1 gồm phòng khách, bếp và WC.
Tầng 2 bố trí phòng ngủ, WC và không gian thờ hoặc sân phơi.
Cầu thang nên đặt giữa nhà để tối ưu diện tích.
5. Làm sao để nhà 2 tầng 50m2 trông rộng và thoáng hơn?
Ưu tiên thiết kế không gian mở, tận dụng ánh sáng tự nhiên, sử dụng cửa kính và hạn chế tường ngăn không cần thiết.
Xem thêm: 30+ Mẫu nhà mái bằng 2 tầng đẹp xu hướng, hiện đại 2026
4. Thiết Kế Nhà 365 – Đơn vị thiết kế nhà phố 2 tầng 50m2 đẹp, tối ưu.
Thiết kế nhà 2 tầng 50m2 sao cho hài hòa về mặt công năng, tính thẩm mỹ với mức chi phí tiết kiệm nhất là không hề đơn giản. Tuy nhiên với Công ty Thiết Kế Nhà 365 các vấn đề trên sẽ được giải quyết dễ dàng. Chúng tôi không chỉ sở hữu trang thiết bị khoan cọc, ép cọc hiện đại mà còn có đội ngũ nhân viên, thợ thi công và kiến trúc sư, chuyên gia thiết kế nội ngoại thất dày dặn kinh nghiệm.
Đến với Công ty Thiết Kế Nhà 365, quý khách có thể yêu cầu thiết kế, thi công nhà ở, biệt thự trọn gói theo bất cứ phong cách nào mà mình yêu thích như hiện đại, cổ điển, tân cổ điển, Indochine… Với quy trình xây dựng, quản lý giám sát đạt chuẩn ISO, khách hàng có thể hoàn toàn yên tâm về chất lượng công trình được thực hiện bởi Công ty Thiết Kế Nhà 365. Chúng tôi nhận thiết kế, thi công nhà ở cả các tỉnh lân cận TPHCM như miền Tây, Bình Thuận trở vào.
Sau đây là một số cam kết của công ty với khách hàng:
- Miễn 100% chi phí tư vấn
- ƯU ĐÃI 50% phí thiết kế nhà phố 2 tầng 50m2
- Cung cấp báo giá chi tiết cho từng hạng mục, không thu thêm bất cứ phụ phí nào ngoài hợp đồng
- Thi công 100% các hạng mục đã báo giá và cam kết trong hợp đồng
- Luôn đảm bảo đầy đủ số lượng nhân công để không làm chậm trễ tiến độ
- Khách hàng yêu cầu thiết kế, thi công nội thất nhà 2 tầng 50m2 sẽ được miễn phí vận chuyển nội thất
- Chỉ sử dụng các loại nguyên vật liệu xây dựng nhập trực tiếp từ nhà sản xuất nên mức giá luôn thấp hơn thị trường
- Lập bảng thống kê chi tiết và đầy đủ từng loại vật liệu xây dựng được sử dụng

Trên đây là một số mẫu thiết kế nhà 2 tầng 50m2 hiện đại tiện nghi và đáng tham khảo nhất. Thấu hiểu trăm ngàn nỗi lo của khách hàng khi xây nhà, Công ty Thiết Kế Nhà 365 cung cấp dịch vụ thiết kế – thi công trọn gói với mức giá hợp lý và phương án thi công tối ưu nhất. Quý khách quan tâm vui lòng liên hệ theo thông tin bên dưới để được tư vấn, trợ giúp nhanh nhất.
Liên hệ ngay với Công Ty Thiết Kế Nhà 365 để nhận báo giá thiết kế nhà phố trọn gói và được tư vấn miễn phí từ Kiến Trúc Sư!










