Bạn dễ dàng bắt gặp các mẫu thiết kế nhà 60m2 1 tầng hiện đại tại Việt Nam. Đây là xu hướng nhà được ưa chuộng bởi phong cách đơn giản nhưng lại vô cùng độc đáo cho từng gia chủ. Dưới đây là tổng hợp hơn 35+ mẫu thiết kế nhà 1 tầng diện tích 60m2 mới nhất hiện nay. Cùng Thiết Kế Nhà 365 tham khảo thêm qua bài viết dưới đây nhé!
- 1. Một số đặc điểm mẫu nhà diện tích 60m2 1 tầng
- 2. Tổng hợp các mẫu thiết kế nhà 60m2 1 tầng đẹp “ấn tượng” nhất hiện nay
-
3. Các mẫu nhà ống 60m2 1 tầng được ưa chuộng nhất hiện nay
- 3.1. Mẫu thiết kế nhà 60m2 1 tầng mái bằng
- 3.2. Mẫu nhà ống 1 tầng diện tích 60m2 mái lệch
- 3.3. Mẫu thiết kế nhà 60m2 1 tầng có thêm gác lửng
- 3.4. Mẫu thiết kế nhà ống 60m2 1 tầng đơn giản
- 3.5. Mẫu thiết kế nhà ống 60m2 kiểu hiện đại, sang trọng
- 3.6. Mẫu thiết kế nhà 60m2 1 tầng mặt tiền 4m
- 3.7. Mẫu thiết kế nhà ống 1 tầng 60m2 phá cách
- 3.8. Mẫu thiết kế nhà 60m2 1 tầng có không gian mở
- 3.9. Mẫu thiết kế nhà ống 1 tầng 60m2 phong cách thiên nhiên
- 3.10. Mẫu thiết kế nhà ống 1 tầng có gara ô tô
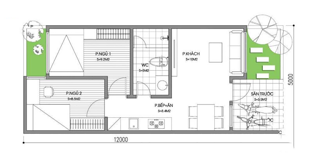
- 3.11. Mẫu nhà ống 60m2 1 tầng 2 phòng ngủ
- 3.12. Mẫu thiết kế nhà 60m2 1 tầng 3 phòng ngủ
- 4. Thiết Kế Nhà 365 – Đơn vị thi công thiết kế nhà 60m2 1 tầng uy tín, chất lượng
1. Một số đặc điểm mẫu nhà diện tích 60m2 1 tầng
Thiết kế nhà 60m2 1 tầng là một trong những mẫu nhà hiện đại có bề mặt rộng, không gian không quá nhỏ đủ để sắp xếp và bố trí nội thất phù hợp. Các khu vực riêng biệt có không gian đáp ứng nhu cầu của thành viên trong gia đình. Đó là lý do mà nhà 1 tầng 60m2 được nhiều gia đình tại Việt Nam lựa chọn.
Mẫu nhà diện tích 60m2 1 tầng có thể thiết kế với nhiều kiểu dáng kiến trúc khác nhau. Ví dụ như nhà mái ngói 1 tầng, nhà mái lệch 1 tầng, nhà mái Thái 1 tầng, nhà mái bằng 1 tầng,… Tùy vào gu thẩm mỹ của gia chủ mà ngôi nhà sẽ có những phong cách riêng, mới lạ (phong cách đơn giản, phong cách cổ điển, phong cách hiện đại,…).

Các mẫu nhà 1 tầng đẹp là một sự lựa chọn hợp lý giúp tiết kiệm các khoản chi phí khi xây nhà và trang trí nhà. Chỉ cần sắp xếp nội thất không gian khoa học và tích hợp các tiện ích với nhau thì mẫu nhà 60m2 1 tầng cũng hiện đại không thua kém các mẫu nhà cao cấp khác như biệt thự, nhà vườn, nhà 2 tầng,…
Xem thêm: Top 20+ mẫu nhà 1 tầng 4 phòng ngủ đẹp, tối ưu chi phí 2025
2. Tổng hợp các mẫu thiết kế nhà 60m2 1 tầng đẹp “ấn tượng” nhất hiện nay
2.1. Mẫu thiết kế nhà 60m2 1 tầng hình chữ L
Mẫu nhà 1 tầng 60m2 hình chữ L giúp tận dụng không gian sống, có thể tạo thêm không gian vườn, bể bơi, khu vực gara ô tô cho gia đình. Mẫu thiết kế này giúp bạn tận dụng tối đa các góc diện tích đảm bảo ngôi nhà đầy đủ tiện ích sinh hoạt.


2.2. Mẫu thiết kế nhà 60m2 gam màu vàng tinh tế
Gam màu vàng bắt mắt mang đầy tính nghệ thuật thu hút mọi ánh nhìn đầu tiên của người đi đường. Không gian nhà trở nên ấm cúng hơn nhờ kết hợp với ánh đèn vàng, mang lại cảm giác thư giãn và nhẹ nhàng.


2.3. Mẫu thiết kế nhà 60m2 1 tầng phong cách đơn giản
Không gian nhà ở theo phong cách đơn giản giúp bạn vừa tiết kiệm không gian vừa tiết kiệm trang trí nội thất cầu kỳ, nhưng vẫn đảm bảo được không gian sống lý tưởng. Các mẫu nhà phong cách đơn giản thường không quá chú trọng nhiều đến nội thất, thường là những nội thất đơn giản, dễ sử dụng, đa năng.


2.4. Mẫu thiết kế nhà 1 tầng 60m2 mái Thái
Nhà mái Thái được nhiều gia đình yêu thích bởi đặc điểm mới lạ của kiến trúc này. Dạng mái xếp chồng lên nhau có độ dốc cao, rất thích hợp sử dụng tại Việt Nam nơi có khí hậu nhiệt đới ẩm gió mùa.


2.5. Mẫu thiết kế nhà 1 tầng 60m2 mang nét biệt thự
Phong cách nhà mang nét biệt thự được nhiều gia đình lựa chọn vì sự sang trọng của nó. Các mẫu nhà này giúp thể hiện vị trí cao cấp của gia đình bạn. Cách bài trí trong nhà cùng nội thất hiện đại đảm bảo đầy đủ sự tiện nghi như đang ở trong biệt thự lớn.


2.6. Mẫu thiết kế nhà 1 tầng 60m2 kiểu hiện đại
Mẫu thiết kế nhà này được trang bị đầy đủ các tiện nghi, nội thất thông minh và hiện đại nhất. Các mẫu nhà thường được sử dụng tông màu sắc trầm, trung tính, các chi tiết trang trí tạo thêm điểm nhấn cho toàn bộ ngôi nhà. Mang lại cảm giác thời thượng và mới mẻ.


Xem thêm: 20+ Mẫu thiết kế nhà ống 1 tầng đẹp, đầy đủ tiện nghi nhất
3. Các mẫu nhà ống 60m2 1 tầng được ưa chuộng nhất hiện nay
3.1. Mẫu thiết kế nhà 60m2 1 tầng mái bằng
Mái bằng là dạng mái có khung vuông góc với bề mặt tường xuống mặt đất. Đây là mẫu kiến trúc độc đáo, mới lạ và thu hút được ánh nhìn của người đi đường. Kiểu thiết kế này giúp tạo hiệu ứng thị giác trông căn nhà rộng rãi và sâu hơn. Người bên ngoài dễ dàng ngắm nhìn toàn bộ căn nhà và nội thất bên trong.


3.2. Mẫu nhà ống 1 tầng diện tích 60m2 mái lệch
Mẫu thiết kế nhà 60m2 1 tầng dạng mái lệch không còn quá xa lạ với nhiều người nhưng vẫn mang lại sự trầm trồ bởi phong cách kiến trúc độc đáo này. Đi ngược lại với phong cách mái truyền thống, dạng mái lệch có độ dốc và đỉnh khác nhau, không tuân theo một quy luật nhất định nhưng vẫn tạo hiệu ứng mới mẻ, bắt mắt.


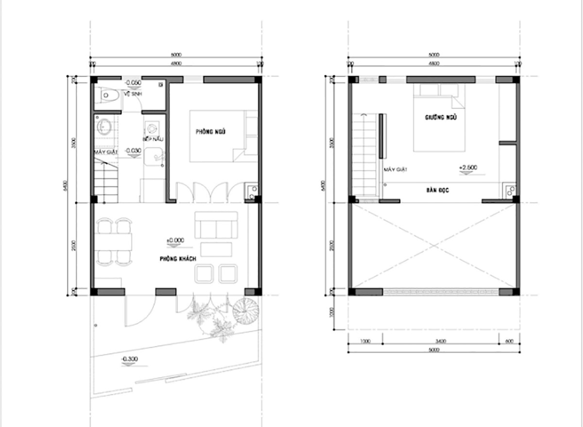
3.3. Mẫu thiết kế nhà 60m2 1 tầng có thêm gác lửng
Thiết kế gác lửng (gác xép) được cho là khá phù hợp với dạng thiết kế nhà ống. Mẫu thiết kế này giúp tối ưu diện tích và không gian ngôi nhà, bạn dễ dàng tận dụng không gian trên cao để trang trí và sắp xếp tiện ích nhằm đảm bảo nhu cầu sinh hoạt của cả gia đình.


3.4. Mẫu thiết kế nhà ống 60m2 1 tầng đơn giản
Mang hơi hướng phong cách tối giản nhưng vẫn đảm bảo được đầy đủ tiện nghi trong căn nhà. Mẫu thiết kế này dành cho các gia chủ yêu thích sự rộng rãi, không cần quá đầu tư vào nội thất nhiều màu sắc, cầu kỳ, chỉ cần các mẫu nội thất đơn và đầy đủ chức năng sử dụng.


3.5. Mẫu thiết kế nhà ống 60m2 kiểu hiện đại, sang trọng
Sự hiện đại và sang trọng của ngôi nhà giúp bạn khẳng định được vị thế của gia đình. Các phong cách nhà Châu Âu, cổ điển, tân cổ điển,… rất phù hợp để thể hiện sự quý phái, thanh lịch của gia chủ. Tông màu trầm, trắng đen, nâu vàng là những gam màu thường được sử dụng để thể hiện sự hiện đại, sang chảnh.


3.6. Mẫu thiết kế nhà 60m2 1 tầng mặt tiền 4m
Mặt tiền rất quan trọng với ngôi nhà, nó mang ý nghĩa về thẩm mỹ và phong thủy. Vì vậy, gia chủ khi lựa chọn các mẫu thiết kế nhà mặt tiền cần lưu ý về phương hướng, diện tích nhằm sắp xếp và bày trí bố cục ngôi nhà hợp lý.


3.7. Mẫu thiết kế nhà ống 1 tầng 60m2 phá cách
Bạn có thể lựa chọn kết hợp đa dạng các phong cách với nhau, thỏa sức thể hiện đam mê. Đi ngược lại với không gian nhà truyền thống, bạn có thể kết hợp nhà mái lệch cùng mái bằng với nhau, tạo sự phá cách cho ngôi nhà. Giúp tổng thể ngôi nhà trở nên cân đối mà không hề bị khô cứng.


3.8. Mẫu thiết kế nhà 60m2 1 tầng có không gian mở
Không gian mở trong ngôi nhà chú trọng đến sự thoải mái và rộng rãi. Đối với các mẫu nhà có diện tích nhỏ cần tối ưu nội thất bên trong nhằm đảm bảo sự thông thoáng. Cửa sổ và cửa ra vào cũng được mở rộng để chiếu sáng đủ cho không gian ngôi nhà. Thông thường, các mẫu nhà không gian mở thường tích hợp phòng khách, phòng bếp và phòng ăn trong một không gian sinh hoạt chung.


3.9. Mẫu thiết kế nhà ống 1 tầng 60m2 phong cách thiên nhiên
Để tránh xa sự ồn ào náo nhiệt của cuộc sống, nhiều người đang dần lựa chọn thiết kế nhà 60m2 1 tầng theo phong cách thiên nhiên. Phong cách này mang lại không gian xanh, tạo cảm giác yên bình và thư giãn sau những ngày làm việc mệt mỏi.


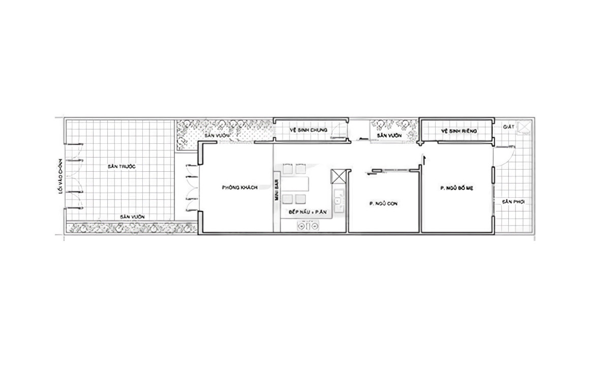
3.10. Mẫu thiết kế nhà ống 1 tầng có gara ô tô
Gara ô tô cũng là khu vực không thể thiếu trong những mẫu thiết kế nhà 60m2 1 tầng hiện nay. Khác với các mẫu nhà cao tầng, biệt thự không gian rộng thì đối với những không gian có diện tích nhỏ 1 tầng 60m2, các nhà kiến trúc cố gắng tận dụng tối đa thiết kế nhằm đảm bảo có đủ không gian để xe rộng rãi cho gia chủ.


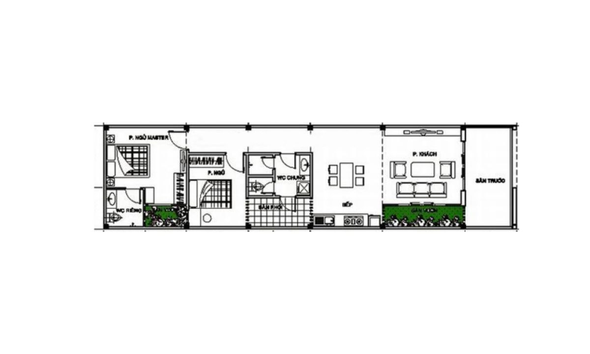
3.11. Mẫu nhà ống 60m2 1 tầng 2 phòng ngủ
Đối với gia đình có 2 con trở lên, thì mẫu nhà 2 phòng ngủ đáp ứng đủ không gian ngôi nhà. Đa dạng thiết kế không gian phòng ngủ kết hợp cùng trang trí không nội thất giúp gia đình yên tâm và thoải mái nghỉ ngơi sau ngày làm việc và học tập mệt mỏi.


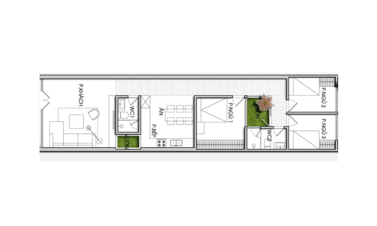
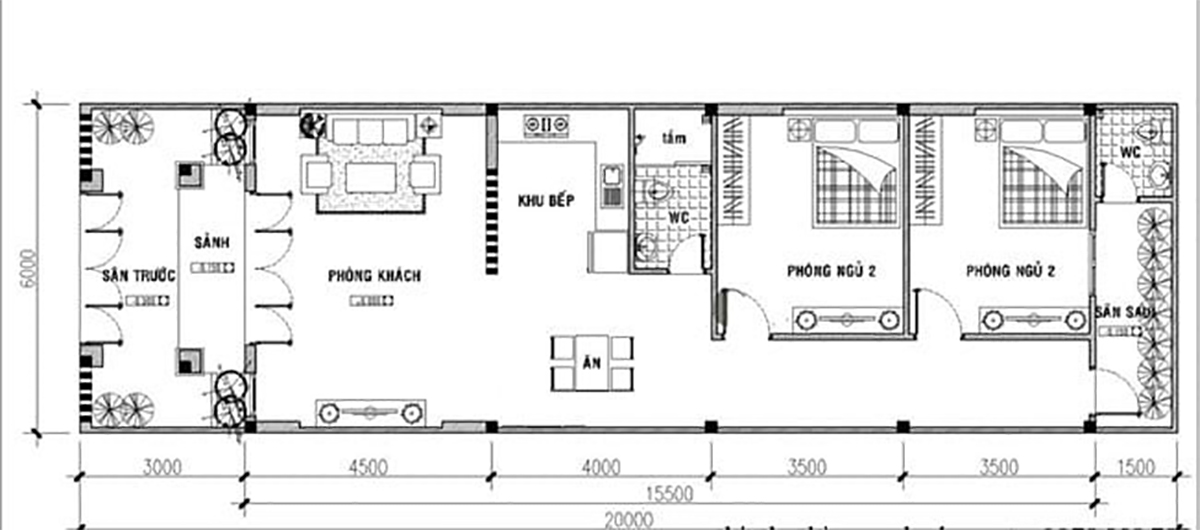
3.12. Mẫu thiết kế nhà 60m2 1 tầng 3 phòng ngủ
Cũng có nhiều gia đình lựa chọn thiết kế nhà 3 phòng ngủ để tạo thêm không gian sinh hoạt cho gia đình. Hoặc dùng phòng ngủ để đón tiếp khách ghé thăm nhà. Tuy nhiên diện tích nhà 60m2 1 tầng không quá lớn nên việc sắp xếp nội thất sao cho hợp lý cũng cần được chú trọng.


Xem thêm: 25+ Mẫu nhà 1 tầng 3 phòng ngủ 120m2 đẹp tinh tế, chi phí thấp
4. Thiết Kế Nhà 365 – Đơn vị thi công thiết kế nhà 60m2 1 tầng uy tín, chất lượng
Thiết Kế Nhà 365 là đơn vị thi công nhiều công trình kiến trúc, thiết kế nhà chuyên nghiệp tại Việt Nam. Chúng tôi có hơn 10 năm kinh nghiệm trong lĩnh vực thiết kế không gian nhà ở, đặc biệt là thiết kế nhà 60m2 1 tầng. Khách hàng khi sử dụng dịch vụ của Thiết Kế Nhà 365 sẽ nhận được nhiều lợi ích như:
- Biến ngôi nhà trong mơ của bạn trở thành sự thật. Chúng tôi lắng nghe và tư vấn nhiệt tình về không gian nhà ở phù hợp với mong muốn của khách hàng.
- Giúp tiết kiệm các khoản chi phí trong thi công, xây dựng
- Đội ngũ nhân viên giàu kinh nghiệm trong thiết kế nhà ở, tư vấn tận tình cho quý khách hàng
- Thiết kế không gian sống đảm bảo tính thẩm mỹ và tính ứng dụng cao
Hy vọng, thông qua bài viết tổng hợp 35+ mẫu thiết kế nhà 60m2 1 tầng của Thiết Kế Nhà 365, bạn đã lựa chọn cho mình những mẫu nhà ưng ý, phù hợp với mong muốn. Nếu bạn cần tư vấn về các mẫu nhà thiết kế, đừng ngần ngại liên hệ tới chúng tôi. Thiết Kế Nhà 365 luôn sẵn sàng phục vụ bạn.
Liên hệ ngay với Công Ty Thiết Kế Nhà 365 để nhận báo giá thiết kế nhà phố trọn gói và được tư vấn miễn phí từ Kiến Trúc Sư!











