Thiết kế nhà vuông 8x9m là một trong những mẫu nhà phổ biến nhất, được nhiều người ưa chuộng nhất hiện nay. Vậy ngôi nhà vuông 8x9m có điểm gì nổi bật, cách bố trí mặt bằng công năng ra sao? Tất cả sẽ được Công ty Thiết Kế Nhà 365 giải đáp trong bài viết dưới đây.
1. Ưu điểm nổi bật của mẫu thiết kế nhà vuông 8x9m
Nhà vuông được hiểu là ngôi nhà có dạng hình vuông, 4 cạnh không bị khuyết góc, trái phải cân xứng tạo nên không gian sống lý tưởng cho gia đình. Sau đây là một số đặc điểm của mẫu thiết kế nhà vuông 8x9m:
- Theo phong thủy: Ngôi nhà dạng hình vuông giúp tạo ra nguồn sinh khí tuần hoàn, đảm bảo sự hài hòa và cân bằng. Vì vậy mà gia đình luôn êm ấm, hòa thuận, tránh được nhiều tai ương.
- Theo quan điểm hiện đại: Ngôi nhà hình vuông cho phép thiết kế mặt bằng công năng dễ dàng. Từng căn phòng trong nhà đều vô cùng vuông vức và tạo cảm giác dễ chịu, thoải mái. Bên cạnh đó, do kết cấu vuông vức nên việc bài trí nội thất cũng không gặp nhiều khó khăn. Đồng thời thiết kế nhà vuông còn tạo điều kiện thuận lợi để ánh sáng và không khí dễ lưu thông. Từ đó giúp không gian sống luôn sáng sủa và mát mẻ.
- Về màu sắc, hình khối: Ngôi nhà vuông 8x9m không quá rộng rãi nhưng vẫn đảm bảo tính cân xứng và hài hòa. Việc lựa chọn những gam màu sáng cho thiết kế nội, ngoại thất cũng mang đến sự nhẹ nhàng, thư giãn và sang trọng cho căn nhà.
Tham khảo: 20+ Mẫu nhà phố 2 tầng 5x15 đẹp hiện đại, ấn tượng 2025
2. Tham khảo bản vẽ thiết kế nhà vuông 8x9m
Nhà vuông 8x9m có khá nhiều cách bài trí mặt bằng công năng khác nhau, sau đây là một số bản vẽ thiết kế nhà vuông 8x9m để bạn tham khảo:
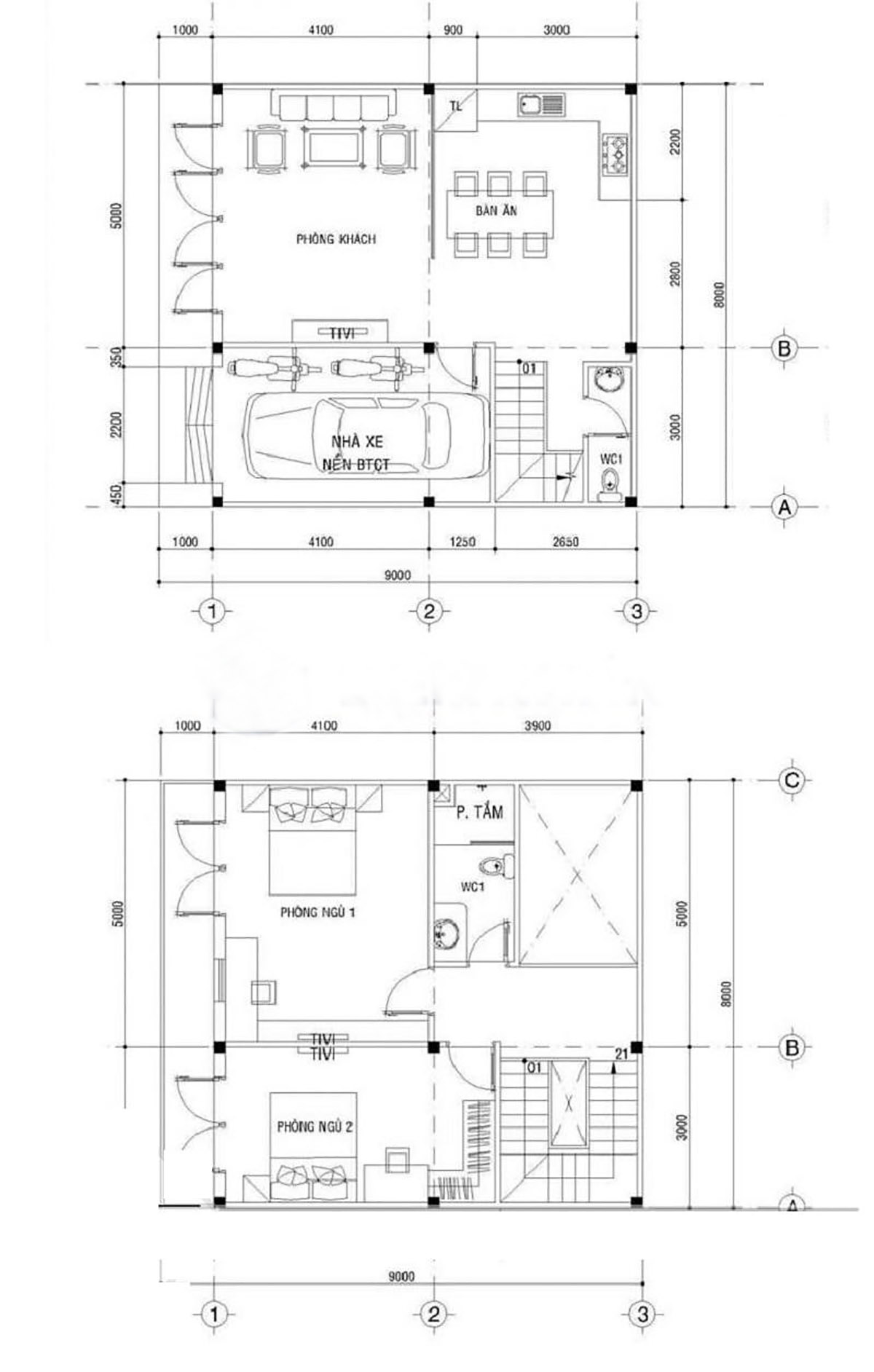
2.1. Bản thiết kế nhà vuông 2 tầng 8x9m
Ở thiết kế nhà vuông 2 tầng 8x9m này, tầng 1 được bố trí gồm gara, phòng khách, phòng bếp, toilet và cầu thang. Tầng 2 có 2 phòng ngủ và không gian sinh hoạt chung.

2.2. Bản vẽ nhà vuông 8x9m 1 trệt 1 lầu 1 lửng
Ngôi nhà vuông 8x9m 2 tầng có gác lửng này được thiết kế vô cùng hợp lý, khoa học. Đặc biệt, nhờ bố trí thêm tầng lửng nên căn nhà có đến 4 phòng ngủ, đáp ứng nhu cầu sinh hoạt của từ 4 – 8 thành viên.

Tham khảo: 99+ Mẫu thiết kế nhà ngang 8m cấp 4 đẹp, hiện đại, tối ưu công năng | Xu hướng 2026
3. Mẫu thiết kế nhà vuông 8x9m đẹp hiện đại nhất 2025
Bước vào năm 2025, mẫu nhà hiện đại với diện tích vuông 8x9m đã nổi bật với sự sáng tạo tối đa. Kết hợp tính thẩm mỹ và tiện ích, ngôi nhà này mang đến một cái nhìn mới mẻ về kiến trúc hiện đại và cách sắp xếp không gian thông minh.
3.1. Thiết kế nhà vuông diện tích 8x9m 1 tầng
Thiết kế nhà 8m rộng 9m kết cấu 1 tầng thường có 2 phòng ngủ, phù hợp với những gia đình có từ 2 – 4 thành viên. Ngoài ra còn có các phòng chức năng cơ bản khác như phòng khách, phòng bếp + ăn, WC,…


3.2. Thiết kế nhà vuông 8x9m 2 tầng mái thái
Thông thường, 1 căn nhà vuông 8x9m 2 tầng sẽ có mặt bằng công năng được bố trí như sau:
- Tầng 1: Phòng khách, phòng bếp kết hợp nhà ăn, phòng ngủ và toilet
- Tầng 2: Phòng sinh hoạt chung, 2 phòng ngủ, toilet, ban công.


3.3. Thiết kế nhà vuông diện tích 8x9m 3 tầng
Ngôi nhà vuông 3 tầng diện tích 8x9m được ưa chuộng hơn cả nhờ sở hữu không gian sinh hoạt rộng rãi. Mặt bằng công năng từng tầng như sau:
- Tầng 1: Phòng khách, phòng bếp + ăn, phòng ngủ 01 và WC chung cho cả tầng
- Tầng 2: Phòng ngủ Master khép kín, phòng ngủ 02, phòng sinh hoạt chung và WC chung cho cả tầng
- Tầng 3: Phòng ngủ 03, phòng thờ, phòng giặt, sân phơi và WC chung cho cả tầng.


3.4. Thiết kế nhà vuông 8x9m tân cổ điển
Một ngôi nhà vuông 2 tầng 8x9m phong cách tân cổ điển sẽ được thiết kế với các phòng chức năng như sau:
- Tầng 1: Phòng khách, 1 phòng ngủ, phòng bếp + ăn, WC chung, sân sau nhà
- Tầng 2: Phòng thờ, 2 phòng ngủ, phòng làm việc, WC chung và ban công


3.5. Các mẫu thiết kế nhà vuông 8x9m ấn tượng khác





Mỗi khi xây nhà, bạn phải đối mặt với rất nhiều bài toán khác nhau như chi phí, vật tư, thiết kế,… Tuy nhiên tất cả những vấn đề trên sẽ được giải quyết một cách nhanh chóng và chuyên nghiệp với dịch vụ xây nhà trọn gói của Công ty Thiết Kế Nhà 365. Khi lựa chọn dịch vụ của chúng tôi, quý khách sẽ được:
- Miễn phí thiết kế 100% giúp quý khách hàng tiết kiệm được một khoản chi phí lớn
- Cung cấp vật liệu xây dựng, trang thiết bị nội thất giá rẻ tại nguồn từ các nhà sản xuất uy tín trong và ngoài nước
- Kế hoạch thiết kế, thi công chi tiết, báo giá rõ ràng và đầy đủ các hạng mục từ lớn đến nhỏ
- Hỗ trợ làm các thủ tục pháp lý, xin phép xây dựng trước khi tiến hành thi công
- Cam kết hoàn thành đúng tiến độ, đúng các hạng mục theo hợp đồng, nói không với chi phí phát sinh.
Công ty Thiết Kế Nhà 365 cam kết mang đến cho khách hàng các bản vẽ thiết kế nhà vuông 8x9m bắt kịp xu hướng mới nhất. Hãy liên hệ đến Công ty Thiết Kế Nhà 365 ngay hôm nay để được báo giá xây nhà trọn gói hợp lý nhất.
Liên hệ ngay với Công Ty Thiết Kế Nhà 365 để nhận báo giá thi công nhà phố trọn gói và được tư vấn miễn phí từ Kiến Trúc Sư!










