Mẫu nhà vuông 10x10 ngày càng được các gia chủ yêu thích nhờ đa dạng về kiểu dáng, thiết kế và phong cách. Vậy đâu là những mẫu thiết kế nhà vuông 10x10 được ưa chuộng nhất hiện nay? Hãy cùng tìm hiểu qua bài viết dưới đây!
1. Tham khảo bản vẽ thiết kế nhà vuông 10x10
Mẫu nhà hiện đại diện tích 10x10m thể hiện sự tinh tế. Ánh sáng tự nhiên tràn ngập qua cửa kính, tạo không gian tươi sáng. Thiết kế thông minh tách biệt các khu vực chức năng mà vẫn giữ được sự thống nhất. Không gian mở rộng cảm giác thư thái và tiện nghi, mang đến trải nghiệm sống hiện đại và sang trọng.
Những mẫu nhà vuông 10x10m luôn được nhiều gia đình ưa chuộng. Sau đây Công ty Thiết Kế Nhà 365 sẽ gửi đến bạn một số bản vẽ mặt bằng công năng nhà vuông 10x10 được thiết kế hợp lý nhất:
1.1. Bản vẽ công năng nhà vuông 10x10
Về thiết kế mặt bằng, một mẫu nhà vuông 10x10 2 tầng thường bao gồm các phòng chức năng dưới đây:
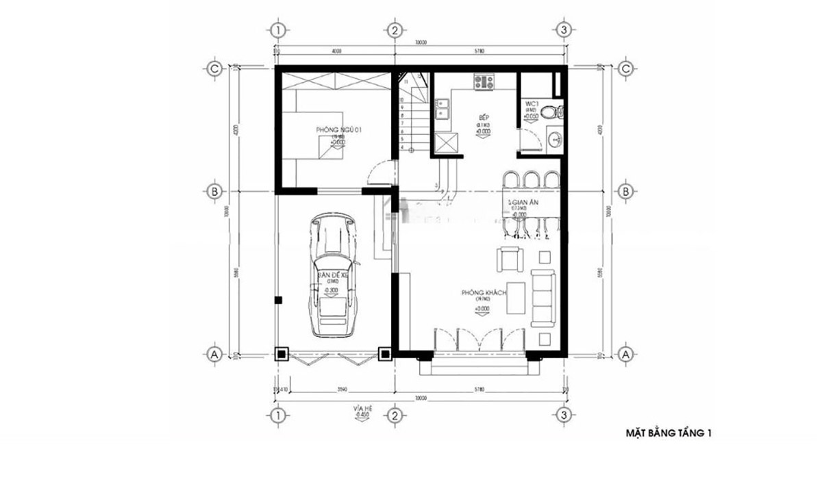
Mặt bằng tầng 1:
- Sân để xe
- Phòng khách
- 1 Phòng ngủ
- Bếp
- Không gian ăn
- WC tầng 1
Từ sảnh ngoài bước vào ngôi nhà này, bạn sẽ bắt gặp phòng khách 25m2 được bố trí hài hòa, tạo không gian ấm cúng và thân thiện. Phòng bếp liên thông với khu vực ăn uống với đầy đủ tiện nghi.
WC nằm ở cuối nhà ngay cạnh phòng bếp – đây là vị trí vô cùng thuận tiện để cả gia đình có thể dễ dàng sử dụng. Phòng ngủ cho bố mẹ được bố trí ở tầng 1 để thuận tiện cho việc di chuyển.
Sân để xe ô tô với diện tích 5m là một không gian tiện ích. Bề mặt sân thường được lát bằng vật liệu chịu lực, như bê tông hoặc gạch đá, đảm bảo độ bền và sự ổn định.

Mặt bằng tầng 2:
- 1 Phòng ngủ
- 1 Phòng thay đồ
- Không gian sinh hoạt chung
- Khu vực ban công
- WC tầng 2
Ở tầng 2 của thiết kế nhà vuông 10x10, ngoài các phòng chức năng chính thì căn nhà 10x10 này còn có phòng ngủ dành cho con gái rộng 16m2 khá thoải mái. Bên cạnh đó còn có khu vực sinh hoạt chung được thiết kế rộng rãi. Đây là không gian tạo nên không khí ấm áp trong gia đình.

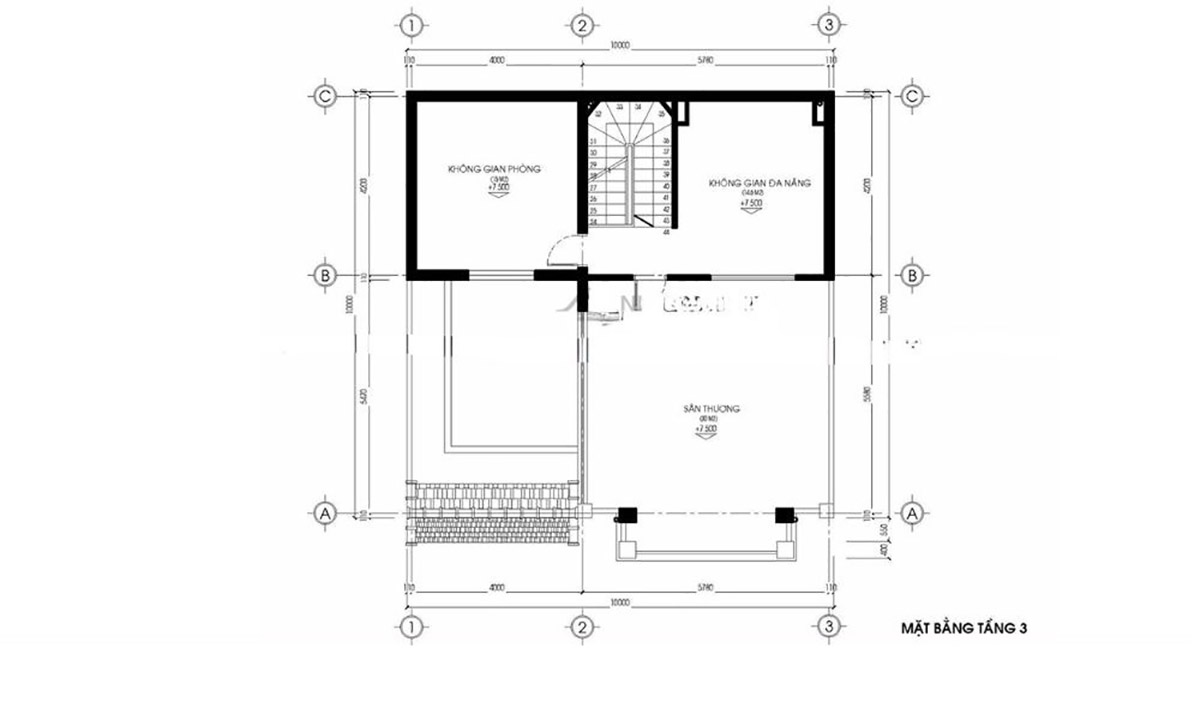
Tầng 3 có không gian đa năng 20m2, được thiết kế để phục vụ nhiều mục đích sử dụng. Có thể sử dụng để làm việc, phòng tập gym nhỏ, hoặc thậm chí làm nơi thư giãn. Đặc biệt là sân thượng rộng lớn với diện tích 25m2 là nơi lý tưởng để tổ chức các buổi tiệc nhỏ họp mặt gia đình, bạn bè.

1.2. Phối cảnh mặt tiền mẫu nhà vuông 10x10m
Căn nhà vuông 10x10m này mang phong cách hiện đại và toát lên sự vững chãi, khỏe khoắn. Công trình được đặc trưng bởi những đường nét vuông vức, các bậc tam cấp đều được ốp đá tự nhiên tone màu tối kết hợp với màu trắng tạo sự tương phản bắt mắt. Gia chủ đã tận dụng triệt để chất liệu kính ở hệ thống cửa để tăng cường nguồn sáng tự nhiên.

1.3. Gợi ý bố trí nội thất đẹp cho nhà vuông 10x10m
Nội thất phòng khách của ngôi nhà được thiết kế theo phong cách hiện đại với những màu sắc trang nhã như trắng, nâu, kem… Phòng khách có cửa sổ mở rộng hướng ra bên ngoài mang lại không gian thông thoáng. Chiếc bàn tiếp khách và đèn treo tường tạo điểm nhấn độc đáo cho căn phòng.

Phòng bếp của ngôi nhà cũng toát lên vẻ đẹp thanh lịch, trang nhã. Kiến trúc sư vẫn sử dụng những gam màu đồng bộ với phòng khách. Thiết kế tủ bếp góc chữ L và đảo bếp riêng tạo ra không gian nấu ăn không chỉ tiện lợi mà còn rất thẩm mỹ. Phòng bếp cũng có cửa sổ để tránh tình trạng lưu mùi nấu nướng trong nhà.

Phòng ngủ dành cho cặp vợ chồng khá rộng rãi và được bài trí sang trọng. Kiến trúc sư đã khéo léo tạo điểm nhấn ở tấm ốp đầu giường với nhiều bức tranh được thiết kế độc đáo. Cửa sổ phòng ngủ có rèm cửa để gia chủ có thể dễ dàng điều chỉnh lượng ánh sáng sao cho phù hợp.

Khu vực làm việc trong nhà là nơi tập trung của sự sáng tạo và công việc, tạo ra không gian tốt nhất để tập trung và năng suất. Bàn làm việc được bố trí với kệ sách và các vật dụng làm việc, tạo nên không gian gọn gàng và ngăn nắp.

Nhà vệ sinh hiện đại là một không gian tiện nghi và thẩm mỹ, được thiết kế để mang lại trải nghiệm thoải mái và sang trọng. Mọi chi tiết từ vật liệu đến trang trí đều được chọn lựa kỹ càng để tạo ra không gian thoải mái và hấp dẫn.

Xem thêm: Thiết kế nhà 100m2: Xu hướng & top mẫu nhà ấn tượng 2025
2. 55+ mẫu thiết kế nhà vuông 10x10 được ưa chuộng hiện nay
Dưới đây là những mẫu thiết kế nhà vuông 10x10 được nhiều người ưa chuộng hiện nay để bạn tham khảo:
2.1. Mẫu thiết kế nhà vuông 10x10m có gara
Đây là mẫu thiết kế nhà vuông rất phổ biến ở cả nông thôn và thành phố. Mẫu nhà vuông 10x10m có gara đảm bảo tiện nghi, thiết kế hiện đại và sang trọng phù hợp với gia đình nhiều thành viên.


Mẫu nhà có gara này được thiết kế theo phong cách mái thái hiện đại tạo nên vẻ đẹp tinh tế, thanh lịch cho ngôi nhà. Nhà có 3 phòng ngủ đều được bố trí ở tầng 2, tầng 1 bố trí phòng khách và phòng bếp đảm bảo không gian rộng rãi, thoáng mát và tiện nghi. Gara được thiết kế ở khu vực tầng 1 nhằm giữ nguyên sự cân đối vuông vức ban đầu của ngôi nhà.

2.2. Mẫu thiết kế nhà vuông 10x10m 1 tầng
Khi thiết kế nhà vuông 10x10m 1 tầng, gia chủ lựa chọn thiết kế có sân vườn để vừa có không gian xanh vừa tăng tính thẩm mỹ cho căn nhà. Dưới đây là một số mẫu thiết kế nhà vuông 10x10m 1 tầng để bạn chiêm ngưỡng:
2.2.1. Mẫu thiết kế nhà vuông 1 tầng diện tích 130m2

Với nhà vuông 10x10m 130m2, bạn có thể thiết kế các khu vực sau:
- Sảnh 10m2
- Phòng khách 25m2
- Gian nhà thờ 16m
- Khu bếp 15m2
- 1 phòng ngủ 15m2
- 2 phòng ngủ 14m2
- WC 4m2
2.2.2. Mẫu thiết kế nhà vuông 1 tầng diện tích 180m2

Với diện tích 180m2, bạn có thể yêu cầu kỹ sư thiết kế khu vực nhà dựa trên nhu cầu sinh hoạt của gia đình như sau:
- Phòng khách 30m2
- Bếp và phòng ăn 8m2
- Gian nhà thờ 13m
- WC 4m/phòng, 2 phòng
- 1 phòng ngủ lớn 19m2
- Phòng ngủ nhỏ 1 diện tích 17m2
- Phòng ngủ nhỏ 2 diện tích 16m2
2.3. Mẫu thiết kế nhà vuông 10x10 2 tầng
Đây là mẫu nhà vuông 2 tầng diện tích 10x10m lấy cảm hứng từ phong cách kiến trúc hiện đại. Nhìn chung ngôi nhà có thiết kế khá đơn giản, tuy nhiên vẫn có những điểm nhấn bắt mắt ví dụ như bậc tam cấp, tường ốp đá tự nhiên hay hệ thống đèn chiếu sáng. Công trình cũng có nhiều mảng xanh thiên nhiên và sử dụng hệ cửa kính để mang đến cảm giác gần gũi với không gian bên ngoài.

2.4. Mẫu thiết kế nhà vuông 10x10m 3 tầng

Mẫu nhà 10x10m này phù hợp với gia đình có nhiều thế hệ với bố trí các phòng như sau:
- Tầng 1 sẽ bao gồm phòng khách, phòng bếp, nhà vệ sinh và 1 phòng ngủ nhỏ cho ông bà hoặc khách trong nhà.
- Tầng 2 bố trí một số phòng ngủ và phòng sinh hoạt chung phù hợp với số lượng thành viên trong gia đình.
- Trên tầng 3 sẽ có phòng thờ, phòng chứa đồ và khu vực sân thượng để phơi đồ, trồng rau hoặc để gia chủ thư giãn, nghỉ ngơi.
2.5. Mẫu thiết kế nhà vuông 10x10m tân cổ điển



Tham khảo: 10+ Mẫu thiết kế nhà vuông 8x9m đẹp hiện đại nhất 2025
3. Những lưu ý khi xây nhà 10x10m bạn cần nắm
Trước khi xây dựng nhà diện tích 10x10 bạn cần nắm một số lưu ý sau:
3.1. Yếu tố phong thủy
“Có thờ, có thiêng, có kiêng, có lành” là điều quan trọng trong phong thủy mà người Việt thường hay chú ý đến khi xây nhà. Theo phong thủy, âm dương hòa hợp thì nhà cửa êm ấm, mọi thành viên trong gia đình cũng thoải mái về tâm lý, luôn vui vẻ, hòa thuận.

Không gian phòng ngủ, nhà vệ sinh hay phòng đọc sách là những nơi riêng tư, cần yên tĩnh trong khi phòng khách, nhà bếp và khu vui chơi cần ánh sáng và sự sôi động để cân bằng tổng thể ngôi nhà. Đồng thời, trong nhà không nên quá sáng hoặc quá tối, cửa chính và cửa sổ nên thiết kế vừa đủ để đón ánh sáng tự nhiên.
3.2. Màu sắc không gian
Bạn có thể lựa chọn các gam màu theo sở thích để trang trí cho ngôi nhà của mình. Hơn nữa chọn các tông màu lạnh, màu nắng ấm hoặc màu pastel sẽ giúp mắt nhìn được hài hòa, dễ chịu và tạo cảm giác ngôi nhà được thông thoáng, rộng rãi hơn.
Để ngôi nhà của bạn trở nên sống động, bạn cũng có thể lựa chọn thiết kế ngôi nhà với mái thái hoặc có nhiều cửa sổ để căn nhà đón thêm nhiều ánh sáng và không khí tự nhiên giúp ngôi nhà thêm tươi sáng và thoáng hơn.
3.3. Chọn nội thất
Lựa chọn nội thất cũng rất quan trọng khi lên kế hoạch cho một ngôi nhà hình vuông 10×10. Gia chủ nên chọn những đồ nội thất có tính thẩm mỹ, đa năng để tiết kiệm chi phí và diện tích. Hiện nay, có rất nhiều mẫu nội thất đa năng có thể kết hợp 2 trong 1 hoặc 3 trong 1 giúp ngôi nhà trở nên tiện nghi hơn.
Xem thêm: Top 10 Mẫu thiết kế nhà phố 5x20 hiện đại, độc đáo nhất 2025
4. Công ty Thiết Kế Nhà 365 – Đơn vị thiết kế nhà vuông 10x10 uy tín
Công ty Thiết Kế Nhà 365 được công nhận là một trong những đơn vị uy tín nhất trong ngành xây dựng với bề dày kinh nghiệm hơn 10 năm trong lĩnh vực, kiến tạo hơn 100+ mẫu nhà khác nhau và nhận được 95% đánh giá hài lòng từ khách hàng.
Đội ngũ kiến trúc sư và thợ của công ty lành nghề, làm việc tận tâm, cẩn thận và tỉ mỉ để đem đến những công trình đẹp nhất cho khách hàng.
Hệ thống máy móc, trang thiết bị được công ty nâng cấp và cải tiến nhằm phục vụ quá trình thi công được diễn ra một cách nhanh chóng và hiệu quả nhất.
Công ty Thiết Kế Nhà 365 miễn phí 100% chi phí thiết kế cho những khách hàng chọn dịch vụ xây nhà trọn gói giúp khách hàng tiết kiệm được một khoản tiền lớn khi xây nhà.

Trên đây là thông tin tổng hợp tất cả các mẫu thiết kế nhà vuông 10x10 đẹp nhất hiện nay để bạn tham khảo. Nếu có nhu cầu tìm kiếm đơn vị thiết kế và thi công nhà uy tín, chất lượng hãy liên hệ ngay đến Công ty Thiết Kế Nhà 365 để được nhân viên của chúng tôi tư vấn tận tình nhất!
Liên hệ ngay với Công Ty Thiết Kế Nhà 365 để nhận báo giá thiết kế nhà phố trọn gói và được tư vấn miễn phí từ Kiến Trúc Sư!











