Thiết kế nội thất văn phòng không chỉ đơn thuần là việc bố trí bàn ghế hay trang trí không gian làm việc, mà còn là yếu tố quan trọng giúp xây dựng hình ảnh chuyên nghiệp cho doanh nghiệp. Một văn phòng được thiết kế khoa học, thẩm mỹ và tiện nghi sẽ tạo môi trường làm việc thoải mái, đồng thời góp phần nâng cao hiệu suất và sự gắn kết của nhân viên.
Hiện nay, nhiều doanh nghiệp chú trọng đầu tư thiết kế nội thất văn phòng theo hướng hiện đại, tối ưu công năng và thể hiện rõ bản sắc thương hiệu. Trong bài viết dưới đây, Thiết Kế Nhà 365 sẽ giới thiệu các mẫu thiết kế văn phòng đẹp, cập nhật xu hướng mới và chia sẻ kinh nghiệm bố trí không gian làm việc hiệu quả cho từng mô hình doanh nghiệp.
- 1. Thiết kế nội thất văn phòng là gì?
- 2. Lợi ích khi thiết kế văn phòng làm việc chuyên nghiệp
- 3. Xu hướng thiết kế nội thất văn phòng hiện nay
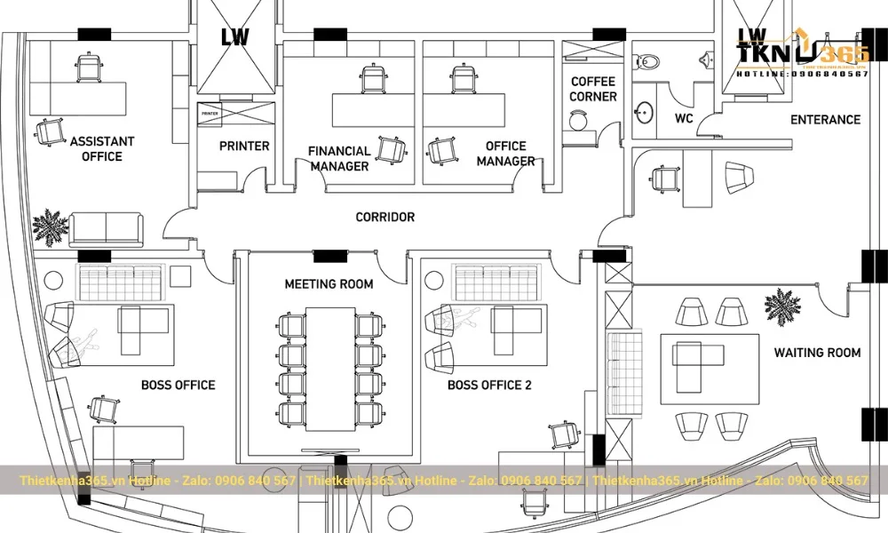
- 4. Thiết kế nội thất văn phòng làm việc theo chức năng
- 5. Các mẫu thiết kế nội thất văn phòng cao cấp được ưa chuộng hiện nay
-
6. Lưu ý khi thiết kế nội thất văn phòng làm việc
- 6.1 Phân chia bố cục không gian hợp lý
- 6.2 Phù hợp với văn hóa của công ty
- 6.3 Thiết kế ánh sáng hợp lý
- 6.4 Lựa chọn tông màu phù hợp
- 6.5 Phù hợp với phong thủy
- 6.6 Sử dụng chất liệu nội thất phù hợp
- 6.7 Phù hợp với diện tích văn phòng
- 6.8 Xác định phong cách thiết kế nội thất từng phòng ban
- 6.9 Phù hợp với ngân sách đầu tư
- 7. Tiêu chí lựa chọn đơn vị thiết kế thi công nội thất văn phòng uy tín
- 8. Báo giá thiết kế nội thất văn phòng mới nhất 2026
- 9. Đơn vị thiết kế nội thất văn phòng chuyên nghiệp
- 10. Các câu hỏi thường gặp (FAQs)
1. Thiết kế nội thất văn phòng là gì?
Thiết kế nội thất văn phòng là công việc lựa chọn, bố trí và sắp xếp không gian làm việc làm sao cho hợp lý và tối ưu nhất. Các mẫu thiết kế văn phòng đẹp cần phải đáp ứng được đầy đủ các tiêu chí về mặt thẩm mỹ, tiện nghi và quan trọng là phù hợp với văn hóa của từng doanh nghiệp.

Không chỉ đơn giản là việc sắp xếp các đồ nội thất cơ bản vào không gian làm việc. Mà thiết kế nội thất văn phòng còn bao gồm nhiều phương diện khác nhau như phải có sự hài hòa, bố trí khoa học để thuận tiện trong công việc và phải đạt được hiệu quả thẩm mỹ cao. Trong đó, quan trọng nhất là chủ doanh nghiệp phải biết lựa chọn và sắp xếp các yếu tố màu sắc, đồ nội thất, thiết bị, vật dụng trang trí cho phù hợp, vừa mắt.
Hiệu quả đạt được của công việc thiết kế nội thất văn phòng là các yếu tố này được sắp xếp làm sao để có lợi ích tốt nhất không gian làm việc. Thiết kế đồ nội thất chất lượng có thể mang lại hiệu quả làm việc tốt hơn.

Xem thêm: Báo Giá Thi Công Nội Thất Văn Phòng Trọn Gói Mới Nhất 2025
2. Lợi ích khi thiết kế văn phòng làm việc chuyên nghiệp
Thiết kế nội thất cho văn phòng là yếu tố vô cùng quan trọng. Bởi vì nó sẽ ảnh hưởng gián tiếp đến hiệu suất làm việc và chất lượng công việc. Do đó, một văn phòng đẹp và tiện nghi còn mang đến nhiều lợi ích cho doanh nghiệp:
2.1 Thể hiện giá trị doanh nghiệp
Văn phòng chính là bộ mặt của công ty. Do đó, khi khách hàng bước vào văn phòng, họ sẽ đánh giá và phỏng đoán về quy mô, mức độ chuyên nghiệp của doanh nghiệp. Do đó, không gian làm việc tại văn phòng có thể giúp thể hiện giá trị thương hiệu của doanh nghiệp.

2.2 Thể hiện văn hóa doanh nghiệp
Một văn phòng được trang trí, sắp xếp và bố trí nội thất đẹp, tiện nghi sẽ góp phần thể hiện giá trị văn hóa cho công ty. Thông qua những hình ảnh của văn phòng sẽ giúp quảng bá không gian làm việc chuyên nghiệp của doanh nghiệp, giúp nâng cao giá trị thương hiệu, tăng mức độ uy tín, chất lượng và chuyên nghiệp.

2.3 Cải thiện năng suất làm việc của nhân viên
Với một không gian làm việc chuyên nghiệp, tiện nghi và đẹp mắt sẽ giúp nhân viên hào hứng hơn trong công việc. Hầu hết, họ sẽ cảm thấy vui vẻ và tự hào khi được làm việc ở trong một không gian như thế. Bên cạnh đó, không gian làm việc tiện nghi cũng sẽ làm khơi dậy những ý tưởng sáng tạo, làm tăng năng suất làm việc.
2.3 Thu hút nhân viên mới vào công ty
Không chỉ nhân viên cũ đang làm việc trong công ty cảm thấy tự hào mà nhân viên mới cũng luôn mong muốn được làm việc trong một không gian sang, xịn, mịn như thế. Do đó, một văn phòng làm việc chuyên nghiệp, tiện nghi và đẹp mắt sẽ là một lợi thế thu hút các nhân tài về đầu quân cho doanh nghiệp.
Tham khảo: 99+ Mẫu thiết kế nội thất chung cư đẹp hiện đại nhất 2025
3. Xu hướng thiết kế nội thất văn phòng hiện nay
Dưới đây sẽ là một số mẫu thiết kế nội thất văn phòng đẹp đang được ưa chuộng nhất hiện nay để bạn có thể lên ý tưởng cho không gian làm việc của công ty mình.
3.1 Thiết kế khu vực pantry và giải trí cho nhân viên
Trong việc thiết kế nội thất văn phòng, chủ doanh nghiệp cần phải xây dựng một môi trường làm việc chuyên nghiệp nhưng vẫn phải đáp ứng được nhu cầu thư giãn và nghỉ ngơi cho nhân viên. Do đó khu vực pantry và giải trí cho nhân viên cũng cần được quan tâm. Đây là khu vực mà nhân viên có thể sử dụng khi ăn sáng, ăn trưa hoặc trong giờ nghỉ ngơi, giải trí.
Bạn có thể thiết kế khu vực này với một cái tủ bếp chữ I có bồn rửa, tủ đựng cốc chén và các thiết bị như tủ lạnh, bình nước nóng lạnh để nhân viên sử dụng. Tất nhiên, khu vực này không thể thiếu một vài bộ bài ghế để làm nơi ăn sáng, ăn trưa.
Để tăng thêm sự phần thư giãn cho nhân viên giờ trong giờ giải lao thì bạn có thể xem xét đặt thêm một số chậu cây để trên giá hoặc một giàn cây leo cũng rất được ưa thích. Một gợi ý cho bạn là có thể sắp xếp bàn ghế theo không gian quán cà phê để tăng thêm độ thích thú cho người sử dụng.

Một ý tưởng khác là bạn có thể thiết kế nội thất khu vực pantry theo dạng quầy bar cũng rất thú vị. Khu vực này cũng có thể chọn vật liệu kính để nhân viên có thể vừa ăn sáng vừa ngắm thế giới bên ngoài. Màu sắc khu vực này cần phải nhã nhặn, tạo cảm giác dễ chịu thư thái. Chỉ cần một vài nét chấm phá màu sắc nổi bật như bộ gối trên ghế sofa là có thể tạo phong cách ấn tượng cho căn phòng.
Không gian giải trí có thể chọn màu sắc nổi bật, kết hợp nhiều hình khối để làm tăng sự kích thích đầu óc. Bố trí thêm một số trò chơi để nhân viên giải trí sau giờ làm việc.
3.2 Đầu tư vào trang trí và vẽ tường đa màu sắc
Đây là một xu hướng được nhiều công ty ưa chuộng. Đặc biệt, nó được ứng dụng rất tốt ở các công ty làm Agency sáng tạo. Các lãnh đạo công ty thường tập trung vào thiết kế những mảng màu sắc độc đáo để mang đến sự ấn tượng, độc đáo cho không gian làm việc của mình.
Những mảng tường đa sắc màu này sẽ rất hữu ích trong việc kích thích thị giác. Không chỉ thế, nó sẽ tạo nên một môi trường vô cùng trẻ trung, năng động, mang đến sự thoải mái cho nhân viên.
Chẳng hạn như bạn có thể thiết kế một quầy lễ tân với kiểu màu loang độc đáo, nổi bật trên nền màu trắng. Bất cứ khách hàng nào bước vào cùng không thể không chú ý tới khu vực này.
Hoặc bạn cũng có thể thiết kế một mảng tường với các hình tam giác đầy màu sắc. Chắc hẳn nó sẽ mang đến không gian làm việc tươi mới, thích thú cho bất cứ nhân viên nào.
Không chỉ tận dụng những bức tường để tạo điểm nhấn cho căn phòng mà sàn nhà cũng có thể là nơi mà bạn có thể tận dụng. Một sàn nhà nhiều sắc màu nổi bật kết hợp cũng là một ý tưởng hay phải không nào.
Bạn có thể thay những chiếc ghế bình thường thành những chiếc ghế có hình khối to lớn bao trọn lấy người ngồi như thế này. Màu sắc xanh tươi cũng khá độc đáo. Chắc hẳn, môi trường này sẽ mang lại nhiều ý tưởng sáng tạo cho nhân viên trong công việc.
Không quá nhiều màu sắc, nhưng nó cũng thực sự tạo ấn tượng với tấm nền xanh lá cây có tên công ty nổi bật giữa không gian màu gỗ như thế này.
Khu vực bàn làm việc của nhân viên cũng có thể áp dụng những bức vẽ trang trí đa sắc màu. Nhân viên của bạn, đặc biệt các nhân viên trẻ tuổi sẽ luôn làm việc trong tâm thế hào hứng, tự hào về công ty.
3.3 Ưu tiên không gian mở nhiều cây xanh
Đa số các văn phòng làm việc hiện nay đều có xu hướng thiết kế không gian làm việc mở với nhiều cây xanh. Kiểu thiết kế nội thất văn phòng này sẽ giúp nhân viên có được môi trường làm việc trong lành, tốt cho sức khỏe.
Bạn có thể bố trí một bờ cây xanh ngăn cách lối đi và bàn làm việc của nhân viên. Bạn cũng có thể bố trí các chậu cây xanh trên các giá treo. Nó sẽ giúp không gian làm việc trở nên đẹp mắt. Phần tường bên kia được sử dụng vật liệu kính trong suốt giúp nhân viên có thể phóng tầm mắt ra xa để thư giãn mỗi khi tập trung trong máy tính quá lâu. Đừng quên bố trí thêm rèm để nhân viên tùy chỉnh khi cần nhé.

Hầu hết các không gian mở văn phòng hiện nay sử dụng kính để ngăn các phòng ban. Nó sẽ mang đến cảm giác rộng rãi, dễ chịu hơn. Loại bỏ cảm giác bí bách của những bức tường gạch dày cộm.
Bạn cũng có thể tận dụng một bức tường nào đó phù hợp trong văn phòng để trồng cây leo như cây thường xuân chẳng hạn. Các chậu cây lớn được đặt quanh các bàn ở khu vực khu vực pantry để tăng thêm sự trong lành, xanh mát.
Một ý tưởng khác là bạn có thể sắp xếp bàn làm việc quanh một khu vực trồng nhiều cây xanh. Nhân viên sẽ được làm việc trong môi trường thoải mái, gần với thiên nhiên hơn.
Tham khảo: 101+ Mẫu thiết kế nội thất phòng khách hiện đại – Xu hướng
4. Thiết kế nội thất văn phòng làm việc theo chức năng
Khi bạn thiết kế nội thất văn phòng cần phải chú ý lựa chọn phong cách cho phù hợp với từng phòng ban. Cách thiết kế này sẽ mang đến hiệu quả tốt giúp tối ưu được chi phí nội thất văn phòng.
4.1 Thiết kế nội thất văn phòng giám đốc
Đầu tiên, cần chú ý đến không gian làm việc của giám đốc. Đây là căn phòng cần được thiết kế theo phong cách sang trọng, thanh lịch. Cách bố trí các đồ dùng nội thất phải thật khoa học và đẹp mắt. Bởi vì, căn phòng này sẽ thể hiện đẳng cấp của người lãnh đạo, người đứng đầu doanh nghiệp.
Thông thường, khi thiết kế nội thất văn phòng giám đốc thường sẽ chọn những gam màu trung tính. Bởi, những gam màu này làm tôn lên sự sang trọng, tinh tế và quyền lực. Các độ nội thất cần phải có kích thước phù hợp với không gian.
Phòng làm việc của giám đốc được thiết kế với tông màu gỗ làm chủ đạo. Nền căn phòng được chọn màu xám lông chuột. Hai bàn làm việc đặt sát tường và đối diện nhau. Một bộ sofa màu trắng kem để tiếp khách, trao đổi công việc được đặt ở giữa. Tất cả tạo nên sự cân đối hài hòa cho căn phòng.
Hoặc bạn cũng có thể chọn tông màu đen kết hợp với màu gỗ xám nâu để làm màu chủ đạo. Màu đen là tông màu quyền lực được các nhà lãnh đạo vô cùng yêu thích.

Trong phòng làm việc của giám đốc, bạn có thể bố trí thêm một bàn tiếp khách, một bàn họp. Ngoài ra, một giá để sách và các vật dụng trang trí cũng có thể bố trí ngay sau bàn làm việc của giám đốc.
Nếu bạn không thích sự đơn điệu quá thì có thể tạo điểm nhấn cho căn phòng bằng các khung tranh ảnh, chậu cây. Ngoài ra, có thể thiết kế kiểu không gian mở với vật liệu kính để có thể dễ dàng nhìn ra xa. Một mảng tường được thiết kế phá cách kết hợp với các tủ âm tường để sách và các vật dụng trang trí. Thêm một chiếc đèn chùm lớn để tạo điểm nhấn nổi bật cho căn phòng.
Hoặc bạn có thể thiết kế căn phòng này theo phong cách đơn giản nhưng không hề đơn điệu bằng một chiếc bàn làm việc bằng gỗ và một bàn kính thanh mảnh. Điểm nhấn là những bức tranh trừu tượng mang đến sức sáng tạo cao.
4.2 Thiết kế nội thất văn phòng làm việc của nhân viên
Phòng làm việc của nhân viên thì nội thất sẽ không được chú trọng bằng phòng giám đốc. Nó sẽ thiên về các công năng sử dụng và tính thẩm mỹ cho không gian làm việc. Ngoài ra, nội thất của văn phòng này phải tạo được cảm hứng làm việc cho nhân viên.
Có thể lựa chọn kiểu văn phòng có chia vách ngăn trên mặt bàn để tạo ra sự riêng tư cũng như tăng khả năng tập trung cho nhân viên trong khi làm việc. Đây là mẫu thiết kế nội thất phù hợp với các phòng kế toán. Họ là những người cần sự tập trung cao độ và không cần trao đổi nhóm quá nhiều.
Hoặc bạn cũng có thể lựa chọn những mẫu văn phòng có thiết kế nội thất đơn giản, thông thoáng. Điều này sẽ giúp thuận lợi hơn cho sự sáng tạo ý tưởng và làm việc trao đổi nhóm. Đối với những công việc thiên về sự sáng tạo như thiết kế, agency,….sẽ phù hợp với mẫu văn phòng này.

Bạn có thể cân nhắc bố trí thêm cây xanh, tận dụng ánh sáng tự nhiên vào văn phòng để mang đến không khí trong lành, tốt cho sức khỏe của nhân viên. Màu sắc của văn phòng làm việc của nhân viên thì có thể tùy chọn theo phong cách của từng công ty. Bạn có thể lựa chọn màu trung tính, nhẹ nhàng để tạo sự sạch sẽ, sang trọng. Hoặc cũng có thể chọn màu sắc phá cách đổi mới tùy thích.
4.3 Thiết kế nội thất phòng họp
Đây là nơi các thành viên của công ty họp bàn công việc với nhau. Do đó, phong cách cho căn phòng này cần gọn gàng trang nhã. Không gian phòng họp thường được bố trí, sắp xếp cân xứng nhau. Bàn họp thường được sắp xếp theo hình tròn hoặc hình chữ nhật để giúp các thành viên dễ quan sát, theo dõi khi thuyết trình, họp hành.
Mẫu thiết kế nội thất văn phòng phòng họp theo hình chữ U. Ở giữa có thể thêm một vài chậu cây xanh tầm thấp để trang trí, tạo không khí trong lành nhưng vẫn đảm bảo tầm nhìn của các thành viên để theo nội dung trên màn chiếu.
Hoặc bạn cũng có thể đổi mới phòng họp khi sắp xếp các bộ bàn ghế theo kiểu lớp học. Đây thường là phòng dùng để training cho nhân viên các kiến thức mới, các thức làm việc mới.

Về màu sắc của phòng hợp thì có thể chọn màu theo phong cách của công ty lựa chọn. Nếu công ty hướng đến sự năng động, tươi mới thì có thể chọn những màu tươi sáng, nổi bật. Còn nếu là phòng họp với các vị cổ đông của một công ty lớn thì hãy chọn màu sắc trung tính, trang trọng như màu đen, trắng.
Nếu không quá đông thành viên trong phòng họp thì có thể bố trí các bộ ghế sofa. Nó sẽ tạo sự thoải mái, tạo khoảng cách gần nhau hơn giúp dễ dàng hơn khi trao đổi công việc.
4.4 Thiết kế nội thất quầy lễ tân
Quầy lễ tân của văn phòng công ty chính là bộ mặt của công ty. Do đó, nội thất của khu vực này bạn cần thực sự quan tâm. Bạn cần chú ý lựa chọn kiểu dáng quầy cho phù hợp và đồng bộ với không gian văn phòng. Tránh lựa chọn kiểu dáng, tông màu “lạc quẻ” làm mất đi tính thẩm mỹ của khu vực này.
Chẳng hạn như, bạn có thể bố trí quầy lễ tân hình chữ I để tiếp đón khách hàng. Đối diện qua hành lang là một số bộ bàn ghế để khách ngồi chờ khi cần. Quầy lễ tân có màu xám và màu vàng đậm đồng bộ với không gian của sảnh chờ. Ngoài ra, bạn có thể tham khảo quầy có hình cung, nhưng nó chỉ hợp với những nơi có diện tích lớn.
Tham khảo: 99+ Mẫu thiết kế nội thất nhà phố đẹp, hiện đại nhất năm 2025
5. Các mẫu thiết kế nội thất văn phòng cao cấp được ưa chuộng hiện nay
5.1 Thiết kế nội thất văn phòng hiện đại
Phong cách thiết kế nội thất hiện đại luôn là sự lựa chọn tối ưu nhất khi thiết kế nội thất văn phòng. Phong cách thiết kế này sẽ không kén chọn về diện tích hay chất liệu. Đây cũng là lý do khiến nó luôn được ưa chuộng nhất.
Cách thiết kế nội thất này sẽ mang đến những không gian làm việc đẹp mắt với thiết kế đơn giản, sang trọng. Bạn có thể sử dụng bất kỳ loại chất liệu nào như gỗ công nghiệp, gạch đá, nệm, vải… Ngoài ra, bạn có thể kết hợp ánh sáng cũng như màu sắc cho hài hòa để tạo không gian năng động.

Với phong cách thiết kế nội thất văn phòng này, bạn có thể tham khảo những mẫu sau đây:
Về tổng thể thì không gian văn phòng này thể hiện được sự tiện nghi với cách thiết kế nội thất đơn giản khoa học. Nó cũng được thiết kế theo kiểu không gian mở giúp cho không khí làm việc thêm thông thoáng tự nhiên. Ngoài ra, cách thiết kế này còn giúp các phòng ban đều có thể quan sát được toàn bộ công ty.
5.2 Thiết kế nội thất văn phòng không gian mở
Đây là một phong cách thiết kế nội thất văn phòng đẹp với phong cách mở đang rất được ưa chuộng hiện nay. Thay vì bạn sử dụng các thiết kế truyền thống ở các khu vực cố định. Thì bạn có thể tạo ra một không gian mở để giúp không gian làm việc trở nên rộng rãi và thoáng mát hơn. Nó sẽ tạo ra một không gian làm việc đầy sáng tạo và trẻ trung.
Thiết kế nội thất văn phòng không gian mở cũng giúp các nhân viên có điều kiện di chuyển nhiều hơn. Từ đó, nó sẽ làm tăng cơ hội học hỏi, giao lưu với đồng nghiệp để phát triển bản thân, tạo dựng mối quan hệ.
Chất lượng công việc cũng được tăng cao. Đây thực sự là một phong cách thiết kế văn phòng phù hợp nhất đối với các doanh nghiệp có môi trường làm việc cần sự năng động, sáng tạo không ngừng.

Ngoài tông màu nhẹ nhàng thông thường thì bạn có thể chọn thêm một số tông màu nổi bật để tạo điểm nhấn. Chẳng hạn như một bộ tủ xám được đặt trong một căn phòng nhỏ có hai bức tường màu xanh và cam vô cùng mới mẻ và bắt mắt. Màu xanh dương, màu cam và màu vàng được chọn sơn cho màu cột để tránh sự tẻ nhạt, khô khan.
Các nhân viên đều được bố trí sắp xếp vào cùng một khu vực. Không cần phải có sự ngăn cách giữa các phòng ban để tiết kiệm diện tích. Cách bố trí này phù hợp với các không gian văn phòng nhỏ, các bức tường sẽ làm cản trở tầm nhìn. Tạo nên sự khó chịu, bí bách khi làm việc.
5.3 Thiết kế nội thất văn phòng xanh
Đây là xu hướng kết nối với thiên nhiên ngày càng được nhiều chủ doanh nghiệp lựa chọn trong khi thiết kế thi công nội thất văn phòng. Bởi vì không gian xanh mang lại những lợi ích tuyệt vời cho con người.
Văn phòng xanh không chỉ tạo ấn tượng cho khách hàng của công ty về một môi trường làm việc độc đáo, thân thuộc. Không gian xanh còn tạo ra bầu không khí trong lành, thư giãn. Từ đó, cây xanh sẽ, làm xoa dịu cảm xúc và tinh thần của nhân viên trong những giờ phút làm việc mệt mỏi và vô cùng căng thẳng.
Khi nhìn vào mảng xanh thiên nhiên có trong văn phòng, tinh thần và tâm trạng của người làm việc sẽ có biến chuyển tích cực. Từ đó, nó sẽ giúp nhân viên xóa bỏ đi những mệt nhọc trong công việc. Nó sẽ giúp thư giãn đầu óc, tinh thần từ đó cho ra những quyết định sáng suốt và mang đến hiệu quả cao.

Thiết kế nội thất văn phòng xanh mang lại lợi ích rất lớn trong việc làm giảm tải hiệu ứng nhà kính. Việc tích hợp những thảm thực vật xanh mát có khả năng quang hợp, giúp tái tạo oxy tốt hơn. Do đó, toàn bộ công ty sẽ mang đến một môi trường xanh – sạch – đẹp cũng như đem đến nguồn năng lượng tích cực cho những giờ phút làm việc thăng hoa.
5.4 Thiết kế nội thất văn phòng làm việc mang tính nghệ thuật
Đối với những ngành nghề liên quan đến nghệ thuật sáng tạo thì không thể thiết kế văn phòng đơn thuần. Bất cứ không gian nào trong không gian của công ty cũng có thể thiết kế tạo nên sự ấn tượng, đẹp mắt.
Phòng làm việc đầy ấn tượng với các bức tường màu cam nổi bật. Trên những bức tường còn có những khung hình chữ nhật lõm để nhân viên có thể tận dụng ngồi nghỉ ngơi khi cần. Một con hươu hình lưới được dính lên cột văn phòng cũng tạo nên sự độc lạ.
Khu vực phòng họp là những chiếc ghế nhỏ được xếp đặt như nơi các em học sinh ở trường ngồi lúc sinh hoạt tập thể. Những bức tường không trắng trơn đơn thuần mà nó có những bức vẽ nghệ thuật. Nó không những mang đến sự thú vị cho không gian làm việc. Mà một bức vẽ ý nghĩa nó còn thúc đẩy ý chí, tinh thần làm việc của nhân viên.
Cây xanh trong phòng họp không chỉ chạy dọc hai bên tường mà còn có các chậu cây được treo trên cao. Xung quanh đó là một loạt đèn led chiếu sáng trông đẹp mắt.
Có thiết kế phòng trò chuyện dành cho nhân viên vô cùng thú vị. Hoặc khu vực đọc sách có thể phóng tầm mắt ra xa qua cửa sổ kính khi cần.
Khu vực pantry của văn phòng trông giống như một quầy bar. Các mảng xanh và trắng kết hợp tạo nên sự hài hòa bắt mắt. Kệ đặt các loại thức uống tuy đơn giản nhưng lại vô cùng ấn tượng. Bộ bàn ghế sofa màu xám trắng hòa vào không gian phòng một cách ăn ý. Khu vực này tạo cảm giác chill chill đến khó tả. Nhân viên sẽ có những phút giây cực kỳ thoải mái sau giờ làm việc với căn phòng đầy tính nghệ thuật này.
Điểm nhấn nghệ thuật có thể là những chữ cái với hệ đèn led sáng nổi bật trên nền đỏ của nhà vệ sinh.
Nói chung là tùy vào sở thích, gu thẩm mỹ của từng người mà có thể tùy ý sáng tạo không gian nội thất văn phòng của mình. Làm sao để khi thiết kế xong sẽ mang đến một không gian làm việc hứng khởi cho nhân viên.
Xem thêm: 55+ mẫu thiết kế nội thất gầm cầu thang siêu đẹp hiện đại 2025
6. Lưu ý khi thiết kế nội thất văn phòng làm việc
Để có được một văn phòng đạt tiêu chuẩn thiết kế nội thất là phải luôn đảm bảo được những yếu tố quan trọng nhất định. Thiết kế nội thất văn phòng phải phù hợp với diện tích công năng sử dụng cũng như tính thẩm mỹ của nó. Cụ thể, khi thiết kế nội thất thì bạn cần lưu ý một số điểm sau đây:
6.1 Phân chia bố cục không gian hợp lý
Đây là yếu tố đầu tiên mà chủ doanh nghiệp cần phải quan tâm khi thiết kế không gian nội thất của văn phòng. Việc phân chia bố cục không gian, vị trí của từng phòng ban đều vô cùng quan trọng. Với phòng dùng để tiếp đón khách hàng thì cần phải đặt gần cửa chính, lựa chọn các màu sắc ấm cúng là thân thiện với khách hàng.
Còn đối với các phòng ban của nhân viên thì cần chọn phong cách thiết kế phù hợp với diện tích, tiết kiệm được chi phí thiết kế mà vẫn đảm bảo việc dễ dàng trao đổi, làm việc.
Bên cạnh đó, phòng ban của giám đốc nên có phong cách thiết kế nổi bật hơn phòng ban nhân viên. Chẳng hạn như bạn có thể chọn màu sắc đậm hơn và có vị trí thuận tiện để đi lại làm việc với các phòng ban khác.

6.2 Phù hợp với văn hóa của công ty
Yếu tố quan trọng tiếp theo của việc thiết kế nội thất văn phòng làm việc là phải chọn phong cách thiết kế phù hợp với văn hóa của công ty. Mỗi doanh nghiệp sẽ có văn hóa và phong cách làm việc độc đáo riêng. Do đó, tùy vào công ty của mình mà bạn có thể chọn kiểu thiết kế nội thất linh hoạt, tạo điểm nhấn cho doanh nghiệp và khách hàng.
6.3 Thiết kế ánh sáng hợp lý
Để thiết kế nội thất văn phòng chuyên nghiệp, tăng hiệu quả làm việc thì hệ thống chiếu sáng cũng là một yếu tố rất đáng được quan tâm. Ánh sáng sẽ tác động trực tiếp tới hiệu suất làm việc của nhân viên. Hãy bố trí một văn phòng làm việc có ánh sáng vừa đủ để đáp ứng nhu cầu làm việc. Không quá chói cũng không quá thiếu sáng để tạo cảm giác dễ chịu và tỉnh táo trong khi làm việc.
Bên cạnh ánh sáng đèn điện, bạn cần xem xét khía cạnh cung cấp đủ cả ánh sáng tự nhiên ngoài trời. Kiểu thiết kế này vừa giúp tiết kiệm điện cho doanh nghiệp vừa có thể mang lại nguồn sáng tự nhiên tích cực cho nhân viên trong quá trình làm việc.
6.4 Lựa chọn tông màu phù hợp
Màu sắc là yếu tố tác động rất lớn tới tâm lý làm việc và chất lượng công việc của nhân viên. Chưa dừng lại ở đó, màu sắc còn là thông điệp của doanh nghiệp muốn gửi đến cho khách hàng.
Mỗi doanh nghiệp đều có một màu sắc chủ đạo, đặc trưng của riêng mình. Khi nhắc đến doanh nghiệp khách hàng sẽ nghĩ ngay đến màu sắc này hoặc ngược lại. Thông thường, màu sắc ngày còn được lựa chọn làm sao cho hợp mệnh với người đứng đầu doanh nghiệp. Ngoài ra, bạn còn phải lựa chọn để kết hợp với các tông màu khác một cách hài hòa, dễ chịu và không gây rối mắt.

6.5 Phù hợp với phong thủy
Đối với các doanh nghiệp làm ăn, phong thủy là yếu tố quan trọng được quan tâm. Để thiết kế nội thất văn phòng đẹp và hợp phong thủy thì cần phải có người am hiểu về các kiến thức phong thủy tư vấn cho bạn.
Hãy chú ý đến cách bố trí các phòng ban, hướng đón sáng để có thể thu hút được tài lộc, giúp công ty làm ăn phát đạt. Tùy vào mỗi ngành nghề, diện tích của văn phòng mà có thể có nhiều cách bố trí khác nhau, linh hoạt để đem đến may mắn và tài lộc.
6.6 Sử dụng chất liệu nội thất phù hợp
Dĩ nhiên, trong thiết kế nội thất văn phòng công ty thì không thể bỏ qua việc lựa chọn chất liệu nội thất cho phù hợp. Tùy vào phong cách mà chủ doanh nghiệp lựa chọn thì sẽ có những chất liệu nội thất phù hợp. Thông thường, hiện nay chất liệu nội thất được sử dụng phổ biến trong việc thiết kế lựa chọn nội thất cho văn phòng là gỗ, kính cường lực, giả da hay đá hoa cương và một số chất liệu khác.
6.7 Phù hợp với diện tích văn phòng
Việc thiết kế và thi công nội thất văn phòng cần phải phù hợp với diện tích của văn phòng. Cho dù bạn chọn phong cách thiết kế nội thất văn phòng hiện đại hay bất cứ phòng cách nào thì cũng phải cân nhắc xem nó có phù hợp với không gian của văn phòng hay không.
Chẳng hạn như, một văn phòng có diện tích lớn với không gian rộng rãi, thoải mái thì có thể chọn những phong cách đột phá, có trang trí cầu kỳ để tạo điểm nhất. Nhưng khi thiết kế văn phòng làm việc vừa phải hoặc văn phòng nhỏ thì, các chi tiết rườm rà cần lược bớt. Hãy chú trọng đến việc tạo ra một không gian thoáng đãng và thoải mái cho mọi người làm việc.
6.8 Xác định phong cách thiết kế nội thất từng phòng ban
Phong cách thiết kế nội thất văn phòng cao cấp, hiện đại hay đột phá, mới mẻ thì cũng cần phù hợp với đặc thù của ngành nghề, công việc. Một doanh nghiệp sẽ có nhiều phòng ban khác nhau. Mỗi phòng ban sẽ có đặc thù công việc khác nhau.
Do đó, mỗi phòng ban sẽ có sự khác biệt về phong cách thiết kế. Chẳng hạn như phòng marketing là nơi cần sự trẻ trung, năng động, phóng khoáng và mang đến sự tươi mới, sáng tạo trong công việc. Nhưng phòng kế toán lại là nơi cần nghiêm túc, khuôn khổ để đảm bảo sự tập trung, chính xác trong khi làm việc.
6.9 Phù hợp với ngân sách đầu tư
Ngân sách đầu tư là yếu tố được nhắc đến cuối cùng. Tuy nhiên, đây lại là yếu tố để quyết định tất cả các lựa chọn của bạn về các loại nội thất, chất liệu và phong cách thiết kế trong văn phòng.

Xem thêm: 300+ Mẫu thiết kế nội thất phòng ngủ đẹp, hiện đại nhất 2025
7. Tiêu chí lựa chọn đơn vị thiết kế thi công nội thất văn phòng uy tín
Trên thị trường hiện nay mọc lên nhiều đơn vị thiết kế thi công nội thất văn phòng khiến cho bạn rất khó để lựa chọn. Bạn không biết dựa vào đâu để có thể lựa chọn được một công ty chuyên nội thất văn phòng uy tín và đáng tin cậy. Sau đây là một số tiêu chí giúp bạn định hình được một công ty chuyên thiết kế nội thất văn phòng uy tín, chất lượng là như thế nào.
7.1 Đơn vị có uy tín, có kinh nghiệm cao
Là một đơn vị có uy tín trên thị trường thì phải có kinh nghiệm cao trong việc tư vấn, thiết kế và bố trí nội thất văn phòng. Do đó, bạn cần lựa chọn những công ty đã có tên tuổi trên thị trường cũng như đã có nhiều năm kinh nghiệm hành nghề.

7.2 Đảm bảo có quy trình thiết kế bài bản
Trước khi đặt bút ký hợp đồng với đơn vị thiết kế và thi công nội thất văn phòng thì bạn cần phải tìm hiểu về quy trình làm việc của họ. Sau đó, bạn hãy đánh giá xem quy trình làm việc đó có chuyên nghiệp, rõ ràng và khoa học hay không. Việc hiểu rõ quy trình làm việc của họ sẽ giúp bạn dễ dàng theo dõi và kiểm soát mọi vấn đề.

7.3 Hợp đồng, điều khoản rõ ràng
Sau đó, bạn hãy đọc và hiểu rõ các điều khoản đã được ghi ra trong hợp đồng. Nó sẽ giúp bạn xem xét có nên tin tưởng để lựa chọn đơn vị thiết kế nội thất văn phòng hay không. Ngoài ra, việc xây dựng các điều khoản hợp đồng cũng giúp bạn đánh giá được một phần về mức độ uy tín của đơn vị mà bạn đang tìm hiểu.
7.4 Đã thực hiện nhiều công trình trước đó
Nếu một đơn vị thiết kế nội thất văn phòng chưa có kinh nghiệm làm việc hoặc chỉ mới qua tay một vài hợp đồng thì hãy cân nhắc bỏ qua. Hãy chọn một đơn vị đã thực hiện nhiều công trình, dự án và các phản hồi của khách hàng cũ. Qua đó, bạn có thể thấy được trình độ của đơn vị thi công, mức độ uy tín của nó. Cuối cùng, bạn hãy xem sản phẩm mà họ đã cung cấp cho khách hàng. Sau đó mới đưa ra quyết định có nên ký hợp đồng hay không.

Xem thêm: 88+ Mẫu thiết kế nội thất chung cư 63m2 đẹp tối ưu chức năng
8. Báo giá thiết kế nội thất văn phòng mới nhất 2026
Đến với Công ty Thiết Kế Nhà 365, bạn sẽ được tư vấn miễn phí 100% về các mẫu nội thất văn phòng đẹp và được giới thiệu những món đồ hữu ích nhất cho việc thi công nội thất.
Giá của việc thiết kế nội thất văn phòng sẽ biến động tùy thuộc diện tích, phong cách, chất liệu nội thất cùng nhiều yếu tố khác. Dưới đây, Công ty Thiết Kế Nhà 365 xin đưa ra báo mới nhất để quý khách tham khảo và ước lượng chi phí. Để nhận tư vấn và bảng giá chính xác nhất cho công trình của mình, quý khách hãy gọi trực tiếp hotline 0906 840 567.

Tham khảo: 25+ Mẫu thiết kế nội thất chung cư 62m2 đẹp tinh tế
9. Đơn vị thiết kế nội thất văn phòng chuyên nghiệp
9.1 Dịch vụ thiết kế nội thất văn phòng của Công Ty Thiết Kế Nhà 365
Công ty Thiết Kế Nhà 365 là một đơn vị chuyên thiết kế nội thất văn phòng mang đến không gian làm việc hiệu quả nhất như:
- Tư vấn thiết kế nội thất văn phòng.
- Thiết kế và thi công nội thất văn phòng trọn gói từ A tới Z với ngân sách và thời gian tối ưu nhất cho quý khách hàng.
- Tiến hành sản xuất các loại đồ gỗ nội thất văn phòng theo bảng vẽ thiết kế đã được yêu cầu.
- Dịch vụ cải tạo, nâng cấp cũng như di dời văn phòng trọn gói.
- Cung cấp mẫu thiết kế nội thất văn phòng từ các thương hiệu nổi tiếng trong nước và nhập khẩu từ các thương hiệu nổi tiếng từ nước ngoài.

9.2 Lợi thế khi thiết kế nội thất văn phòng tại Công Ty Thiết Kế Nhà 365
Công ty Thiết Kế Nhà 365 sẽ thiết kế nội thất văn phòng đẹp nhất và mang lại cho bạn những lợi ích tốt nhất:
- Có tuổi nghề lâu dài với hơn 10 năm kinh nghiệm trong việc thiết kế nội thất cho các văn phòng, xưởng, showroom.
- Có hồ sơ năng lực, đội ngũ nhân viên có trình độ chuyên môn cao với quy trình làm việc chuyên nghiệp.
- Đã từng thực hiện qua hàng trăm dự án lớn nhỏ với nhiều ngành nghề khác nhau.
- Cung cấp dịch vụ thiết kế và thi công nội thất đa dạng, bền chắc, mẫu mã đẹp, tính thẩm mỹ cao.
- Cung cấp dịch vụ thi công nội thất trọn gói cùng với các chính sách hỗ trợ thiết kế, miễn phí thiết kế vô cùng hấp dẫn.
- Xưởng sản xuất nội thất rộng của công ty có quy mô lớn, hệ thống máy móc hiện đại.
Công ty Thiết Kế Nhà 365 sẽ đem tới cho quý khách các mẫu thiết kế nội thất văn phòng đẹp mắt. Bạn có thể rất dễ tìm thấy một đơn vị cung cấp dịch vụ thiết kế nội thất nhưng bạn hãy chắc chắn về chất lượng của đơn vị đó.
Tham khảo: 25+ Mẫu thiết kế nội thất chung cư 64m2 đẹp tối ưu diện tích
10. Các câu hỏi thường gặp (FAQs)
10.1 Xu hướng mẫu thiết kế nội thất văn phòng nào sẽ lên ngôi trong năm 2026?
Trong năm 2026, các mẫu thiết kế nội thất văn phòng sẽ tập trung mạnh vào không gian mở, tối ưu hóa công năng và tích hợp các khu vực đa năng. Đặc biệt, xu hướng thiết kế văn phòng xanh (Biophilic Design) kết hợp với các khu vực tiện ích như Pantry, phòng giải trí đang trở thành tiêu chuẩn mới để tạo ra môi trường làm việc thoải mái và sáng tạo.
10.2 Tại sao doanh nghiệp cần đầu tư vào các mẫu thiết kế nội thất văn phòng chuyên nghiệp?
Việc đầu tư bài bản vào mẫu thiết kế nội thất văn phòng mang lại 4 lợi ích cốt lõi:
Khẳng định giá trị và quy mô thương hiệu trong mắt khách hàng/đối tác.
Thể hiện rõ nét văn hóa đặc trưng của doanh nghiệp.
Cải thiện đáng kể năng suất và cảm hứng làm việc cho nhân viên.
Tạo lợi thế cạnh tranh trong việc thu hút và giữ chân nhân tài.
10.3 Chi phí thiết kế nội thất văn phòng năm 2026 được tính như thế nào?
Báo giá các mẫu thiết kế nội thất văn phòng thường phụ thuộc vào diện tích mặt bằng, phong cách thiết kế (hiện đại, tối giản hay cao cấp) và chủng loại vật liệu sử dụng. Để có mức giá tối ưu nhất, doanh nghiệp nên lựa chọn các đơn vị cung cấp dịch vụ thiết kế và thi công trọn gói để tiết kiệm chi phí và đảm bảo tính đồng bộ cho công trình.
Trên đây là một số thông tin về thiết kế nội thất văn phòng đẹp, đầy đủ chức năng, dễ thực hiện nhất hiện nay. Công ty Thiết Kế Nhà 365 tự tin sẽ giúp bạn có được một văn phòng làm việc đẹp mắt, dễ chịu cho nhân viên làm việc. Để được tư vấn thiết kế nội thất văn phòng cụ thể hơn, hãy liên hệ qua số hotline 0906840567, các nhân viên tư vấn sẽ hỗ trợ bạn nhiệt tình.










