Diện tích 5x16m (80m2) được xem là “tỷ lệ vàng” trong phân lô nhà phố hiện nay. So với nhà ngang 4m, mẫu nhà 1 trệt 1 lầu chiều ngang 5m sâu 16m sở hữu lợi thế rõ rệt về bề ngang, cho phép tổ chức không gian linh hoạt: Dễ bố trí gara ô tô trong nhà, lối đi thoải mái và sắp xếp phòng ngủ tầng trệt phù hợp cho người lớn tuổi.
Trong bài viết này, Thiết Kế Nhà 365 sẽ tổng hợp các mẫu nhà 1 trệt 1 lầu 5x16 đẹp kèm bản vẽ công năng 3 – 4 phòng ngủ, gợi ý giải pháp thông tầng nhà phố 5m và dự toán chi phí xây dựng sát thực tế. Qua đó giúp gia chủ dễ hình dung, so sánh và đưa ra quyết định xây nhà phù hợp cho nhu cầu ở lâu dài.

- 1. Mẫu nhà 1 trệt 1 lầu 5x16m mái bằng hiện đại
- 2. Mẫu nhà 1 trệt 1 lầu 5x16 mái Thái
- 3. Thiết kế nhà 5x16 có gara ô tô
- 4. Mẫu nhà 1 trệt 1 lầu 5x16 có 4 phòng ngủ
- 5. Mẫu nhà có sân vườn & tum
- 6. Bản vẽ mặt bằng nhà 1 trệt 1 lầu 5x16 tối ưu
- 7. Dự toán chi phí xây nhà 1 trệt 1 lầu 80m2
- 8. Kinh nghiệm xây nhà 5x16 tại miền Nam
1. Mẫu nhà 1 trệt 1 lầu 5x16m mái bằng hiện đại
Với mặt tiền ngang 5m, mẫu thiết kế nhà với phong cách nhà mái bằng hiện đại giúp tổng thể công trình gọn gàng nhưng vẫn bề thế, phù hợp với lối sống đô thị. Trên diện tích 5x16m, kiến trúc sư thường khai thác hình khối vuông vức, giật cấp nhẹ theo chiều đứng, kết hợp vật liệu hiện đại như đá ốp, sơn hiệu ứng và hệ cửa kính lớn để mở rộng tầm nhìn, tăng khả năng lấy sáng tự nhiên. Đây cũng là phương án được nhiều gia đình trẻ lựa chọn nhờ chi phí xây dựng hợp lý, dễ kiểm soát và thời gian thi công nhanh.

1.1 Thiết kế nhà 1 trệt 1 lầu 5x16 mặt tiền ốp đá sang trọng
Mặt tiền xử lý bằng các mảng đá ốp khổ lớn hoặc đá nhân tạo tông trung tính, giúp công trình giữ vẻ hiện đại lâu dài và hạn chế bám bẩn. Ban công lầu 1 thiết kế gọn, lan can kính hoặc lam sắt sơn tĩnh điện, tạo cảm giác nhẹ và thoáng cho nhà phố chiều ngang 5m.

1.2 Mẫu nhà phố 5m có giếng trời và lam chắn nắng hướng Tây
Giải pháp giếng trời giữa nhà kết hợp lam chắn nắng mặt tiền giúp cải thiện thông gió và ánh sáng cho toàn bộ không gian sinh hoạt. Đặc biệt với các lô đất hướng Tây, hệ lam đứng hoặc lam bê tông đúc sẵn vừa giảm bức xạ nhiệt, vừa tạo chiều sâu thẩm mỹ cho mặt tiền nhà 1 trệt 1 lầu 5x16.


GÓC NHÌN KTS: Ưu điểm lớn nhất của mẫu nhà mái bằng 5x16 là thi công nhanh, kết cấu gọn và dễ nâng tầng hoặc làm sân thượng sau này. Tuy nhiên, sàn mái bê tông cốt thép cần xử lý chống thấm kỹ bằng Sika hoặc màng khò chuyên dụng, đồng thời nên lát gạch tàu hoặc bổ sung lớp cách nhiệt để hạn chế hấp thụ nhiệt.

Xem thêm: Nhà 1 trệt 1 lầu 5x20 đẹp 2026 – 35+ mẫu kèm mặt bằng & chi phí thực tế
2. Mẫu nhà 1 trệt 1 lầu 5x16 mái Thái
Khác với nhà ngang 4m khi làm mái Thái thường dễ bị cảm giác cao, nhọn và thiếu cân đối, chiều ngang 5m là tỷ lệ lý tưởng để hệ mái Thái chữ A phát huy trọn vẹn vẻ đẹp thanh thoát và bề thế. Trên nền diện tích 5x16m, mái Thái giúp công trình có chiều cao hợp lý, khối mái trải đều theo mặt tiền, tạo cảm giác sang trọng và chỉn chu ngay từ cái nhìn đầu tiên.
Đặc biệt trong điều kiện khí hậu nắng nóng – mưa nhiều của miền Nam, mái dốc giúp thoát nước nhanh, hạn chế thấm dột và mang lại hiệu quả cách nhiệt tốt hơn so với mái bằng.

2.1 Mẫu nhà 1 trệt 1 lầu mái Thái 5x16 Tân Cổ Điển
Thiết kế nhà tân cổ điển tiết chế vừa đủ, tập trung vào tỷ lệ, đường nét và hệ mái thay vì dàn trải chi tiết trang trí. Phào chỉ mảnh, cột vuông hoặc cột tròn đơn giản kết hợp mái ngói màu xanh than hoặc đỏ sẫm tạo tổng thể trang nhã, phù hợp với gia chủ yêu thích vẻ đẹp sang trọng nhưng không phô trương. Với mặt tiền ngang 5m, bố cục kiến trúc giữ sự cân xứng, giúp ngôi nhà vững chãi và đảm bảo tính thẩm mỹ.

2.2 Thiết kế nhà mái Thái chữ L 5x16
Phương án mái Thái chữ L thường áp dụng cho những lô đất cho phép chừa hông kỹ thuật hoặc lối đi phụ. Sảnh phụ bên hông tăng tính tiện dụng trong sinh hoạt, giúp mặt tiền chính thông thoáng. Hệ mái đua vừa phải kết hợp ban công lầu 1 tạo bóng đổ tự nhiên, giảm nắng trực tiếp và làm mềm tổng thể hình khối nhà phố 1 trệt 1 lầu.

Kiến trúc sư Hoàng Đức Thắng chia sẻ: So với mái bằng, mái Thái có chi phí cao hơn khoảng 50 – 80 triệu đồng, do phát sinh hệ khung kèo thép, ngói lợp và nhân công. Khi thiết kế nhà 1 trệt 1 lầu 5x16 mái Thái, cần tính toán kỹ độ đua của mái để đảm bảo thẩm mỹ, che mưa nắng hiệu quả nhưng không lấn sang ranh đất liền kề. Nên lựa chọn màu ngói và tỷ lệ mái phù hợp để công trình giữ sự cân đối, tránh cảm giác nặng nề cho mặt tiền ngang 5m.

Xem thêm: Top 30+ mẫu nhà 1 trệt 1 lầu 4x16 đẹp, tối ưu công năng & chi phí 2026
3. Thiết kế nhà 5x16 có gara ô tô
Sở hữu bề ngang 5m là lợi thế rõ rệt khi thiết kế gara ô tô trong nhà mà vẫn giữ sự thoải mái cho lối đi và không gian sinh hoạt. Trên diện tích 5x16m, kiến trúc sư có thể tổ chức gara song song phòng khách hoặc lùi vào một nhịp, tạo khoảng đệm hợp lý giữa khu để xe và khu ở. Tùy theo cao độ đường trước nhà, gara có thể đặt cùng cốt nền tầng trệt hoặc xử lý bán hầm để tối ưu diện tích sử dụng, giữ cho mặt tiền gọn gàng, cân đối.

3.1 Mẫu nhà 1 trệt 1 lầu có gara song song phòng khách
Với phương án này, gara bố trí ngay tầng trệt, tách nhẹ bằng vách hoặc cao độ sàn để hạn chế mùi và tiếng ồn. Lối vào phòng khách vẫn giữ độ rộng cần thiết, không gây cảm giác chật chội. Cách tổ chức này phù hợp với gia đình sử dụng xe hàng ngày, ưu tiên sự tiện lợi và an toàn trong sinh hoạt.

3.2 Thiết kế nhà ống 5x16 bán hầm để xe
Gara bán hầm là giải pháp hiệu quả khi cao độ đường cao hoặc gia chủ muốn dành trọn tầng trệt cho không gian sinh hoạt. Xe được đưa xuống nửa tầng hầm phía trước, phía trên vẫn đảm bảo phòng khách và bếp thông thoáng. Giải pháp này giúp mặt tiền nhà 1 trệt 1 lầu 5x16 gọn gàng, đồng thời tăng diện tích sử dụng thực tế.

GÓC NHÌN KTS: Khi thiết kế gara cho nhà 5x16, độ dốc ram không nên vượt quá 15% để tránh cạ gầm xe sedan. Trường hợp làm gara bán hầm, bắt buộc phải bố trí rãnh thu nước và hố ga ngay miệng hầm nhằm ngăn nước mưa tràn vào nhà. Ngoài ra, cần chú ý thông gió tự nhiên hoặc quạt hút để gara luôn khô ráo, không ảnh hưởng đến chất lượng không gian sinh hoạt phía trên.

Tham khảo: Thiết kế biệt thự tân cổ điển 3 tầng tại Cà Mau – Chốn về của gia đình, nơi ký ức hội tụ
4. Mẫu nhà 1 trệt 1 lầu 5x16 có 4 phòng ngủ
Đây là lợi thế rõ rệt của diện tích 80m2 (5x16m) khi tổ chức không gian cho gia đình nhiều thế hệ. Nhờ chiều dài 16m, kiến trúc sư có thể bố trí 1 phòng ngủ tại tầng trệt dành cho ông bà hoặc người lớn tuổi, hạn chế việc di chuyển cầu thang, trong khi vẫn giữ phòng khách và bếp ăn đủ rộng, thông thoáng. Trên lầu 1, 3 phòng ngủ còn lại sắp xếp hợp lý cho vợ chồng và con cái, đảm bảo riêng tư nhưng vẫn kết nối sinh hoạt gia đình.

4.1 Thiết kế nhà 1 trệt 1 lầu 5x16m 4 phòng ngủ cho gia đình 3 thế hệ
Ba phòng ngủ trên lầu tổ chức dọc theo hành lang sáng, kết hợp thông tầng hoặc giếng trời để tăng thông gió tự nhiên. Mỗi phòng đảm bảo diện tích sử dụng hợp lý, dễ bố trí nội thất cơ bản mà không gây cảm giác chật chội trên mặt bằng nhà phố ngang 5m.

4.2 Bản vẽ nhà 5x16 có phòng ngủ tầng trệt
Phòng ngủ tầng trệt thường đặt về cuối nhà hoặc lệch sau khu sinh hoạt chung để giảm ồn. Diện tích phòng vừa phải, đủ bố trí giường lớn, tủ áo và WC riêng, thuận tiện cho sinh hoạt dài hạn. Giải pháp này đặc biệt phù hợp với các gia đình có người cao tuổi hoặc cần phòng ngủ dự phòng cho khách.

Tham khảo: Thiết kế 1 trệt 2 lầu 1 sân thượng – Ngôi nhà mang dáng hình ký ức
5. Mẫu nhà có sân vườn & tum
Xu hướng “mang thiên nhiên vào nhà” ngày càng được ưa chuộng trong thiết kế nhà phố 5x16, đặc biệt với các gia đình trẻ đề cao chất lượng sống lâu dài. Trên diện tích 80m2, giải pháp chừa sân trước khoảng 3m, sân sau 1m hoặc bố trí thêm tum (chuồng cu) giúp ngôi nhà có thêm khoảng xanh và không gian thư giãn ngoài trời.
Những khoảng đệm này không chỉ phục vụ trồng cây, rau sạch mà còn đóng vai trò tạo lớp cách nhiệt tự nhiên, giảm bức xạ nhiệt và cải thiện vi khí hậu cho toàn bộ công trình.


5.1 Nhà 1 trệt 1 lầu 1 tum 5x16 có sân thượng BBQ
Sân thượng trên tum thiết kế như một không gian sinh hoạt mở, phù hợp cho các buổi ăn uống cuối tuần hoặc thư giãn buổi tối. Cây xanh trồng theo mảng, kết hợp giàn pergola, sàn gỗ ngoài trời hoặc gạch chống trượt giúp khu vực này an toàn, thẩm mỹ. Với nhà 1 trệt 1 lầu 5x16, tum mở rộng diện tích sử dụng, giúp tổng thể kiến trúc thông thoáng hơn, cân bằng giữa không gian ở và thiên nhiên.

Xem thêm: Thiết kế nhà phố 3 tầng – Vẻ đẹp của sự tinh gọn
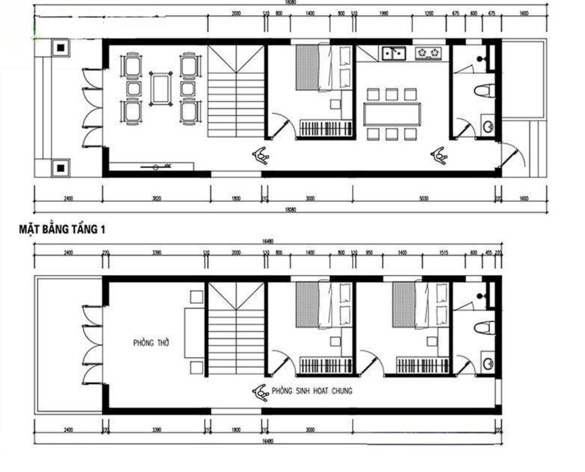
6. Bản vẽ mặt bằng nhà 1 trệt 1 lầu 5x16 tối ưu
Việc phân chia công năng trên diện tích sàn 80m2 (5x16m) cần tính toán chặt chẽ để vừa đảm bảo thông thoáng, thuận tiện sinh hoạt, vừa đáp ứng yếu tố phong thủy cho nhà phố ngang 5m. Dưới đây là phương án layout 2D được nhiều gia chủ tại TP.HCM lựa chọn cho gia đình 4 – 6 thành viên, ưu tiên luồng giao thông mạch lạc, ánh sáng tự nhiên và khả năng sử dụng lâu dài.

6.1 Bản vẽ tầng trệt
Tầng trệt chừa sân trước làm nơi để xe máy hoặc gara ô tô, tạo khoảng đệm giảm ồn và bụi từ đường phố. Phòng khách bố trí ngay sau cửa chính, liên thông bếp – ăn theo trục dọc giúp không gian rộng và thoáng. Phòng ngủ tầng trệt đặt về cuối nhà, phù hợp cho người lớn tuổi hoặc làm phòng ngủ dự phòng, WC chung bố trí gọn, dễ tiếp cận nhưng không đối diện trực tiếp bếp hay cửa chính.

6.2 Bản vẽ lầu 1
Lầu 1 là khu vực nghỉ ngơi chính của gia đình. Ban công phía trước giúp lấy sáng và thông gió cho hành lang. 2 – 3 phòng ngủ sắp xếp dọc theo chiều dài nhà, đảm bảo riêng tư và đủ diện tích kê nội thất. Phòng thờ thường đặt phía trước, hướng ra ban công để đón sáng sớm, giữ sự trang nghiêm mà không ảnh hưởng sinh hoạt chung.

Tham khảo: Thiết kế nhà phố 1 trệt 2 lầu ở Bình Tân – Ấm áp cho con, bình yên cho mẹ
7. Dự toán chi phí xây nhà 1 trệt 1 lầu 80m2
Đơn giá xây dựng tại khu vực miền Nam năm 2026 có biến động theo giá vật tư và điều kiện nền đất từng khu vực. Để gia chủ dễ hình dung ngân sách, Thiết Kế Nhà 365 đưa ra dự toán theo phương pháp diện tích sàn quy đổi (tính đủ các hạng mục móng – sàn – mái), phù hợp với hình thức xây nhà trọn gói chìa khóa trao tay.
Lưu ý, chi phí thực tế còn phụ thuộc mức hoàn thiện (vật liệu khá/tốt), số lượng WC, có gara/bán hầm hay không và kết cấu móng băng/móng cọc nhà 1 trệt 1 lầu 5x16m2.
Để có con số chính xác ngay từ đầu, gia chủ nên tham khảo chi phí thiết kế nhà phố theo từng gói dịch vụ và quy mô công trình.

Bảng tính tổng diện tích sàn quy đổi cho nhà 1 trệt 1 lầu 5x16m, diện tích xây dựng 80m2:
Hạng mục | Hệ số quy đổi | Diện tích quy đổi |
Móng cọc | 50% | 40m2 |
Tầng trệt | 100% | 80m2 |
Lầu 1 | 100% | 84m2 (tính cả ban công) |
Mái BTCT | 50% | 40m2 |
Tổng diện tích sàn quy đổi: 244m2 | ||
Dựa theo đơn giá xây nhà trọn gói – chìa khóa trao tay, dự toán chi phí xây nhà 1 trệt 1 lầu 5x16m như sau:
Gói | Đơn giá (VNĐ/m2) | Tổng chi phí ước tính (VNĐ) |
Trung bình | 5.000.000 – 5.600.000 | 1.220.000.000 – 1.366.400.000 |
Khá | 5.700.000 – 6.100.000 | 1.390.800.000 – 1.488.400.000 |
Cao cấp | 6.200.000 – 7.100.000 | 1.512.800.000 – 1.732.400.000 |
Xem thêm: Thiết kế nhà phố 2 tầng – Không gian đương đại dẫn lối cảm xúc
8. Kinh nghiệm xây nhà 5x16 tại miền Nam
Với đặc thù nhà phố ngang 5m, sâu 16m và điều kiện khí hậu nóng ẩm, mưa nhiều, việc chuẩn bị kỹ ngay từ khâu nền móng đến hoàn thiện sẽ giúp công trình vận hành ổn định và bền vững theo thời gian.
- Xử lý nền đất: Tại nhiều khu vực miền Nam, đặc biệt là vùng ven TP.HCM, Bình Dương, Long An, nền đất yếu khá phổ biến. Trước khi xây nhà 1 trệt 1 lầu 5x16, nên khảo sát địa chất để xác định phương án móng băng hay móng cọc. Trường hợp đất yếu, việc ép cọc là cần thiết để tránh lún nứt về sau, dù chi phí ban đầu có tăng nhưng đổi lại là sự an tâm lâu dài.
- Vật liệu mặt tiền ngang 5m: Mặt tiền nhà phố 5m dễ lộ nhược điểm nếu chọn vật liệu không phù hợp. Nên ưu tiên đá ong xám, gạch Inax, sơn hiệu ứng giả bê tông hoặc các vật liệu ít bám bẩn, giữ màu tốt. Tránh sử dụng gạch men thông thường để ốp mặt tiền vì dễ tạo cảm giác nặng nề, kém sang và nhanh lỗi thời.
- Phong thủy trong nhà 5x16: Với nhà ngang 5m, hướng bếp nên tránh đối diện trực tiếp cửa chính hoặc WC, ưu tiên đặt về cuối nhà, thông thoáng nhờ giếng trời. Bàn thờ thường bố trí tại lầu 1, hướng ra ban công hoặc không gian yên tĩnh, đảm bảo sự trang nghiêm mà không ảnh hưởng sinh hoạt chung. Cách tổ chức này giúp ngôi nhà hài hòa giữa công năng, thẩm mỹ và phong thủy khi sử dụng lâu dài.

Tham khảo: Dự án thiết kế nhà phố 1 trệt 1 lầu ở Thuận An- Bình Dương do đội ngũ KTS chúng tôi thực hiện.
Với bề ngang 5m, diện tích sàn sử dụng 160m2, gia chủ hoàn toàn có thể lựa chọn mẫu nhà 1 trệt 1 lầu 5x16 phù hợp nhu cầu thực tế. Điều quan trọng là tránh áp dụng những bản vẽ rập khuôn, tập trung tính toán kỹ công năng, ánh sáng, thông gió và chi phí để ngôi nhà vận hành bền vững. Thay vì áp dụng bản vẽ rập khuôn, gia chủ nên lựa chọn dịch vụ thiết kế nhà theo yêu cầu để đảm bảo công năng, thẩm mỹ và chi phí phù hợp với nhu cầu sử dụng lâu dài
Liên hệ ngay Zalo 0906 840 567 để nhận tư vấn kiến trúc – phong thủy miễn phí từ đội ngũ kiến trúc sư của Thiết Kế Nhà 365.










