Biệt thự nhà vườn cấp 4 là xu hướng thiết kế biệt thự phổ biến hàng đầu tại Việt Nam. Các mẫu biệt thự vườn cấp 4 thể hiện sự tinh tế và tiện nghi kết hợp hoàn hảo với không gian xanh mát. Trong bài viết này, hãy cùng Thiết Kế Nhà 365 khám phá 20+ mẫu biệt thự nhà vườn cấp 4 đẹp, sang trọng 2025.

- 1. Biệt thự nhà vườn cấp 4 – Khái niệm và đặc trưng nổi bật
- 2. Ưu và nhược điểm khi xây biệt thự nhà vườn cấp 4
- 3. Bản vẽ chi tiết công năng nhà biệt thự vườn cấp 4
-
4. Top 20+ mẫu biệt thự nhà vườn cấp 4 đẹp, sang trọng 2025
- 4.1. Nhà biệt thự vườn cấp 4 mái Nhật sang trọng
- 4.2. Biệt thự nhà vườn cấp 4 hiện đại, sang trọng
- 4.3. Mẫu biệt thự nhà vườn cấp 4 đẹp, đơn giản
- 4.4. Mẫu biệt thự cấp 4 nhà vườn mái Thái sang trọng
- 4.5. Mẫu nhà biệt thự vườn cấp 4 mái xám đẳng cấp
- 4.6. Biệt thự nhà vườn cấp 4 hiện đại tại Long An
- 4.7. Mẫu biệt thự cấp 4 có sân vườn và mái ngói đỏ
- 4.8. Mẫu biệt thự cấp 4 sân vườn phong cách tân cổ điển
- 4.9. Mẫu biệt thự vườn cấp 4 có khu bàn trà
- 4.10. Mẫu biệt thự cấp 4 dạng chữ L có sân vườn
- 4.11. Mẫu biệt thự vườn nhỏ, đẹp vùng nông thôn
- 4.12. Mẫu biệt thự vườn cấp 4 mái bằng hiện đại
- 4.13. Mẫu biệt thự nhà vườn cấp 4 mái Nhật ngói xanh
- 4.14. Mẫu biệt thự vườn cấp 4 có 4 phòng ngủ
- 4.15. Mẫu biệt thự nhà vườn cấp 4 có sân thượng
- 4.16. Mẫu biệt thự cấp 4 sân vườn với mái xiên ấn tượng
- 4.17. Mẫu biệt thự nhà vườn cấp 4 phong cách truyền thống xưa
- 4.18. Mẫu biệt thự nhà vườn cấp 4 có hầm xe hơi
- Mẫu nhà vườn biệt thự cấp 4 có sân vườn
- 4.19. Mẫu nhà vườn biệt thự cấp 4 có sân vườn
- 4.20. Mẫu biệt thự nhà vườn cấp 4 phong cách Tropical
- 5. Lưu ý khi xây dựng nhà vườn cấp 4
- 6. Thiết Kế Nhà 365 – đơn vị xây dựng biệt thự nhà vườn cấp 4 uy tín TP.HCM
1. Biệt thự nhà vườn cấp 4 – Khái niệm và đặc trưng nổi bật
Biệt thự nhà vườn cấp 4 là mẫu nhà 1 tầng kết hợp sân vườn rộng rãi, mang đến không gian sống tiện nghi và gần gũi với thiên nhiên. Đây là lựa chọn lý tưởng cho gia đình mong muốn cuộc sống yên bình, thoải mái.
Một số đặc trưng nổi bật có thể kể đến:
- Diện tích rộng: Thường xây dựng trên khu đất lớn, dễ dàng bố trí công năng.
- Không gian xanh: Vườn cây, tiểu cảnh, hồ nước tạo sự thư thái.
- Kiến trúc đa dạng: Từ phong cách hiện đại, tối giản đến tân cổ điển sang trọng.
- Đảm bảo riêng tư: Cách biệt với xung quanh, mang lại sự yên tĩnh.
- Màu sắc phong phú: Linh hoạt theo sở thích và cá tính gia chủ.
- Kết nối thiên nhiên: Cửa kính, sân vườn và khoảng mở giúp không gian trong – ngoài hài hòa.

Tham khảo: 66+ Mẫu biệt thự 1 tầng kiểu Pháp đẹp ngất ngây cuốn hút người xem
2. Ưu và nhược điểm khi xây biệt thự nhà vườn cấp 4
Biệt thự nhà vườn cấp 4 được nhiều gia đình lựa chọn nhờ sự hài hòa giữa thiết kế xanh và kiến trúc tiện nghi. Tuy nhiên, trước khi quyết định xây dựng, gia chủ nên cân nhắc cả ưu điểm và hạn chế để đưa ra lựa chọn phù hợp.
2.1. Ưu điểm của biệt thự nhà vườn cấp 4
- Thẩm mỹ cao: Kiến trúc đơn giản kết hợp không gian xanh tạo vẻ đẹp hài hòa, sang trọng, gần gũi thiên nhiên.
- Không gian thoáng đãng: Sân vườn rộng, thiết kế mở mang đến môi trường sống trong lành, tránh xa sự ồn ào đô thị.
- Chi phí hợp lý: Kết cấu đơn giản, ít tầng giúp tiết kiệm chi phí xây dựng, nguyên vật liệu và nhân công.
- Dễ bảo trì: Thiết kế gọn gàng, không quá phức tạp nên việc sửa chữa, bảo dưỡng nhanh chóng và ít tốn kém.
- Đa dạng phong cách: Có thể thiết kế hiện đại, cổ điển hay tối giản tùy sở thích và ngân sách của gia chủ.

2.2. Nhược điểm của biệt thự nhà vườn cấp 4
- Yêu cầu diện tích đất lớn: Cần khu đất rộng mới phát huy hết giá trị, khó áp dụng tại nơi đất chật hẹp.
- Không tối ưu ở đô thị: Với đất nhỏ trong thành phố, kiểu nhà này khó thiết kế hiệu quả.
- Khả năng mở rộng hạn chế: Chủ yếu xây một tầng, khó nâng thêm khi gia đình cần không gian lớn hơn.
- Hạn chế về riêng tư: Các phòng cùng trên một mặt bằng nên đôi khi khó đảm bảo sự riêng tư cho gia đình đông thành viên.

2.3. Vì sao biệt thự nhà vườn cấp 4 được ưa chuộng?
- Không gian trong lành: Cây xanh, tiểu cảnh, sân vườn bao quanh tạo bầu không khí tươi mát, gần gũi thiên nhiên.
- Nơi sinh hoạt, giải trí lý tưởng: Sân vườn thích hợp cho tiệc ngoài trời, tụ họp cuối tuần, tăng sự gắn kết gia đình.
- Chi phí xây dựng hợp lý: Thiết kế đơn giản, ít hạng mục phức tạp, giúp tiết kiệm đáng kể nhân công và vật liệu.
- Phong cách đa dạng: Có thể lựa chọn từ biệt thự hiện đại, cổ điển đến tối giản; kiến trúc sư hỗ trợ bản vẽ 3D chi tiết, dễ dàng hiện thực hóa ý tưởng.

Xem thêm: Thiết kế biệt thự 3 tầng phong cách Đông Dương 17x11m cho chị Ninh ở quận 11
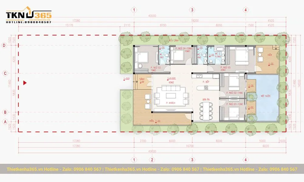
3. Bản vẽ chi tiết công năng nhà biệt thự vườn cấp 4
3.1. Biệt thự vườn cấp 4 có 5 phòng ngủ
Biệt thự vườn cấp 4 với 5 phòng ngủ mang đến không gian sống rộng rãi và tiện ích.
- Phòng ngủ: mỗi phòng đều được thiết kế tối ưu sự thoải mái và riêng tư.
- Khu vực chung: phòng khách, bếp, khu giải trí bố trí hợp lý, tạo không gian sinh hoạt linh hoạt cho cả gia đình.
- Không gian xanh: ngôi nhà được bao quanh bởi cây cối, mang lại sự thoáng mát và thư giãn.

3.2. Biệt thự vườn cấp 4 có 2 phòng ngủ
Biệt thự vườn cấp 4 với 2 phòng ngủ và sân vườn rộng là lựa chọn lý tưởng cho gia đình nhỏ yêu thích sự thoải mái và gắn kết thiên nhiên.
- Phòng ngủ: thiết kế đẹp mắt, tiện nghi, đảm bảo sự riêng tư cho từng thành viên.
- Sân vườn lớn: không gian xanh mát, thích hợp thư giãn, vui chơi và tổ chức các hoạt động ngoài trời.
- Trải nghiệm sống: kết hợp tiện nghi hiện đại với bầu không khí trong lành, mang lại cảm giác yên bình mỗi ngày.

Xem thêm: Thiết kế biệt thự 2 tầng sân vườn 11x14m cho anh Nghĩa ở Gò Vấp
4. Top 20+ mẫu biệt thự nhà vườn cấp 4 đẹp, sang trọng 2025
4.1. Nhà biệt thự vườn cấp 4 mái Nhật sang trọng
Biệt thự vườn cấp 4 mái Nhật kết hợp hài hòa giữa phong cách hiện đại và nét truyền thống tinh tế của kiến trúc Nhật Bản.
- Thiết kế sân rộng: mang lại sự thoáng đãng, thoải mái cho không gian sống.
- Hệ thống cửa kính lớn: giúp ngôi nhà đón gió, ánh sáng tự nhiên và kết nối với cảnh quan xung quanh.
- Không gian xanh: cây cảnh, hàng rào bố trí hợp lý, tạo cảm giác mát mẻ và gần gũi với thiên nhiên.

4.2. Biệt thự nhà vườn cấp 4 hiện đại, sang trọng
Mẫu biệt thự vườn cấp 4 hiện đại mang đến không gian sống tiện nghi, đẳng cấp và gần gũi thiên nhiên.
- Thiết kế đương đại: đường nét tinh tế, không gian mở thoáng đãng, kết nối hài hòa với sân vườn.
- Tiện ích cao cấp: bố trí tiện nghi đầy đủ, mang lại sự thoải mái tối đa cho gia đình.
- Vật liệu chất lượng: sử dụng vật liệu cao cấp, chú trọng từng chi tiết, tạo vẻ đẹp độc đáo và sang trọng.

4.3. Mẫu biệt thự nhà vườn cấp 4 đẹp, đơn giản
Biệt thự vườn cấp 4 đơn giản mang đến sự hài hòa giữa thiên nhiên và phong cách tối giản.
- Thiết kế tối giản: đường nét tinh tế, không gian mở, đón ánh sáng tự nhiên.
- Vật liệu tự nhiên: sử dụng gỗ, đá, màu sắc nhẹ nhàng, tạo cảm giác thanh lịch.
- Trải nghiệm yên bình: không gian sống gần gũi, thoải mái, phản ánh nét thanh bình của cuộc sống đồng quê.

4.4. Mẫu biệt thự cấp 4 nhà vườn mái Thái sang trọng
Biệt thự nhà vườn mái Thái là sự kết hợp hài hòa giữa truyền thống và hiện đại, mang đến không gian sống đẳng cấp.
- Thiết kế mái chóp cao: tạo sự bề thế, thoáng mát và chống nóng hiệu quả.
- Chi tiết tinh tế: gạch hoa và đường nét trang trí mang lại vẻ đẹp gần gũi, sang trọng.
- Không gian xanh: sân vườn rộng rãi với hoa và cây xanh, tạo cảm giác thư giãn, thoải mái.
- Trải nghiệm sống lý tưởng: tiện nghi đầy đủ, phù hợp gia đình yêu thích sự sang trọng và yên bình.

4.5. Mẫu nhà biệt thự vườn cấp 4 mái xám đẳng cấp
Biệt thự nhà vườn mái xám mang phong cách đương đại, tinh tế và sang trọng.
- Thiết kế mái xám độc đáo: tạo điểm nhấn hiện đại, quyến rũ và khác biệt.
- Bố cục chữ L: ngôi nhà chia thành 3 dãy liên kết, tối ưu không gian và công năng.
- Không gian xanh bao quanh: cây cối, sân vườn hài hòa, mang lại sự thoải mái.
- Tiện nghi hiện đại: kết hợp đầy đủ tiện ích, mang đến trải nghiệm sống sang trọng.

4.6. Biệt thự nhà vườn cấp 4 hiện đại tại Long An
Mẫu biệt thự của anh Hòa (Long An) do Kiến trúc sư Thiết Kế Nhà 365 thực hiện, chú trọng sự tinh tế và tiện nghi trong từng chi tiết.
- Kiến trúc đơn giản, thẩm mỹ: không gian mở, gần gũi thiên nhiên.
- Vật liệu tự nhiên: kết hợp màu sắc trung tính, tạo cảm giác thanh lịch, sang trọng.
- Phong cách hiện đại: phản ánh lối sống đẳng cấp, tiện nghi và hài hòa.

4.7. Mẫu biệt thự cấp 4 có sân vườn và mái ngói đỏ
Biệt thự vườn cấp 4 mái ngói đỏ mang vẻ đẹp truyền thống, ấm áp và gần gũi.
- Điểm nhấn mái đỏ: kiến trúc quen thuộc, gợi cảm giác bình yên và ổn định.
- Kết hợp dân dã – hiện đại: vừa giữ nét truyền thống, vừa đảm bảo tiện nghi sang trọng.
- Không gian sống hài hòa: sân vườn xanh mát kết hợp kiến trúc mái đỏ, tạo nên sự cân bằng và phong cách.

4.8. Mẫu biệt thự cấp 4 sân vườn phong cách tân cổ điển
Biệt thự vườn cấp 4 tân cổ điển mang đến không gian sống sang trọng, đẳng cấp và đầy tính nghệ thuật.
- Phong cách kiến trúc: kết hợp hài hòa giữa vẻ đẹp cổ điển và sự tiện nghi hiện đại.
- Đường nét tinh tế: hoa văn mềm mại, chi tiết trang trí tinh xảo, tạo điểm nhấn thẩm mỹ.
- Vật liệu cao cấp: lựa chọn bền đẹp, mang lại sự lịch lãm và ấm áp cho không gian sống.

4.9. Mẫu biệt thự vườn cấp 4 có khu bàn trà
Biệt thự vườn cấp 4 với khu bàn trà là lựa chọn lý tưởng cho những ai yêu thích sự thư giãn và gần gũi thiên nhiên.
- Không gian bàn trà: nơi thưởng thức, chiêm nghiệm cuộc sống và tận hưởng không khí trong lành.
- Thiết kế đơn giản – hiện đại: gọn gàng, tiện nghi nhưng vẫn giữ nét tinh tế.
- Vườn xanh mát: cây cối phủ bóng, mang đến sự thoáng mát và thoải mái cho cả gia đình.

4.10. Mẫu biệt thự cấp 4 dạng chữ L có sân vườn
Biệt thự vườn cấp 4 chữ L mang đến không gian sống độc đáo, thoáng đãng và hiện đại.
- Thiết kế chữ L: bố trí phòng và khu sinh hoạt hợp lý, tận dụng tối đa diện tích đất.
- Không gian mở: tạo sự rộng rãi, đón ánh sáng và gió tự nhiên.
- Kết nối thiên nhiên: sân vườn bao quanh mang đến cảm giác thơ mộng, gần gũi và thư giãn.

4.11. Mẫu biệt thự vườn nhỏ, đẹp vùng nông thôn
Biệt thự vườn cấp 4 ở nông thôn mang vẻ đẹp mộc mạc, tiện nghi và gần gũi.
- Thiết kế tối giản: đường nét gọn gàng nhưng vẫn giữ sự sang trọng tinh tế.
- Bố trí hợp lý: các phòng sắp xếp khoa học, đáp ứng đầy đủ nhu cầu sinh hoạt.
- Không gian sống ấm cúng: hiện đại nhưng vẫn giữ được sự yên bình và gần gũi với làng quê.

4.12. Mẫu biệt thự vườn cấp 4 mái bằng hiện đại
Biệt thự vườn cấp 4 mái bằng mang đến không gian sống đẳng cấp, tiện nghi và gần gũi thiên nhiên.
- Kiến trúc tối giản: đường nét hiện đại, tinh gọn nhưng vẫn sang trọng.
- Vật liệu công nghệ cao: kết hợp hài hòa với sân vườn xanh mát, tạo sự bền vững và thẩm mỹ.
- Thiết kế mái bằng: thông thoáng, tạo cảm giác mở rộng, phản ánh phong cách sống hiện đại và đẳng cấp.

4.13. Mẫu biệt thự nhà vườn cấp 4 mái Nhật ngói xanh
Biệt thự vườn cấp 4 mái Nhật ngói xanh mang nét sang trọng, tinh tế và đầy cuốn hút.
- Phong cách tân cổ điển: kết hợp hài hòa giữa vẻ đẹp truyền thống và sự hiện đại.
- Mái ngói xanh độc đáo: tạo điểm nhấn sang trọng, khác biệt cho tổng thể kiến trúc.
- Không gian Nhật Bản: thiết kế mở, thoáng đãng, mang lại sự yên bình và tiện nghi cho gia đình.

4.14. Mẫu biệt thự vườn cấp 4 có 4 phòng ngủ
Biệt thự vườn cấp 4 với 4 phòng ngủ phù hợp cho gia đình đông thành viên từ 4–6 người.
- Thiết kế thông minh: tận dụng tối đa diện tích, tạo không gian sống rộng rãi và thoáng mát.
- Chi tiết tỉ mỉ: kiến trúc được chăm chút kỹ lưỡng, mang lại sự tinh tế.
- Vật liệu cao cấp: đảm bảo độ bền và tính thẩm mỹ lâu dài.
- Nội thất hiện đại: đáp ứng nhu cầu sinh hoạt tiện nghi của mọi thành viên trong gia đình.

4.15. Mẫu biệt thự nhà vườn cấp 4 có sân thượng
Biệt thự vườn cấp 4 có sân thượng mang đến không gian sống tiện nghi và gắn kết thiên nhiên.
- Điểm nhấn sân thượng: nơi lý tưởng để thư giãn, ngắm cảnh và tận hưởng không khí trong lành.
- Thiết kế tinh tế: kiến trúc hài hòa, chú trọng từng chi tiết để tạo nên sự sang trọng.
- Không gian xanh: kết hợp cây cối, cảnh quan xung quanh, mang lại cảm giác thoải mái cho cả gia đình.
- Trải nghiệm sống phong phú: vừa đơn giản, gần gũi, vừa tiện nghi, đáp ứng nhu cầu nghỉ ngơi và sinh hoạt.

4.16. Mẫu biệt thự cấp 4 sân vườn với mái xiên ấn tượng
Biệt thự vườn cấp 4 mái xiên mang vẻ đẹp hiện đại, độc đáo và đậm tính sáng tạo.
- Thiết kế mái xiên: khác biệt so với mái bằng thông thường, tạo điểm nhấn phá cách.
- Kiến trúc độc đáo: đường nét hiện đại, tạo nên vẻ đẹp ấn tượng và sang trọng.
- Không gian xanh mát: kết hợp hài hòa với sân vườn, mang lại sự thoáng đãng và gần gũi thiên nhiên.
- Điểm nhấn nổi bật: trở thành công trình kiến trúc nổi bật trong khu vực, khẳng định đẳng cấp của gia chủ.

4.17. Mẫu biệt thự nhà vườn cấp 4 phong cách truyền thống xưa
Biệt thự vườn cấp 4 phong cách truyền thống gợi nhớ nét văn hóa Việt xưa, bình dị và gần gũi.
- Kiến trúc mái ngói, cửa gỗ: giữ trọn bản sắc dân tộc và vẻ đẹp cổ truyền.
- Sân vườn rộng lớn: không gian thoáng đãng, hòa mình với thiên nhiên.
- Không gian yên bình: mang lại sự thư thái, tĩnh lặng giữa nhịp sống hiện đại.
- Kết hợp tiện nghi hiện đại: vừa giữ nét truyền thống, vừa đáp ứng nhu cầu sống sang trọng, tiện ích.

4.18. Mẫu biệt thự nhà vườn cấp 4 có hầm xe hơi
Biệt thự vườn cấp 4 có hầm xe hơi mang đến sự tiện lợi và hiện đại, phù hợp gia đình có nhiều phương tiện.
- Tiện ích hầm xe: giúp tối ưu diện tích, đặc biệt tại khu vực đông dân cư.
- Kiến trúc tối giản – hiện đại: đường nét gọn gàng, mang đến vẻ đẹp thanh thoát.
- Màu sắc trung tính: sử dụng tone be, xám, tạo cảm giác sang trọng và nhẹ nhàng.
- Cửa kính bo tròn: thiết kế độc đáo, đón sáng tự nhiên, tăng tính thẩm mỹ cho ngôi nhà.

Mẫu nhà vườn biệt thự cấp 4 có sân vườn
Mẫu nhà vườn biệt thự cấp 4 có sân vườn không còn quá xa lạ với nhiều người. Đây là mẫu nhà vừa đáp ứng được công năng sử dụng, đầy đủ tiện nghi vừa có sân vườn rộng thoáng, nhiều cây xanh, bể bơi để gia đình nghỉ ngơi, thư giãn. Lối kiến trúc hiện đại, sử dụng nhiều hệ cửa kính giúp nhà ở luôn thoáng mát, đầy đủ ánh sáng và tạo không gian mở vô cùng thoải mái.
4.19. Mẫu nhà vườn biệt thự cấp 4 có sân vườn
Biệt thự vườn cấp 4 có sân vườn là lựa chọn phổ biến nhờ không gian sống tiện nghi và gần gũi thiên nhiên.
- Công năng đầy đủ: đáp ứng nhu cầu sinh hoạt, tiện nghi cho cả gia đình.
- Sân vườn rộng thoáng: nhiều cây xanh, có thể bố trí thêm bể bơi để nghỉ ngơi, thư giãn.
- Kiến trúc hiện đại: sử dụng hệ cửa kính lớn, giúp không gian luôn thoáng mát và tràn ngập ánh sáng.
- Không gian mở: kết nối trong – ngoài, mang lại cảm giác thoải mái và thư thái.

4.20. Mẫu biệt thự nhà vườn cấp 4 phong cách Tropical
Biệt thự vườn cấp 4 phong cách Tropical mang đến vẻ đẹp thân thiện, gần gũi với thiên nhiên.
- Kiến trúc tối giản: đường nét gọn gàng, tinh tế, chú trọng không gian mở.
- Tone màu chủ đạo: màu trắng nhẹ nhàng, kết hợp vật liệu tự nhiên như gỗ, tre tạo cảm giác ấm cúng.
- Sân vườn xanh mát: bố trí mảng xanh, cây cảnh tỉ mỉ, là nơi thư giãn và nghỉ ngơi cho cả gia đình.
- Không gian gần gũi thiên nhiên: giúp gia chủ tận hưởng trọn vẹn sự thoải mái và thư thái mỗi ngày.

Tham khảo: Thiết kế biệt thự 2 tầng nhà vườn 16x12m cho anh Tí ở quận 6
5. Lưu ý khi xây dựng nhà vườn cấp 4
Để sở hữu một ngôi nhà vườn cấp 4 đẹp, hiện đại và tối ưu cả chi phí lẫn không gian sống, chủ đầu tư cần chú trọng đến một số yếu tố quan trọng dưới đây:
5.1. Lựa chọn phong cách
Xác định phong cách thiết kế ngay từ đầu là bước quan trọng để có ngôi nhà đúng với mong muốn và ngân sách.
- Đa dạng phong cách: có thể chọn hiện đại, cổ điển hoặc tân cổ điển tùy sở thích.
- Kiểu dáng phổ biến: mái Thái, mái Nhật, mái bằng, chữ L hay gác lửng.
- Cân đối tài chính: tham khảo nhiều mẫu thiết kế để chọn phương án phù hợp với điều kiện kinh tế và nhu cầu gia đình.

5.2. Lưu ý vấn đề phong thủy
Phong thủy nhà ở đóng vai trò quan trọng trong việc xây dựng biệt thự vườn cấp 4, giúp mang lại tài lộc, sức khỏe và sự bình an cho gia đình.
- Hướng nhà – hướng bếp: chọn hướng hợp tuổi, hợp mệnh để đón vượng khí.
- Màu sắc: sử dụng gam màu phù hợp ngũ hành, tạo sự cân bằng năng lượng.
- Ngày giờ động thổ: xem xét kỹ lưỡng, nên chọn ngày giờ tốt theo tuổi của gia chủ.
- Tư vấn chuyên gia: tham khảo thêm kiến trúc sư hoặc chuyên gia phong thủy để đảm bảo sự hài hòa tổng thể.

5.3. Bài trí không gian sân vườn
Sân vườn là điểm nhấn quan trọng của biệt thự vườn cấp 4, góp phần tạo vẻ đẹp tổng thể và sự thư thái cho không gian sống.
- Sắp xếp hợp lý: bố trí lối đi, tiểu cảnh, hồ nước, khu thư giãn hài hòa với kiến trúc ngôi nhà.
- Tính thẩm mỹ và công năng: vừa đảm bảo cảnh quan đẹp mắt, vừa mang lại sự tiện lợi khi sử dụng.
- Thiết kế khoa học: dễ dàng chăm sóc, duy trì và giữ được sự xanh mát lâu dài.

Tham khảo: Thiết kế biệt thự 2 tầng phong cách nhà vườn 17x24m cho anh Đức ở quận Thủ Đức
6. Thiết Kế Nhà 365 – đơn vị xây dựng biệt thự nhà vườn cấp 4 uy tín TP.HCM
Thiết Kế Nhà 365 là đơn vị thiết kế thi công biệt thự uy tín tại TP.HCM, chuyên thiết kế biệt thự nhà vườn đẳng cấp và sang trọng. Với đội ngũ kiến trúc sư và kỹ sư giàu kinh nghiệm, chúng tôi cam kết mang đến cho khách hàng những công trình chất lượng và đẹp mắt nhất. Dưới đây là các ưu điểm nổi bật của Thiết Kế Nhà 365:
- Chuyên nghiệp: Đội ngũ nhân viên và kỹ sư của chúng tôi giàu kinh nghiệm, chuyên môn cao, luôn đặt sự hài lòng của khách hàng lên hàng đầu.
- Sáng tạo: Sự sáng tạo và linh hoạt trong thiết kế, đảm bảo mỗi công trình mang dấu ấn riêng và độc đáo.
- Chất lượng: Chúng tôi cam kết sử dụng vật liệu xây dựng chất lượng cao, đảm bảo tính bền vững và đẳng cấp của công trình.
- Tiện ích: Thiết kế không chỉ tập trung vào vẻ đẹp mà còn đảm bảo tính tiện ích và sự thoải mái cho cư dân.
- Tận tâm: Luôn lắng nghe và đồng hành cùng khách hàng từ khâu tư vấn đến hoàn thiện công trình, đảm bảo mọi yêu cầu được thực hiện tốt nhất.

Trên đây là tổng hợp Top 20+ mẫu biệt thự nhà vườn cấp 4 đẹp, sang trọng 2025. Sự kết hợp hoàn hảo giữa kiến trúc và thiên nhiên, đem lại không gian sống lý tưởng cho những ai đang tìm kiếm sự đẳng cấp, tiện nghi. Để sở hữu những mẫu biệt thự theo phong cách cá nhân của bạn, hãy liên hệ với công ty thiết kế thi công biệt thự – Thiết Kế Nhà 365 theo hotline: 0906 840 567!










