Sở hữu quỹ đất 80m2, nhiều gia chủ băn khoăn giữa xây nhà phố thông thường hay biệt thự mini 2 tầng để có không gian sống chỉn chu và giá trị hơn. Thực tế, với tổng diện tích sàn khoảng 160m2, nếu tổ chức hình khối khoa học, bố trí mặt bằng công năng hợp lý và khai thác tốt thông gió – lấy sáng tự nhiên, bạn hoàn toàn có thể sở hữu không gian sống sang trọng, thoáng đãng như resort thu nhỏ.
Sau đây, Thiết Kế Nhà 365 sẽ tổng hợp 15+ mẫu biệt thự mini 2 tầng 80m2 đẹp. Đồng thời phân tích giải pháp thiết kế, gợi ý bản vẽ và cập nhật chi phí xây dựng thực tế theo mặt bằng giá 2026.

- 1. Vì sao biệt thự mini 2 tầng 80m2 được xem là “vua” của phân khúc nhà ở hiện nay?
- 2. So sánh biệt thự mini 2 tầng 80m2 với nhà ống 80m2 – Khác biệt nằm ở đâu?
- 3. Bộ sưu tập mẫu biệt thự mini 2 tầng 80m2 theo phong cách
- 4. Giải pháp bố trí mặt bằng công năng cho biệt thự 2 tầng 80m2
- 5. Dự toán chi phí xây biệt thự mini 2 tầng 80m2 (Cập nhật 2026)
- 6. Top 5 thủ thuật “hack” không gian cho biệt thự diện tích nhỏ
- 7. Những sai lầm phổ biến khi xây biệt thự mini 2 tầng 80m2
- 8. Biệt thự mini 2 tầng 80m2 không phù hợp với ai?
1. Vì sao biệt thự mini 2 tầng 80m2 được xem là “vua” của phân khúc nhà ở hiện nay?
Nhiều người vẫn cho rằng “biệt thự” phải gắn liền với diện tích lớn, nhưng xu hướng sống tinh gọn đã chứng minh điều ngược lại.Thực tế, nhiều mẫu Thiết kế biệt thự hiện nay cho thấy biệt thự mini 2 tầng 80m2 đang dần trở thành lựa chọn thay thế nhà phố, đặc biệt ở các khu dân cư có mật độ xây dựng cao. Dưới đây là những lý do giúp biệt thự mini 2 tầng 80m2 đang dần thay thế nhà phố truyền thống.
- Tối ưu chi phí đầu tư: Quy mô vừa phải giúp kiểm soát ngân sách hiệu quả, hạn chế chi phí phát sinh và tập trung đầu tư vào kết cấu, vật liệu hoàn thiện và các không gian sinh hoạt chính.
- Dễ tạo khoảng thở sân vườn, tiểu cảnh: Lùi công trình hợp lý cho phép bố trí sân trước, sân hông hoặc mảng xanh đệm, cải thiện thông gió, lấy sáng tự nhiên và mang lại cảm giác thư giãn cho không gian sống.
- Phù hợp quy hoạch, mật độ xây dựng cả đô thị lẫn nông thôn: Biệt thự mini 2 tầng 80m2 đáp ứng tốt các quy định về chiều cao, mật độ xây dựng, dễ hòa nhập với khu dân cư từ đô thị đến vùng ven.
- Hình ảnh sống “cao cấp” nhưng không phô trương: Thay vì nhấn mạnh sự bề thế, mô hình này tập trung vào tỷ lệ kiến trúc, mặt tiền tinh gọn và trải nghiệm không gian bên trong.

Tham khảo: 6+ mẫu thiết kế biệt thự mini 2 tầng đẹp: Tối ưu công năng, nâng tầm không gian sống
2. So sánh biệt thự mini 2 tầng 80m2 với nhà ống 80m2 – Khác biệt nằm ở đâu?
Trên cùng diện tích đất 80m2, vì sao có gia đình luôn cảm thấy ngột ngạt trong nhà ống, còn có gia đình lại tận hưởng không gian sống như resort? Sự khác biệt không nằm ở diện tích, mà nằm ở tư duy thiết kế.
- Hình khối kiến trúc: Nhà ống phát triển theo chiều sâu, mặt tiền hẹp và bị “kẹp” hai bên. Ngược lại, biệt thự mini 2 tầng 80m2 cho phép xử lý mặt tiền thoáng, có khoảng lùi và tỷ lệ khối rõ ràng, giúp công trình nhẹ và cân đối.
- Khả năng lấy sáng – thông gió: Nhà ống phụ thuộc nhiều vào giếng trời hoặc mặt tiền, nên ánh sáng và gió thường không phân bổ đều. Biệt thự mini dễ mở cửa sổ nhiều hướng, kết hợp sân vườn, sân hông hoặc khoảng xanh, nhờ đó không gian luôn thông thoáng và dễ chịu.
- Trải nghiệm sống: Trong nhà ống 80m2, các không gian sinh hoạt thường khó tách bạch rõ ràng. Với biệt thự mini 2 tầng, mặt bằng có điều kiện phân lớp tốt: Tầng trệt dành cho sinh hoạt chung, tầng trên là không gian riêng tư.
- Giá trị thẩm mỹ & giá trị tài sản lâu dài: Biệt thự mini sở hữu kiến trúc độc lập, mảng xanh và khoảng thở – những yếu tố ngày càng được đánh giá cao. Về lâu dài, loại hình này thường giữ giá tốt hơn nhà ống cùng diện tích, đặc biệt tại các khu dân cư quy hoạch bài bản.

Xem thêm: Thiết kế biệt thự mini 2 tầng: Khám phá xu hướng & mẫu đẹp, kèm bản vẽ
3. Bộ sưu tập mẫu biệt thự mini 2 tầng 80m2 theo phong cách
Diện tích xây dựng 80m2 không hề giới hạn phong cách sống của bạn. Dù yêu thích sự hiện đại tối giản hay nét sang trọng của tân cổ điển, mọi thứ đều khả thi nếu áp dụng đúng ngôn ngữ thiết kế.
3.1 Mẫu biệt thự mini hiện đại mái bằng
Với diện tích đất 80m2, mẫu biệt thự 2 tầng hiện đại mái bằng thường phát huy hiệu quả ở cả thẩm mỹ lẫn công năng. Hình khối gọn, rõ mảng đặc – rỗng giúp mặt tiền thoáng hơn so với nhà ống cùng diện tích, đồng thời dễ tổ chức không gian mở ở tầng trệt như phòng khách – bếp – ăn liên thông.
Kiến trúc hiện đại cũng phù hợp với các giải pháp thông gió và lấy sáng tự nhiên: mảng kính lớn, cửa trượt, lam che nắng và ban công sâu tạo bóng đổ, giảm bức xạ nhưng vẫn giữ độ sáng. Khi thiết kế đúng, mái bằng không làm công trình thô, mà trở thành nền để xử lý đường nét tinh gọn, hiện đại và sạch sẽ.

3.2 Mẫu biệt thự mini tân cổ điển nhẹ
Biệt thự phong cách tân cổ điển quy mô nhỏ đòi hỏi sự tiết chế. Thay vì dàn phào chỉ dày và nhiều họa tiết, hướng tiếp cận phù hợp cho mẫu biệt thự mini 2 tầng 80m2 đẹp là chọn đường phào mảnh, gờ chỉ vừa đủ để định hình tỷ lệ, kết hợp cửa vòm nhẹ hoặc mảng tường chia ô tinh gọn nhằm giữ tinh thần sang trọng mà không gây rối mắt.
Bảng màu sáng, trung tính (trắng – kem – be) đi cùng lan can, tay vịn hoặc chi tiết kim loại nhạt giúp công trình đẳng cấp nhưng vẫn nhẹ nhàng. Đây là lựa chọn phù hợp với gia chủ thích vẻ đẹp tân cổ điển vừa phải, ưu tiên cảm giác bền vững theo thời gian.

3.3 Mẫu biệt thự mini mái Thái / mái Nhật
Mái Thái và mái Nhật được gọi là phong cách “quốc dân”, kiểu mái này dễ tạo cảm giác bề thế và cân đối, đặc biệt với công trình 2 tầng trên diện tích 80m2. Khi xử lý đúng độ dốc, đua mái và tỷ lệ mái – thân nhà, tổng thể sẽ cao hơn về thị giác, giúp mặt tiền thoát và sang hơn mà không cần nhiều trang trí.
Ngoài hiệu ứng thẩm mỹ, mái dốc cũng hỗ trợ thoát nước tốt, phù hợp khí hậu mưa nhiều, đồng thời giúp không gian tầng trên mát hơn nếu kết hợp lớp cách nhiệt và thông gió mái. Với gia đình 4 – 5 người, đây là lựa chọn an toàn, dễ ở và dễ được số đông yêu thích.

3.4 Mẫu biệt thự mini chữ L 80m2
Với quỹ đất vuông hoặc gần vuông, bố cục chữ L là một trong những giải pháp tối ưu nhất cho thiết kế nhà biệt thự 2 tầng 80m2. Phần “khuyết” của chữ L tạo ra sân hông/sân trong tự nhiên, rất thuận tiện để bố trí chỗ để xe, tiểu cảnh, góc ngồi ngoài trời hoặc mảng xanh đệm cho phòng khách – bếp. Nhờ có khoảng thở này, ngôi nhà dễ lấy sáng và đón gió chéo, giảm cảm giác bí bách.
Về công năng, biệt thự chữ L giúp phân khu rõ ràng: khối sinh hoạt chung mở ra sân, khối riêng tư gọn lại phía trong, tạo nhịp sống thoải mái và riêng tư hơn dù diện tích không lớn.

Xem thêm: Top 8+ mẫu biệt thự 2 tầng mái Thái thiết kế đẹp – đầy đủ công năng kèm chi tiết bản vẽ
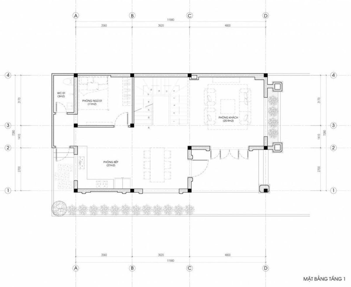
4. Giải pháp bố trí mặt bằng công năng cho biệt thự 2 tầng 80m2
Một căn nhà đẹp bên ngoài nhưng bất tiện bên trong là thất bại lớn nhất trong thiết kế. Với diện tích sàn 80m2, bố trí thế nào để vừa đủ phòng ngủ, vừa giữ được không gian sinh hoạt thoáng đãng? Dưới đây là những phương án bố trí mặt bằng công năng của biệt thự 2 tầng 80m2 do các kiến trúc sư của Thiết Kế Nhà 365 đã thiết kế.
4.1 Phương án 1: Gia đình trẻ – ưu tiên không gian mở ở tầng trệt
Với gia đình trẻ, tầng 1 thường tổ chức theo dạng mở, kết nối phòng khách – bếp – ăn trên cùng không gian. Cách bố trí này giúp diện tích 80m2 nới rộng về cảm giác, giảm vách ngăn cứng và tăng sự linh hoạt trong sinh hoạt hàng ngày.
Cầu thang đẩy gọn về một phía hoặc đặt giữa nhà nhưng xử lý thoáng, kết hợp kho nhỏ hoặc tủ âm gầm để tối ưu diện tích. Tầng 2 bố trí 2 – 3 phòng ngủ và khu sinh hoạt chung nhỏ, đảm bảo riêng tư nhưng vẫn giữ kết nối giữa các thành viên.

4.2 Phương án 2: Gia đình 3 thế hệ – có phòng ngủ tầng trệt
Với gia đình có người lớn tuổi, bố trí phòng ngủ ở tầng trệt là ưu tiên quan trọng. Trong trường hợp này, mặt bằng cần tổ chức chặt chẽ để vẫn giữ phòng khách và bếp đủ rộng. Phòng ngủ tầng trệt thường đặt cuối nhà hoặc lệch về một bên, đảm bảo yên tĩnh và hạn chế giao thông cắt ngang. Tầng 2 tập trung cho phòng ngủ của con cháu, kết hợp WC chung, ban công hoặc thông tầng để tăng thông gió, tránh cảm giác bí bách.

4.3 Những lưu ý “vàng” khi bố trí mặt bằng biệt thự 2 tầng 80m2
- Cầu thang thẳng phù hợp với phong cách biệt thự hiện đại, tiết kiệm diện tích. Cầu thang chữ U giúp di chuyển êm và an toàn cho gia đình nhiều thế hệ, nhưng cần kiểm soát kích thước để không chiếm quá nhiều không gian.
- Giếng trời hoặc thông tầng nên bố trí tại lõi giao thông hoặc khu vực bếp – ăn để đưa ánh sáng và gió sâu vào trong nhà.
- Cần tránh chia phòng quá nhỏ hoặc chạy theo số lượng phòng ngủ, bởi điều này khiến mặt bằng bị vụn và ảnh hưởng đến chất lượng sống về lâu dài.

Xem thêm: 8+ mẫu biệt thự 2 tầng kiểu Pháp ấn tượng kèm bản vẽ mới nhất 2025
5. Dự toán chi phí xây biệt thự mini 2 tầng 80m2 (Cập nhật 2026)
“Xây nhà này hết bao nhiêu tiền?” là câu hỏi khiến nhiều gia chủ bối rối vì nhận được câu trả lời quá chung chung. Phần dưới đây giúp bạn ước tính chi phí sát thực tế nhất theo mặt bằng giá hiện nay.

5.1 Tổng diện tích xây dựng quy đổi
Với mẫu biệt thự mini 2 tầng 80m2, diện tích xây dựng được quy đổi như sau:
Hạng mục | Hệ số quy đổi | Diện tích quy đổi |
Móng cọc | 50% | 40m2 |
Tầng trệt | 100% | 80m2 |
Lầu 1 | 100% | 80m2 |
Mái BTCT | 50% | 40m2 |
Tổng diện tích sàn quy đổi: 240m2 | ||
5.2 Chi phí xây thô
Đơn giá xây thô: 3.800.000 VNĐ/m2 – 4.200.000 VNĐ/m2
→ Thành tiền: 912.000.000 VNĐ – 1.008.000.000 VNĐ.
5.3 Chi phí xây trọn gói
Gói | Đơn giá (VNĐ/m2) | Thành tiền (VNĐ) |
Trung bình | 5.000.000 – 5.600.000 | 1.2 tỷ – 1.334 tỷ |
Khá | 5.700.000 – 6.100.000 | 1.368 tỷ – 1.464 tỷ |
Cao cấp | 6.200.000 – 7.100.000 | 1.448 tỷ – 1.704 tỷ |
Chú ý: Chi phí trên chỉ mang tính chất tham khảo dựa trên đơn giá thi công của công ty Thiết Kế Nhà 365, chi phí xây dựng có thể giao động theo thời giá thị trường, gia chủ có thể tham khảo bảng báo giá thi công biệt thự chi tiết hoặc liên hệ trực tiếp Hotline: 0906 840 567 để được các Kiến Trúc Sư tư vấn miễn phí
5.4 So sánh chi phí mái
- Mái tôn (chống nóng, trần thạch cao): Chi phí thấp, thi công nhanh, phù hợp phong cách hiện đại – tối giản. Tuy nhiên, cần xử lý cách nhiệt và chống ồn kỹ để đảm bảo sử dụng lâu dài.
- Mái ngói đổ bê tông: Chi phí cao hơn nhưng bù lại là khả năng cách nhiệt tốt, độ bền cao và hiệu ứng thẩm mỹ rõ rệt. Phù hợp với mái Thái, mái Nhật hoặc công trình ưu tiên vẻ ngoài bề thế.
5.5 Khung quyết định theo ngân sách
- Dưới 1,3 tỷ: Nên chọn phong cách hiện đại, mái bằng, hình khối gọn gàng, vật liệu hoàn thiện ở mức trung bình – khá, tập trung vào công năng và ánh sáng tự nhiên.
- Khoảng 1,5 – 1,8 tỷ: Có thể đầu tư mặt tiền chỉn chu hơn, mái Thái/mái Nhật, hệ cửa kính lớn, vật liệu hoàn thiện khá (gạch, thiết bị vệ sinh, lan can, tay vịn).
- Từ 2 tỷ trở lên: Chỉ nên làm tân cổ điển nhẹ khi mặt bằng đủ thoáng, tỷ lệ kiến trúc được kiểm soát tốt. Ưu tiên phào chỉ tinh giản, vật liệu hoàn thiện cao cấp thay vì trang trí dày đặc.

Tham khảo: Top 7 mẫu biệt thự 2 tầng có gara ô tô đẹp, tiện nghi và hiện đại
6. Top 5 thủ thuật “hack” không gian cho biệt thự diện tích nhỏ
Cảm giác chật chội không đến từ diện tích thực, mà đến từ cách xử lý không gian. Áp dụng 5 nguyên tắc dưới đây, biệt thự 80m2 của bạn có thể mang lại trải nghiệm như nhà 100m2.
- Không gian mở – hạn chế vách cứng: Liên thông phòng khách – bếp – ăn giúp giảm chia cắt thị giác, tạo không gian liền mạch. Thay cho tường đặc, có thể sử dụng vách kính, kệ hở hoặc cao độ trần để phân khu nhẹ, đủ riêng tư mà không làm không gian bị nén.
- Màu sắc & vật liệu sáng: Các gam màu sáng, trung tính như trắng, be, xám nhạt kết hợp vật liệu có bề mặt phản xạ ánh sáng giúp không gian mở rộng về cảm giác.
- Nội thất thông minh, đa năng: Nội thất tích hợp nhiều công năng như tủ âm tường, bàn gấp, giường có hộc chứa đồ giúp giảm số lượng đồ rời trong nhà. Không gian nhờ đó gọn gàng, dễ thích nghi khi nhu cầu sử dụng thay đổi.
- Tận dụng gầm cầu thang: Gầm cầu thang thường bị bỏ trống hoặc xử lý sơ sài, trong khi đây là khu vực lý tưởng để bố trí kho, tủ giày, kệ trang trí hoặc WC nhỏ. Khai thác đúng giúp tăng diện tích sử dụng, không làm ảnh hưởng đến bố cục chung.
- Chiếu sáng tự nhiên kết hợp chiếu sáng nhân tạo hợp lý: Ánh sáng tự nhiên từ cửa sổ, giếng trời giúp không gian thông thoáng và giàu sinh khí. Hệ đèn chiếu sáng gián tiếp, đèn hắt trần và đèn điểm bố trí tiết chế sẽ tạo chiều sâu thị giác, tránh cảm giác trần thấp và không gian bị đóng.

Tham khảo: Biệt thự phố 2 tầng có hai mặt tiền rộng thoáng ở Hà Tĩnh
7. Những sai lầm phổ biến khi xây biệt thự mini 2 tầng 80m2
Nhiều gia chủ phải đập đi làm lại chỉ vì những sai lầm tưởng chừng nhỏ trong khâu thiết kế ban đầu. Dưới đây là những lỗi phổ biến bạn nhất định phải tránh.
- Tham chi tiết trang trí: Đưa quá nhiều phào chỉ, gờ chỉ hoặc vật liệu trang trí vào công trình nhỏ khiến mặt tiền nặng nề, mất đi sự tinh gọn và làm giảm giá trị thẩm mỹ.
- Copy nguyên mẫu biệt thự lớn rồi thu nhỏ: Sao chép thiết kế biệt thự quy mô lớn dẫn đến mặt bằng bị ép, phòng ốc chật và giao thông bất tiện. Biệt thự 80m2 cần thiết kế riêng theo đúng tỷ lệ và nhu cầu sử dụng thực tế.
- Lấn chiếm sân vườn – lối đi: Đánh đổi khoảng thở bên ngoài để lấy thêm diện tích xây dựng khiến khả năng thông gió, lấy sáng giảm mạnh, không gian sống bí bách và kém thoải mái.
- Không tính trước công năng dài hạn: Khi gia đình tăng thêm thành viên hoặc thay đổi nhu cầu sinh hoạt, mặt bằng thiếu linh hoạt sẽ nhanh chóng bộc lộ hạn chế và khó cải tạo trong khuôn khổ diện tích 80m2.

Xem thêm: 99+ thiết kế biệt thự 2 tầng mái ngói đẹp ấn tượng 2025
8. Biệt thự mini 2 tầng 80m2 không phù hợp với ai?
Biệt thự mini 80m2 không phải giải pháp cho mọi trường hợp. Nếu bạn thuộc những nhóm dưới đây, nên cân nhắc phương án khác để tránh lãng phí tiền bạc và công sức.
- Đất quá hẹp chiều ngang: Mặt tiền quá hẹp, việc tạo hình khối biệt thự, khoảng lùi và mảng xanh rất khó. Trong trường hợp này, giải pháp nhà ở quy mô nhỏ 2 tầng có giếng trời hoặc nhà ống cải tiến sẽ phù hợp hơn so với cố ép mô hình biệt thự mini.
- Gia đình đông người, nhu cầu phòng lớn: Với diện tích sàn 80m2, biệt thự mini phù hợp cho gia đình 3 – 5 người. Nếu số lượng thành viên đông, cần nhiều phòng ngủ rộng hoặc không gian sinh hoạt riêng biệt, mặt bằng sẽ nhanh chóng quá tải và làm giảm chất lượng sống.
- Kỳ vọng biệt thự quá cầu kỳ, nhiều chi tiết: Những phong cách đòi hỏi phào chỉ dày, trang trí phức tạp hoặc hình thức quá bề thế không phù hợp với quy mô nhỏ. Việc chạy theo sự cầu kỳ dễ khiến công trình nặng nề, tốn chi phí nhưng không đạt hiệu quả thẩm mỹ tương xứng.

Với quỹ đất 80m2, biệt thự mini 2 tầng 80m2 là lựa chọn hợp lý cho gia đình 3 – 5 người khi thiết kế đúng tỷ lệ, bố trí công năng khoa học và kiểm soát tốt chi phí. Điểm mấu chốt không nằm ở hình thức cầu kỳ, mà ở bản vẽ mặt bằng phù hợp nhu cầu sử dụng và giải pháp lấy sáng, thông gió hiệu quả.
Nếu bạn đang cân nhắc xây dựng biệt thự mini trên diện tích 80m2 và cần tư vấn phương án thiết kế, bố trí công năng hoặc dự toán chi phí sát thực tế 2026, hãy liên hệ Thiết Kế Nhà 365 để được tư vấn cụ thể trước khi triển khai.










