Mẫu nhà 2 tầng 700 triệu với thiết kế hiện đại đang được nhiều người quan tâm trong thời gian vài năm gần đây. Với chi phí 700 triệu, nếu chọn được một đơn vị thiết kế thi công uy tín thì bạn có thể sở hữu được một ngôi nhà đẹp, đầy đủ tiện nghi. Tuy nhiên, bạn chưa biết nên chọn mẫu nhà đẹp 2 tầng nào để đạt được những tiêu chí trên. Tham khảo ngay top mẫu thiết kế nhà 2 tầng giá 700 triệu hiện đại, đầy đủ tiện nghi để có được ý tưởng mới cho ngôi nhà mơ ước của mình nhé.
- 1. Mặt tiền mẫu nhà 2 tầng giá 700 triệu
-
2. Tổng hợp những mẫu nhà 2 tầng 700 triệu đẹp nhất
- 2.1 Mẫu nhà 2 tầng 700 triệu mái bằng đẹp tinh tế
- 2.2 Mẫu nhà 2 tầng mái lệch giá 700 triệu mái lệch độc đáo
- 2.3 Thiết kế nhà ống 2 tầng phong cách Pháp giá 700
- 2.4 Mẫu nhà 2 tầng đẹp giá 700 triệu phong cách hiện đại
- 2.5 Mẫu nhà 700 triệu 2 tầng đẹp mái Nhật
- 2.6 Mẫu nhà 2 tầng đẹp giá 700 triệu phong cách đơn giản
- 2.7 Mẫu nhà 2 tầng với giá 700 triệu phong cách tân cổ điển
- 2.8 Mẫu thiết kế nhà 700 triệu 2 tầng đẹp ở nông thôn
- 3. Bản vẽ của mẫu nhà đẹp có thiết kế 2 tầng giá 700 triệu
- 4. Các lưu ý quan trọng khi xây nhà 700 triệu 2 tầng
- 5. Thiết Kế Nhà 365 – Đơn vị thiết kế nhà uy tín, chuyên nghiệp
1. Mặt tiền mẫu nhà 2 tầng giá 700 triệu
1.1 Công năng mặt bằng
Mẫu nhà ống 2 tầng này được thiết kế theo phong cách hiện đại. Ngôi nhà được thiết kế với những hình khối đơn giản được sắp xếp với nhau một cách thông minh tạo thành một tổng thể hoàn hảo.
Tầng 1 của ngôi nhà được bố trí không gian sinh hoạt chung như phòng khách, phòng bếp, phòng ăn và 1 phòng ngủ. Còn tầng 2 của ngôi nhà sẽ được bố trí 2 phòng ngủ, 1 phòng thờ.

1.2 Phối cảnh ngoại thất
Phối cảnh ngoại thất của ngôi nhà này đang thu hút sự chú ý của nhiều cặp vợ chồng trẻ. Ngôi nhà này được phối các màu sắc trung tính hiện đại một cách hài hòa đó là màu sơn trắng, màu gạch ốp tường xám và màu kính cường lực màu nâu đỏ. Phần sân trước của ngôi nhà được trồng cây xanh hai bên để tăng tính thẩm mỹ và mang đến không gian sống xanh cho ngôi nhà.
1.3 Phối cảnh nội thất
Phối cảnh nội thất thể hiện được cá tính và gu thẩm mỹ riêng của mỗi gia chủ. với ngân sách 700 triệu đồng, xây nhà 2 tầng hiện đại mặt tiền 10m thì bạn có thể thiết kế nội thất theo phong cách hiện đại.
Phòng khách thường được thiết kế liền phòng bếp kết hợp phòng ăn để mang đến một không gian rộng rãi thoải mái cho cả gia đình sinh hoạt. Các đồ dùng nội thất được thiết kế theo các hình khối đơn giản kết hợp với màu sắc trung tính tạo nên phong cách riêng cho căn phòng. Màu sắc chủ đạo của căn phòng này là màu nâu, màu đen và màu gỗ mang đến một không gian sống vừa hiện đại vừa gần gũi.
Phòng ngủ được thiết kế theo sở thích riêng của từng thành viên. Phòng ngủ con gái có thể được thiết kế với tông màu chủ đạo là màu hồng. Phòng có cửa sổ lớn để lấy ánh sáng. Ngoài giường ngủ thì trong phòng còn được bố trí thêm tủ quần áo, bàn học, giá sách,…

Tham khảo: 60+ Mẫu nhà ống 2 tầng mái thái mặt tiền 5m đẹp ấn tượng
2. Tổng hợp những mẫu nhà 2 tầng 700 triệu đẹp nhất
2.1 Mẫu nhà 2 tầng 700 triệu mái bằng đẹp tinh tế
Được thiết kế theo phong cách hiện đại, vật liệu kính sẽ được sử dụng nhiều trong mẫu nhà 2 tầng đẹp giá 700 triệu này. Cửa chính lớn và cửa sổ rộng giúp không gian sống trong nhà trở nên thông thoáng hơn, nhận được nhiều ánh sáng tự nhiên hơn.

Màu sắc được phối hợp một cách hài hòa giữa màu trắng, màu nâu gỗ và màu xám. Ngôi nhà được xây dựng trong một khu vườn xanh mát có thêm vài chậu tiểu cảnh là một mẫu nhà mà nhiều người mơ ước.

2.2 Mẫu nhà 2 tầng mái lệch giá 700 triệu mái lệch độc đáo
Mẫu nhà 2 tầng mái lệch giá 700 triệu luôn mang đến vẻ đẹp độc đáo và tạo ấn tượng sâu sắc cho người nhìn. Nhà ống này được các nhà thiết kế nhiều cửa sổ lùa ở phần bên hông. Hai tấm mái chéo lớn nhỏ được bố trí lệch nhau khiến bất cứ ai đi qua cũng phải để ý.

Điểm đặc biệt tiếp theo trong mẫu thiết kế này là tầng 2 sẽ có một ban công rộng hoặc có thêm sân thượng để bộ bàn ghế. Đây cũng là nơi gia chủ tận dụng để trông thêm giàn cây leo hoặc các chậu tiểu cảnh bắt mắt. Cách phối màu của ngôi nhà cũng mang đến vẻ đẹp ấn tượng, đẹp mắt. Màu trắng, màu nâu gỗ kết hợp với màu hồng cam hoặc màu xám của gạch ốp tường một cách sáng tạo.

2.3 Thiết kế nhà ống 2 tầng phong cách Pháp giá 700
Nhà 700 triệu 2 tầng được thiết kế theo phong cách Pháp luôn mang đến một vẻ đẹp tráng lệ với các họa tiết cầu kỳ. Nổi bật nhất trong kiểu thiết kế này là các đường chỉ phào nhẹ nhàng, các hoa văn trang trí tinh tế, bắt mắt. Các vòm cửa mềm mại kết hợp với ban công vòm tạo điểm nhấn tinh tế cho ngôi nhà.

Màu sắc trong phong cách Pháp cũng nhẹ nhàng nhưng tạo nên vẻ đẹp vô cùng bắt mắt. Có thể là sắc trắng đơn thuần hoặc màu trắng kết hợp với màu vàng một cách nhẹ nhàng. Hệ cửa kính được sử dụng trong thiết kế để làm tăng thêm sự sang trọng, quý phái.

2.4 Mẫu nhà 2 tầng đẹp giá 700 triệu phong cách hiện đại
Đây là những mẫu nhà 2 tầng đẹp giá 700 triệu đốn tim bao người bởi vẻ đẹp hiện đại và sự tiện nghi trong sinh hoạt. Ngôi nhà được thiết kế kiểu mái Nhật vừa có hiệu quả làm giảm ảnh hưởng của thời tiết vừa làm tăng độ hoành tráng cho ngôi nhà.

Cửa chính lớn kết hợp với nhiều cửa sổ rộng giúp cho ngôi nhà trở nên thoáng đãng hơn. Ban công kính làm tăng hiệu ứng ánh sáng, độ bền và độ mới lâu. Hệ sinh thái cây xanh xung quanh ngôi nhà là điểm không thể thiếu trong mẫu thiết kế nhà ở này.

2.5 Mẫu nhà 700 triệu 2 tầng đẹp mái Nhật
Nếu bạn yêu thích phong cách của một ngôi nhà mái Nhật truyền thống thì đây chắc hẳn là một mẫu thiết kế nhà ở mà bạn không thể bỏ qua. Điểm ấn tượng của ngôi nhà là vẻ đẹp đơn giản, gần gũi với thiên nhiên và ngôi nhà luôn tràn ngập ánh sáng.

Phần mái Nhật của nhà 2 tầng đẹp giá 700 không chỉ giúp nước mưa thoát xuống một cách dễ dàng mà còn có tác dụng chống nóng một cách hiệu quả. Vẫn là hệ thống cửa với kích thước lớn để ngôi nhà luôn sáng sủa và thoáng đãng.

2.6 Mẫu nhà 2 tầng đẹp giá 700 triệu phong cách đơn giản
Đây là những mẫu nhà được các bạn trẻ vô cùng yêu thích bởi nó mang đến một vẻ đẹp tối giản, hiện đại nhưng đầy đủ tiện nghi. Chưa dừng lại ở đó, mẫu nhà này còn giúp tiết kiệm được nhiều chi phí xây dựng do không có các họa tiết trang trí cầu kỳ, các vật liệu xây dựng cũng đơn giản và dễ tìm kiếm.

Kiến trúc ngôi nhà được cấu thành từ các hình khối chữ nhật đứng, chúng được sắp xếp một cách hài hòa để tạo thành vẻ đẹp bắt mắt. Bên cạnh màu sơn trắng thì điểm nhấn của ngôi nhà là phần gỗ ốp tường hoặc đá ốp tường đậm màu.

2.7 Mẫu nhà 2 tầng với giá 700 triệu phong cách tân cổ điển
Mẫu nhà 2 tầng đẹp giá 700 triệu phong cách tân cổ điển mặc dù có tốn nhiều chi phí hơn một chút so với các mẫu nhà mái bằng nhưng nó sẽ mang một vẻ đẹp sang trọng, quý phái hơn.

Các cột nhà được trang trí một cách tỉ mỉ với các đường chỉ phào nổi. Phần mái nhà có thể được thiết kế kiểu mái vòm mềm mại, bắt mắt. Hệ thống ban công được trang trí bằng các họa tiết uốn lượn. Ngoài ra, ngôi nhà sử dụng ánh sáng vàng với đèn chùm vừa mang đến không gian sống quý tộc vừa tạo cảm giác ấm áp, gần gũi.

2.8 Mẫu thiết kế nhà 700 triệu 2 tầng đẹp ở nông thôn
Mẫu nhà 2 tầng nông thôn 700 triệu được nhiều người ưa chuộng bởi nó được xây dựng trên một mảnh đất rộng rãi, không bị gò bó trong thiết kế. Tùy sở thích của từng gia chủ mà có thể chọn kiểu mái thái hoặc mái Nhật.

Thường thì những ngôi nhà này sẽ có phần sân rộng rãi để vui chơi, thư giãn hoặc đậu xe. Xung quanh ngôi nhà là một hệ sinh thái cây xanh, hoa tươi đẹp mắt. Đây chắc hẳn là những mẫu nhà mà bất cứ ai cũng mơ ước vì nó mang đến một không gian sống thoải mái và dễ chịu cho các thành viên trong gia đình.

Tham khảo: 50+ Mẫu nhà 2 tầng chữ L 100m2 hiện đại tiện nghi nhất
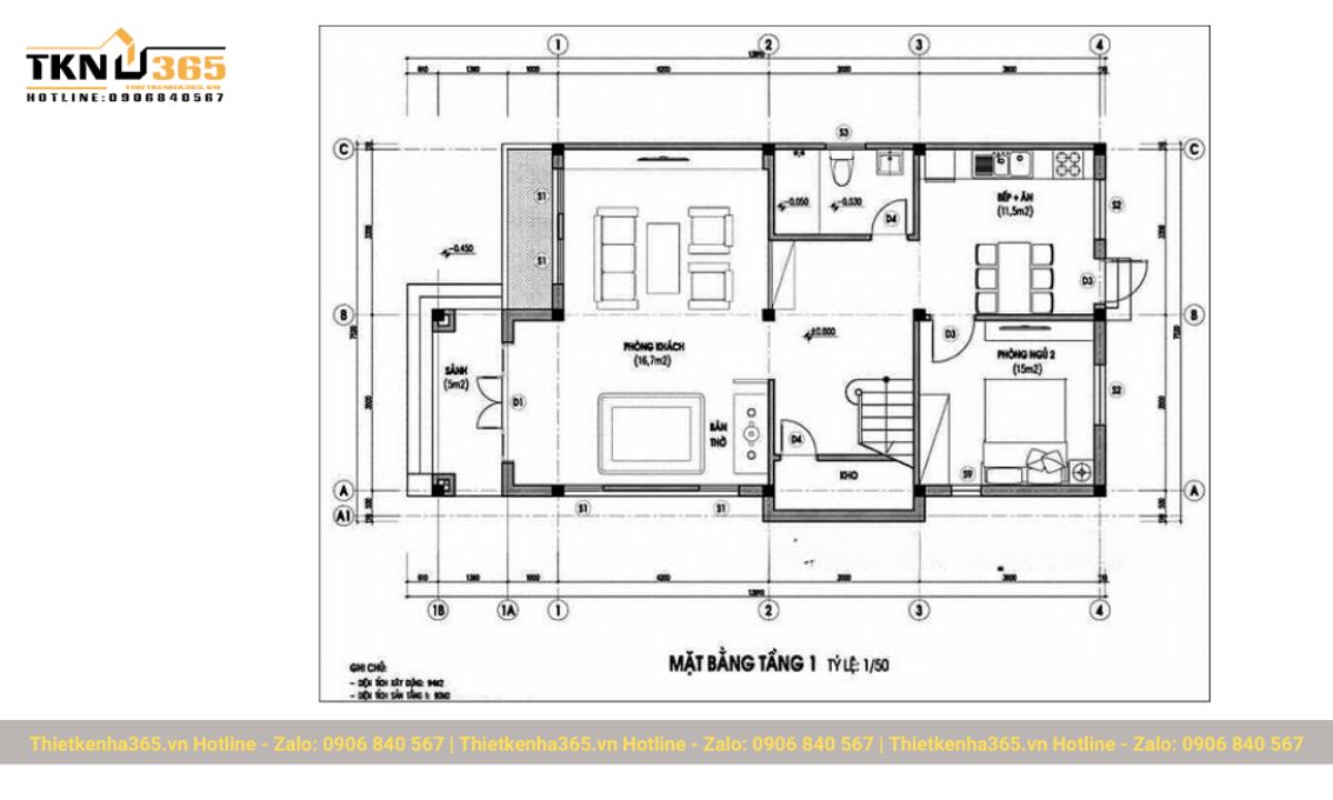
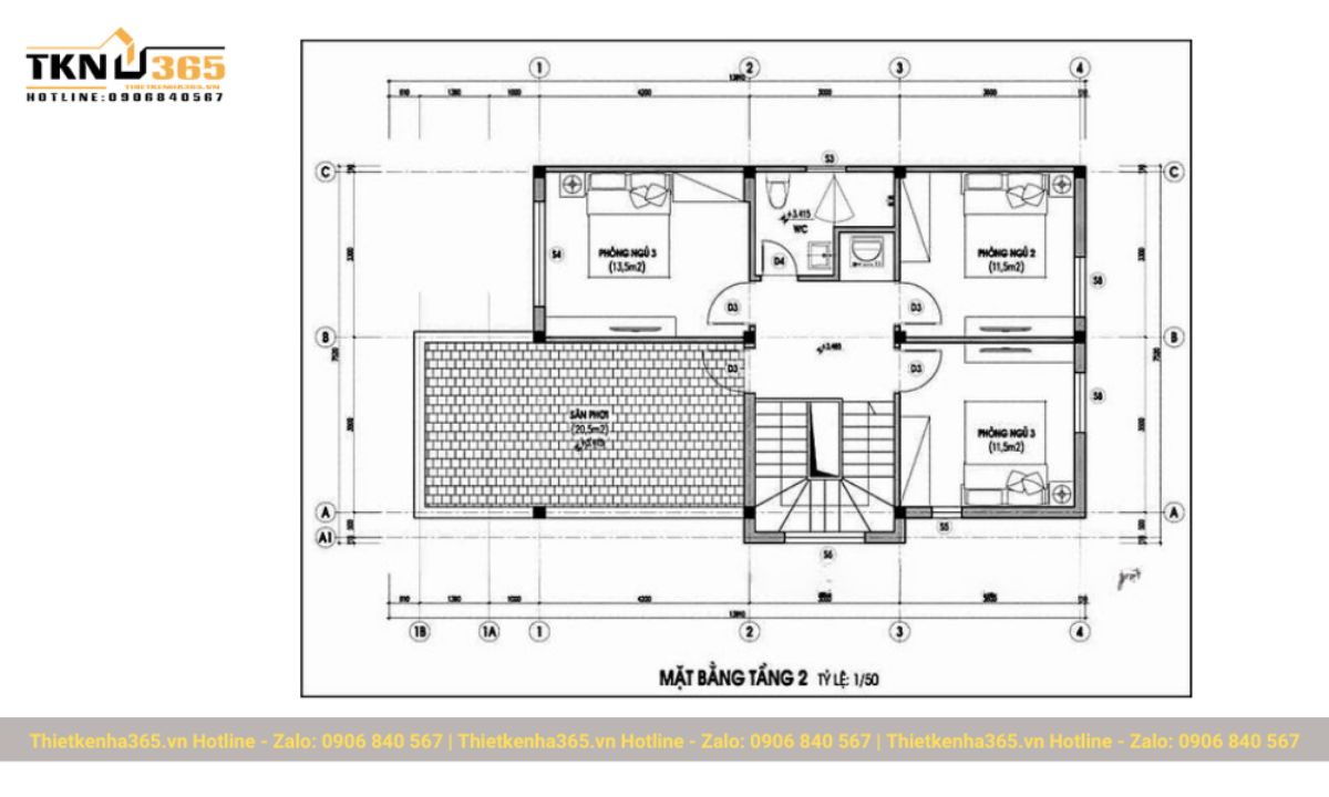
3. Bản vẽ của mẫu nhà đẹp có thiết kế 2 tầng giá 700 triệu
Bản vẽ chi tiết của mẫu nhà nhà đẹp giá 700 triệu với cách phân bố khu vực chức năng vô cùng hợp lý. Ngôi nhà được thiết kế theo phong cách hiện đại, đem lại sự tiện nghi và thuận tiện trong khi sử dụng.
Ngôi nhà được thiết kế 2 tầng với các khu vực chức năng được các nhà thiết kế bố trí như sau:
- Tầng 1: Tầng này được các kiến trúc sư bố trí phòng khách, đối diện phòng khách chính là phòng thờ. Phòng bếp được xây dựng kết hợp với phòng ăn, 1 phòng ngủ, 1 phòng tắm và 1 phòng kho chứa đồ.
- Tầng 2: Khu vực tầng 2 được bố trí 3 phòng ngủ, 1 phòng tắm và 1 sân phơi rộng lớn để phơi đồ và hóng gió khi cần.
- Thiết kế nội thất: Nội thất của ngôi nhà được thiết kế theo phong cách hiện đại, đơn giản và tiện nghi.
- Thiết kế bên ngoài: Mặt tiền của ngôi nhà được thiết kế theo phong cách hiện đại, tối giản các họa tiết trang trí nhưng vẫn đẹp sang trọng, bắt mắt.


Tham khảo: 55+ Mẫu thiết kế nhà 2 tầng 100m2 đẹp, thông thoáng
4. Các lưu ý quan trọng khi xây nhà 700 triệu 2 tầng
Để có được một ngôi nhà 2 tầng đẹp, giá 700 triệu thì còn phụ thuộc vào chi phí và nhiều yếu tố khác nhau. Sau đây là một số lưu ý quan trọng khi xây dựng nhà 700 triệu 2 tầng này:
- Xây dựng kế hoạch chi tiết để có thể quản lý chi phí tốt nhất.
- Chọn vật liệu chất lượng tốt để giúp ngôi nhà luôn bền đẹp và có độ an toàn cao.
- Lưu ý đến các vấn đề phong thủy qua các lời khuyên của các chuyên gia uy tín.
- Tính toán chi phí và dự trù ngân sách để đảm bảo không có chi phí phát sinh lãng phí.
- Bảo trì định kỳ sau khi ngôi nhà đã được hoàn thành để giúp nó luôn bền đẹp.
- Đảm bảo an toàn lao động, tuân thủ các quy định trong an toàn lao động.

Tham khảo: 55+ Mẫu nhà 2 tầng 8x10m & bản vẽ đẹp đáng xem nhất
5. Thiết Kế Nhà 365 – Đơn vị thiết kế nhà uy tín, chuyên nghiệp
Nếu bạn đang cần xây dựng một mẫu nhà 2 tầng đẹp giá 700 triệu mà chưa tìm được đơn vị thiết kế, thi công nhà ở nào uy tín chuyên nghiệp. Hãy tìm đến Công ty Thiết Kế Nhà 365 – một đơn vị đã có hơn 10 năm kinh nghiệm hoạt động và phát triển trong lĩnh vực này. Chúng tôi sẽ đồng hành cùng bạn để có được một công trình đẹp, chất lượng và tiết kiệm chi phí. Khi đến với Công ty Thiết Kế Nhà 365 thì bạn sẽ được:
- Tư vấn miễn phí 100% để có được công trình nhà đẹp giá 700 triệu 2 tầng hoàn mỹ, đảm bảo đầy đủ công năng sử dụng.
- Luôn có đầy đủ các loại giấy tờ cũng như thủ tục pháp lý cần thiết để xây dựng.
- Có hợp đồng xây dựng cụ thể với các điều khoản rõ ràng, đầy đủ để đảm bảo được quyền lợi và trách nhiệm của hai bên.
- Giá cả cạnh tranh nhất trên thị trường, cam kết không có chi phí phát sinh.
- Công trình hoàn thành được bàn giao giống đến 99% bản thiết kế.
Vừa rồi là những thông tin về mẫu nhà 2 tầng đẹp giá 700 triệu và những mẫu nhà hiện đại, đầy đủ tiện nghi để bạn đọc tham khảo. Nếu bạn đang cần tìm hiểu kỹ hơn về mẫu nhà 700 triệu 2 tầng nào thì hãy liên hệ ngay đến Công ty Thiết Kế Nhà 365 để được tư vấn miễn phí, nhiệt tình!









