Các mẫu nhà 2 tầng mặt tiền 8m là những căn nhà có kích thước xây dựng mặt tiền 8m chiều sâu 12m. Với diện tích mặt tiền rộng giúp gia chủ thoải mái thiết kế từ phong cách hiện đại đến phong cách tân cổ điển, cổ điển. Để có được không gian nhà ở đúng như mong muốn, bạn cần tham khảo nhiều mẫu nhà hiện đại, từ đó xây dựng bản vẽ công năng chi tiết về cách bố trí nội, ngoại thất. Trong bài viết dưới đây, Thiết Kế Nhà 365 sẽ gửi đến bạn một số mẫu thiết kế 2 tầng có mặt tiền 8m được ưa chuộng nhất hiện nay.
-
Những mẫu nhà mặt tiền 8m 2 tầng đẹp
- Mẫu nhà mặt tiền 8m 2 tầng phong cách hiện đại
- Mẫu nhà rộng 8m 2 tầng phong cách tân cổ điển
- Mẫu nhà mặt tiền 8m 2 tầng sang trọng
- Mẫu nhà kiểu nhật 2 tầng hiện đại mặt tiền 8m
- Mẫu nhà mặt tiền 8m 2 tầng mái bằng hiện đại
- Thiết kế mẫu nhà mặt tiền 8m 2 tầng đơn giản
- Thiết kế mẫu nhà mặt tiền 8m 2 tầng mái thái
- Mẫu nhà mặt tiền 8m 2 tầng 4 phòng ngủ tiện nghi
- Bản vẽ công năng nhà 2 tầng mặt tiền 8m
- Lợi ích nổi bật của mẫu nhà 2 tầng mặt tiền 8m
- Một số tiêu chuẩn thiết kế nhà 2 tầng có mặt tiền rộng 8m
- Thiết Kế Nhà 365 – Đơn vị thi công nhà 2 tầng mặt tiền 8m uy tín, chất lượng
Những mẫu nhà mặt tiền 8m 2 tầng đẹp
Với phần mặt tiền 8m, gia chủ sẽ có rất nhiều lựa chọn khác nhau về thiết kế nhà 2 tầng. Cùng Thiết Kế Nhà 365 tham khảo ngay một số mẫu nhà phổ biến nhất 2023:
Mẫu nhà mặt tiền 8m 2 tầng phong cách hiện đại
Nếu yêu thích phong cách hiện đại, bạn có thể tham khảo mẫu thiết kế độc đáo dưới đây. Chất liệu gỗ được sử dụng linh hoạt, kết hợp với các không gian xanh tạo nên tổng thể hoà hợp với thiên nhiên nhưng vẫn đảm bảo đầy đủ công năng tiện ích. Ban công bằng kính lấy được nhiều ánh sáng tự nhiên, vách ngăn bằng lưới hạn chế nắng mưa, đảm bảo không gian riêng tư cho sinh hoạt.

Chất liệu kính được sử dụng ngày càng nhiều, không chỉ tối ưu lượng ánh sáng lấy vào mà còn mang đến vẻ đẹp tiện nghi, hiện đại cho tổng thể. Mặt tiền rộng rãi tạo cảm giác bề thế, được trồng thêm nhiều cây xanh. Tầng 2 có mái che hạn chế những tác động từ bên ngoài nhưng vẫn đảm bảo lưu thông khí và ánh sáng trong nhà hiệu quả.

Mẫu nhà rộng 8m 2 tầng phong cách tân cổ điển
Phong cách tân cổ điển được nhiều gia chủ ưa chuộng bởi sự sang trọng và bề thế. Mặt tiền rộng rãi với phần cổng được thiết kế cầu kỳ, nhiều chất liệu và màu sắc khác nhau. Mái ngói kiểu Thái màu đỏ ấn tượng, độc đáo kết hợp hài hoà với sắc trắng của tổng thể.

Phong cách tân cổ điển thường sử dụng tông màu trắng làm chủ đạo, với những thiết kế toát lên sự sang trọng như cửa hình vòm và cột trụ kiểu Ý. Sân trước rộng rãi có thể tận dụng để làm vườn cây hoặc gara để xe tiện lợi.

Mẫu nhà mặt tiền 8m 2 tầng sang trọng
Mẫu nhà có mặt tiền rộng 8m xây 2 tầng sang trọng sử dụng gam màu xám và trắng làm chủ đạo với thiết kế hình khối vuông vức mang đến vẻ đẹp khoẻ khoắn cho tổng thể. Cách bố trí không gian bất cân xứng tạo ra thiết kế hiện đại, mới lạ nhưng cũng không kém phần khoa học và tiện nghi.

Với những căn nhà có phần sân trước rộng, bạn có thể tận dụng làm nơi để xe ô tô và trồng cây xanh. Tổng thể căn nhà có thiết kế tân cổ điển với những chi tiết hoa văn tinh xảo và phần cột trụ vững chắc.

Mẫu nhà kiểu nhật 2 tầng hiện đại mặt tiền 8m
Mẫu nhà 2 tầng mặt tiền 8m hiện đại sử dụng nhiều chất liệu khác nhau từ gỗ, gạch bông đến kính cường lực. Thiết kế mái chéo kết hợp cấu trúc bất cân xứng giữa các tầng tạo sự ấn tượng, độc đáo. Tổng thể sử dụng tông màu trắng làm chủ đạo, kết hợp với các điểm nhấn tối màu hoà hợp, nhất quán.

Mẫu thiết kế nhà đẹp 2 tầng mặt tiền 8m hiện đại với phần sân trước kích thước lớn, được sử dụng để làm gara để xe và nơi thư giãn cho các thành viên trong gia đình. Hệ thống cửa sổ làm từ chất liệu kính lấy được nhiều ánh sáng tự nhiên, cây xanh bố trí ở nhiều nơi mang đến không gian mát mẻ.

Mẫu nhà mặt tiền 8m 2 tầng mái bằng hiện đại
Thiết kế mái bằng được nhiều gia chủ ưa chuộng bởi sự chắc chắn và phù hợp với kiểu nhà hiện đại. Bố trí vách ngăn ở tầng trên cùng giúp hạn chế nắng mưa nhưng vẫn đảm bảo không khí được lưu thông hiệu quả. Mặt tiền có kích thước lớn, phía trước trồng thêm cây xanh.

Nếu yêu thích các mẫu nhà có gam màu tối, bạn có thể tham khảo thiết kế dưới đây, sử dụng tông xám nâu làm chủ đạo. Hệ thống đèn điện được bố trí hợp lý mang đến không gian huyền ảo. Không gian sân trước rộng rãi được tận dụng để trồng cây xanh và làm gara xe hơi.

Thiết kế mẫu nhà mặt tiền 8m 2 tầng đơn giản
Mẫu nhà 2 tầng mặt tiền 8m hiện đại đơn giản với mái ngói cổ điển và được bố trí tối ưu về mặt công năng. Kiến trúc cửa gỗ chất liệu kính lấy được nhiều ánh sáng tự nhiên và giúp lưu thông không khí trong nhà. Cây xanh được bố trí ở nhiều nơi mang đến sự thoáng đãng và tạo cảm giác căn nhà rộng rãi hơn.

Kiểu thiết kế nhà ở đơn giản tiếp theo sử dụng chất liệu kính cường lực làm chủ đạo. Hệ thống chiếu sáng được bố trí khoa học ở các tầng, mặt tiền tầng 1 phân chia không gian khoa học để đậu xe ô tô. Vách ngăn bằng gạch đảm bảo không gian nhà ở được riêng tư và kín đáo.

Thiết kế mẫu nhà mặt tiền 8m 2 tầng mái thái
Thiết kế được nhiều gia chủ lựa chọn hiện nay là kiểu biệt thự 2 tầng với mái Thái độc đáo. Sử dụng tông màu trắng làm chủ đạo mang đến nét đẹp sang trọng và cổ điển, kết hợp những điểm nhấn tối màu làm bật lên vẻ đẹp nhất quán, khoa học của tổng thể. Các tầng đều được bố trí ban công hướng ra ngoài, hệ thống cửa lắp đặt ở mọi nơi lấy được nhiều ánh sáng.

Mặt tiền rộng rãi, sân trước kích thước lớn được dùng để làm vườn và để xe ô tô. Tổng thể thiết kế toát lên nét đẹp cổ điển, sang trọng với những chi tiết tinh xảo và tỉ mỉ.

Mẫu nhà mặt tiền 8m 2 tầng 4 phòng ngủ tiện nghi
Mẫu nhà ngang 8m 2 tầng 4 phòng ngủ phù hợp với những gia đình đông thành viên, nhiều thế hệ. Sử dụng mái Nhật mang đến điểm nhấn độc đáo về cấu trúc, kết hợp trồng nhiều loại hoa và dùng vật liệu đa dạng tạo ra không gian ấn tượng, sang trọng. Hệ thống cửa kính giúp căn nhà lấy được nhiều ánh sáng tự nhiên.

Sân trước kích thước rộng được sử dụng để trồng cây xanh hoặc làm nơi thư giãn cho các thành viên trong gia đình. Không gian xanh được bố trí ở khắp mọi nơi trong nhà tạo ra không gian thoáng đãng và mát mẻ. Các điểm nhấn bằng gỗ tối màu mang đến nét đẹp tiện nghi, cổ điển.

Tham khảo: 55+ Mẫu nhà 2 tầng 8x10m & bản vẽ đẹp đáng xem nhất
Bản vẽ công năng nhà 2 tầng mặt tiền 8m
Bản vẽ công năng nhà ở sẽ thể hiện chi tiết cách sắp xếp và bố trí không gian các phòng. Dưới đây là một số mẫu bản vẽ thiết kế mà bạn có thể tham khảo và áp dụng:
Mẫu bản vẽ thiết kế nhà 2 tầng 8x10m có 4 phòng ngủ
Mặt bằng tầng 1 là không gian dành cho phòng khách, ngăn cách với khu vực bếp và phòng ăn thông qua kho chứa đồ. Phòng ngủ 1 được bố trí ở nơi kín đáo và riêng tư, bên cạnh là WC chung.
Mặt bằng tầng 2 bố trí 3 phòng ngủ theo hình chữ C, mỗi phòng đều có ban công hướng ra ngoài và nhà vệ sinh được lắp đặt bên cạnh để thuận tiện cho việc sinh hoạt.

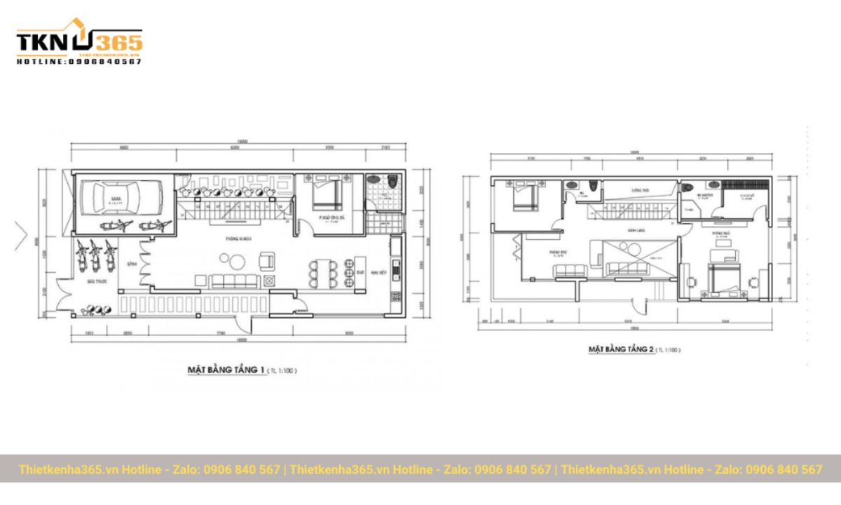
Bản vẽ thiết kế nhà 2 tầng 8x18m hiện đại
Mặt bằng tầng 1 có sân trước diện tích lớn, được sử dụng làm gara để xe ô tô và xe máy. Từ ngoài vào trong là phòng khách nối thông với khu vực bếp ăn để tiết kiệm không gian. Phòng ngủ ông bà được đặt ở tầng 1 trong khu vực kín đáo, riêng tư thuận tiện cho việc di chuyển.
Mặt bằng tầng 2 bố trí phòng ngủ con và phòng ngủ bố mẹ. Ở giữa là khu vực sinh hoạt chung trong gia đình được lắp đặt ngay cạnh cầu thang. Các phòng ngủ đều có ban công hướng ra ngoài và phòng WC riêng.

Xem thêm: 60+ Mẫu nhà ống 2 tầng mái thái mặt tiền 5m đẹp ấn tượng
Lợi ích nổi bật của mẫu nhà 2 tầng mặt tiền 8m
Không tự nhiên mà các mẫu nhà ngang 8m 2 tầng mặt tiền lại được nhiều gia chủ ưa chuộng đến vậy. Thực tế, kiểu nhà này có rất nhiều ưu điểm như thiết kế đa dạng, đầy đủ công năng, kiến trúc độc đáo và sử dụng nhiều vật liệu:
Đa dạng phong cách thiết kế
Với kiểu nhà 2 tầng mặt tiền 8m, bạn sẽ có rất nhiều lựa chọn trong phong cách thiết kế, chẳng hạn như phong cách hiện đại, tân cổ điển hay cổ điển. Tuỳ vào sở thích và mục đích sử dụng mà bạn có thể lựa chọn cho mình kiểu thiết kế nhà ở phù hợp nhất.

Kiến trúc độc lạ
- Kiến trúc nhà ở 2 tầng 8m hiện đại hướng đến sự đơn giản, phóng khoáng nhưng không kém phần ấn tượng. Công năng nhà ở được bố trí phù hợp, các khu vực chức năng sắp xếp khoa học đảm bảo sự tiện nghi, thoải mái khi sinh hoạt.
- Lối kiến trúc mở hài hoà với thiên nhiên, mang lại sự thông thoáng cho gia đình, tận dụng được nhiều ánh sáng tự nhiên.

Bố trí công năng dễ dàng
Với diện tích mặt tiền 8m, bạn có thể dễ dàng bố trí những công năng chính trong nhà như phòng ngủ, phòng bếp, phòng ăn phụ thuộc vào nhu cầu của gia đình.
Về cơ bản, mẫu nhà này đáp ứng được hầu hết các nhu cầu cơ bản của người dùng, với không gian 1 phòng khách, 1 phòng bếp, 3-4 phòng ngủ, 2 nhà vệ sinh ở 2 tầng và phòng thờ tại khu vực riêng tư.

Sử dụng vật liệu đa dạng
Dù gia chủ lựa chọn phong cách thiết kế nào thì cũng có thể bố trí nhiều loại vật liệu khác nhau cho không gian nhà ở. Một số loại nguyên vật liệu thường được dùng là nhôm, gỗ, kính cường lực pano, tường gạch bông và đáp ốp ngoại thất.

Xem thêm: 50+ Mẫu nhà 2 tầng chữ L 100m2 hiện đại tiện nghi nhất
Một số tiêu chuẩn thiết kế nhà 2 tầng có mặt tiền rộng 8m
Để tối ưu hoá không gian và bố trí công năng sử dụng phù hợp, dưới đây là một số tiêu chuẩn trong quá trình thiết kế nhà mặt tiền 8m 2 tầng hiện đại mà gia chủ cần quan tâm:
Sử dụng mặt bằng công năng hợp lý
Bố trí công năng các phòng cần đảm bảo khoa học, mang lại không gian sống thoải mái và tiện nghi. Tuỳ theo diện tích nhà ở mà bạn có thể sắp xếp không gian phòng khách, phòng ngủ và khu vực bếp ăn sao cho phù hợp.
Bên cạnh việc bố trí mặt bằng công năng phù hợp, nội thất bên trong cũng cần được sắp xếp sao cho khoa học, tiện nghi. Điều này sẽ giúp các thành viên trong gia đình có không gian sống khoa học và thoải mái nhất, đáp ứng đầy đủ các nhu cầu sinh hoạt, làm việc và giải trí.

Diện tích sân vườn cân đối
Trong thiết kế biệt thự, sân vườn là yếu tố vô cùng quan trọng. Thông thường, diện tích khu vực sân vườn sẽ chiếm khoảng 30-40% diện tích toàn khu đất. Với những căn nhà có sân vườn lớn, bạn có thể tận dụng khoảng không gian này để thiết kế hồ cá, hòn non bộ, thác nước hoặc nơi thư giãn cho các thành viên trong gia đình.
Lựa chọn cây trồng trong sân vườn cũng là điều cần quan tâm. Việc trồng cây quá lớn trong một diện tích đất nhỏ hẹp hoặc ngược lại sẽ tạo nên sự mất cân đối. Bạn nên linh hoạt sử dụng nhiều loại cây và hoa khác nhau để mang đến cho không gian sân vườn sự sinh động, phong phú.

Tiêu chuẩn về phong thủy khi xây dựng nhà
Đối với người Á Đông, yếu tố phong thuỷ đóng vai trò vô cùng quan trọng. Theo quan niệm dân gian, gia chủ khi thiết kế nhà 2 tầng 8m mặt tiền hiện đại cần lưu ý một số vấn đề như sau:
- Nhà ở nên xây dựng ở nơi thoáng khí nhưng không nên có gió mạnh. Bởi gió quá mạnh sẽ khiến tài lộ và vượng khí bay đi, khó lưu lại trong nhà.
- Màu sơn tường nhà nên lựa chọn theo mệnh cách của gia chủ, điểm nhấn là 1 đến 2 màu sắc tương sinh sẽ giúp gia chủ gặp được nhiều tài lộc và may mắn.
- Cần xác định hướng nhà phù hợp với tuổi, tránh phạm phải phong thuỷ. Biệt thự lớn nên lấy được nhiều ánh sáng tự nhiên sẽ tốt cho gia chủ cả về tài lộc và sức khoẻ.
- Sắp xếp đồ đạc trong nhà cần đảm bảo tính thẩm mỹ, đồng thời bố trí khoa học về mặt phong thuỷ. Điều này sẽ giúp gia chủ lấy được nhiều vượng khí hơn, gặp được nhiều may mắn trong cuộc sống.

Xem thêm: 55+ Mẫu thiết kế nhà 2 tầng 100m2 đẹp, thông thoáng
Thiết Kế Nhà 365 – Đơn vị thi công nhà 2 tầng mặt tiền 8m uy tín, chất lượng
Thiết Kế Nhà 365 với nhiều năm kinh nghiệm trong lĩnh vực thi công và xây dựng nhà ở xứng đáng là địa chỉ vàng để khách hàng trao gửi niềm tin. Chúng tôi cung cấp dịch vụ xây nhà trọn gói bao gồm tư vấn, thiết kế kiến trúc nội ngoại thất, thi công phần thô và thi công hoàn thiện. Quy trình khép kín mang đến không gian sống lý tưởng với mức giá phải chăng cho khách hàng.
Dưới đây là những lý do tại sao bạn nên lựa chọn Thiết Kế Nhà 365:
- Cam kết bảo hành dài hạn, chịu trách nhiệm từ những vấn đề nhỏ nhất trong quá trình thi công.
- Cam kết sử dụng nguyên vật liệu chất lượng, chính hãng 100%.
- Bàn giao đúng tiến độ cho khách hàng.
- Đội ngũ chuyên viên tư vấn và thợ thi công giàu kinh nghiệm, đã thực hiện thành công nhiều dự án xây dựng nhà ở.
Trên đây là một số mẫu nhà 2 tầng mặt tiền 8m hiện đại được ưa chuộng nhất hiện nay mà bạn có thể tham khảo. Nếu vẫn chưa lựa chọn được mẫu thiết kế phù hợp với mình, bạn có thể liên hệ ngay với Thiết Kế Nhà 365 để được tư vấn chi tiết và tận tình.









