Mẫu nhà mái Nhật đang trở thành lựa chọn phổ biến trong các công trình nhà phố và biệt thự nhờ thiết kế mái dốc nhẹ, thẩm mỹ tinh tế và khả năng chống nóng hiệu quả. Với đặc trưng mái ngói Nhật, độ dốc thấp và đua mái rộng, kiểu nhà này phù hợp với khí hậu Việt Nam, dễ dàng ứng dụng trong nhiều phong cách từ hiện đại đến tân cổ điển.
Trong bài viết này, Thiết Kế Nhà 365 sẽ tổng hợp 35+ mẫu thiết kế nhà mái Nhật đẹp, kèm theo chi phí xây dựng thực tế và hướng dẫn cách chọn thiết kế phù hợp với diện tích, ngân sách và nhu cầu sử dụng của từng gia đình.

- 1. Nhà mái Nhật là gì?
- 2. Ưu nhược điểm của nhà mái Nhật
- 3. So sánh mái Nhật – mái Thái – mái bằng
- 4. Chi phí xây nhà mái Nhật mới nhất
- 5. Tổng hợp mẫu nhà mái Nhật đẹp theo nhu cầu
- 6. Cách chọn mẫu nhà mái Nhật phù hợp
- 7. Bản vẽ & công năng nhà mái Nhật
- 8. Lưu ý khi xây nhà mái Nhật
- 9. FAQ – Câu hỏi thường gặp
1. Nhà mái Nhật là gì?
Nhà mái Nhật là kiểu nhà sử dụng hệ mái dốc nhẹ, mở rộng về nhiều phía, tạo cảm giác cân đối và thanh thoát. Không quá cầu kỳ như mái Thái nhưng cũng không phẳng hoàn toàn như mái bằng, mẫu nhà mái Nhật mang lại sự hài hòa giữa thẩm mỹ và công năng, phù hợp với khí hậu và nhu cầu sống tại Việt Nam hiện nay.
1.1 Đặc điểm kiến trúc mái Nhật
Kiến trúc mái Nhật được nhận diện qua hình khối đơn giản nhưng có tính tổ chức rõ ràng. Mái thường có độ dốc thấp, trải rộng và tạo hiệu ứng ngang giúp công trình trông bề thế hơn.
- Mái nhật dốc nhẹ (khoảng 25 – 35°), giúp thoát nước tốt nhưng không quá cao.
- Đua mái rộng, che nắng mưa trực tiếp cho tường và cửa.
- Hình khối mái trải đều nhiều hướng, tạo cảm giác cân đối.
- Thường sử dụng mái ngói Nhật hoặc vật liệu tương tự có độ bền cao.
- Dễ kết hợp với cửa kính lớn lấy sáng, ban công rộng và không gian mở.
Những đặc điểm này giúp nhà mái Nhật đảm bảo thẩm mỹ, tối ưu thông gió tự nhiên và chống nóng hiệu quả.

1.2 Nguồn gốc & ứng dụng tại Việt Nam
Mái Nhật bắt nguồn từ kiến trúc Nhật Bản hiện đại, nơi đề cao sự tối giản, tinh tế và khả năng thích nghi với môi trường sống. Khi ứng dụng tại Việt Nam, kiểu mái này đã được điều chỉnh để phù hợp hơn với điều kiện khí hậu nhiệt đới.
- Phù hợp với thời tiết mưa nhiều nhờ khả năng thoát nước nhanh.
- Giảm hấp thụ nhiệt nhờ độ dốc mái thấp và lớp ngói cách nhiệt.
- Dễ ứng dụng cho nhiều loại hình nhà ở.
Hiện nay, thiết kế nhà mái Nhật hiện đại xuất hiện phổ biến trong:
- Nhà mái Nhật 1 tầng, nhà cấp 4 mái Nhật.
- Nhà mái Nhật 2 tầng, biệt thự mái Nhật đẹp.
- Nhà mái Nhật sân vườn, nhà mái Nhật chữ L tại khu vực vùng ven, nông thôn.
1.3 Vì sao mái Nhật đang là xu hướng?
Sự lên ngôi của mẫu nhà mái Nhật không chỉ đến từ yếu tố thẩm mỹ mà còn nằm ở tính thực tế trong xây dựng và sử dụng.
- Hình thức nhẹ nhàng, sang trọng nhưng không quá cầu kỳ.
- Chi phí mái Nhật thấp hơn mái Thái do độ dốc mái thấp.
- Khả năng chống nóng mái ngói tốt, phù hợp khí hậu Việt Nam.
- Dễ kết hợp nhiều phong cách: Hiện đại, tân cổ điển, nhà vườn.
- Linh hoạt trong thiết kế mặt tiền nhà mái nhật đẹp.
Chính sự cân bằng giữa chi phí – thẩm mỹ – công năng đã giúp mái Nhật trở thành một trong những xu hướng nhà ở được ưa chuộng nhất hiện nay.

Tham khảo: Thiết Kế Nhà Phố 4 Tầng 5x20m: 20+ Mẫu Đẹp Kèm Mặt Bằng & Chi Phí Chi Tiết
2. Ưu nhược điểm của nhà mái Nhật
Trước khi lựa chọn mẫu nhà mái Nhật, việc hiểu rõ ưu và nhược điểm sẽ giúp gia chủ đánh giá chính xác mức độ phù hợp với diện tích đất, ngân sách và nhu cầu sử dụng thực tế. Đây cũng là bước quan trọng để tránh những sai lầm phổ biến khi thiết kế và thi công.
2.1 Ưu điểm
Nhà mái Nhật được ưa chuộng nhờ sự cân bằng giữa hình thức kiến trúc và hiệu quả sử dụng trong điều kiện khí hậu nhiệt đới.
- Thẩm mỹ tinh tế, phù hợp nhiều phong cách từ hiện đại đến tân cổ điển.
- Mái dốc nhẹ giúp tổng thể công trình thanh thoát, không bị nặng nề.
- Đua mái rộng giúp che nắng trực tiếp, giảm nhiệt cho không gian bên trong.
- Hệ mái ngói tạo lớp cách nhiệt tự nhiên, hỗ trợ chống nóng hiệu quả.
- Khả năng thoát nước tốt, hạn chế đọng nước và thấm dột.
- Dễ kết hợp với nhà mái Nhật sân vườn, tạo không gian sống gần gũi thiên nhiên.
Những ưu điểm này giúp nhà mái Nhật đặc biệt phù hợp với gia đình ưu tiên sự thoáng mát và tiện nghi lâu dài.

2.2 Nhược điểm
Bên cạnh những lợi thế rõ rệt, nhà mái Nhật cũng tồn tại một số hạn chế mà gia chủ cần cân nhắc trước khi xây dựng.
- Chi phí mái nhật cao hơn mái bằng khoảng 10 – 20% do sử dụng hệ mái ngói.
- Thi công phức tạp hơn, yêu cầu kỹ thuật chính xác để đảm bảo độ dốc và thoát nước.
- Thời gian thi công mái kéo dài hơn so với mái bằng.
- Phần hoàn thiện mái ngói cần xử lý kỹ để tránh thấm dột về lâu dài.
- Không tối ưu nếu xây trên lô đất quá nhỏ hoặc nhà phố chiều ngang hẹp.
Việc lựa chọn đơn vị thiết kế và thi công có kinh nghiệm là yếu tố quan trọng để kiểm soát tốt chi phí và chất lượng.
2.3 Có phù hợp khí hậu Việt Nam không?
Nhìn tổng thể, nhà mái Nhật được đánh giá là một trong những giải pháp phù hợp với điều kiện khí hậu tại Việt Nam, đặc biệt ở khu vực nóng ẩm, mưa nhiều.
- Độ dốc mái thấp nhưng vẫn đủ để thoát nước nhanh trong mùa mưa.
- Lớp mái ngói kết hợp khoảng không đệm giúp giảm hấp thụ nhiệt.
- Đua mái rộng hạn chế nắng chiếu trực tiếp vào tường và cửa.
- Phù hợp với mô hình nhà mái Nhật 1 tầng, 2 tầng và nhà vườn.
Tuy nhiên, để đạt hiệu quả tối ưu, gia chủ cần:
- Thiết kế đúng độ dốc mái.
- Chọn vật liệu lợp mái chất lượng.
- Kết hợp giải pháp thông gió tự nhiên và cách nhiệt.
Nếu được thiết kế đúng kỹ thuật, nhà mái Nhật không chỉ mát mẻ mà còn bền vững và ổn định trong điều kiện khí hậu Việt Nam.

Tham khảo: 25+ Mẫu Giếng Trời Đẹp Cho Nhà Ống, Nhà Phố (Hiện Đại & Dễ Ứng Dụng)
3. So sánh mái Nhật – mái Thái – mái bằng
Mỗi loại mái đều có đặc điểm riêng về thẩm mỹ, chi phí và khả năng thích nghi với khí hậu. Ngay sau đây là bảng so sánh chi tiết giữa mái Nhật, mái Thái và mái bằng:
Tiêu chí | Mái nhật | Mái thái | Mái bằng |
Độ dốc | Dốc nhẹ (25 – 35°) | Dốc cao (35 – 45°) | Gần như 0° |
Chi phí | Trung bình – cao | Cao nhất | Thấp nhất |
Thẩm mỹ | Thanh thoát, hiện đại, cân đối | Sang trọng, nổi bật, cầu kỳ | Tối giản, hiện đại |
Độ bền | Tốt, ổn định lâu dài | Rất tốt, thoát nước nhanh | Phụ thuộc chống thấm |
Phù hợp công trình | Nhà phố, biệt thự mini, nhà vườn | Biệt thự lớn, nhà tân cổ điển | Nhà phố đô thị, đất nhỏ |

Tham khảo: Nhà Phố Mái Bằng: 50+ Mẫu Đẹp, Chi Phí Xây Dựng & Có Nên Làm Không?
4. Chi phí xây nhà mái Nhật mới nhất
Chi phí xây nhà mái Nhật thường cao hơn mái bằng nhưng thấp hơn mái Thái, do đặc trưng sử dụng mái ngói và hệ kết cấu mái có độ dốc nhẹ. Việc nắm rõ đơn giá và các yếu tố ảnh hưởng sẽ giúp gia chủ chủ động dự toán ngân sách, hạn chế phát sinh trong quá trình thi công.
4.1 Đơn giá xây dựng theo m2
Mức chi phí xây nhà mái Nhật phụ thuộc vào diện tích, vật liệu và mức độ hoàn thiện. Dưới đây là đơn giá tham khảo phổ biến năm 2026:
Loại | Đơn giá (VNĐ/m2) |
Chi phí thi công phần thô + nhân công hoàn thiện | 3.900.000 – 4.400.000 |
Chi phí thi công nhà trọn gói tính theo vật tư – Gói trung bình | 6.900.000 – 7.400.000 |
Chi phí thi công nhà trọn gói tính theo vật tư – Gói khá | 7.500.000 – 7.900.000 |
Chi phí thi công nhà trọn gói tính theo vật tư – Gói cao cấp | 8.000.000 – 8.500.000 |
Lưu ý: Mức giá trên mang tính tham khảo, chi phí thực tế cần dựa vào hồ sơ thiết kế và điều kiện thi công cụ thể, bạn có thể tham khảo báo giá chi phí xây nhà từ hoàn thiện phần thô đến trọn gói trao tay được cập nhật mới nhất tại Thiết Kế Nhà 365.

4.2 Các yếu tố ảnh hưởng chi phí
Chi phí xây dựng nhà mái Nhật không cố định mà thay đổi tùy theo nhiều yếu tố thiết kế và thi công.
- Diện tích và quy mô công trình: Nhà càng lớn, chi phí tổng càng cao nhưng đơn giá/m2 có thể giảm.
- Độ phức tạp của mái: Mái nhiều khối, nhiều lớp sẽ tăng chi phí kết cấu và thi công.
- Vật liệu lợp mái: Mái ngói Nhật cao cấp, ngói màu hay ngói bê tông có giá khác nhau.
- Phong cách thiết kế: Nhà mái nhật tân cổ điển thường tốn chi phí hơn do nhiều chi tiết.
- Vị trí xây dựng: Khu vực thành phố, hẻm nhỏ sẽ tăng chi phí vận chuyển và nhân công.
- Mức độ hoàn thiện nội thất: Nội thất cơ bản hay cao cấp ảnh hưởng lớn đến tổng ngân sách.
Việc lựa chọn phương án thiết kế phù hợp ngay từ đầu sẽ giúp kiểm soát chi phí hiệu quả hơn.
4.3 Ví dụ chi phí thực tế theo diện tích
Dưới đây là một số mức chi phí tham khảo theo quy mô phổ biến của nhà mái Nhật:
- Nhà mái nhật 1 tầng (100m2): Tổng diện tích xây dựng khoảng 120 – 140m2, chi phí trọn gói khoảng 800 triệu – 1 tỷ.
- Nhà mái nhật 2 tầng (80m2/sàn): Tổng diện tích khoảng 200 – 220m2, chi phí trọn gói khoảng 1.4 – 1.6 tỷ.
- Biệt thự mái nhật 2 tầng (120 – 150m2/sàn): Tổng diện tích khoảng 300 – 350m2, chi phí trọn gói khoảng 2.2 – 3.0 tỷ.
Lưu ý:
- Nên dự trù thêm 10 – 15% chi phí phát sinh.
- Giá có thể thay đổi tùy thời điểm và vật liệu lựa chọn.
- Báo giá chính xác cần dựa trên bản vẽ thiết kế chi tiết.
Việc tham khảo chi phí từ sớm sẽ giúp gia chủ lựa chọn mẫu nhà mái Nhật phù hợp với ngân sách và tránh bị động trong quá trình xây dựng.

Xem thêm: Top 25+ Mẫu Nhà 1 Trệt 2 Lầu 6x20m Đẹp – Bản Vẽ & Chi Phí Xây Dựng Chi Tiết
5. Tổng hợp mẫu nhà mái Nhật đẹp theo nhu cầu
Không chỉ đa dạng về hình thức, mẫu nhà mái Nhật còn linh hoạt theo diện tích, phong cách và quy mô gia đình. Dưới đây là các nhóm thiết kế phổ biến, giúp bạn dễ dàng lựa chọn phương án phù hợp với nhu cầu thực tế.
5.1 Mẫu nhà mái Nhật 1 tầng đẹp
Nhà mái Nhật 1 tầng phù hợp với gia đình 2 – 4 người, ưu tiên không gian sống thoáng đãng, tiện nghi và dễ sử dụng.
5.1.1 Theo diện tích nhỏ (<100m2)
Những mẫu nhà mái Nhật diện tích nhỏ thường tập trung vào bố trí công năng tối giản, tối ưu không gian sử dụng nhưng vẫn đảm bảo tính thẩm mỹ.
- Thiết kế gọn, phù hợp đất 5x15m – 6x15m.
- Ưu tiên không gian mở, hạn chế vách ngăn.
- Kết hợp cửa kính lớn lấy sáng, tăng cảm giác rộng.
Gợi ý chi phí: Khoảng 600 – 900 triệu đồng.

5.1.2 Nhà vườn mái nhật
Nhà mái Nhật sân vườn là lựa chọn lý tưởng tại khu vực ngoại ô hoặc nông thôn, nơi có quỹ đất rộng.
- Thiết kế trải ngang, kết nối trực tiếp với sân vườn.
- Đua mái rộng giúp che nắng và tăng chiều sâu công trình.
- Tạo không gian sống gần gũi thiên nhiên.
Gợi ý chi phí: Khoảng 800 triệu – 1.3 tỷ đồng.

5.1.3 Phong cách hiện đại
Phong cách hiện đại giúp mẫu nhà mái Nhật trở nên trẻ trung, phù hợp với xu hướng kiến trúc hiện nay.
- Hình khối đơn giản, màu sắc trung tính.
- Kết hợp vật liệu kính, bê tông, lam trang trí.
- Tối ưu ánh sáng và thông gió tự nhiên.
Gợi ý chi phí: Khoảng 700 triệu – 1.2 tỷ đồng.

5.1.4 Nhà mái Nhật 1 tầng 3 phòng ngủ
Nhà mái Nhật 1 tầng 3 phòng ngủ là lựa chọn phổ biến cho gia đình 4 – 6 thành viên, đảm bảo đầy đủ công năng sinh hoạt.
- Bố trí gồm phòng khách, bếp – ăn, 3 phòng ngủ.
- Có thể thêm 1 – 2 WC tùy diện tích.
- Phù hợp đất từ 100 – 150m2.
Gợi ý chi phí: Khoảng 900 triệu – 1.4 tỷ đồng.

5.2 Mẫu nhà mái Nhật 2 tầng
Nhà mái Nhật 2 tầng phù hợp với gia đình đông thành viên hoặc cần phân tách không gian riêng tư rõ ràng.
- Tầng 1: Phòng khách, bếp – ăn, phòng ngủ.
- Tầng 2: Phòng ngủ, phòng sinh hoạt chung, ban công.
- Tạo hình mặt tiền cân đối, bề thế.
Gợi ý chi phí: Khoảng 1.2 – 2.0 tỷ đồng.

5.3 Nhà mái Nhật cấp 4
Nhà mái Nhật cấp 4 là phương án tiết kiệm chi phí nhưng vẫn đảm bảo thẩm mỹ và công năng cơ bản.
- Thiết kế đơn giản, dễ thi công.
- Phù hợp khu vực nông thôn, đất rộng.
- Có thể mở rộng thêm sân vườn hoặc hiên.
Gợi ý chi phí: Khoảng 500 – 800 triệu đồng.

Việc lựa chọn đúng mẫu nhà mái Nhật không chỉ phụ thuộc vào thẩm mỹ, mà còn cần cân nhắc diện tích, ngân sách và nhu cầu sử dụng lâu dài.
Xem thêm: Mẫu thiết kế nhà 7x15m đẹp, tối ưu công năng (Kèm bản vẽ 1 tầng & 2 tầng)
6. Cách chọn mẫu nhà mái Nhật phù hợp
Việc lựa chọn mẫu nhà mái Nhật cần dựa trên các yếu tố thực tế như diện tích, ngân sách và nhu cầu sử dụng, thay vì chỉ nhìn vào hình ảnh đẹp. Khi xác định đúng ngay từ đầu, gia chủ sẽ tối ưu được chi phí và đảm bảo công trình phù hợp lâu dài.
6.1 Chọn theo diện tích đất
Diện tích đất quyết định trực tiếp đến quy mô, hình khối và cách tổ chức không gian của ngôi nhà.
- Đất nhỏ dưới 100m2 phù hợp với nhà mái Nhật 1 tầng hoặc 2 tầng dạng khối đơn giản.
- Đất trung bình từ 100 – 150m2 có thể bố trí nhà 1 tầng 3 phòng ngủ hoặc nhà 2 tầng có sân trước.
- Đất rộng trên 150m2 phù hợp nhà mái Nhật sân vườn, biệt thự mái Nhật với không gian trải ngang.
Việc lựa chọn đúng theo diện tích giúp công trình cân đối, không bị chật chội hoặc lãng phí không gian.

6.2 Chọn theo ngân sách
Ngân sách là yếu tố quan trọng để xác định quy mô và mức độ đầu tư cho công trình.
- Ngân sách dưới 1 tỷ phù hợp nhà cấp 4 mái Nhật hoặc nhà 1 tầng đơn giản.
- Ngân sách từ 1 – 2 tỷ có thể xây nhà mái Nhật 2 tầng với công năng đầy đủ.
- Ngân sách trên 2 tỷ phù hợp biệt thự mái Nhật đẹp với thiết kế và vật liệu cao cấp.
Cân đối ngân sách ngay từ đầu sẽ giúp tránh phát sinh chi phí trong quá trình thi công.
6.3 Chọn theo số thành viên
Số lượng người sử dụng ảnh hưởng đến cách bố trí phòng và công năng.
- Gia đình 2 – 3 người phù hợp nhà 1 tầng, 2 phòng ngủ.
- Gia đình 4 – 6 người nên chọn nhà 1 tầng 3 phòng ngủ hoặc nhà 2 tầng.
- Gia đình nhiều thế hệ cần ưu tiên nhà 2 tầng, bố trí phòng ngủ tầng trệt.
Phân bổ không gian hợp lý giúp đảm bảo sự tiện nghi và riêng tư cho từng thành viên.
6.4 Chọn theo phong cách
Phong cách thiết kế quyết định diện mạo và cảm xúc không gian sống.
- Phong cách hiện đại phù hợp nhà mái Nhật với hình khối đơn giản, vật liệu kính và bê tông.
- Phong cách tân cổ điển phù hợp biệt thự mái Nhật với chi tiết trang trí tinh tế.
- Phong cách nhà vườn ưu tiên không gian mở, kết nối với thiên nhiên.
Lựa chọn phong cách phù hợp sẽ giúp tổng thể công trình hài hòa và có tính thẩm mỹ lâu dài.

Xem thêm: Mẫu thiết kế nhà 8x15m – Gợi ý mặt bằng & chi phí xây dựng thực tế
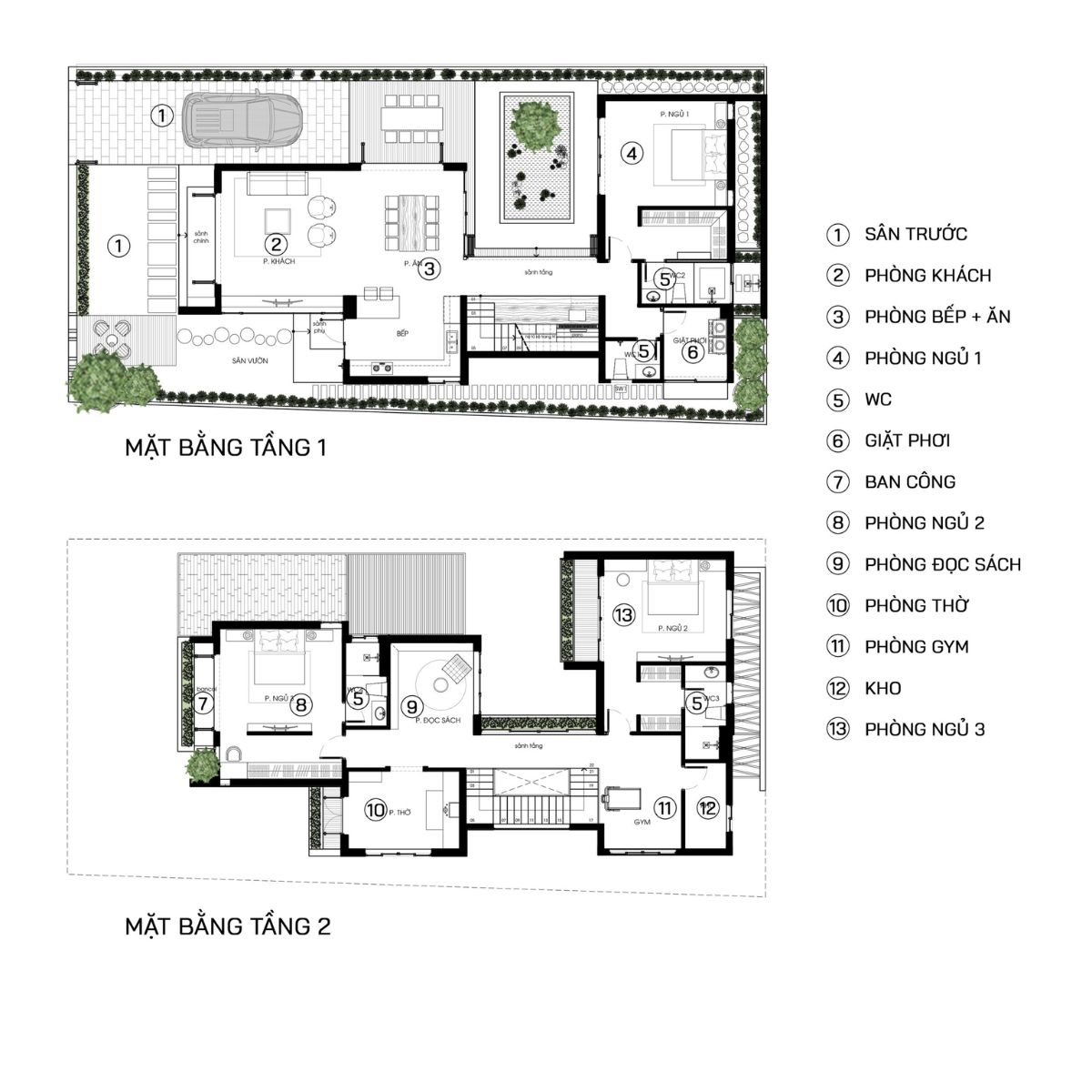
7. Bản vẽ & công năng nhà mái Nhật
Bên cạnh yếu tố thẩm mỹ, bản vẽ và cách bố trí công năng là phần quyết định trực tiếp đến trải nghiệm sống. Một mẫu nhà mái Nhật đẹp cần đi kèm mặt bằng hợp lý, đảm bảo thông thoáng, tiện nghi và phù hợp với thói quen sinh hoạt của gia đình.
7.1 Mặt bằng 1 tầng
Mặt bằng nhà mái Nhật 1 tầng thường tổ chức theo dạng trải ngang, giúp tối ưu kết nối giữa các không gian và dễ sử dụng.
- Phòng khách đặt gần cửa chính, đóng vai trò trung tâm kết nối.
- Khu bếp – ăn bố trí phía sau, có thể liên thông với phòng khách.
- Các phòng ngủ sắp xếp về hai bên hoặc phía sau để đảm bảo riêng tư.
- Khu vệ sinh đặt tại vị trí thuận tiện, dễ tiếp cận từ các phòng.
Với nhà mái Nhật 1 tầng 3 phòng ngủ, diện tích lý tưởng thường từ 100 – 150m2 để đảm bảo công năng không bị chật.

7.2 Mặt bằng 2 tầng
Nhà mái Nhật 2 tầng cho phép phân chia không gian theo chiều cao, giúp tăng tính riêng tư và linh hoạt trong sử dụng.
- Tầng 1 gồm phòng khách, bếp – ăn và 1 phòng ngủ (phù hợp người lớn tuổi).
- Tầng 2 bố trí các phòng ngủ còn lại, phòng sinh hoạt chung và ban công.
- Lõi giao thông đặt giữa giúp di chuyển thuận tiện và phân chia không gian rõ ràng.
- Ban công rộng kết hợp mái đua giúp giảm nắng và tăng thông thoáng.
Cách tổ chức này phù hợp với gia đình 4 – 6 người, cần không gian sinh hoạt chung và riêng tách biệt.

7.3 Lưu ý khi bố trí không gian
Để nhà mái Nhật phát huy tối đa hiệu quả sử dụng, việc bố trí không gian cần tính toán ngay từ giai đoạn thiết kế.
- Ưu tiên không gian mở, hạn chế vách ngăn để tăng cảm giác rộng.
- Tận dụng cửa kính lớn lấy sáng, kết hợp thông gió tự nhiên.
- Bố trí giếng trời nếu nhà có chiều sâu lớn.
- Sắp xếp công năng theo trục rõ ràng, tránh giao cắt luồng di chuyển.
- Kết hợp hiên, mái đua để tạo lớp đệm chống nóng và mưa.
Một mặt bằng hợp lý không chỉ giúp ngôi nhà đẹp hơn mà còn nâng cao chất lượng sống trong suốt quá trình sử dụng lâu dài.

Xem thêm: Nhà phố 4 tầng 5x15m và hành trình biến những yêu cầu giản dị thành không gian sống ấm cúng
8. Lưu ý khi xây nhà mái Nhật
Để nhà mái Nhật đạt hiệu quả thẩm mỹ và độ bền lâu dài, gia chủ cần chú trọng đến các yếu tố kỹ thuật ngay từ giai đoạn thiết kế và thi công. Những chi tiết tưởng chừng nhỏ như độ dốc mái hay vật liệu lợp sẽ ảnh hưởng trực tiếp đến khả năng chống nóng, chống thấm và tuổi thọ công trình.
- Độ dốc mái chuẩn: Độ dốc mái Nhật thường dao động từ 25 – 35°, đủ để thoát nước nhanh nhưng vẫn giữ dáng mái thấp đặc trưng. Nếu mái quá thấp, nước dễ đọng gây thấm; nếu quá cao, sẽ mất đi tỷ lệ cân đối và làm tăng chi phí thi công.
- Vật liệu lợp mái: Nên ưu tiên mái ngói Nhật, ngói màu hoặc ngói bê tông chất lượng cao để đảm bảo độ bền và khả năng cách nhiệt. Việc lựa chọn vật liệu phù hợp không chỉ ảnh hưởng đến thẩm mỹ mà còn quyết định hiệu quả chống nóng mái ngói và chi phí bảo trì về lâu dài.
- Chống thấm – thoát nước: Hệ mái cần xử lý chống thấm nhiều lớp, đặc biệt tại các vị trí giao nhau và chân mái. Hệ thống máng xối và ống thoát nước phải tính toán hợp lý để tránh tình trạng ứ đọng nước, gây thấm dột sau thời gian sử dụng.
- Phong thủy mái: Hình khối mái nên cân đối, không lệch hoặc bị khuyết góc để đảm bảo sự hài hòa tổng thể. Độ dốc và hướng mái cũng cần xem xét theo hướng nắng, gió và phong thủy, giúp không gian bên trong luôn thông thoáng và dễ chịu.

Tham khảo: Nhà phố 5 tầng 5x18m tại Hà Tĩnh: Bản hòa âm của đá, gỗ và cây xanh
9. FAQ – Câu hỏi thường gặp
9.1 Nhà mái Nhật bao nhiêu tiền 1m2?
Chi phí phần thô nhà mái Nhật và nhân công hoàn thiện dao động từ 3.900.000 – 4.400.000 VNĐ/m2. Nếu xây trọn gói, mức giá phổ biến khoảng 6.900.000 – 8.500.000 VNĐ/m2 tùy theo vật liệu và mức độ đầu tư.
9.2 Nhà mái Nhật có nóng không?
Nhà mái Nhật không nóng nếu thiết kế và thi công đúng kỹ thuật. Lớp mái ngói kết hợp với khoảng không đệm phía dưới giúp giảm hấp thụ nhiệt, phần đua mái rộng hạn chế nắng chiếu trực tiếp vào tường và cửa. Khi kết hợp thêm giải pháp thông gió tự nhiên và vật liệu cách nhiệt, không gian bên trong luôn giữ sự mát mẻ.
9.3 Mái Nhật hay mái Thái tốt hơn?
Không có loại mái nào tốt hơn tuyệt đối, mà phụ thuộc vào nhu cầu sử dụng và ngân sách. Mái Nhật phù hợp với những công trình ưu tiên sự cân đối, hiện đại và chi phí hợp lý. Mái Thái có độ dốc lớn, tạo hình nổi bật hơn nhưng chi phí cũng cao hơn và thi công phức tạp hơn.
9.4 Có nên xây nhà mái Nhật 1 tầng không?
Nhà mái Nhật 1 tầng là lựa chọn phù hợp với gia đình ít thành viên hoặc những khu đất có diện tích rộng. Kiểu nhà này giúp việc sinh hoạt thuận tiện, không cần di chuyển giữa các tầng và dễ bố trí công năng. Tuy nhiên, với những khu đất nhỏ hoặc gia đình đông người, phương án nhà 2 tầng sẽ tối ưu diện tích hơn.
9.5 Tuổi thọ mái Nhật bao lâu?
Tuổi thọ của mái Nhật phụ thuộc vào chất lượng vật liệu và kỹ thuật thi công. Với mái ngói tốt và thi công đúng tiêu chuẩn, tuổi thọ có thể đạt từ 30 đến 50 năm. Nếu bảo trì định kỳ và xử lý chống thấm tốt, hệ mái có thể sử dụng bền vững trong thời gian dài mà không phát sinh nhiều chi phí sửa chữa.

Mẫu nhà mái Nhật ghi điểm ở thẩm mỹ tinh tế, đáp ứng tốt các tiêu chí về công năng, chống nóng và độ bền trong điều kiện khí hậu Việt Nam. Từ nhà mái Nhật 1 tầng, 2 tầng đến biệt thự mái Nhật sân vườn, mỗi phương án đều có thể linh hoạt điều chỉnh theo diện tích, ngân sách và nhu cầu sử dụng thực tế của từng gia đình.
Nếu bạn đang phân vân chưa biết chọn mẫu nhà mái Nhật nào phù hợp hoặc cần tư vấn chi tiết về thiết kế – thi công trọn gói, Thiết Kế Nhà 365 sẽ là đơn vị đồng hành giúp bạn tối ưu từ bản vẽ đến chi phí thực tế. Liên hệ ngay để được tư vấn phương án phù hợp với quỹ đất và ngân sách của bạn.









