Các mẫu nhà ống 1 tầng 2 phòng ngủ rất được ưa chuộng bởi sự đa dạng về phong cách, tiện nghi trong bố trí nội thất, giá cả hợp lý. Để giúp bạn đọc có thêm ý tưởng cho tổ ấm của mình, Công Ty Thiết Kế Nhà 365 sẽ giới thiệu các mẫu bản vẽ thiết kế nhà ống 1 tầng 2 phòng ngủ đẹp hiện đại thịnh hành nhất hiện nay ngay trong bài viết sau đây.
-
10+ bản vẽ công năng nhà ống 1 tầng 2 phòng ngủ được bố trí khoa học
- Bản vẽ nhà ống 1 tầng 2 phòng ngủ với chi phí khoảng 500 triệu
- Bản vẽ nhà ống 1 tầng 2 phòng ngủ với diện tích 70m2
- Bản vẽ nhà ống 1 tầng 2 phòng ngủ với diện tích 80m2
- Bản thiết kế nhà ống 1 tầng 2 phòng ngủ diện tích 90m2
- Bản vẽ thiết kế nhà 1 tầng 2 phòng ngủ có phòng thay đồ
- Mẫu thiết kế nhà 1 tầng 2 phòng ngủ đẹp đơn giản
- Bản vẽ nhà 1 tầng 2 phòng ngủ diện tích 5x20m
- Bản vẽ mẫu nhà 1 tầng 2 phòng ngủ hiện đại mặt tiền 5m
- Thiết kế nhà 1 tầng 2 phòng ngủ hiện đại mặt tiền 6m
- Tuyển chọn 1 số mẫu nhà 1 tầng 2 phòng ngủ siêu đẹp
- Cách tính chi phí xây dựng nhà ống 1 tầng 2 phòng ngủ
10+ bản vẽ công năng nhà ống 1 tầng 2 phòng ngủ được bố trí khoa học
Với xu hướng chú trọng đến sự đơn giản và tiện nghi hiện nay, nhiều gia đình trẻ thích không gian vừa phải, thoải mái, phù hợp với nhu cầu của mình cũng như tiết kiệm chi phí. Chính vì vậy, nhà ống 1 tầng 2 phòng ngủ hiện đại đang là một trong những mẫu nhà hiện đại nhất hiện nay được nhiều quý khách hàng ưu tiên lựa chọn. Dưới đây là các mẫu thiết kế và bố trí công năng chi tiết Công Ty Thiết Kế Nhà 365 gợi ý cho bạn đọc:
Bản vẽ nhà ống 1 tầng 2 phòng ngủ với chi phí khoảng 500 triệu
Thời điểm hiện tại đây là một trong những bản thiết kế nhà ống 1 tầng 2 phòng ngủ được yêu thích nhất. Bởi lẽ, nó không chỉ đáp ứng nhu cầu về không gian sinh hoạt, hình thức thẩm mỹ mà còn có chi phí vô cùng tiết kiệm.
Cụ thể, mẫu thiết kế nhà ống 1 tầng 2 phòng chi phí 500 triệu được thiết kế khéo léo với 2 phòng ngủ cạnh nhau và cuối nhà. Phòng khách và bếp rộng rãi, phía sau bếp tiện nghi là nhà vệ sinh nhỏ gọn.
Nhà có sân vườn phía trước vừa đủ rộng cho trẻ nhỏ chơi đùa ở đó, sân sau có chỗ giặt giũ phơi quần áo và có nhà vệ sinh ngoài trời.

Bản vẽ nhà ống 1 tầng 2 phòng ngủ với diện tích 70m2
Từ ngoài bước vào, căn phòng đầu tiên bạn bắt gặp chính là phòng khách. Đây là nơi gia đình tiếp đón bạn bè, tụ họp. Được thiết kế tương đối rộng rãi với điểm nhấn là những bức tranh tường. Phòng bếp được thiết kế liên thông với phòng khách. Hai phòng ngủ cuối cùng được thiết kế để mang đến sự yên bình và thoải mái khi nghỉ ngơi.

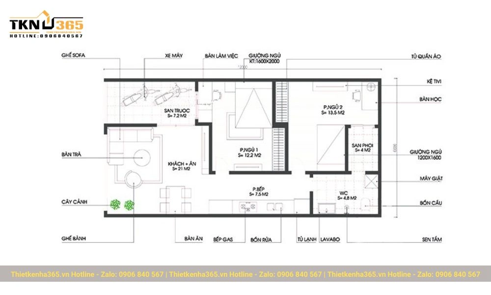
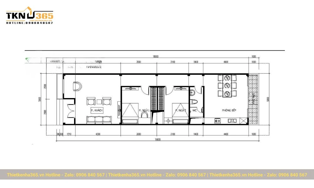
Bản vẽ nhà ống 1 tầng 2 phòng ngủ với diện tích 80m2
Diện tích 80m2 không quá lớn, cũng không nhỏ, phù hợp với những gia đình trẻ, ít thành viên. Các khu chức năng gồm bếp, phòng khách, phòng tắm, hai phòng ngủ có diện tích gần như bằng nhau. Đặc biệt, hai phòng ngủ được đặt ở hai đầu của ngôi nhà, cung cấp không gian riêng tư cho các thành viên trong gia đình. Mỗi phòng ngủ có không gian đủ lớn để đáp ứng các nhu cầu cơ bản, cùng với các cửa sổ cho ánh sáng tự nhiên và sự thông thoáng.

Bản thiết kế nhà ống 1 tầng 2 phòng ngủ diện tích 90m2
Mẫu thiết kế nhà 1 tầng dạng ống với diện tích 90m2 và 2 phòng ngủ này rất được ưa chuộng ở nông thôn. Cửa chính mở ra một không gian tiếp đón rộng rãi, dẫn vào phòng khách mở và sáng sủa. Phòng khách được bố trí gần khu vực bếp hoặc kết nối với không gian ăn. Cách đó là 2 phòng ngủ và 1 nhà wc chung.

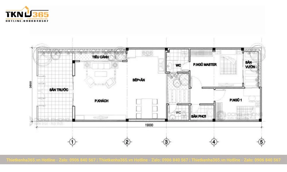
Bản vẽ thiết kế nhà 1 tầng 2 phòng ngủ có phòng thay đồ
Ngay từ lối đi vào thì không gian bạn bắt gặp đầu tiên chính khoảng sân nhỏ và cây xanh giúp cải thiện lưu thông không khí. Sau cửa chính là phòng khách nối liền khu vực ăn uống được thiết kế tương đối rộng rãi và thoải mái. Bởi đây không chỉ là không gian phục vụ khách, mà còn là nơi tụ tập của cả gia đình. Ngoài ra, không gian sân sau hoặc sân trước có thể được sử dụng để tạo ra khu vực ngoài trời cho các hoạt động gia đình hoặc cây xanh, tạo không gian thư giãn và giao lưu.

Mẫu thiết kế nhà 1 tầng 2 phòng ngủ đẹp đơn giản
Đây cũng là mẫu nhà 1 tầng với 2 phòng ngủ lớn / nhỏ mà bạn có thể tham khảo. Đi vào là phòng khách với thiết kế đơn giản và rộng rãi làm cho bầu không khí nhẹ nhàng và tràn đầy sức sống. Tiếp đến là phòng bếp tích hợp với khu vực ăn uống giúp tối ưu mặt bằng của ngôi nhà. Hai phòng ngủ liền kề nhau, một trong hai có WC riêng trong phòng.

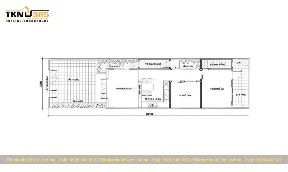
Bản vẽ nhà 1 tầng 2 phòng ngủ diện tích 5x20m
Mẫu nhà 1 tầng 2 phòng ngủ có diện tích 5x20m phù hợp cho một gia đình từ 4- 5 thành viên. Thiết kế khá hẹp về chiều rộng nhưng lại có chiều sâu giúp gia đình có khoảng sân vườn vui chơi. Sự sắp xếp thông minh giữa phòng khách, nhà bếp và khu vực ăn tạo ra không gian mở và linh hoạt cho các hoạt động hàng ngày. Tiếp theo là hai phòng ngủ chung vách tường, trong đó phòng ngủ bố mẹ có nhà vệ sinh riêng.
Tham khảo: Các mẫu thiết kế nhà diện tích 5x20m phong cách hiện đại

Bản vẽ mẫu nhà 1 tầng 2 phòng ngủ hiện đại mặt tiền 5m
Mẫu nhà này được sắp xếp hợp lý và có 2 phòng ngủ liền nhau, nhà vệ sinh đặt bên cạnh kín đáo. Phòng khách và bếp rộng rãi, tiện nghi và nối liền khu vực ăn uống để tiết kiệm diện tích. Phòng bếp ở cuối nhà với cửa sau giúp thông khí khi nấu nước, tránh ám mùi trong nhà.

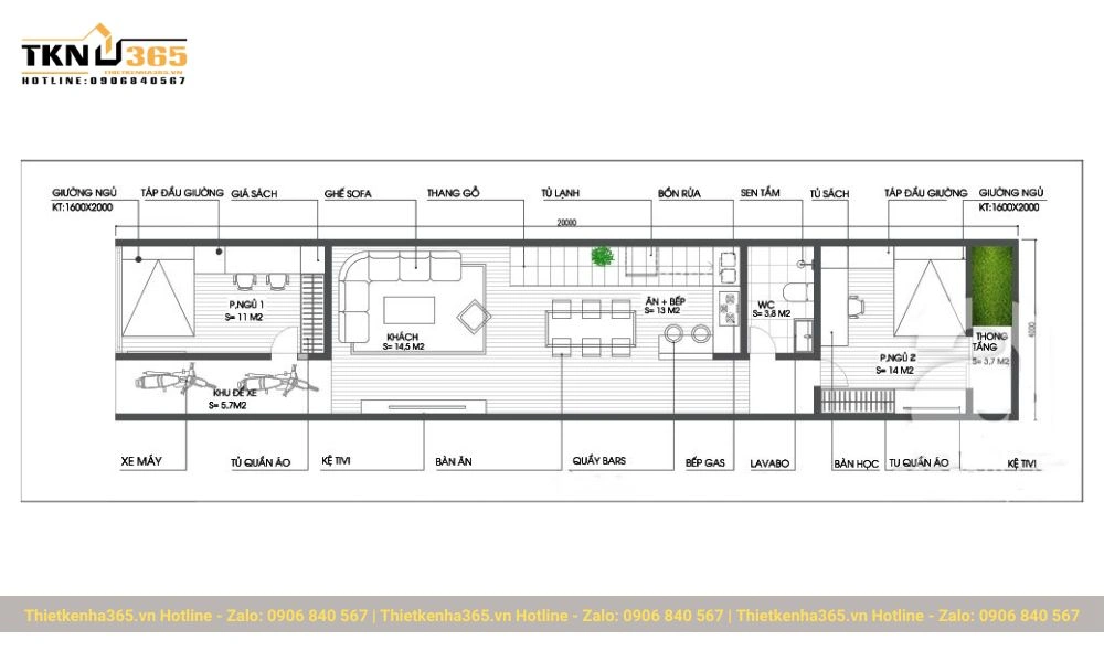
Thiết kế nhà 1 tầng 2 phòng ngủ hiện đại mặt tiền 6m
Bản vẽ thiết kế nhà 1 tầng với mặt tiền rộng 6m, gồm 2 phòng ngủ hiện đại được bố trí liền kề, kèm theo sân phơi, nhà vệ sinh và khu vườn tiểu cảnh. Phòng khách, khu vực ăn uống và phòng bếp nối liền không sử dụng tường hay vách giúp không gian trở nên rộng rãi, thoải mái hơn.

Tham khảo: 40+ mẫu nhà mái lệch 1 tầng đẹp, độc đáo, tối ưu chi phí
Tuyển chọn 1 số mẫu nhà 1 tầng 2 phòng ngủ siêu đẹp
Dưới đây là một vài hình ảnh phối cảnh 3D ngoại thất của nhà 1 tầng có 2 phòng ngủ với đa dạng phong cách, bạn có thể xây tại nông thôn hoặc thành phố đều phù hợp. Liên hệ 0906 840 567 để được tư vấn chi tiết hơn nhé.
Tham khảo: [Tổng hợp] Mẫu thiết kế nhà 40m2 1 tầng đẹp, ấn tượng 2025
Cách tính chi phí xây dựng nhà ống 1 tầng 2 phòng ngủ
Để tính chi phí xây nhà ống 1 tầng 2 phòng ngủ, bạn cần lưu ý các thông tin sau:
- Đơn giá mức giá thi công trọn gói. Trung bình hiện nay là: 6.000.000 VNĐ/m2
- Mức giá thi công phần thô. Trung bình hiện nay là 3.650.000 VNĐ/m2
- Hệ số xây dựng cho từng hạng mục. Bạn có thể tham khảo bảng sau để để hiểu rõ hơn.

Ví dụ: Muốn xây ngôi nhà ống 1 tầng 2 phòng ngủ đất nền diện tích 5x20m, dùng mái tôn, móng bè, ta tính như sau:
- Diện tích xây dựng = Diện tích đất x 100% x Mức giá thi công trọn gói = 5x20 x 100% x 6.000.000 = 600.000.000 VNĐ
- Móng bè = Diện tích x 50% x Mức giá thi công phần thô = 5x20 x 50% x 3.650.000 = 182.500.000 VNĐ
- Mái tôn = Diện tích x 30% x Mức giá thi công phần thô = 5x20 x 30% x 3.650.000 = 109.500.000 VNĐ
=> Giá xây một ngôi nhà hộp 1 tầng 2 phòng ngủ 5x20 sẽ là: 600.000.000 VNĐ + 182.500.000 VNĐ + 109.500.000 VNĐ = 892.000.000 VNĐ
Tuy nhiên, thực tế ta còn phải còn phải tính thêm đơn giá thiết kế nhà phố, giấy phép xây dựng, vật liệu xây dựng, nhân công, máy móc; các chi phí phát sinh trong quá trình xây dựng như chi phí vận chuyển, thuê đất, đổ đường, trồng cây cảnh, hố ga nước mưa, cống thoát nước, thiết bị nội thất, vv… Nếu bạn không có kinh nghiệm trong lĩnh vực này thì có thể tìm kiếm các công ty xây dựng uy tín như Thiết Kế Nhà 365. Đội ngũ kiến trúc sư giàu kinh nghiệm của chúng tôi luôn sẵn lòng hỗ trợ.
Hy vọng những mẫu thiết kế nhà ống 1 tầng 2 phòng ngủ đẹp đã mang đến cho bạn đọc thêm nhiều gợi ý thú vị để kiến tạo ngôi nhà mơ ước của mình. Nếu bạn có bất kỳ câu hỏi hoặc cần thêm thông tin, hãy liên hệ đến Công ty Thiết Kế Nhà 365 để được chúng tôi tư vấn và báo giá chi tiết nhất!
Xu hướng thiết kế nhà 1 tầng:
- Thiết kế nhà 1 tầng 5x15m
- Thiết kế nhà 40m2 1 tầng
- Thiết kế nhà 1 tầng 5x20m
- Thiết kế nhà trệt 7x15
- Thiết kế nhà có gác lửng














