Với tình hình diện tích đất ngày càng hạn hẹp, việc thiết kế và xây dựng nhà để có được một ngôi nhà vừa đẹp vừa đảm bảo đầy đủ công năng càng khó khăn. Nếu bạn đang muốn xây nhà trên diện tích đất 6x15m nhưng không biết nên thiết kế như thế nào. Trong bài viết dưới đây, Công Ty Thiết Kế Nhà 365 sẽ gợi ý cho bạn những mẫu thiết kế nhà 2 tầng 6x15 đẹp, thông thoáng và tiện nghi nhất.
-
1. Một số mẫu thiết kế nhà 2 tầng 6x15 đẹp, tiện nghi nhất
- 1.1 Mẫu thiết kế nhà 2 tầng 6x15 16m2 3 phòng ngủ
- 1.2 Mẫu thiết kế nhà 2 tầng 6x15 đẹp hiện đại
- 1.3 Mẫu thiết kế nhà 2 tầng 6x15 sang trọng
- 1.4 Mẫu thiết kế nhà 2 tầng 6x15 tân cổ điển
- 1.5 Mẫu nhà 2 tầng 6x15 đơn giản
- 1.6 Mẫu nhà 2 tầng chữ L 6x15
- 1.7 Mẫu thiết kế nhà 2 tầng 6x15 có giếng trời
- 1.8 Mẫu thiết kế nhà 2 tầng 6x15 bán hầm
- 1.9 Mẫu thiết kế nhà 2 tầng 6x15 có gara
- 1.10 Mẫu nhà 6x15 2 tầng không gian xanh
- 1.11 Mẫu thiết kế nhà ống 2 tầng 6x15
- 1.12 Mẫu nhà 2 tầng 6x15 mái Nhật
- 1.13 Mẫu nhà 2 tầng mái bằng diện tích 6x15
- 1.14 Mẫu nhà 6x15 2 tầng mái Thái
- 1.15 Mẫu thiết kế nhà 2 tầng 6x15 mái lệch
- 2. Lựa chọn đơn vị thiết kế nhà 2 tầng 6x15 uy tín
1. Một số mẫu thiết kế nhà 2 tầng 6x15 đẹp, tiện nghi nhất
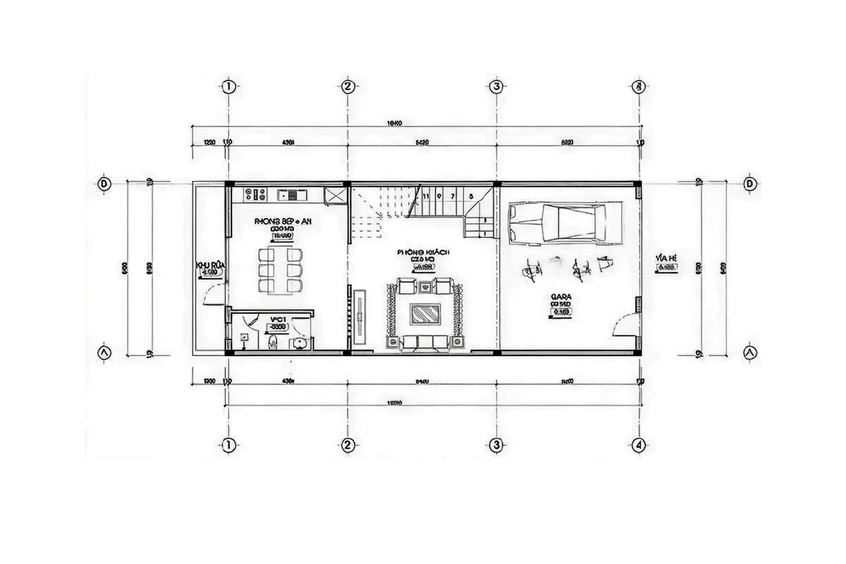
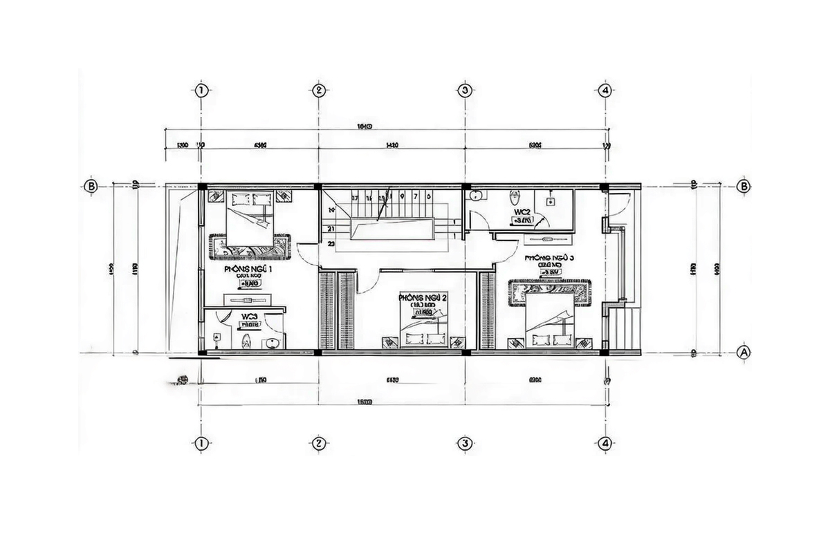
1.1 Mẫu thiết kế nhà 2 tầng 6x15 16m2 3 phòng ngủ
Thông tin chính:
- Diện tích : 6x15m.
- Tổng diện tích xây dựng của ngôi nhà: 160 m2.
- Số phòng ngủ: 3.
Mẫu nhà 2 tầng có diện tích chỉ 6x15m với thiết kế 3 phòng ngủ. Các đường nét vuông vắn mang đến cảm giác chắc chắn. Mặt tiền của ngôi nhà có màu be kết hợp với màu nâu tạo nên phong cách hơi cổ điển một chút. Đối với mặt bằng tầng 1 sẽ có 1 phòng khách, 1 phòng bếp kết hợp phòng ăn, 1 phòng ngủ và 1 nhà vệ sinh. Tầng 2 được bố trí với 1 phòng thờ, 2 phòng ngủ và 1 nhà vệ sinh.



1.2 Mẫu thiết kế nhà 2 tầng 6x15 đẹp hiện đại
Thông tin chính:
- Diện tích : 6x15m.
- Tổng diện tích xây dựng của ngôi nhà: 160 m2.
- Số phòng ngủ: 3.
Mẫu thiết kế nhà 6x15m đẹp với tông màu trắng đơn giản làm chủ đạo mang vẻ đẹp sang trọng, hiện đại. Các đường nét vuông vắn mang đến cảm giác chắc chắn nhưng không bị thô cứng. Trước sân nhà có không gian xanh mang đến cảm giác thoải mái, dễ chịu. Tầng 1 bao gồm không gian sinh hoạt chung như phòng khách và phòng bếp kết hợp phòng ăn. Tầng 2 sẽ được bố trí không gian riêng cho các thành viên trong gia đình.



1.3 Mẫu thiết kế nhà 2 tầng 6x15 sang trọng
Thông tin chính:
- Diện tích : 6x15m.
- Tổng diện tích xây dựng của nhà 2 tầng: 170 m2.
- Số phòng ngủ: 4.
Nếu bạn muốn có một ngôi nhà 2 tầng 6x15m sang trọng mà vẫn có được không gian xanh mát mẻ thoáng đãng thì đừng bỏ qua mẫu nhà này. Bởi vì nó có một tầng tum và ban công đầy cây xanh có tác dụng che nắng. Mặt tiền được bố trí mặt kính giúp nhà đón được ánh sáng tự nhiên.



1.4 Mẫu thiết kế nhà 2 tầng 6x15 tân cổ điển
Thông tin chính:
- Diện tích : 6x15m.
- Tổng diện tích xây dựng: 160 m2.
- Số phòng ngủ: 3.
Đây là một trong những mẫu nhà phố 6m được nhiều người lựa chọn. Phần tường ở sát mái nhà được sơn màu xanh đậm tạo điểm nhấn. Lan can của tầng 2 được thiết kế cầu kỳ với những đường uốn lượn vô cùng mềm mại.



1.5 Mẫu nhà 2 tầng 6x15 đơn giản
Thông tin chính:
- Diện tích : 6x15m.
- Tổng diện tích xây dựng: 150 m2.
- Số phòng ngủ: 2.
Đây là một mẫu nhà có thiết kế vô cùng đơn giản. Màu trắng kết hợp với tông màu nâu gỗ sang trọng, nhã nhặn. Thiết kế theo phong cách hiện đại tối giản, các đường nét vuông vắn, dứt khoát, thanh lịch nhưng lại vô cùng chắc chắn. Phần ban công có trồng hoa và cây cảnh vừa đẹp vừa mát mẻ.



1.6 Mẫu nhà 2 tầng chữ L 6x15
Thông tin chính:
- Diện tích : 6x15m.
- Tổng diện tích xây dựng của nhà 2 tầng chữ L: 165 m2.
- Số phòng ngủ: 3.
Đây cũng là một mẫu thiết kế nhà rất đáng để tham khảo. Mẫu thiết kế này được xây dựng theo kiểu chữ L giúp tiết kiệm diện tích tối đa. Phía trước ngôi nhà có thể tận dụng để làm khu vui chơi và trồng cây cảnh.



1.7 Mẫu thiết kế nhà 2 tầng 6x15 có giếng trời
Thông tin chính:
- Diện tích : 6x15m.
- Tổng diện tích xây dựng: 180 m2.
- Số phòng ngủ: 4
Thiết kế giếng trời nhà 2 tầng 6x15 là giải pháp hoàn hảo cho nhà có chiều ngang hẹp và chiều dài lớn. Đây là giải pháp tốt giúp bạn giải quyết bài toán phân bố ánh sáng, lưu thông không khí.



1.8 Mẫu thiết kế nhà 2 tầng 6x15 bán hầm
Đây là một kiểu thiết kế nhà 2 tầng đẹp phù hợp với những ngôi nhà có diện tích nhỏ. Nó vừa đảm bảo được độ thông thoáng và đầy đủ ánh sáng. Vừa có thêm không gian để chứa máy móc, kho chứa đồ.



1.9 Mẫu thiết kế nhà 2 tầng 6x15 có gara
Một ngôi nhà mái bằng có vẻ ngoài khá đơn giản nhưng không kém phần bắt mắt. Phần sảnh chính được chia làm 2 phần, phần lớn hơn được làm gara để đỗ xe. Phía sau là phòng khách, phòng bếp, sảnh cầu thang ở giữa.



1.10 Mẫu nhà 6x15 2 tầng không gian xanh
Ngôi nhà 2 tầng 6x15m được nhiều người yêu thích. Ban công của ngôi nhà này được trồng cây xanh tạo không gian tươi mát. Tầng 1 của ngôi nhà được bố trí 1 phòng khách, 1 phòng bếp có bàn ăn, 1 phòng ngủ, 1 phòng vệ sinh chung và 1 sân sau để tận dụng phơi đồ. Tầng 2 sẽ bao gồm 1 phòng thờ, 2 phòng ngủ 1 phòng vệ sinh chung và 1 phòng đọc sách cùng 1 ban công.



1.11 Mẫu thiết kế nhà ống 2 tầng 6x15
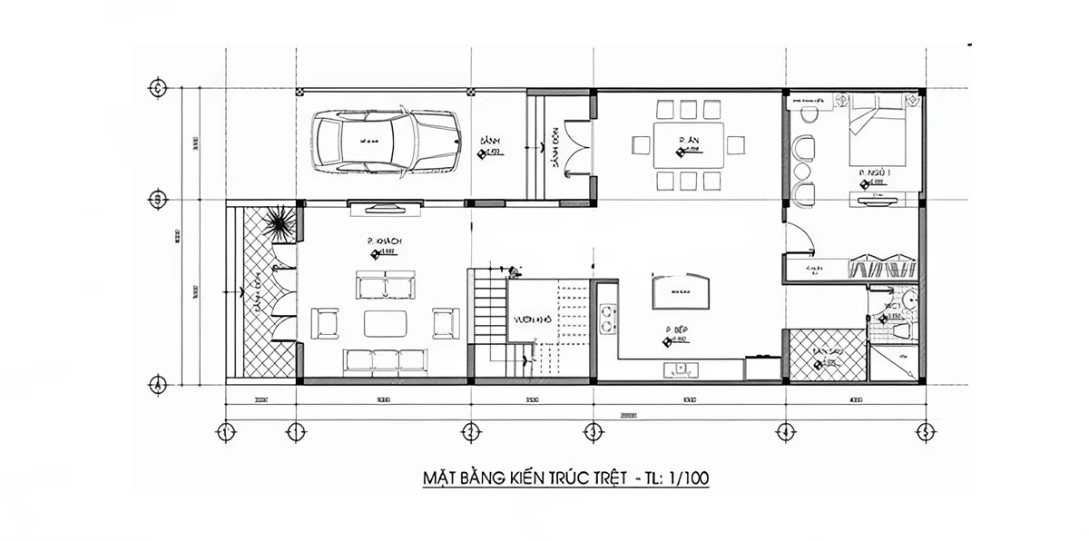
Đây là phong cách thiết kế được ưa chuộng với kiến trúc hiện đại nhưng độc lạ. Thiết kế này có nhiều ưu điểm phù hợp với nhịp sống ở các đô thị lớn mà ai cũng muốn theo đuổi. Tầng 1 là một gara ô tô cùng với khu sinh hoạt chung bao gồm phòng khách và phòng bếp. Tầng 2 có 3 phòng ngủ và một phòng vệ sinh chung.



1.12 Mẫu nhà 2 tầng 6x15 mái Nhật
Một trong những mẫu nhà 2 tầng đẹp được nhiều người ưa chuộng đó là mẫu nhà 2 tầng mái Nhật. Mặt bằng kiến trúc tầng 1 bao gồm: Phòng khách, phòng bếp + ăn, phòng ngủ và WC, sân ướt. Mặt bằng công năng tầng 2 sẽ bao gồm: Phòng thờ, 02 phòng ngủ, phòng sinh hoạt chung, sân giặt phơi và WC.

1.13 Mẫu nhà 2 tầng mái bằng diện tích 6x15
Mẫu nhà 2 tầng mái bằng diện tích 6x15 vừa đẹp vừa tiết kiệm chi phí cho gia chủ. Mặt bằng công năng tầng 1 sẽ bao gồm: Phòng khách, bếp + ăn, phòng ngủ và WC. Mặt bằng công năng tầng 2 gồm 3 phòng ngủ và 1 phòng thờ.



1.14 Mẫu nhà 6x15 2 tầng mái Thái
Mẫu nhà 2 tầng mái thái với diện tích 6x15 với thiết kế không quá cầu kỳ, phức tạp nhưng đảm bảo tính thẩm mỹ và công năng sử dụng cao. Tầng 1 là một gara ô tô kết hợp sân trước, đi vào sâu là phòng khách, phòng bếp và 1 phòng ngủ, 2 WC. Tầng 2 là 2 phòng ngủ và 1 phòng làm việc.



1.15 Mẫu thiết kế nhà 2 tầng 6x15 mái lệch
Mẫu nhà mái lệch 2 tầng 6x15 luôn mang đến cảm giác mới mẻ độc đáo. Với thiết kế kính kết hợp ban công giúp không gian sống trở nên thoáng đãng hơn. Đây là kiểu thiết kế nhà ở dành cho cặp vợ chồng trẻ. Bạn có thể thiết kế một phòng ngủ cho bé gái cực kỳ dễ thương với tông màu hồng làm chủ đạo.

Xem thêm: 60+ Mẫu nhà ống 2 tầng mái thái mặt tiền 5m đẹp ấn tượng
2. Lựa chọn đơn vị thiết kế nhà 2 tầng 6x15 uy tín
Đơn vị thi công chuyên nghiệp sẽ giúp bạn sở hữu một ngôi nhà có không gian tiện nghi, sang trọng, an toàn và tiết kiệm chi phí. Khách hàng có thể liên hệ với Công ty Thiết Kế Nhà 365 để có thể được hỗ trợ trọn gói từ khâu thiết kế bản vẽ, thi công và lựa chọn nội thất.
Với đội ngũ KTS và chuyên viên dày dặn kinh nghiệm Công ty Thiết Kế Nhà 365 chắc chắn sẽ làm hài lòng mọi khách hàng khi sử dụng dịch vụ tại đây.
Bài viết trên chia sẻ những kinh nghiệm cùng một số mẫu thiết kế nhà 2 tầng 6x15 hiện đại, tiện nghi, thẩm mỹ và tiết kiệm để bạn tham khảo. Nếu có nhu cầu xây dựng nhà cho riêng mình hãy liên hệ ngay đến Thiết Kế Nhà 365 để được nhân viên tư vấn cụ thể nhất!
Trên đây là một số mẫu thiết kế nhà 2 tầng 6x15 đẹp để bạn đọc tham khảo. Nếu bạn cần được tư vấn về thiết kế thi công nhà, hãy liên hệ đến số hotline 0906840567 Công Ty Thiết Kế Nhà 365 để được các kiến trúc sư chuyên nghiệp tư vấn miễn phí, cụ thể nhất.
Liên hệ ngay với Công Ty Thiết Kế Nhà 365 để nhận báo giá thi công nhà phố trọn gói và được tư vấn miễn phí từ Kiến Trúc Sư!











