Bạn đang có đất ngang 6m dài 7m và muốn thiết kế nhà sao cho khoa học và thẩm mỹ? Việc lựa chọn một mẫu thiết kế nhà 6x7m hiện đại, đầy đủ công năng và phù hợp ngân sách là rất quan trọng. Cùng Thiết kế Nhà 365 tìm hiểu về ưu điểm, nhược điểm của mẫu nhà đẹp này cũng như xem qua 25+ mẫu thiết kế nhà 6x7m đẹp và ấn tượng nhất hiện nay nhé.
Ưu điểm của mẫu thiết kế nhà 6x7m
Nhà 6x7m là một một loại hình nhà vuông đang được ưa chuộng nhất hiện nay. Bởi vì theo quan niệm xưa, nhà vuông sẽ mang đến tài lộc và sự thịnh vượng cho gia chủ. Do đó, nếu bạn có đang một mảnh đất vuông để xây dựng nhà thì nó sẽ đem lại may mắn cho gia đình.
Nhà vuông 6x7m có những ưu điểm vượt trội nhất định ở dưới đây nên được nhiều người yêu thích:
- Có giá trị thẩm mỹ cao: Nhà vuông 6x7m tạo sự đầy đặn, bắt mắt ngay từ bên ngoài. Tạo cảm giác khỏe khoắn, cân xứng và dễ dàng để thiết kế, bố trí các khu vực chức năng.
- Mang đến cảm giác thông thoáng cho ngôi nhà: Nhà vuông sẽ cho phép ảnh sáng và gió tự nhiên đi sâu vào trong không gian sống của gia đình. Cho dù ở bất kỳ vị trí nào trong nhà thì bạn cũng không cảm thấy bí bách giống như nhà ống.
- Bố trí nội thất dễ dàng: Nhà vuông là một mẫu nhà hoàn hảo cho công việc thiết kế. Do đó, đây là một mẫu nhà dễ dàng đặt được nội thất chính xác đến từng milimet giống y như trong bản thiết kế. Bạn chắc chắn sẽ không thất vọng sau khi công trình hoàn thành.
- Dễ dàng tùy chọn phong cách thiết kế: Có thể nhiều người cho rằng những mẫu nhà vuông chỉ mang kiểu thiết kế truyền thống. Tuy nhiên, hiện nay mẫu thiết kế nhà 6x7m đang ngày được sáng tạo không ngừng nghỉ. Do đó, những mẫu thiết kế nhà vuông đã có biến hóa đa dạng, độc đáo. Bạn có thể tùy ý lựa chọn các phong cách thiết kế từ cổ điển đến sang trọng cầu kỳ, tân cổ điển hay phong cách hiện đại cho phù hợp với sở thích và ngân sách của mình.

Tham khảo: 35+ Mẫu nhà 2 tầng 4x10m hiện đại, đẹp hút mắt năm 2025
Tổng hợp các mẫu thiết kế nhà 6x7m đẹp và ấn tượng
Mẫu nhà cấp 4 6x7m đơn giản
Đây là một mẫu nhà vuông cấp 4 6x7m phù hợp với những gia đình trẻ có kinh tế không quá dư dả. Mẫu nhà hiện đại này mang thiết kế đơn giản mang phong cách hiện đại, sang trọng. Cửa chính được thiết kế rộng lớn được làm bằng kính cường lực. Bên trong được bố trí thêm rèm để chiều chỉnh ánh sáng tự nhiên khi cần.


Thiết kế nhà ngang 6x7m phong cách tân cổ điển
Với mẫu thiết kế nhà 6m dài 7m mang phong cách tân cổ điển thì bạn có thể lựa chọn kết cấu xây dựng 3 tầng. Đây là không gian vừa đủ cho các gia đình có khoảng 5-6 người cùng sinh sống. Phong cách tân cổ điển tạo sự ấn tượng trong mắt người xem với các đường chỉ phào hay các họa tiết lan can nổi bật.


Mẫu thiết kế nhà 2 tầng 6mx7m sang trọng
Lấy ý tưởng phong cách hiện đại trẻ trung nhưng có các đường nét tạo nên sự sang trọng đẳng cấp cho ngôi nhà. Mặt tiền của ngôi nhà được sử dụng màu trắng làm chủ đạo tạo sự thanh lịch, tinh tế. Cửa cổng của ngôi nhà tạo điểm nhấn với 2 cánh cửa cổng hình lá màu trắng vô cùng độc đáo.

Ban công, tầng tum của ngôi nhà được trang trí bằng cây xanh để mang đến không gian sống gần gũi với thiên nhiên hơn, tăng tính thẩm mỹ của ngôi nhà.

Mẫu thiết kế nhà phố 2 tầng 6x7m đẹp ấn tượng
Có thể bạn thấy các hình khối hình chữ nhật đơn giản trong cấu trúc xây dựng của mẫu thiết kế nhà 6x7m. Tuy nhiên, mẫu thiết kế này lại sử dụng các hình khối vô cùng linh hoạt mang đến vẻ đẹp ấn tượng trong mắt người đối diện. Ban công của ngôi nhà được trồng nhiều cây xanh.


Mẫu thiết kế nhà phố 2 tầng 6x7m 2 phòng ngủ
Nhà phố 2 tầng 6x7m có hai tầng, 2 phòng ngủ phù hợp với gia đình có từ 2-4 người sinh sống. Mẫu thiết kế này đảm bảo không gian sinh hoạt chung thoải mái và vẫn có không gian sinh hoạt riêng tư cho từng thành viên trong gia đình. Mặt tiền của ngôi nhà được thiết kế với các hình khối dọc độc đáo, nổi bật.


Thiết kế nhà 3 tầng 6mx7m đầy đủ tiện nghi
Đây là mẫu nhà 3 tầng 6x7m được thiết kế theo phong cách hiện đại, đầy đủ tiện nghi. Ngôi nhà này được thiết kế nhiều cây xanh kết hợp với lối thông tầng giúp không khí trong nhà trở nên thông thoáng. Tầng 3 được thiết kế nhô ra phía trước. Tường được tạo hình lưới hoa có cửa sổ nhỏ vô cùng đặc biệt.


Thiết kế nhà 3 tầng 6mx7m hiện đại
Đây là một mẫu thiết kế nhà 3 tầng 6mx7m hiện đại, vô cùng bắt mắt. Tầng 2 của ngôi nhà có ban công được thiết kế kiểu mái vòm ngược ấn tượng. Bên hông của tầng 2 có lối thông tầng giúp ngôi nhà tận dụng được ánh sáng tự nhiên tốt nhất. Tầng 3 được thiết kế hình chữ L với mái che độc đáo.


Tham khảo: Thiết kế nhà 40m2: Tổng hợp mẫu & bản vẽ tối ưu công năng 2025
Bản vẽ công năng thiết kế nhà ngang 6m dài 7m
Bản vẽ thiết kế nhà cấp 4 6x7m
Mặt bằng công năng của nhà cấp 4 6x7m này được bố trí vô cùng đơn giản với 1 phòng khách, 1 phòng bếp, 2 phòng ngủ và một phòng WC chung.

Bản vẽ thiết kế nhà 2 tầng 6mx7m
Bản vẽ thiết kế của nhà 2 tầng 6mx7m được bố trí vô cùng khoa học. Tầng 1 sẽ được bố trí phòng khách lớn được thiết kế liền kề với phòng ăn và phòng bếp. Phía sau của tầng 1 có phòng giặt, sân sau và phòng WC. Tầng 2 được bố trí phòng ngủ, phòng thờ, ban công và 1 WC.

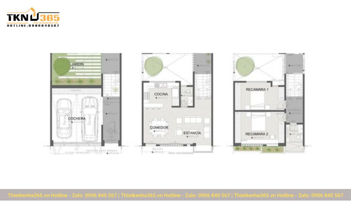
Bản vẽ thiết kế nhà 3 tầng 6mx7m
Bạn có thể tham khảo 1 trong 2 bản thiết kế nhà 3 tầng 6mx7m dưới đây:
Bản thiết kế này có tầng 1 dành ra để làm sân vườn và gara để ô tô. Tầng 2 được bố trí không gian sinh hoạt chung là phòng khách, phòng bếp và phòng ăn. Còn tầng 3 được bố trí 2 phòng ngủ.

Bản thiết kế này có tầng 1 được bố trí phòng khách hướng ra sân vườn và gara ô tô. Tầng 2 là phòng bếp và phòng ăn cùng với 1 phòng ngủ. Tầng 3 được bố trí 2 phòng ngủ.

Tham khảo: [Tổng hợp] Mẫu thiết kế nhà 40m2 1 tầng đẹp, ấn tượng 2025
Thiết kế nội thất cho nhà 6x7m đẹp và tiện nghi
Nội thất khu vực phòng khách, bếp
Phòng khách liền bếp là một thiết kế theo phong cách Địa Trung Hải. Phòng khách được bố trí một bộ ghế sofa màu xám tinh tế. Gối sofa nhiều màu sắc để tạo điểm nhấn. Bàn tròn nhỏ cùng với ghế tựa màu xanh nhỏ để tạo nên cảm giác ấm cúng nhẹ nhàng. Có thêm một giá sách nhỏ bằng gỗ để sách và trang trí. Bố trí một cây xanh để không gian sống trở nên tuyệt vời hơn.
Phòng bếp liền kề được thiết kế đơn giản, đầy đủ tiện nghi. Bàn ăn được thiết kế thanh mảnh đẹp mắt. Bếp nấu được bố trí hình chữ L để thoải mái cho gia đình nấu ăn, quây quần bên nhau.

Thiết kế nội thất phòng ngủ tiện nghi
Phòng ngủ được thiết kế với tông màu xám hiện đại. Giường được kê cao với tấm chăn màu xám hiện đại. Điểm nhấn là bộ gối màu cam nổi bật. Bên giường ngủ là một giá sách kết hợp với bàn làm việc vô cùng tiện lợi.

Nội thất phòng tắm đẹp hiện đại
Phòng tắm được lựa chọn màu gạch xám sạch sẽ, hiện đại và sang trọng. Phía trên bồn cầu được bố trí giá để đồ dùng và khăn tắm. Bồn rửa tay nhỏ nhắn màu trắng, phía trước và một tấm gương lớn để phục vụ cho nhu cầu vệ sinh.

Tham khảo: 10+ Mẫu thiết kế nhà ngang 6m dài 10m đẹp ấn tượng nhất 2025
Thiết Kế Nhà 365- Đơn vị thi công thiết kế nhà 6x7m uy tín, chất lượng
Nếu bạn đang cần tìm một đơn vị thiết kế nhà 6x7m uy tín, chất lượng thì hãy tìm đến Công ty Thiết Kế Nhà 365. Chúng tôi là một đơn vị chuyên thi công thiết kế các công trình nhà ở, biệt thự đã được hàng trăm chủ đầu tư, tin tưởng. Chúng tôi đã hoàn thành và bàn giao hàng trăm công trình hoàn mỹ cho khách hàng. Đến với Công ty Thiết Kế Nhà 365 bạn sẽ được:
- Tư vấn miễn phí 100%
Khách hàng khi có nhu cầu được tư vấn thiết kế nhà ở thì sẽ được các kiến trúc sư tận tình hỗ trợ. Tùy vào tình hình tài chính, sở thích và nhu cầu của bạn mà chúng tôi sẽ đưa ra được mẫu nhà phù hợp. Không chỉ đảm bảo được tính thẩm mỹ mà còn đảm bảo được công năng và sự thuận tiện khi sử dụng.
- Đảm bảo đúng tiến độ thi công
Công ty Thiết Kế Nhà 365 luôn tạo uy tín với khách hàng nhờ việc luôn đảm bảo tiến độ thi công công trình. Tất cả các hạng mục thi công trong hợp đồng sẽ được chúng tôi đảm bảo thực hiện đúng và hoàn tất đúng thời gian quy định. Các hạng mục không cần thiết sẽ được lược bỏ để mang đến một công trình hoàn mỹ, tiết kiệm chi phí.
Trên đây là những mẫu thiết kế nhà 6x7m đẹp cùng với các bản vẽ thiết kế và một số mẫu nội thất để bạn đọc xem qua. Nếu bạn đang quan tâm đặc biệt đến mẫu thiết kế nào thì hãy liên hệ đến Công ty Thiết Kế Nhà 365 để được tư vấn chi tiết bạn nhé.









