Nhà 2 tầng có gác lửng là xu hướng kiến trúc ngày càng được nhiều gia đình lựa chọn, phần gác lửng đáp ứng tốt hơn nhu cầu sinh hoạt của các thành viên trong gia đình. Mời bạn cùng Công ty Thiết Kế Nhà 365 tìm hiểu các mẫu và bản vẽ 2 tầng có gác lửng hot nhất hiện nay.
-
1 Tổng hợp 79+ mẫu thiết kế nhà 2 tầng có gác lửng đẹp
- 1.1 Mẫu nhà 2 tầng có gác lửng hiện đại
- 1.2 Mẫu nhà ống 2 tầng có thiết kế gác lửng
- 1.3 Mẫu nhà ống 2 tầng có gác lửng 43m2
- 1.4 Mẫu thiết kế nội thất nhà ống 2 tầng có gác lửng đẹp không gian tối ưu
- 1.5 Mẫu thiết kế nội thất nhà 2 tầng gác lửng với không gian sinh hoạt chung ấm áp
- 1.6 Mẫu thiết kế nội thất nhà 2 tầng gác lửng dùng nội thất thông minh
- 1.7 Mẫu nhà 2 tầng có gác lửng với đầy đủ tiện nghi
- 1.8 Mẫu nhà 2 tầng có gác lửng đơn giản
- 1.9 Mẫu nhà 2 tầng có gác lửng thiết kế hiện đại
- 1.10 Mẫu nhà 2 tầng có gác lửng hiện đại cho vợ chồng trẻ
- 1.11 Thiết kế nội thất nhà gác lửng theo phong cách tối giản
- 2. Bản vẽ nhà 2 tầng có gác lửng đẹp, chi tiết
- 3. Có nên xây nhà 2 tầng gác lửng không?
- 4. Những điều cần biết khi xây dựng nhà 2 tầng gác lửng
- 5. Phân loại thiết kế tầng lửng trong nhà phố 2 tầng
- 6. Báo giá chi phí thiết kế và thi công nhà 2 tầng có gác lửng
1 Tổng hợp 79+ mẫu thiết kế nhà 2 tầng có gác lửng đẹp
Xu hướng thiết kế nhà 2 tầng có gác lửng hiện nay đang rất cao bởi tính tiện dụng cũng như tiết kiệm cực kỳ nhiều không gian của nó. Không những thế, thiết kế mẫu nhà đẹp còn giúp gia chủ có thể tuỳ ý thiết kế nội thất theo sở thích của bản thân, thể hiện cá tính của gia chủ và nâng cao tính cá nhân hoá của căn nhà.
Sau đây Thiết Kế Nhà 365 xin giới thiệu đến quý bạn đọc một số mẫu nhà ống 2 tầng có gác lửng đẹp nhất hiện nay, mời bạn tham khảo.
1.1 Mẫu nhà 2 tầng có gác lửng hiện đại
Tầng 1 của ngôi nhà dành cho bếp và phòng ăn, tầng lửng là phòng tiếp khách và tầng 2 ở trên cùng gồm 2 phòng ngủ dành cho bố mẹ và các con. Các bố trí này có thể đáp ứng nhu cầu của từ 2 – 4 thành viên.


1.2 Mẫu nhà ống 2 tầng có thiết kế gác lửng
Một mẫu nhà 2 tầng có gác lửng là một sự kết hợp hoàn hảo giữa sự tiện nghi và tính thẩm mỹ. Ngôi nhà này thể hiện sự thông thoáng và tận dụng không gian hiệu quả, tạo ra một môi trường sống đầy thoải mái. Mỗi tầng của căn nhà này được thiết kế hết sức thông thoáng và ánh sáng tự nhiên. Tầng trên chứa các phòng ngủ sang trọng với phòng tắm riêng biệt, cùng với phòng làm việc hoặc phòng giải trí gia đình.

1.3 Mẫu nhà ống 2 tầng có gác lửng 43m2
Một mẫu nhà ống 2 tầng gác lửng rộng 43m2 là một ví dụ tiêu biểu về sự tận dụng không gian một cách thông minh và hiệu quả. Ngôi nhà này được thiết kế để đáp ứng đầy đủ nhu cầu của gia đình và tạo ra một môi trường sống thoải mái và tiện nghi. Gác lửng là không gian đa năng, có thể sử dụng cho nhiều mục đích khác nhau. Nó có thể trở thành một phòng làm việc, phòng đọc, hoặc thậm chí một phòng ngủ phụ tùy thuộc vào nhu cầu của gia đình.

1.4 Mẫu thiết kế nội thất nhà ống 2 tầng có gác lửng đẹp không gian tối ưu
Mẫu thiết kế nội thất cho nhà 2 tầng có gác lửng này thể hiện sự tối ưu hóa không gian và sự sáng tạo trong việc tạo ra một môi trường sống lý tưởng. Nội thất được thiết kế với sự cân nhắc tỉ mỉ để đảm bảo sự tiện nghi và thẩm mỹ.

1.5 Mẫu thiết kế nội thất nhà 2 tầng gác lửng với không gian sinh hoạt chung ấm áp
Mẫu nhà 2 tầng thiết kế đơn giản có gác lửng này khá nhỏ gọn nhưng lại sở hữu phòng sinh hoạt chung ấm áp dưới tầng trệt. Chủ đầu tư đã lựa chọn tone màu sofa màu trầm chất liệu da kết hợp với gỗ tự nhiên để tăng vẻ ấm cúng.

1.6 Mẫu thiết kế nội thất nhà 2 tầng gác lửng dùng nội thất thông minh
Khu vực dưới gầm cầu thang dẫn lên gác lửng của ngôi nhà này được tận dụng làm nơi bố trí tủ bếp nho nhỏ. Đây là cách sử dụng đồ nội thất thông minh, tiết kiệm diện tích và đảm bảo ngôi nhà có đầy đủ công năng.

1.7 Mẫu nhà 2 tầng có gác lửng với đầy đủ tiện nghi
Mẫu nhà 2 tầng có gác lửng này được trang bị đầy đủ nội thất vô cùng tiện nghi. Tầng 1 của ngôi nhà có phòng khách thông với phòng ăn. Tầng lửng được tận dụng làm phòng ngủ và nơi làm việc cho gia chủ.

1.8 Mẫu nhà 2 tầng có gác lửng đơn giản
Mặc dù có thiết kế tối giản nhưng mẫu nhà 2 tầng gác lửng này vẫn đáp ứng đầy đủ nhu cầu sinh hoạt của cả gia đình. Tầng 1 được tận dụng làm phòng khách, phòng ăn và bếp. Tầng lửng là phòng ngủ và phòng làm việc của chủ nhà.

1.9 Mẫu nhà 2 tầng có gác lửng thiết kế hiện đại
Đây là mẫu nhà thiết kế hiện đại và đồng bộ từ mặt tiền cho đến nội thất bên trong. Chất liệu kính được tận dụng triệt để từ hệ thống cửa sổ, cửa ra vào cho đến cầu thang và lan can tầng lửng.

1.10 Mẫu nhà 2 tầng có gác lửng hiện đại cho vợ chồng trẻ
Với những cặp vợ chồng trẻ thì mẫu nhà 2 tầng có gác lửng không những cần đầy đủ công năng mà còn phải tiết kiệm diện tích và chi phí tối đa. Và mẫu nhà dưới đây đáp ứng trọn vẹn các tiêu chí này.

1.11 Thiết kế nội thất nhà gác lửng theo phong cách tối giản
Thiết kế nội thất cho nhà 2 tầng gác lửng theo phong cách tối giản là một tuyệt phẩm của sự đơn giản và tinh tế. Nó thể hiện sự sáng tạo trong việc tối ưu hóa không gian và tạo ra một môi trường sống thanh lịch và thoải mái.

Xem thêm: Hoàn thiện biệt thự mái Nhật 2 tầng – Chị Diệp – Đồng Nai
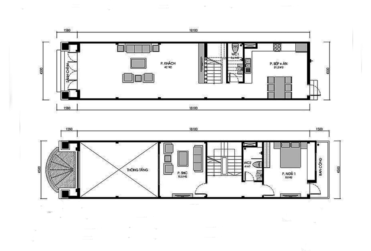
2. Bản vẽ nhà 2 tầng có gác lửng đẹp, chi tiết
Bản vẽ nhà 2 tầng có gác lửng được phác thảo trên các Kiến Trúc Sư của Thiết Kế Nhà 365. Vậy bây giờ chúng ta cũng xem bản vẽ chi tiết này có những gì?

Xem thêm: Thiết kế nhà phố 3 tầng 5x18m cho chị Hà ở Quận 8
3. Có nên xây nhà 2 tầng gác lửng không?
Gác lửng hay còn gọi là gác xép là 1 gian phòng nhỏ nằm giữa 2 tầng dưới và tầng trên. Ngày càng có nhiều hộ gia đình lựa chọn mẫu nhà 2 tầng gác lửng vì những lý do sau đây:
- Nhà 2 tầng có gác lửng giúp nới rộng thêm không gian để đáp ứng nhu cầu sử dụng của nhiều thành viên hơn.
- Kiến trúc gác lửng là giải pháp hoàn hảo để khắc phục tình trạng quỹ đất hạn hẹp ở đô thị nhưng vẫn đảm bảo sự thông thoáng, tính thẩm mỹ cho ngôi nhà.
- Gác lửng không phải là một tầng độc lập nên không tốn nhiều thời gian và chi phí xây dựng như việc xây tầng truyền thống.
Như vậy nếu khuôn viên đất của gia đình bạn khá hạn chế thì có thể lựa chọn giải pháp bố trí thêm gác lửng. Tuy nhiên việc thiết kế gác lửng cho nhà phố 2 tầng không hề đơn giản mà đòi hỏi phải có sự tính toán kỹ lưỡng. Khi xây gác lửng cần xem xét mọi khía cạnh như chất lượng, độ an toàn, tính thẩm mỹ, nhu cầu sử dụng của chủ nhà…

Xem thêm: 30+ Mẫu nhà mái bằng 2 tầng đẹp xu hướng, hiện đại 2026
4. Những điều cần biết khi xây dựng nhà 2 tầng gác lửng
Một số ưu nhược điểm khi xây nhà 2 tầng có gác lửng:
4.1 Ưu điểm nhà 2 tầng gác lửng
- Tận dụng triệt để khoảng không gian trống giữa các tầng thường bị bỏ qua.
- Không phải là tầng độc lập, không làm thay đổi kết cấu sẵn có của ngôi nhà. Ở ngoài mặt tiền, ngôi nhà vẫn thể hiện cấu trúc 2 tầng, đảm bảo tính thẩm mỹ nhưng trên thực tế diện tích bên trong lại đáp ứng nhu cầu sử dụng nhiều hơn 2 tầng.
- Tầng trệt có thể được dùng làm nơi kinh doanh, để xe, chứa đồ… còn gác lửng sẽ trở thành không gian phòng tiếp khách hiện đại và tiện nghi.
- Từ gác lửng nhìn xuống gia chủ có thể dễ dàng quan sát toàn bộ ngôi nhà. Nếu kinh doanh buôn bán ở tầng trệt thì thiết kế này sẽ giúp bạn dễ dàng trông coi cửa hàng.
- Tầng lửng có thể được sử dụng vào bất cứ mục đích nào, không ảnh hưởng đến các phòng khác trong ngôi nhà.
4.2 Nhược điểm nhà 2 tầng gác lửng
Ngoài những ưu điểm kể trên thì nhà 2 tầng có gác lửng vẫn có một số hạn chế nhất định:
- Tầng lửng cho chiều cao hạn chế nên không thể lắp đèn chùm hoặc trang trí trần nhà cầu kỳ, nếu không sẽ không đảm bảo an toàn cho người dùng và khiến ngôi nhà thêm chật chội, bí bách.
- Độ ẩm và nhiệt độ ở gác lửng cũng cao hơn so với các tầng thông thường. Vì vậy kiến trúc sư cần đưa ra nhiều biện pháp chống ẩm, chống nóng để đảm bảo sự thuận tiện trong sinh hoạt.
- Thường thì gác lửng sẽ cao hơn so với sàn nhà từ 2,5 – 2,8m và chiếm từ 1/3 – 2/3 diện tích tầng thông thường. Do đó nếu muốn bố trí thêm tầng lửng thì tầng trệt phải có chiều cao tối thiểu 5m và tối đa không quá 5,8m. Như vậy không phải bất cứ ngôi nhà 2 tầng nào cũng phù hợp để thiết kế gác lửng.

Tham khảo: 20+ Mẫu nhà phố 2 tầng 5x15 đẹp hiện đại, ấn tượng 2025
5. Phân loại thiết kế tầng lửng trong nhà phố 2 tầng
Hiện nay dựa vào vị trí thiết kế mà tầng lửng sẽ được chia thành các loại sau đây:
- Tầng lửng phía sau: Là thiết kế gác lửng được ứng dụng rộng rãi nhất hiện nay. Kiểu tầng lửng này nằm về phía sau của tầng 1, vì vậy đảm bảo sự thuận tiện về mặt kinh doanh, sinh hoạt và vẻ đẹp của phòng khách. Mặc dù vậy, tầng lửng phía sau cũng tạo sự chật chội cho không gian sau nhà.
- Tầng lửng phía trước: Đối lập với tầng lửng phía sau, tầng lửng phía trước sẽ được bố trí ở trước nhà. Thiết kế này gây ấn tượng mạnh nhưng để đảm bảo vẻ đẹp tổng thể của ngôi nhà thì kiến trúc sư cần có sự tính toán màu sắc hợp lý.
- Tầng lửng bên hông: Đây là kiểu kiến trúc gác lửng có vẻ đẹp mới lạ, độc đáo. Mặc dù vậy ngôi nhà phải có đủ không gian rộng rãi mới có thể thiết kế tầng lửng bên hông.

Xem thêm: 35+ Mẫu nhà 2 tầng 4x10m hiện đại, đẹp hút mắt năm 2025
6. Báo giá chi phí thiết kế và thi công nhà 2 tầng có gác lửng
Liên hệ ngay với Công Ty Thiết Kế Nhà 365 để nhận báo giá thiết kế nhà phố trọn gói và giá thi công nhà phố, đặc biệt được tư vấn miễn phí từ Kiến Trúc Sư!
Hy vọng rằng bài viết trên đã gợi ý cho bạn các mẫu thiết kế nhà 2 tầng gác lửng đẹp và ấn tượng nhất. Với những ai đang cần tìm kiếm đơn vị thiết kế, thi công nhà ở uy tín thì Thiết Kế Nhà 365 luôn sẵn sàng đồng hành cùng bạn và gia đình. Đừng quên hotline của công ty luôn hoạt động 24/24 để giải đáp mọi thắc mắc của khách hàng.










