Hiện nay, các kiến trúc sư ngày càng sáng tạo hơn để thiết kế và thi công kiến trúc nhà vừa đẹp vừa tiết kiệm diện tích lại đảm bảo đầy đủ công năng sử dụng. Trong đó, mẫu nhà lệch tầng4x12 là một giải pháp hợp lý khi phải xây dựng nhà trên diện tích đất khiêm tốn 4x12m.
Bạn hãy tham khảo ngay những ý tưởng mới mẻ cho tổ ấm của mình trong bài viết dưới đây. Đội kiến trúc sư tài ba của Công Ty Thiết Kế Nhà 365 sẽ giới thiệu 25+ mẫu nhà lệch tầng 4x12 đẹp hiện đại, đầy đủ tiện nghi đang được ưa chuộng nhất.
Xu hướng thiết kế, xây dựng nhà 4x12m lệch tầng
Mẫu nhà hiện đại đang trở nên ngày càng phổ biến, đặc biệt xu hướng thiết kế và xây dựng nhà phố 4x12m lệch tầng đã nổi lên như một lựa chọn đáng chú ý. Sự kết hợp giữa tầng lệch và không gian hạn chế tạo ra môi trường sống độc đáo và tinh tế. Các mẫu nhà này thể hiện sự sáng tạo và tiện nghi, đồng thời phản ánh xu hướng thiết kế hiện đại và đa dạng trong kiến trúc.
Nhà lệch tầng là mẫu nhà có thiết kế các mặt sàn nằm lệch nhau theo mục đích sử dụng của người thiết kế. Thường thì kiểu nhà này sẽ được bố trí cầu thang ở giữa và có từ 2 đến 3 phòng bao quanh. Người ta sẽ kết hợp thêm giếng trời để đem đến ánh sáng tự nhiên và sự thông thoáng cho các căn phòng.

Mẫu nhà lệch tầng 4x12m sẽ có hai dạng thường gặp nhất là:
- Đầu tiên là mẫu nhà có phần sau bếp và nhà ăn được năng lên. Không gian nhà được phân chia ra thành hai phần trước và sau nhà.
- Dạng thứ hai là mẫu nhà được xây dựng riêng một tầng lửng có thiết kế cầu thang đi lên.
Nhà lệch tầng ngày càng phổ biến ở những thành phố lớn có diện tích đất ở hạn hẹp. Bởi vì, mẫu nhà lệch tầng thì độ cao không bị cố định như nhà tầng thông thường. Do đó, nó sẽ giảm thiểu được không gian trống không cần thiết. Hơn nữa, chủ nhà cũng rất dễ dàng tận dụng các khoảng trống để xây lan can, tầng thượng. Và cuối cùng, mẫu nhà lệch tầng 4x12 sẽ đem đến không gian sống hiện đại hơn, tiện nghi hơn và thẩm mỹ hơn.
Xem thêm: Hoàn thiện biệt thự mái Nhật 2 tầng – Chị Diệp – Đồng Nai
2. Công trình nhà lệch tầng 4x12 đẹp ấn tượng Anh Nhẫn Quận 8 – TPHCM
Sau đây là một mẫu nhà lệch tầng của anh Nhẫn tại Quận 8, TPHCM đẹp nổi bật Công Ty Thiết Kế Nhà 365 muốn giới thiệu đến bạn. Mời bạn xem qua phối cảnh 3D và bản vẽ bố trí công năng mặt bằng của ngôi nhà.
2.1 Phối cảnh 3D mẫu nhà lệch tầng 4x12
Mẫu nhà lệch tầng 4x12m sau đây là một trong những mẫu nhà đẹp ấn tượng mà bạn có thể tham khảo. Ngôi nhà có cấu trúc 3 tầng khá đơn giản. Với các khối bê tông vuông cách điệu, kèm theo ốp gạch sang trọng tạo điểm nhấn cho không gian sống của gia đình.

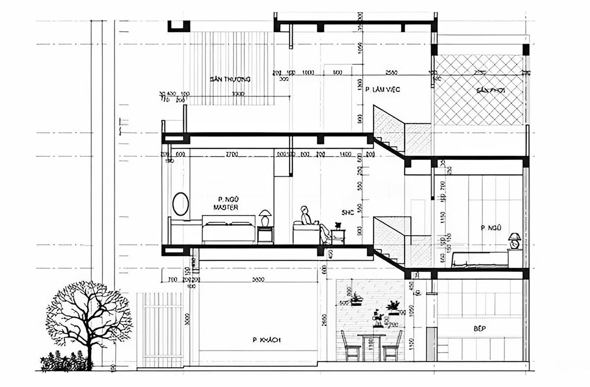
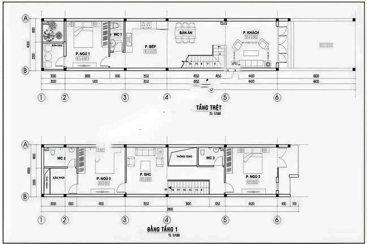
2.2 Bản vẽ thiết kế, bố trí công năng nhà 4x12 lệch tầng
Cách bố trí mặt bằng công năng trong ngôi nhà lệch tầng của anh Nhẫn:
- Tầng 1: Đây là không gian sinh hoạt chung của gia đình. Trong đó sẽ bao gồm 1 phòng khách, 1 phòng ăn, 1 nhà bếp và 1 nhà vệ sinh chung.
- Tầng 2: Tầng này được bố trí 2 phòng ngủ ở 2 đầu và 1 phòng sinh hoạt chung ngay cạnh vị trí thông tầng.
- Tầng 3: Tầng này được bố trí gồm 1 phòng làm việc, 1 sân phơi và sân thượng để sinh hoạt, vui chơi thư giãn sau những giờ làm việc căng thẳng.


2.3 Bố trí nội thất mẫu nhà lệch tầng 4x12m
Phòng khách
Phòng khách mẫu nhà lệch tầng 4x12m của anh Nhẫn được trang trí bộ bàn ghế sofa cao cấp và nội thất tiện nghi. Căn phòng này còn được trang trí thêm cây xanh. Trên tường được trang trí thêm bức tranh. nghệ thuật. Ngoài ra còn có cửa sổ rộng giúp tận dụng được ánh sáng thiên nhiên mang đến sự thoáng đãng cho không gian sống.

Phòng ngủ
Được thiết kế theo phong cách hiện đại với hệ thống 3 phòng ngủ sang trọng cao cấp. Trong đó sẽ bao gồm phòng ngủ master, phòng ngủ con trai và phòng ngủ con gái. Tất cả nội thất đều thiết kế tối giản nhưng hiện đại. Vật liệu được sử dụng chủ yếu là gỗ tự nhiên cao cấp kết hợp với gỗ công nghiệp. Mỗi phòng đều có phong cách thiết kế khác nhau phù hợp với từng cá nhân riêng ở mỗi phòng.

Phòng bếp
Thiết kế khu vực bếp và phòng ăn sang trọng khi lựa chọn gam màu sáng nhẹ. Tủ bếp hình chữ L bằng gỗ kết hợp với bộ bàn ghế ăn 6 chỗ màu xám sang trọng.

Nhà vệ sinh
Nhà vệ sinh được lựa chọn gam màu tường sáng kết hợp với kính tạo cảm giác rộng rãi hơn. Tuy thiết kế đơn giản nhưng vẫn đầy đủ tiện nghi đáp ứng nhu cầu của người dùng.

Tham khảo: Thiết kế nhà phố 3 tầng 5x18m cho chị Hà ở Quận 8
3. Một số mẫu nhà lệch tầng 4x12 độc đáo đáng tham khảo
Cùng khám phá các mẫu thiết kế nhà đẹp lệch tầng 4x12 và tiện nghi nhất năm 2022 được Công ty Thiết Kế Nhà 365 chúng tôi tổng hợp dưới đây.




Xem ngay: Báo giá thiết kế nhà phố
Xem thêm: 30+ Mẫu nhà mái bằng 2 tầng đẹp xu hướng của năm nay
4. Thiết kế thi công nhà lệch tầng 4x12 chuyên nghiệp – Công Ty Thiết Kế Nhà 365
Công Ty Thiết Kế Nhà 365 hiện nay là một trong những đơn vị chuyên thiết kế, thi công mẫu nhà lệch tầng 4x12 chuyên nghiệp nhất khu vực miền Nam hiện nay. Chúng tôi đã có hơn 10 năm kinh nghiệm trên thị trường với hàng loạt công trình chất lượng ra đời. Với đội ngũ nhân viên giàu kiến thức chuyên môn, quy trình làm việc khoa học, chúng tôi luôn mang đến cho khách hàng sự hài lòng nhất.
Công Ty Thiết Kế Nhà 365 sẽ miễn phí 100% chi phí thiết kế cho khách hàng. Tiến độ thi công luôn được đảm bảo đúng thời gian đã đề ra. Chúng tôi sẽ biến ước mơ của khách hàng thành hiện thực!
Hy vọng những mẫu nhà lệch tầng 4x12 trong bài viết trên đây sẽ giúp bạn tìm ra được ý tưởng tuyệt vời cho ngôi nhà tương lai của mình. Để được tư vấn miễn phí về các mẫu thiết kế, hãy liên hệ đến Công Ty Thiết Kế Nhà 365 để được các kiến trúc sư tư vấn cụ thể.
Liên hệ ngay với Công Ty Thiết Kế Nhà 365 để nhận báo giá thi công nhà phố trọn gói và được tư vấn miễn phí từ Kiến Trúc Sư!











