Thiết kế nhà 2 tầng trên một mảnh đất có diện tích 7x11m vừa đảm bảo tính thẩm mỹ vừa đảm bảo đầy đủ công năng sử dụng là những mẫu thiết kế được nhiều người tìm kiếm. Để đáp ứng nhu cầu của người dân hiện nay, chúng tôi xin giới thiệu đến bạn những mẫu thiết kế nhà 2 tầng 7x11m đẹp hiện đại và sang trọng nhất hiện nay để bạn tham khảo.
Liên hệ ngay với Công Ty Thiết Kế Nhà 365 để nhận báo giá thi công nhà phố trọn gói và được tư vấn miễn phí từ Kiến Trúc Sư!
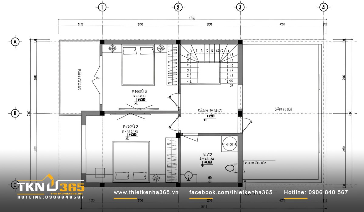
Tham khảo bản vẽ bản vẽ thiết kế nhà 2 tầng 7x11m
Đầu tiên, chúng ta cùng xem bản vẽ mẫu nhà 2 tầng 7x11m bố trí công năng chi tiết. Tầng 1 sẽ bao gồm với 1 phòng khách lớn, 1 phòng ngủ, 1 WC chung và 1 phòng bếp sinh hoạt ăn uống. Không gian phòng khách được thiết kế rộng rãi và thoáng mát ở ngay lối cửa đi vào.

Đi vào bên trong nhà là khu vực cầu thang. Đối diện cầu thang là nhà vệ sinh chung kín đáo. Sâu trong cùng là một phòng bếp kết hợp phòng ăn thông với lối đi cửa sau tiện lợi. Phòng ngủ được bố trí ở góc đối diện phòng bếp để tạo sự riêng tư cho thành viên sử dụng.

Đây là bản vẽ thiết kế nhà 2 tầng 7x11m khoa học, hợp lý. Các kiến trúc sư đã thiết kế đơn giản với 2 phòng ngủ, 1 WC và khu vực sân phơi đồ rộng rãi ở phía sau nhà. Mẫu thiết kế này vừa đảm bảo được khu vực sinh hoạt chung rộng rãi vừa đảm bảo sự riêng tư kín đáo cho những không gian riêng.
Xem thêm: 60+ Mẫu nhà ống 2 tầng mái thái mặt tiền 5m đẹp ấn tượng
55+ Mẫu thiết kế nhà 2 tầng 7x11m đẹp hiện đại, sang trọng
Sau đây là những mẫu thiết kế nhà phố 7m dài 11m 2 tầng đẹp hiện đại, sang. Những mẫu nhà hiện đại này có kiến trúc mặt tiền 7m tập trung chủ yếu vào những hình khối đơn giản không rườm rà, rối mắt.


























Xem thêm: 50+ Mẫu nhà 2 tầng chữ L 100m2 hiện đại tiện nghi nhất
Đơn vị thiết kế thi công nhà 2 tầng 7x11m chuyên nghiệp – Công Ty Thiết Kế Nhà 365
Công ty Thiết Kế Nhà 365 là một trong những công ty nổi tiếng với những công trình nhà ở đẹp, chất lượng được nhiều khách hàng tin tưởng. Đây là công ty có đầy đủ những yếu tố của một đơn vị thiết kế và thi công nhà ở chuyên nghiệp:
- Đã có hơn 10 năm kinh nghiệm trong lĩnh vực thiết kế và thi công công trình.
- Có đầy đủ các trang thiết bị từ đơn giản đến hiện đại như máy ép cọc, máy khoan,… để phục vụ thi công công trình.
- Đội ngũ nhân viên giàu kiến thức, kinh nghiệm chuyên môn.
- Tư vấn thiết kế miễn phí nhà 2 tầng 7x11m phù hợp với mức kinh phí của khách hàng.
- Cam kết thi công đúng 100% các hạng mục đã thỏa thuận trong hợp đồng.
- Đảm bảo không có phát sinh thêm phụ phí ngoài chi phí dự tính.
- Công trình hoàn thiện xong giống bản vẽ thiết kế đến 99%.
- Luôn đảm bảo yếu tố phong thủy, tính thẩm mỹ cũng như công năng sử dụng của công trình.
- Nhận thi công thiết kế theo mẫu thiết kế của khách hàng.

Bài viết trên đây đã giới thiệu đến bạn mẫu thiết kế nhà 2 tầng 7x11m đẹp, chất lượng và đảm bảo công năng sử dụng. Nếu bạn đang cần được tư vấn về mẫu thiết kế thi công nhà trọn gói, hãy liên hệ ngay Công Ty Thiết Kế Nhà 365 qua 0906840567 – Mr. Thắng hoặc info@thietkenha365.vn để được tư vấn miễn phí.










