Các thiết kế nhà 2 tầng có 3 phòng ngủ 80m2 là một mẫu thiết kế đang được nhiều gia chủ quan tâm. Đây là một mẫu nhà không chỉ có giá trị thẩm mỹ cao và mang đến không gian sống lý tưởng cho nhiều gia đình hiện nay. Để hiểu hơn về các lợi thế, chi phí xây dựng của mẫu thiết kế này thì mời bạn đọc tham khảo bài viết các mẫu thiết kế nhà 2 tầng có 3 phòng ngủ 80m2 đẹp khó cưỡng dưới đây.
- 1. Ưu điểm của nhà 2 tầng 3 phòng ngủ 80m2
-
2. Tổng hợp 40+ Mẫu thiết kế nhà 2 tầng 3 phòng ngủ 80m2 đẹp khó cưỡng
- 2.1 Mẫu thiết kế nhà 2 tầng 3 phòng ngủ 80m2 đẹp đơn giản
- 2.2 Mẫu thiết kế nhà 80m2 2 tầng 3 phòng ngủ mái bằng tinh tế
- 2.3 Mẫu thiết kế nhà 2 tầng 80m2 có 3 phòng ngủ mái thái độc đáo
- 2.4 Mẫu thiết kế nhà 2 tầng có 3 phòng ngủ 80m2 hiện đại
- 2.5 Mẫu thiết kế nhà 2 tầng có 3 phòng ngủ 80m2 tân cổ điển
- 2.6 Mẫu nhà 2 tầng 80m2 thiết kế có 3 phòng ngủ không gian mở
- 2.7 Mẫu thiết kế nhà 2 tầng có 3 phòng ngủ 80m2 thiết kế mái lệch
- 2.8 Mẫu thiết kế nhà 2 tầng có 3 phòng ngủ 80m2 có gara thiết kế hiện đại
- 3. Bản vẽ mặt bằng thiết kế nhà 2 tầng có 3 phòng ngủ 80m2
- 4. Lưu ý khi xây nhà nhà 2 tầng 3 phòng ngủ 80m2
- 5. Ước tính chi phí xây nhà nhà 2 tầng 3 phòng ngủ 80m2
- 6. Thiết Kế Nhà 365- Đơn vị thiết kế nhà 2 tầng có 3 phòng ngủ 80m2 uy tín, chất lượng
1. Ưu điểm của nhà 2 tầng 3 phòng ngủ 80m2
Nhà 2 tầng có 3 phòng ngủ 80m2 được nhiều người yêu thích bởi nó có những ưu điểm vượt trội hơn nhiều mẫu nhà hiện đại khác như:
- Diện tích vừa đủ để sử dụng: Với diện tích đất 80m2, ngôi nhà này có thể đáp ứng được toàn bộ nhu cầu sinh hoạt chung cũng như không gian riêng cho các thành viên trong gia đình.
- Phù hợp với gia đình đông người: Đây là một mẫu thiết kế nhà ở phù hợp với gia đình có đông người sinh sống. Nếu gia đình của bạn có 2-3 thế hệ với 4-6 thành viên thì hoàn toàn có thể ở trong ngôi nhà này. Nếu gia đình bạn có ông bà lớn tuổi thì bố trí một phòng ngủ ở tầng 1 dành cho ông bà để thuận tiện cho việc di chuyển, sinh hoạt của họ.

Tham khảo: 55+ Mẫu nhà 2 tầng 8x10m & bản vẽ đẹp đáng xem nhất
2. Tổng hợp 40+ Mẫu thiết kế nhà 2 tầng 3 phòng ngủ 80m2 đẹp khó cưỡng
2.1 Mẫu thiết kế nhà 2 tầng 3 phòng ngủ 80m2 đẹp đơn giản
Cụ thể hơn, đây là một ngôi nhà mái bằng 2 tầng 3 phòng ngủ được tạo thành từ các hình khối chữ nhật đơn giản. Màu sắc chủ đạo của ngôi nhà này là màu sơn trắng kết hợp với một chút màu xám trung tính. Cửa sổ và cửa kính được làm bằng kính cường lực làm tăng thêm vẻ đẹp hiện đại, sang trọng cho ngôi nhà. Hơn nữa, cách thiết kế này còn mang đến sự thông thoáng, dễ chịu đến tuyệt vời.

2.2 Mẫu thiết kế nhà 80m2 2 tầng 3 phòng ngủ mái bằng tinh tế
Đây là một mẫu thiết kế nhà 2 tầng 3 phòng ngủ tinh tế. Mẫu thiết kế này được lựa chọn tông màu sơn trắng kết hợp với mảng tường màu xám nhẹ. Một vài được chỉ xanh tạo nên điểm nhấn trong thiết kế.
Phần cổng của ngôi nhà được thiết kế như một khối hình chữ nhật vuông vắn đẹp mắt. Mặc dù thiết kế không quá cầu kỳ nhưng tất cả các đường nét lại được trau chuốt một cách tỉ mỉ, tinh tế. Trên tầng 2 của ngôi nhà có một phần sân khá rộng để gia chủ có thể để bàn và trồng cây.

2.3 Mẫu thiết kế nhà 2 tầng 80m2 có 3 phòng ngủ mái thái độc đáo
Mẫu nhà 2 tầng mái thái 3 phòng ngủ 80m2 luôn được các chủ đầu tư đánh giá cao về giá trị thẩm mỹ. Hơn nữa, nhà mái thái còn có tác dụng chống nóng, chống thấm cực kỳ cao làm tăng tuổi thọ cho công trình. Do đó, đây là một mẫu nhà 2 tầng được nhiều người yêu thích.
Với mẫu thiết kế đầu tiên, các kiến trúc sư đã lựa chọn phong cách hiện đại cho ngôi nhà. Các kiến trúc sư đã lựa chọn màu sơn trắng kết hợp với màu sơn xám nhẹ. Cửa chính của ngôi nhà được làm bằng cửa gỗ chắc chắn làm tăng sự an toàn cho người sống trong ngôi nhà. Cây xanh được trồng ở ban công để làm thêm giá trị thẩm mỹ.

Còn với mẫu thiết kế thứ hai, ngôi nhà này được các kiến trúc sư lựa chọn phong cách tân cổ điển. Bên cạnh màu sơn trắng tinh khôi, kết hợp với vật liệu kính thể hiện vẻ đẹp hiện đại thì còn có các đường chỉ phào nổi bật dưới lớp mái và trên cột mang nét đẹp cổ điển. Tất cả đã mang đến một vẻ đẹp vô cùng độc đáo và ấn tượng.
2.4 Mẫu thiết kế nhà 2 tầng có 3 phòng ngủ 80m2 hiện đại
Phong cách hiện đại đang trở thành xu hướng lựa chọn cho ngôi nhà 2 tầng có 3 phòng ngủ 80m2. Bởi vì đây là những mẫu thiết kế có chi phí không quá cao, mang vẻ đẹp hiện đại và không gian sống tiện nghi cho cả gia đình.
Với mái bằng có kết cấu đơn giản, không cần mất nhiều thời gian hoàn thiện như các mẫu nhà mái thái hay mái nhật. Do đó, mẫu thiết kế này có chi phí không quá cao, bạn sẽ tiết kiệm được một khoản lớn chi phí.


2.5 Mẫu thiết kế nhà 2 tầng có 3 phòng ngủ 80m2 tân cổ điển
Với mẫu thiết kế trong hình dưới đây, các nét cổ điển đã thể hiện rõ ở các họa tiết trang trí với đường chỉ phào trên cột, tường nhà. Đậm nét hơn và các họa tiết trang trí trên mái nhà tầng 1 và cả tầng 2. Hệ thống vòm cửa mềm mại và các hoa văn màu vàng tạo nên vẻ đẹp sang trọng, quý phái.

Còn trong mẫu thiết kế tiếp theo này, các kiến trúc sư đã chọn kiểu mái nhật để thiết kế cho ngôi nhà. Vẫn là những hệ thống mái vòm mềm mại, các họa tiết trên lan can ban công uốn lượn màu vàng đồng đẹp đẽ. Hệ thống cửa kính kết hợp ánh sáng vàng đã làm tăng thêm vẻ đẹp lung linh đến ấn tượng.
2.6 Mẫu nhà 2 tầng 80m2 thiết kế có 3 phòng ngủ không gian mở
Với kiểu thiết kế này, các kiến trúc sư đã tận dụng tối đa các vật liệu kính trong mẫu nhà 2 tầng 3 phòng ngủ 80m2. Hệ thống cửa được mở rộng tối đa với các cửa chính, cửa sổ, cửa phụ đều có kích thước lớn và làm bằng kính. Thiết kế này giúp ngôi nhà tận dụng được tối đa ánh sáng tự nhiên. Bên cạnh đó, cây xanh được trồng nhiều ở ban công, tầng thượng và trước sân nhà.

2.7 Mẫu thiết kế nhà 2 tầng có 3 phòng ngủ 80m2 thiết kế mái lệch
Nếu bạn muốn ngôi nhà của mình trở nên độc đáo và ấn tượng hơn thì có thể chọn thiết kế nhà 2 tầng 3 phòng ngủ 80m2 mái lệch. Hai mái nhà được thiết kế so le nhau với độ ngắn dài khác nhau.
Màu trắng và sắc nâu phối với nhau một cách hài hòa đẹp mắt. Các kiến trúc sư đã không quên thiết kế thêm gara ô tô đậu xe cho gia đình. Ban công tầng 2 rộng rãi được trồng nhiều cây xanh. Tất cả đã tạo nên một vẻ đẹp ấn tượng đến không ngờ, chắc hẳn đây là mẫu nhà nổi bật nhất khu phố của bạn.

2.8 Mẫu thiết kế nhà 2 tầng có 3 phòng ngủ 80m2 có gara thiết kế hiện đại
Nếu gia đình bạn ở một khu phố chật hẹp, diện tích đất xây dựng không cho phép bố trí sân trước rộng rãi thì thiết kế gara ô tô là một giải pháp hợp lý. Phần gara ô tô thường được bố trí ở ngay lối cửa ra vào để thuận tiện cho việc đi lại.

Xem thêm: 60+ Mẫu nhà ống 2 tầng mái thái mặt tiền 5m đẹp ấn tượng
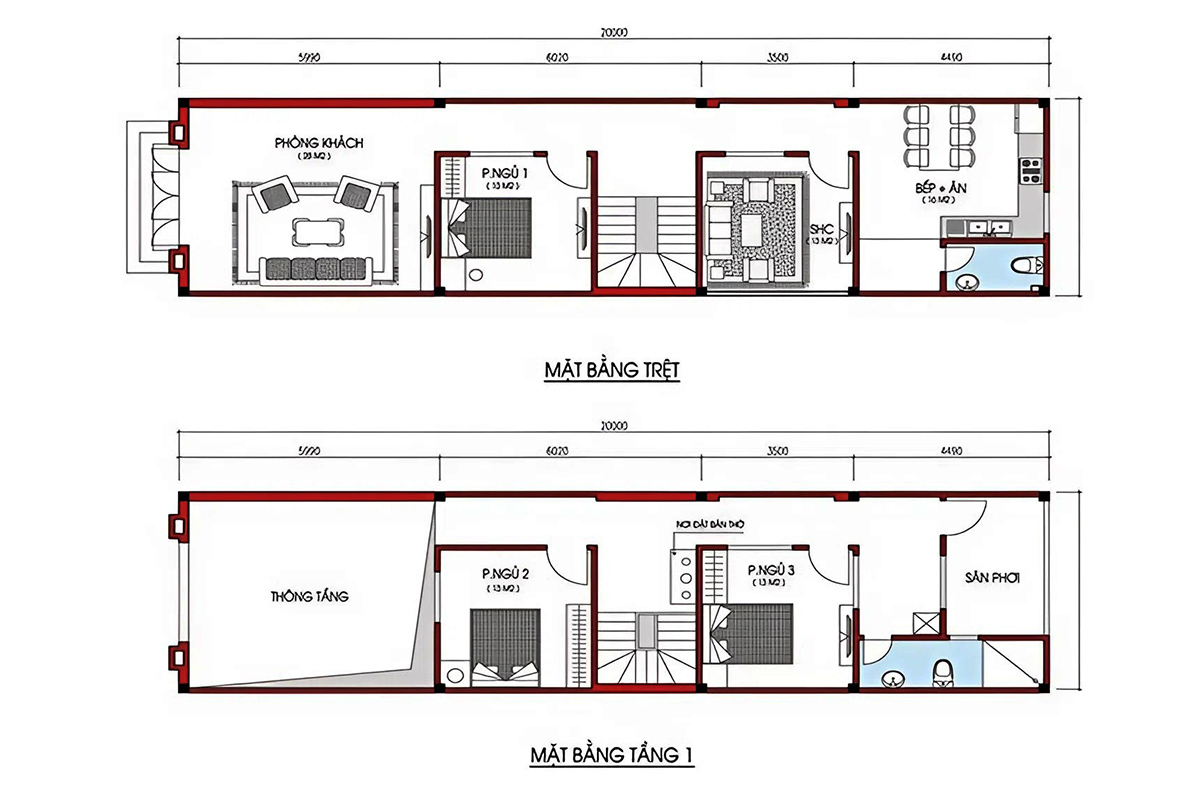
3. Bản vẽ mặt bằng thiết kế nhà 2 tầng có 3 phòng ngủ 80m2
3.1 Bản vẽ mẫu 1
Mặt bằng công năng của mẫu nhà này được bố trí khoa học tạo sự thuận tiện trong khi sử dụng. Bố trí mặt bằng công năng nhà 2 tầng 3 phòng ngủ 80m2 cho các tầng lần lượt như sau:
- Tầng trệt: Tầng này ngôi nhà được bố trí phòng khách ở lối cửa ra vào. Đi thẳng vào trong là phòng sinh hoạt chung cho cả gia đình. Tiếp theo là lối cầu thang, đi vào trong là phòng ngủ và cuối cùng là phòng bếp kết hợp phòng ăn và 1 phòng WC chung.
- Tầng 1: Tầng này các kiến trúc sư bố trí 2 phòng ngủ, 1 sân thượng lớn và 1 sân phơi.

3.2 Bản vẽ mẫu 2
Đối với bản vẽ 2 thì ngôi nhà được bố trí mặt bằng công năng tầng 1 và tầng 2 như sau:
- Tầng 1: Tầng này được bố trí các khu vực sinh hoạt chung như sân trước lớn, khu vườn nhỏ, phòng khách và phòng ăn kết hợp phòng bếp.
- Tầng 2: Tầng này được bố trí 3 phòng ngủ và thông tầng.

Tham khảo: 50+ Mẫu nhà 2 tầng chữ L 100m2 hiện đại tiện nghi nhất
4. Lưu ý khi xây nhà nhà 2 tầng 3 phòng ngủ 80m2
Để xây nhà 2 tầng 3 phòng ngủ 80m2 đảm bảo chất lượng, tiết kiệm chi phí thì bạn cần lưu ý đến một số vấn đề sau:
- Nhu cầu sử dụng của gia đình bạn.
- Đặc điểm kiến trúc cơ bản của ngôi nhà 2 tầng 3 phòng ngủ mà bạn đang định xây.
- Tính toán ngân sách dự trù để thực hiện xây nhà 2 tầng 3 phòng ngủ 80m2.
- Vị trí của mẫu thiết kế nhà 2 tầng 3 phòng ngủ mà đã bạn đã dự kiến xây dựng.
- Thời điểm xây nhà là khi nào? Tốt nhất là nên chọn thời điểm 3 tháng đầu năm hoặc cuối năm để xây nhà, tránh những tháng có nhiều mưa bão.
- Phong cách thiết kế của ngôi nhà 2 tầng trước khi xây dựng.
- Lựa chọn các loại vật liệu xây dựng.
- Hoàn thành các thủ tục pháp lý trước khi tiến hành xây dựng nhà 2 tầng.

Xem thêm: 55+ Mẫu thiết kế nhà 2 tầng 100m2 đẹp, thông thoáng
5. Ước tính chi phí xây nhà nhà 2 tầng 3 phòng ngủ 80m2
Chi phí xây dựng nhà 2 tầng 3 phòng ngủ 80m2 là bao nhiêu còn phụ thuộc vào nhiều yếu tố khác nhau như:
- Phong cách thiết kế
- Thời điểm thi công
- Chất lượng vật liệu
Do đó, để biết chi tiết mẫu nhà bạn đang có ý định xây hết khoảng bao nhiêu thì bạn cần liên hệ trực để được của Thiết Kế Nhà 365 để được tư vấn, báo giá chính xác.

Xem thêm: 25+ Mẫu nhà 1 tầng 3 phòng ngủ 120m2 đẹp tinh tế, chi phí thấp
6. Thiết Kế Nhà 365- Đơn vị thiết kế nhà 2 tầng có 3 phòng ngủ 80m2 uy tín, chất lượng
Nếu bạn đang cần xây dựng một thiết kế nhà 2 tầng có 3 phòng ngủ 80m2 mà chưa tìm được đơn vị thiết kế, thi công nhà ở nào uy tín chuyên nghiệp. Hãy tìm đến Thiết Kế Nhà 365 – một đơn vị đã có hơn 10 năm kinh nghiệm hoạt động và phát triển trong lĩnh vực này. Chúng tôi sẽ đồng hành cùng bạn để có được một công trình đẹp, chất lượng và tiết kiệm chi phí. Khi đến với Công ty Thiết Kế Nhà 365 thì bạn sẽ được:
- Tư vấn miễn phí 100% để có được công trình nhà 2 tầng có 3 phòng ngủ 80m2 hoàn mỹ, đảm bảo đầy đủ công năng sử dụng.
- Luôn có đầy đủ các loại giấy tờ cũng như thủ tục pháp lý cần thiết để xây dựng.
- Có hợp đồng xây dựng cụ thể với các điều khoản rõ ràng, đầy đủ để đảm bảo được quyền lợi và trách nhiệm của hai bên.
- Giá cả cạnh tranh nhất trên thị trường, cam kết không có chi phí phát sinh ngoài hợp đồng.
- Công trình hoàn thành được bàn giao cho khách hàng sẽ giống đến 99% bản thiết kế.
Vừa rồi là những thông tin về thiết kế nhà 2 tầng có 3 phòng ngủ 80m2 và những mẫu nhà hiện đại, đầy đủ tiện nghi để bạn đọc tham khảo. Nếu bạn đang cần tìm thì hãy liên hệ ngay đến Công ty Thiết Kế Nhà 365 để được tư vấn miễn phí, nhiệt tình!










