Mẫu nhà 2 tầng 8x12m là mẫu nhà được bắt gặp nhiều ở vùng nông thôn hoặc các gia đình có khu đất xây dựng rộng. Đây là một mẫu nhà được đánh giá cao nhờ việc vừa có thể đáp ứng tốt công năng sử dụng vừa đảm bảo tính thẩm mỹ cho ngôi nhà. Trong bài viết hôm nay, Thiết Kế Nhà 365 sẽ giải thích rõ vì sao vì sao thiết kế nhà 8x12m 2 tầng được nhiều người ưa chuộng và giới thiệu một số mẫu nhà đẹp “mê hồn” để bạn đọc tham khảo.
- 1. Vì sao mẫu thiết kế nhà 8x12m 2 tầng được nhiều người ưa chuộng?
-
2. Các mẫu thiết kế nhà 8x12m 2 tầng đẹp mê hồn hiện nay
- 2.1 Mẫu nhà 8x12m 2 tầng ở nông thôn
- 2.2 Mẫu nhà 2 tầng 8x12m 4 phòng ngủ
- 2.3 Mẫu thiết kế nhà 8x12m 2 tầng hiện đại
- 2.4 Nhà mặt tiền 8m 2 tầng 800 triệu
- 2.5 Mẫu thiết kế nhà 8x12m 2 tầng có tầng bán hầm độc đáo
- 2.6 Mẫu thiết kế nhà 2 tầng 8x12m phong cách sang trọng
- 2.7 Mẫu nhà 2 tầng 8x12m phối màu tinh tế
- 2.8 Thiết kế nhà 2 tầng 8x12m mái thái trang nhã
- 2.9 Mẫu thiết kế nhà 2 tầng 8x12m đẹp kiểu mái lệch
- 2.10 Thiết kế nhà 2 tầng 8x12m mái nhật trẻ trung ấn tượng
- 2.11 Mẫu thiết kế nhà 8x12m 2 tầng có gara
- 2.12 Mẫu nhà 2 tầng mái bằng 8x12m
- 2.13 Thiết kế nhà 2 tầng 8x12m có gác lửng
- 3. Một số bản vẽ thiết kế nhà 2 tầng 8x12m
- Câu hỏi thường gặp
- 4. Thiết Kế Nhà 365 – Đơn vị thi công thiết kế nhà 8x12m 2 tầng uy tín, chất lượng
1. Vì sao mẫu thiết kế nhà 8x12m 2 tầng được nhiều người ưa chuộng?
Những mẫu nhà hiện đại 8x12m được nhiều người ưa chuộng bởi có có những ưu điểm vượt trội đáng kể đến như:
- Thiết kế nhà 8x12m 2 tầng phù hợp với gia đình có từ 4 đến 5 thành viên sinh sống. Vừa đảm bảo được không gian sinh hoạt chung rộng rãi vừa đảm bảo có không gian riêng tư cho các thành viên trong gia đình.
- Phù hợp với nhiều phong cách thiết kế khác nhau từ hiện đại, tân cổ điển đến cổ điển. Các kiến trúc sư sẽ mang đến một công trình có tính thẩm mỹ cao và phù hợp với xu thế hiện nay.
- Chi phí xây dựng không quá nhiều phù hợp với mức thu nhập của nhiều người dân Việt mình. Bởi mẫu nhà này thường tập trung vào công năng sử dụng, không quá cầu kỳ, vật liệu xây dựng cũng dễ tìm. Do đó, thiết kế nhà 8x12m 2 tầng không tốn nhiều thời gian thi công mà vẫn tiết kiệm được chi phí hiệu quả.

Xem thêm: 55+ Mẫu nhà 2 tầng 8x10m & bản vẽ đẹp đáng xem nhất
2. Các mẫu thiết kế nhà 8x12m 2 tầng đẹp mê hồn hiện nay
2.1 Mẫu nhà 8x12m 2 tầng ở nông thôn
Ở nông thôn thường có quỹ đất ở rộng hơn khu vực thành thị đông đúc. Do đó, việc xây dựng một mẫu thiết kế nhà 2 tầng mặt tiền 8m có sân vườn rộng vô cùng hợp lý. Bạn có thể chọn một mẫu nhà ngang 8m mái Nhật để xây dựng. Phần cửa chính được làm bằng gỗ, còn cửa sổ và cửa lớn tầng 2 thì làm bằng cửa kính.
Thiết kế này vừa đảm bảo an toàn cao vừa tận dụng được ánh sáng tự nhiên tốt nhất. Ban công khu vực bên ngoài cửa sổ được thiết kế để trồng hoa hoặc cây dây leo vô cùng ấn tượng.


2.2 Mẫu nhà 2 tầng 8x12m 4 phòng ngủ
Mẫu thiết kế nhà 8x12m 2 tầng 4 phòng ngủ phù hợp với gia đình có từ 4-6 người sinh sống. Với thiết kế này sẽ đảm bảo đủ không gian sinh hoạt riêng tư cho mỗi một thành viên trong gia đình. Bạn có thể chọn thiết kế nhà mái Nhật để tăng tính thẩm mỹ. Màu sắc lựa chọn là màu trắng điểm xuyết màu xám trung tính làm tăng vẻ đẹp sang trọng của ngôi nhà.

Ngôi nhà được bố trí nhiều cửa sổ xung quanh với vật liệu được làm bằng kính để lấy ánh sáng. Phần ban công có thể thiết kế đơn giản với một chút họa tiết ở lan can, có bồn cây xanh. Mái che thưa với các khung sườn màu trắng để treo giàn hoa cũng vô cùng độc đáo.

2.3 Mẫu thiết kế nhà 8x12m 2 tầng hiện đại
Nhà hai tầng mặt tiền 8m với thiết kế hiện đại cũng đang là ưu tiên lựa chọn của nhiều người. 8m mặt tiền khá rộng rãi nên có thể chia làm phần bố cục là phần cửa chính và phần lồi bên hông nhà. Ban công được tận dụng để bố trí cây xanh. Cửa kính được sử dụng nhiều để đón sáng và tạo sự thông thoáng trong nhà.

2.4 Nhà mặt tiền 8m 2 tầng 800 triệu
Nếu bạn có 800 triệu để xây nhà với mặt tiền 8m 2 tầng thì có thể tham khảo hai mẫu thiết kế nhà trong bài viết dưới đây. Những mẫu nhà này mang đến cảm giác sang trọng, đẳng cấp cho chủ nhân của ngôi nhà. Ngoài phần cấu trúc thì hệ thống ánh sáng và hệ thống cây xanh cũng cần được chú trọng. Sân vườn rộng rãi để có thể để xe hoặc vui chơi khi cần thiết.

2.5 Mẫu thiết kế nhà 8x12m 2 tầng có tầng bán hầm độc đáo
Mẫu thiết kế nhà 8x12m 2 tầng hiện đang được nhiều người lựa chọn. Đặc biệt đối với những gia đình ở khu vực thành phố đông đúc là vô cùng phù hợp. Bởi họ không có không gian sân vườn lớn xung quanh để đậu xe mà phải có tầng bán hầm để làm công việc này. Thiết kế bán hầm sẽ giúp bạn tận dụng không gian tầng hầm để đậu xe, làm kho chứa đồ vô cùng thuận tiện.

2.6 Mẫu thiết kế nhà 2 tầng 8x12m phong cách sang trọng
Có lẽ đây là mẫu thiết kế nhà 2 tầng 8x12m được nhiều người yêu thích nhất. Bạn có thể chọn mẫu thiết kế nhà với phong cách sang trọng có mái bằng hoặc mái Nhật tùy thích. Nếu quỹ đất ở hạn hẹp thì bạn có thể bố trí một gara ô tô ngay bên hông cửa chính. Còn nếu quỹ đất ở rộng thì bạn có thể bố trí sân vườn rộng lớn để đậu xe, vui chơi.
Phần cửa được thiết kế rộng với vật liệu kính để có thể tận dụng ánh sáng tự nhiên. Phần tầng 2 thì có thể bố trí một nửa để làm sân thượng, trồng cây, ngắm cảnh.

2.7 Mẫu nhà 2 tầng 8x12m phối màu tinh tế
Đây là những mẫu thiết kế nhà 2 tầng 8x12m có cách phối màu tinh tế, trang nhã. Tông màu chính của ngôi nhà là màu trắng thanh lịch, sạch sẽ. Phần mái nhà được lựa chọn màu xanh đen hoặc xanh xám để có hài hòa trong màu sắc. Bạn có thể chọn cửa chính là cửa gỗ kết hợp với kính để tăng thêm phần sang trọng cho ngôi nhà.

2.8 Thiết kế nhà 2 tầng 8x12m mái thái trang nhã
Nhà mái thái luôn là niềm đam mê, yêu thích của nhiều người. Bởi vì loại mái nhà này có nhiều ưu điểm như có khả năng chống nóng tốt và khả năng thoát nước nhanh. Chưa dừng lại ở đó, mẫu thiết kế nhà 2 tầng 8x12m mái thái này còn đảm bảo tính thẩm mĩ cao cho vẻ ngoài của công trình.

2.9 Mẫu thiết kế nhà 2 tầng 8x12m đẹp kiểu mái lệch
Nếu bạn muốn ngôi nhà tổ ấm của mình trở nên đặc biệt và nổi bật hơn thì đây chính là mẫu thiết kế nhà đáng lựa chọn. Thiết kế nhà 2 tầng 8x12m mái lệch tạo nên sự độc đáo trong mắt người nhìn. Sự kết hợp linh hoạt giữa các hình khối đã mang đến một cấu trúc nhà ở ấn tượng. Đừng quên bố trí thêm cây xanh ở phần ban công hay sân thượng để giúp nhà ở trở nên gần gũi với thiên nhiên hơn.

2.10 Thiết kế nhà 2 tầng 8x12m mái nhật trẻ trung ấn tượng
Nhà mái Nhật đang là xu hướng trong xây dựng và thiết kế nhà của người Việt. Bởi vì mái nhà này có tính thẩm mỹ cao và khả năng chống nóng tốt. Thiết kế nhà 2 tầng 8x12m có mái Nhật được nhiều bạn trẻ yêu thích bởi sự chắc chắn và vẻ ngoài bề thế mà thiết kế này mang lại. Chưa dừng lại ở đó, nó còn thể hiện được gia thế, địa vị của gia chủ.

2.11 Mẫu thiết kế nhà 8x12m 2 tầng có gara
Mẫu thiết kế nhà 8x12m 2 tầng có gara được lựa chọn dành cho các gia đình ở khu nhà phố. Gara ô tô giúp gia đình có không gian rộng rãi để đậu xe, che mưa nắng và đảm bảo an toàn cho phương tiện. Gara ô tô thường được bố trí ở phần sân trước để thuận tiện cho việc ra vào của gia chủ.

2.12 Mẫu nhà 2 tầng mái bằng 8x12m
Nhà mái bằng đang là lựa chọn hàng đầu của nhiều gia đình. Mái bằng đảm bảo được công năng sử dụng tốt mà rất tiết kiệm chi phí cho gia chủ. Bởi vì, đây là mẫu nhà 2 tầng 8x12m có thiết kế đơn giản, thi công nhanh chóng và tiết kiệm được nhiều chi phí nhân công.

2.13 Thiết kế nhà 2 tầng 8x12m có gác lửng
Mẫu thiết kế nhà 2 tầng 8x12m có gác lửng sẽ làm tăng diện tích sử dụng cho ngôi nhà mà không tốn quá nhiều chi phí. Thay vì xây dựng một ngôi nhà 3 tầng tốn kém thì bạn có thể làm thêm một gác lửng trong ngôi nhà 2 tầng. Chắc hẳn bạn sẽ cảm thấy hài lòng với thiết kế tuyệt vời này.

Tham khảo: Những mẫu thiết kế nhà mặt tiền 8m sâu 10m đẹp
3. Một số bản vẽ thiết kế nhà 2 tầng 8x12m
3.1 Bản vẽ nhà 2 tầng 8x12m 3 phòng ngủ
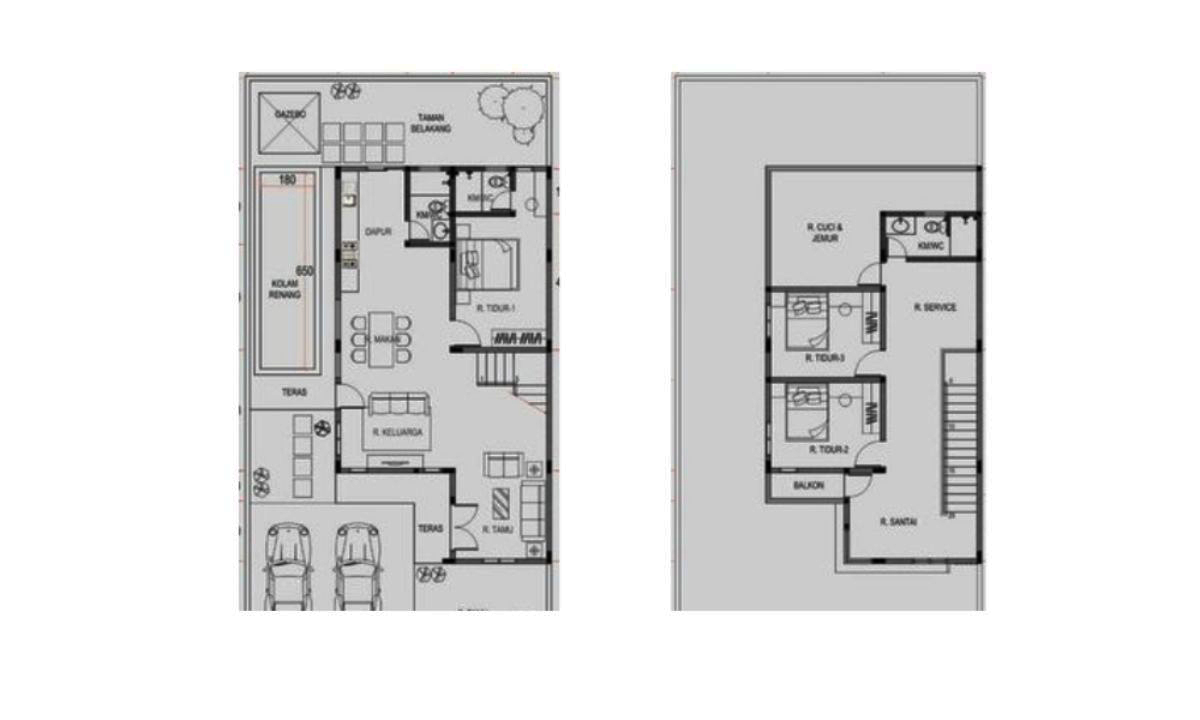
Đây là bản vẽ nhà 2 tầng 8x12 3 phòng ngủ chi tiết được nhiều người quan tâm. Tầng 1 được bố trí phòng khách, phòng ăn kết hợp phòng bếp và 1 phòng ngủ. Tầng 2 được bố trí 2 phòng ngủ và các không gian sinh hoạt khác.

3.2 Bản vẽ nhà 2 tầng 8x12 4 phòng ngủ
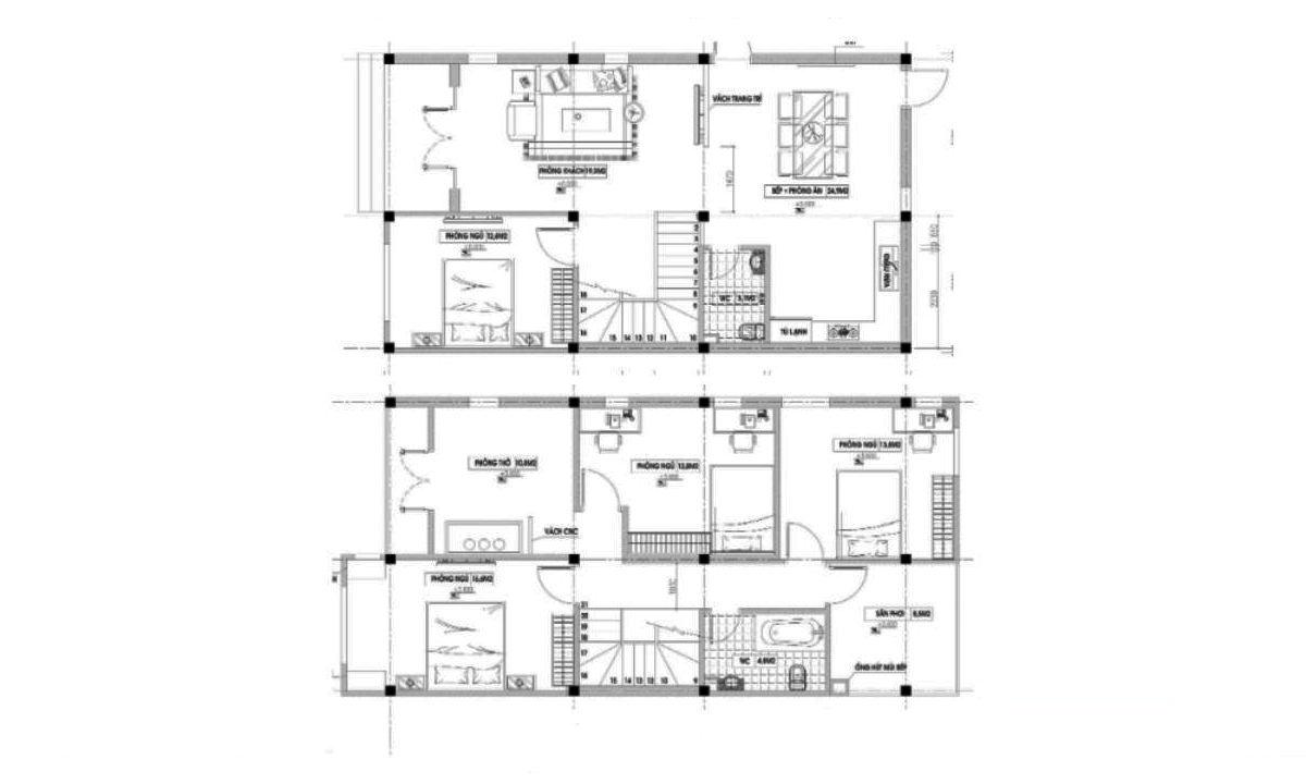
Nếu gia đình bạn có 5-6 người sinh sống thì hãy tham khảo bản một trong hai bản thiết kế dưới đây. Tầng 1 thường có 1 phòng ngủ và các không gian sinh hoạt chung. Tầng 2 được bố trí 3 phòng ngủ kết hợp với sân thượng.


3.3 Bản vẽ nhà 2 tầng 8x12 phong cách đơn giản
Bản vẽ nhà 2 tầng này có thiết kế vô cùng đơn giản, không quá cầu kỳ. Nếu bạn yêu thích phong cách này thì đừng bỏ qua. Tầng 1 của ngôi nhà được bố trí gara, 1 phòng khách, 1 phòng ăn kết hợp phòng bếp cùng với 1 phòng ngủ. Tầng 2 được bố trí 2 phòng ngủ với phòng giải trí, phòng thờ.

3.4 Bản vẽ nhà 2 tầng 8x12 đẹp ấn tượng
Nếu bạn muốn bố trí các khu vực chức năng một cách ấn tượng thì tham khảo bản vẽ nhà 2 tầng 8x12 sau đây. Tầng 1 của ngôi nhà là phòng khách, phòng bếp, phòng ăn và 1 phòng ngủ. Tầng 2 sẽ được bố trí 3 phòng ngủ, phòng thờ và sân phơi.

Tham khảo: 40+ Mẫu nhà 2 tầng mặt tiền 8m hiện đại, thịnh hành
Câu hỏi thường gặp
1. Thiết kế nhà 8x12m phù hợp với gia đình bao nhiêu người?
Nhà diện tích 8x12m phù hợp với gia đình từ 4–6 người, nhờ không gian đủ rộng để bố trí phòng khách, bếp và nhiều phòng ngủ thoải mái.
2. Nhà 8x12m nên xây mấy tầng là hợp lý?
Phổ biến nhất là 2 tầng. Phương án này giúp tối ưu diện tích sử dụng, chi phí xây dựng và đáp ứng tốt nhu cầu sinh hoạt lâu dài.
3. Bố trí mặt bằng nhà 8x12m như thế nào cho hợp lý?
Tầng 1 thường gồm phòng khách, bếp + ăn và WC.
Tầng 2 bố trí phòng ngủ, WC và không gian sinh hoạt riêng hoặc phòng thờ.
4. Phong cách thiết kế nào phù hợp với nhà 8x12m?
Phong cách hiện đại được lựa chọn nhiều nhất vì dễ thi công, tối ưu không gian và phù hợp với đa số nhu cầu sử dụng hiện nay.
5. Làm sao để nhà 8x12m trông rộng và thoáng hơn?
Nên tận dụng ánh sáng tự nhiên, thiết kế cửa kính lớn, ban công hoặc giếng trời để tăng độ thoáng và giảm cảm giác bí bách.
Xem thêm: 25+ Mẫu thiết kế nhà rộng 7m dài 13m đẹp thịnh hành nhất
4. Thiết Kế Nhà 365 – Đơn vị thi công thiết kế nhà 8x12m 2 tầng uy tín, chất lượng
Nếu bạn đang tìm kiếm một đơn vị thiết kế, thi công nhà 8x12m 2 tầng uy tín, chất lượng thì hãy tin tưởng Công ty Thiết Kế Nhà 365. Chúng tôi là một đơn vị chuyên nhận thiết kế, thi công các loại hình nhà ở như nhà phố, biệt thự, resort. Công ty Thiết Kế Nhà 365 có những ưu điểm vượt trội hơn các đơn vị khác nên được nhiều chủ đầu tư tin tưởng:
- Đã có hơn 10 năm kinh nghiệm hoạt động trong lĩnh vực thiết kế, thi công công trình nhà ở.
- Đội ngũ kiến trúc sư, thợ thi công được đào tạo bài bản có nhiều kinh nghiệm.
- Có hợp đồng rõ ràng.
- Tư vấn nhiệt tình, miễn phí 100%.
- Chi phí cạnh tranh nhất khu vực, minh bạch rõ ràng và cam kết không có chi phí phát sinh. Tham khảo
- Luôn đảm bảo tiến độ thi công.
- Cam kết công trình bàn giao sau khi hoàn thành giống 99% bản thiết kế.
Trên đây là những mẫu thiết kế nhà 8x12m 2 tầng đẹp nhất hiện nay cùng với một số bản vẽ chi tiết để bạn đọc tham khảo. Hy vọng những thông tin này sẽ giúp bạn tìm ra ý tưởng hay cho công trình sắp tới của mình. Nếu có thắc mắc gì thêm thì hãy liên hệ đến Thiết Kế Nhà 365 để được tư vấn miễn phí.










