Các mẫu thiết kế nhà rộng 7m dài 13m ngày càng được nhiều gia chủ quan tâm bởi phong cách độc đáo, đầy đủ tiện nghi và phù hợp với đa số quỹ đất hiện tại. Ngoài ra, kiểu nhà này cũng có chi phí thi công phù hợp, dễ dàng thiết kế công năng nên rất phù hợp với các gia đình trẻ. Nếu đang quan tâm đến mẫu nhà này, hãy cùng Thiết Kế Nhà 365 điểm qua một số thiết kế đẹp và độc đáo hiện nay.
- Tại sao nên thiết kế nhà rộng 7m dài 13m?
- Một số bản vẽ công năng cho nhà rộng 7x13m
-
Tổng hợp các mẫu thiết kế nhà có kích thước 7m dài 13m đẹp độc đáo
- Mẫu thiết kế nhà phố 7x13m phong cách hiện đại
- Mẫu nhà rộng 7m dài 13m mái thái
- Thiết kế nhà rộng 7m dài 13m mái tôn
- Mẫu nhà 7x13m hình chữ L
- Mẫu nhà 7x13 kết hợp không gian xanh
- Mẫu nhà rộng 7x13m có gác lửng
- Thiết kế nhà 7m dài 13m mái lệch đẹp độc đáo
- Mẫu thiết kế nhà rộng 7m dài 13m mái đôi ấn tượng
- Thiết kế nhà 7x13 2 tầng đẹp hiện đại
- Ước tính chi phí thiết kế nhà kích thước 7m dài 13m
- Lưu ý khi thiết kế nhà ngang 7m dài 13m
- Kinh nghiệm khi thiết kế nhà rộng 7m dài 13m
Tại sao nên thiết kế nhà rộng 7m dài 13m?
Thiết kế nhà rộng 7m dài 13m là kiểu nhà có phần mặt tiền nhỏ và chiều sâu lớn hơn, thường áp dụng trên các quỹ đất hình chữ nhật. Trước xu hướng thu hẹp về chiều rộng đất đai hiện nay, kiểu nhà này đã và đang được sử dụng rất nhiều ở cả khu vực nông thôn và thành phố.
Dưới đây là các lý do tại sao bạn nên chọn các mẫu nhà hiện đại có chiều rộng 7x13m:
- Lợi thế về chiều sâu và chiều dài cho phép bạn bố trí cả sân trước và sân sau cho không gian thêm thông thoáng, mát mẻ.
- Dễ dàng xây thêm ban công và sân thượng có kích thước lớn.
- Đa số các kiểu nhà mặt tiền nhỏ và chiều sâu lớn có thiết kế khá đơn giản, phù hợp với xu hướng hiện nay. Các chi tiết rườm rà sẽ bị lược bỏ.
- Tổng diện tích đất để xây nhà khoảng hơn 90m2. Đây là con số phù hợp để bạn có thể xin cấp giấy phép thi công, xây dựng ở cả khu vực nông thôn hay thành phố.
- Thiết kế nội thất cho kiểu nhà rộng 7m dài 13m không cần quá cầu kỳ, chi tiết. Từ đó, giúp gia chủ tiết kiệm được nhiều chi phí và thời gian thi công.

Xem thêm: 25+ Mẫu thiết kế nhà 3 tầng đẹp mặt tiền 7m xu hướng mới
Một số bản vẽ công năng cho nhà rộng 7x13m
Để bố trí công năng hiệu quả cho thiết kế nhà nhà mặt tiền 7m, bạn nên tận dụng tất cả các không gian và tối ưu diện tích đất quanh nhà. Dưới đây là một số bản vẽ công năng được Thiết Kế Nhà 365 thực hiện mà bạn có thể tham khảo:
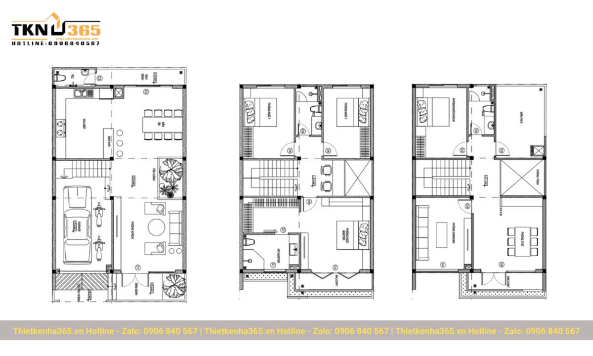
Bản vẽ công năng cho nhà rộng 7x13m đẹp đơn giản
Công năng tầng 1 gồm có phòng khách thông với phòng bếp và phòng ăn. Sân trước sử dụng làm gara đậu xe. Mặt bằng tầng 2 là khu vực sinh hoạt riêng tư của các thành viên với 3 phòng ngủ đầy đủ công năng, tiện ích. Khu vực tầng 3 được sử dụng làm sân phơi đồ và xây dựng phòng thờ ở vị trí kín đáo.

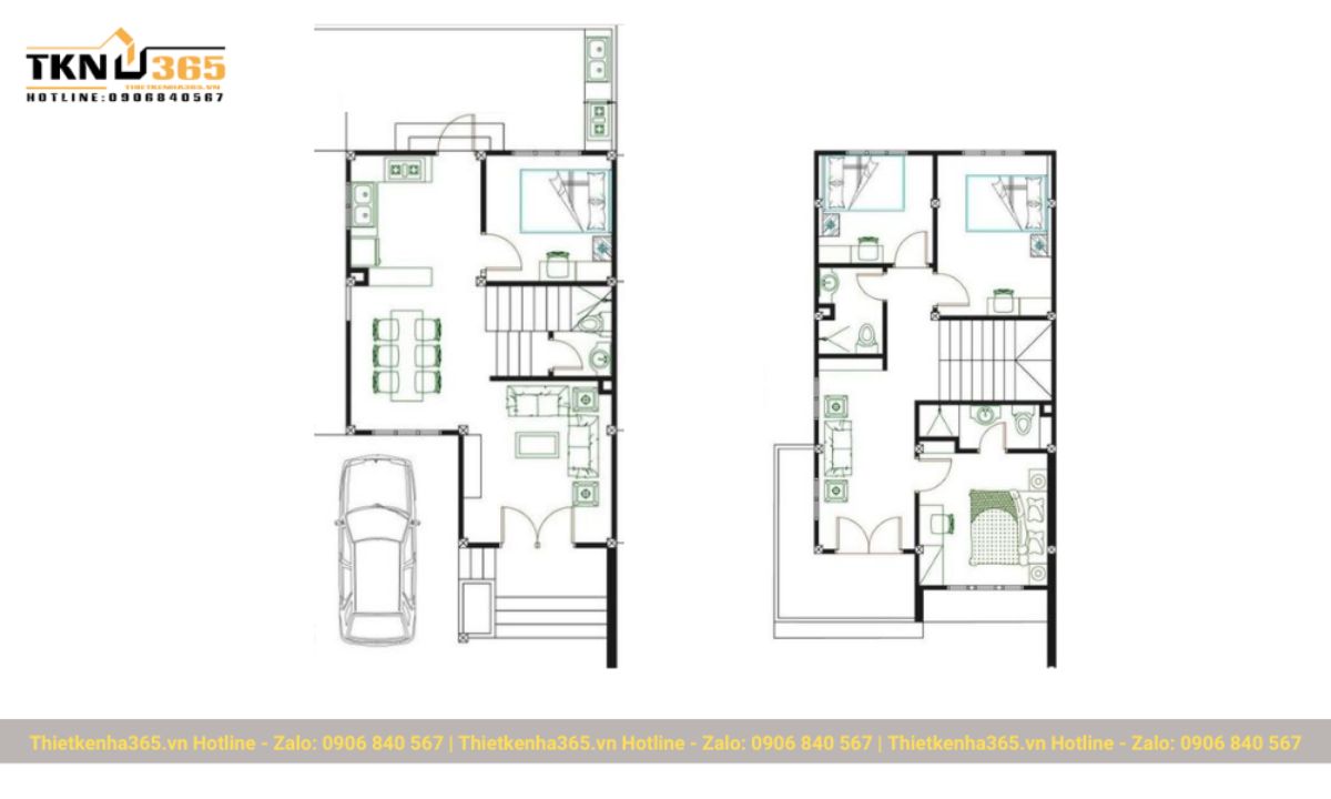
Bản vẽ công năng cho nhà có kích thước 7x13m đẹp hiện đại
Mặt bằng tầng trệt có phòng khách, phòng bếp và phòng ăn cùng nằm trên một đường thẳng. Bên cạnh là văn phòng làm việc và phòng ngủ cho khách. Tầng 2 có hệ thống 3 phòng ngủ lắp đặt thành hình chữ L, bên cạnh đó còn có khu vực thông tầng để không khí trong nhà được lưu thông.

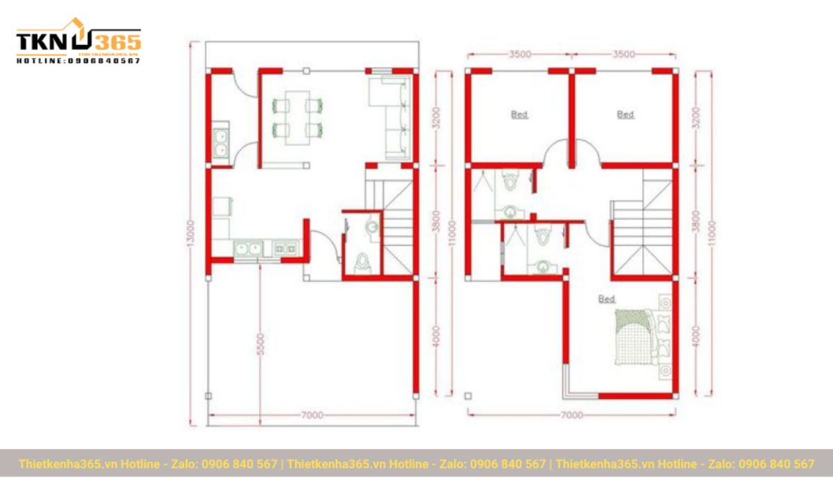
Bản vẽ công năng cho nhà 7mx13m tối ưu diện tích
Mẫu nhà rộng 7m dài 13m có mặt bằng tầng 1 là khu vực dành cho phòng khách, phòng bếp và phòng ăn. Sân trước có diện tích rộng để đậu xe hơi. Mặt bằng tầng 2 có 3 phòng ngủ và phòng sinh hoạt chung cho các thành viên trong gia đình.

Bản vẽ công năng tiếp theo có phòng khách và phòng ăn nối liền với nhau, phòng bếp được tách riêng ra khu vực khác. Tầng 2 là không gian dành cho 3 phòng ngủ và khu vực thông tầng giúp không khí trong nhà luôn thông thoáng, dễ chịu.

Tham khảo: 35+ Mẫu thiết kế nhà phố 7x20m vạn người mê – tối Ưu Công Năng 2026
Tổng hợp các mẫu thiết kế nhà có kích thước 7m dài 13m đẹp độc đáo
Sau khi đã tìm hiểu một số bản vẽ công năng nhà rộng 7m dài 13m, dưới đây là các mẫu thiết kế đẹp và độc đáo hiện nay mà bạn có thể tham khảo:
Mẫu thiết kế nhà phố 7x13m phong cách hiện đại
Nhà phố 7x13m có lợi thế về chiều dài, mặt tiền hẹp hơn để phù hợp với quỹ đất nhưng vẫn đảm bảo đầy đủ công năng sử dụng cho gia chủ. Tổng thể căn nhà sử dụng tông màu trắng hiện đại, sang trọng, kết hợp cũng các chi tiết bằng gỗ như cửa ra vào, cửa sổ là điểm nhấn vô cùng ấn tượng.

Mẫu nhà rộng 7m dài 13m mái thái
Thiết kế nhà rộng 7m dài 13m cấu trúc mái Thái đang là xu hướng thịnh hành được nhiều người ưa chuộng hiện nay. Diện tích tổng thể không quá lớn nhưng vẫn đảm bảo đầy đủ công năng và tiện ích sử dụng. Các tầng đều có ban công để trồng cây xanh, cửa kính rộng hấp thu được nhiều ánh sáng.

Thiết kế nhà rộng 7m dài 13m mái tôn
Mái tôn đang ngày càng được sử dụng nhiều trong các thiết kế nhà rộng 7m dài 13m. Ưu điểm của vật liệu này là chi phí rẻ, phù hợp với phong cách hiện đại sang trọng. Hệ thống cửa kính được bố trí ở mọi hướng giúp tối ưu lượng ánh sáng tự nhiên vào nhà. Sân trước và sân sau kích thước lớn dùng để trồng cây xanh.

Mẫu nhà 7x13m hình chữ L
Mẫu nhà hình chữ L được chia thành nhiều khối khác nhau, tuy nhiên vẫn đảm bảo tính thống nhất và cân bằng cho tổng thể. Căn nhà toát lên sự hiện đại, sang trọng thông qua nhiều chi tiết như cấu trúc mái bằng, lan can bằng sắt, cửa sổ bằng kính và tường ốp gạch trắng tối giản. Không quá nhiều chi tiết cầu kỳ, các kiến trúc sư nhấn mạnh vào các hình khối vuông vức và mạnh mẽ.

Mẫu nhà 7x13 kết hợp không gian xanh
Thiết kế nhà rộng 7m dài 13m có không gian xanh được nhiều gia chủ lựa chọn. Phần sân trước kích thước lớn có thể tận dụng làm gara đậu xe. Tầng 2 được chia ra làm khu vực để ở và khu vực trồng cây xanh thoáng mát. Tầng tum là sân thượng, có vách ngăn lấy thêm nhiều ánh sáng vào nhà.

Mẫu nhà rộng 7x13m có gác lửng
Sử dụng tông màu trắng làm chủ đạo cùng những điểm nhấn tối màu giúp tổng thể căn nhà trông vô cùng sang trọng. Mặt tiền được lắp cửa kính theo nhiều hướng khác nhau để hấp thụ ánh sáng tự nhiên hiệu quả. Lắp đặt thêm gác lửng không chỉ tối ưu không gian mà còn cho phép gia chủ bố trí thêm công năng trong nhà.

Thiết kế nhà 7m dài 13m mái lệch đẹp độc đáo
Nếu yêu thích phong cách độc đáo, ấn tượng, bạn có thể tham khảo mẫu thiết kế nhà mái lệch với cấu trúc bất cân xứng. 4 hướng đều được lắp đặt cửa kính pano, tầng 2 có khu vực ban công rộng trồng cây xanh thoáng mát. Sân nhà rộng, sử dụng làm vườn hoặc khu vực đậu xe.

Mẫu thiết kế nhà rộng 7m dài 13m mái đôi ấn tượng
Cấu trúc mái đôi thường xuyên được sử dụng để tạo điểm nhấn cho tổng thể căn nhà. Tông màu chủ đạo là các gam trung tính trầm ổn, kết hợp điểm nhấn là cửa ra vào màu đỏ ấn tượng. Tầng 2 có sử dụng vách ngăn để đảm bảo sự riêng tư trong sinh hoạt chung gia đình.

Thiết kế nhà 7x13 2 tầng đẹp hiện đại
Các kiến trúc sư đã lựa chọn phong cách hiện đại cho mẫu nhà phố diện tích 7x13. Không có quá nhiều chi tiết cầu kỳ, thiết kế tập trung vào những mảng hình khối vuông vức, đảm bảo đầy đủ công năng và tạo không gian mở. Các vật liệu sử dụng cũng rất đa dạng như nhôm, kính, đá, thép… để tạo chiều sâu.

>>> Xem thêm: 25+ Mẫu thiết kế nhà 7x20m đẹp nhất 2026
Xem thêm: 10+ Mẫu thiết kế nhà phố chiều rộng 7m đẹp, đầy đủ công năng
Ước tính chi phí thiết kế nhà kích thước 7m dài 13m
Để tiết kiệm chi phí thiết kế nhà có kích thước 7m dài 13m, gia chủ cần chú ý đến những gạch đầu dòng.
Các công trình có diện tích lớn và nhiều tầng, bố trí nội thất cầu kỳ sẽ tốn chi phí nhiều hơn:
- Nhà 1 tầng rộng 7m dài 13m có từ 2 đến 3 phòng ngủ, đầy đủ công năng sử dụng sẽ tốn chi phí khoảng 1 tỷ.
- Nhà 2 tầng có từ 3-4 phòng ngủ, chi phí xây dựng dao động từ 1.8 đến 2.5 tỷ.
- Nhà 3 tầng có từ 4-6 phòng ngủ, chi phí xây dựng rơi vào khoảng 2.5 đến 4 tỷ.
Thiết kế sàn nhà ngang 7m dài 13m nên lựa chọn diện tích trong khoảng 90m2 đến 150m2, kiểu nhà 1-3 tầng phù hợp với kinh phí và nhu cầu sử dụng của các gia chủ có quỹ đất xây nhà rộng ở vùng nông thôn, ven thành phố.
Chi phí thiết kế nhà rộng 7m dài 13m còn phụ thuộc vào các yếu tố dưới đây:
- Quy mô và diện tích công trình
- Phong cách chủ đạo
- Nguyên liệu sử dụng
- Thời điểm công trình xây dựng
- Thế đất của công trình xây dựng
Cụ thể, để xây dựng được công trình nhà phố 1 trệt 1 lầu với diện tích 91m2, sử dụng mái ngói cốt thép thì chi phí thiết kế sẽ dao động như sau:
- Bản thiết kế mất chi phí khoảng 20 đến 40 triệu đồng
- Chi phí phần xây thô tổng diện tích 227.5m2 (cả móng) khoảng 1.2 tỷ đồng
- Chi phí xây dựng trọn gói cả mái khoảng 1.5 tỷ đồng
- Nếu tự thiết kế, chi phí sẽ giảm xuống khoảng 10 đến 15%

Tham khảo: 35+ Mẫu Thiết Kế Nhà 8x12m 2 Tầng Đẹp Đơn Giản Ấn Tượng
Lưu ý khi thiết kế nhà ngang 7m dài 13m
- Trước khi tiến hành xây dựng công trình, bạn cần chuẩn bị đầy đủ bản vẽ thiết kế mỹ thuật và bản vẽ chi tiết để đảm bảo công trình đạt chuẩn và không xảy ra bất cứ sai sót nào. Nên thuê kiến trúc sư để đảm bảo công trình không vi phạm quy định về an toàn xây dựng của chính quyền địa phương.
- Gia chủ cần kiểm tra kỹ kết cấu và các đặc điểm móng nhà 7x13m. Đồng thời, giám sát kỹ các quá trình thi công ép cọc, đầm nền và nền móng… đảm bảo khả năng chịu lực tốt, chống biến dạng và sụt lún cho công trình thi công. Đặc biệt là các công trình kiến trúc cao tầng, tải trọng lớn thì cần có các biện pháp bảo vệ sau cho chắc chắn, hạn chế rủi ro.
- Các công trình mặt tiền nhà hướng Tây, nhà phố hay nhà hướng Nam cần sử dụng các biện pháp chống nắng, chẳng hạn như lắp đặt mái hiên, tường gạch bông, lan, tường đôi 20… Bạn cũng nên dán film cách nhiệt cho hệ thống cửa kính các công trình

Tham khảo: 25+ Mẫu thiết kế nhà 2 tầng 7x11m đẹp mê ly đầy đủ tiện nghi
Kinh nghiệm khi thiết kế nhà rộng 7m dài 13m
Để thiết kế nội thất và ngoại thất nhà rộng 7m dài 13m sao cho phù hợp, dưới đây là một số lưu ý mà bạn cần quan tâm:
Trang trí ngoại thất
Điều đầu tiên bạn cần làm khi bố trí ngoại thất là phải xác định được phong cách chủ đạo của toàn bộ căn nhà. Phong cách và kiến trúc tổng thể chính là những yếu tố tạo nên sự ấn tượng và độc đáo.
- Nếu căn nhà của bạn theo phong cách hiện đại, có thể tham khảo một số lối kiến trúc độc đáo như lệch cốt, so le độc đáo để khẳng định được tư duy thẩm mỹ của gia chủ.
- Phong cách cổ điển, tân cổ điển tập trung vào tính xa hoa và bế thế, phù hợp với những ai yêu thích thiết kế cầu kỳ và những chi tiết tinh xảo, tỉ mỉ.
Sau khi đã quyết định được phong cách chủ đạo, bạn cần thống nhất với thiết kế sư về cách bố trí ngoại thất và cảnh quan xung quanh sao cho cân bằng. Một ngôi nhà theo phong cách Châu Âu chắc chắn sẽ không phù hợp với một khoảng sân trống hoác.

Có thể nói, mặt tiền là yếu tố quan trọng quyết định vẻ đẹp của ngôi nhà, đặc biệt là những công trình được sử dụng cho mục đích kinh doanh. Bạn có thể tạo điểm nhấn bằng cách trồng cây xanh hoặc trang trí thêm với gạch bông gió, lam gỗ. Nên hạn chế kiểu bố trí ngoại thất rườm rà, nhiều chi tiết.
Yếu tố quan trọng cuối cùng mà Thiết Kế Nhà 365 muốn chia sẻ chính là màu sắc của ngoại thất. Hãy lựa chọn những gam màu phù hợp với tuổi mệnh, sau đó sắp xếp theo nguyên tắc 60-30-10. Bạn chỉ nên chọn tối đa 3 màu sơn, trong đó màu nền chiếm 60%, màu phụ thứ 2 chiếm 30% và màu làm điểm nhấn chiếm 10%.
Trang trí nội thất nhà mặt tiền ngang 7x13m
- Bố trí cầu thang và xây thêm giếng trời là cách bố trí nội thất giúp bạn tối ưu không gian trong phòng khách và mặt tiền.
- Thay vì xây cửa sổ hai bên như thiết kế nhà ở thông thường, bạn có thể xây cửa kính thẳng ở ban công, sau đó đặt thêm bàn làm việc để tối ưu diện tích trong phòng, nhưng vẫn đảm bảo được sự riêng tư khi sinh hoạt.
- Bạn có thể làm cửa sổ dọc theo các cạnh của giếng trời để ánh sáng được phân bố phù hợp trong nhà. Đây là cách bố trí nội thất khá thông minh của người Nhật.
- Sử dụng vách ngăn thông minh hoặc xây dựng các phòng thông gian là cách để không bị lãng phí tiềm năng, không cản trở lối đi lại.

Trên đây là một số mẫu thiết kế nhà rộng 7m dài 13m đẹp và độc đáo nhất hiện nay mà bạn có thể tham khảo. Nhà rộng 7m, dài 13m có nhiều ưu điểm, cung cấp đầy đủ công năng và tiện ích sống. Do đó, nếu muốn được tư vấn về kiểu nhà này, đừng quên liên hệ ngay với Thiết Kế Nhà 365 để được báo giá thiết kế nhà phố chi tiết.










